2022. 12. 22. 10:49ㆍ아티클 | Article/특집 | Special
Housing proposal for the victims of Gangwon-do
#1
경제적 주택 공급 및 향후 마을이 경제적 자원이 되도록 구성
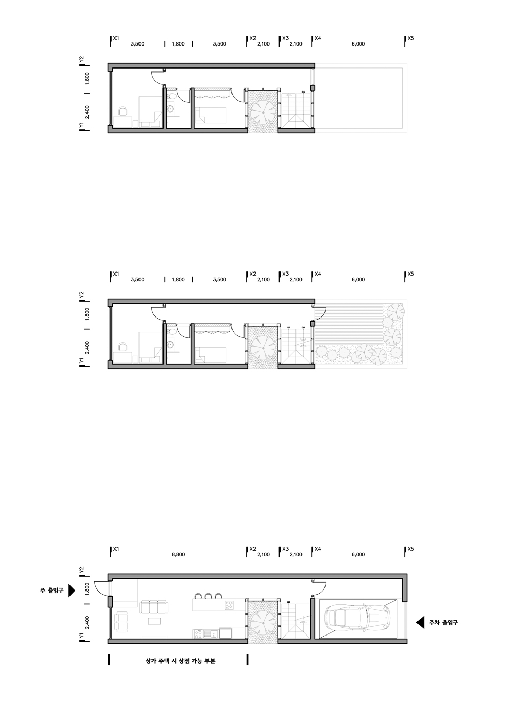
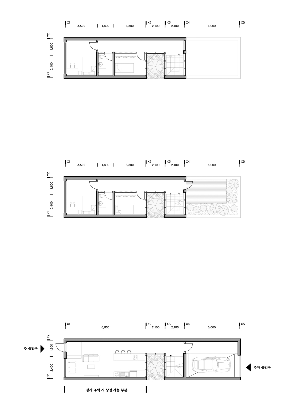
1. 3개층 또는 2개층의 구성으로 각각의 기능은 작지만 큰 공간 구성
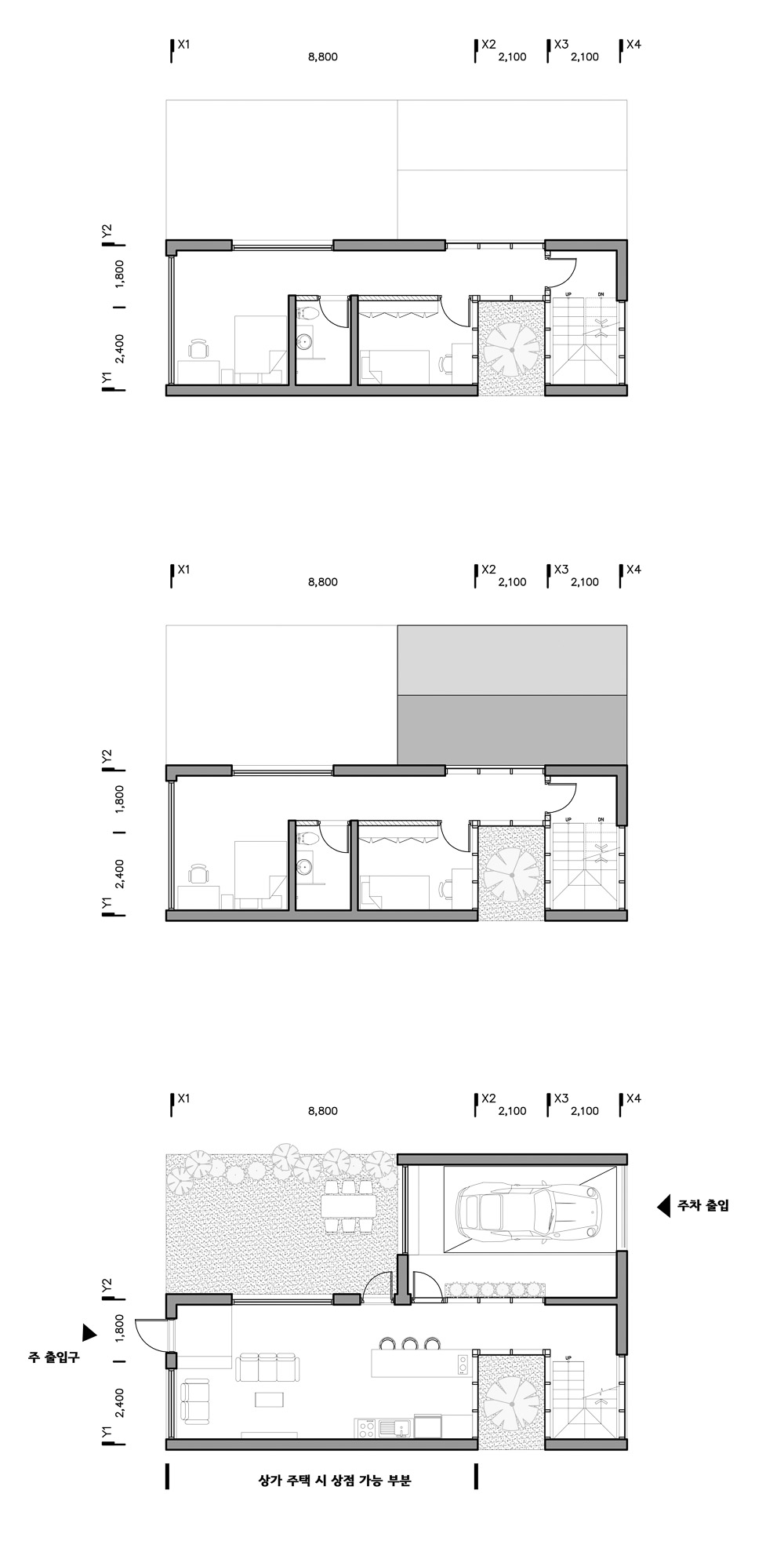
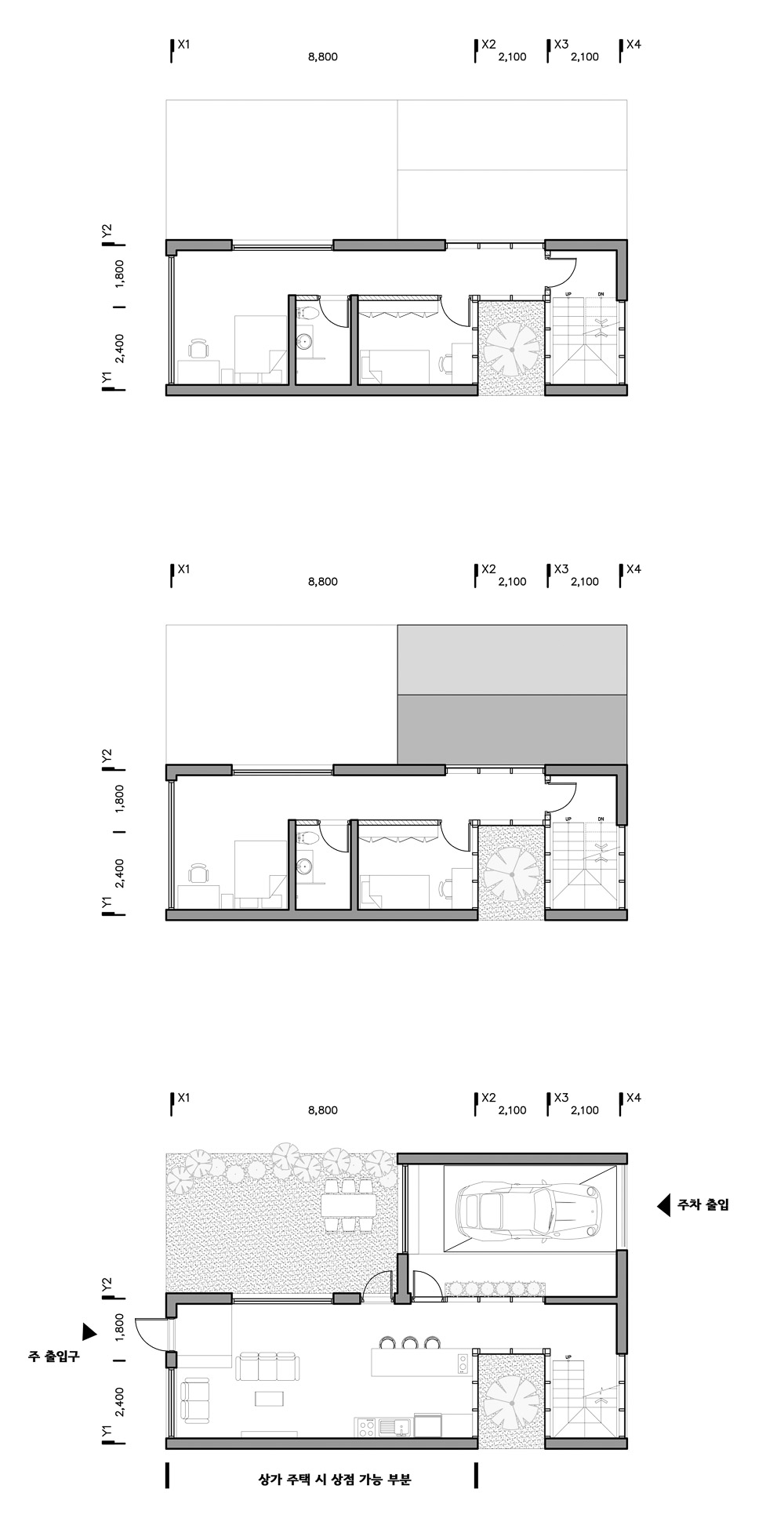
2. A와 B 타입 두 가지로 제안
- 중정 강조형 또는 마당 타입으로 향후 1층 거실부분을 상점으로 전환 시 쉽게 용도 전환할 수 있도록 구성
- 보행 도로와 주차 동선을 분리해서 보행 안정성을 확보
- 영국이나 미국의 보행 중심을 한국형으로 밀집도 높이고 골목길 만듦
3. 경제성 및 시공속도 조절 - 공장생산 가능한 평면 크기 및 유니트 구성
#2
현재의 고밀도 방식 아파트는 고령화와 인구 감소시 치명적일 수 있다.
유지 관 리가 구성원의 자력으로 진행되는데, 고령화등으로 구성원의 경제적 균형이 파 괴될 가능성이 높다.
이에따라 전체 단지의 유지관리가 어려울 수 있다.
더불어 공사비 또한 많이 드는 비경제성도 있다.
경제성장율이 어느정도 보장될 때나 가능한 이런 구조가 우리나라의 미래까지 구성되기 어렵다.
따라서 강원도의 재건에 미래지향성을 제안해야 한다. 보행과 주차 동선의 분리와 개별 독립성이 가능한 이런 주거 형식은 이미 유럽과 미국에선 오래전에 등장했다.
경제성 만큼 공간의 효율성이 중요하다. 따라서 한국인 습관에 맞춘 유휴 공간을 제공하며 제안한다.
#3
오늘날 거주지는 단순한 주거지가 아니다.
미래의 변용 가능성도 염두에 두어야 하고, 생계의 수단이 될 수도 있어야 한다.
따라서 향후 골목길 경제가 가능토록 해야 한다.
이를 위한 적극적 공간 구성이 필요하며 본 계획안은 그런 가능성을 염두에 두었다.
즉, 1층의 거실을 주거공간과 분리한 동선은 향후 변용을 고려한 것이다.
정원을 활용할 수 있는 구성은 카페와 같은 F&B를 염두에 둔 개념이고, 일반 상 점은 A타입에 유리하다.
즉, 거주지가 상업지로 전환할 때 경제성을 활성화 시킬 수 있으며 동시에 주거 기능의 독립성을 구성한 것이다.
#결말
강원도의 복구에 단순 주택이 아닌 다기능의 미래 지향성과 경제적 성과를 이끌 어 내는 섬세한 전략의 대응이 필요하다. 이런 방향에 도움이 되길..









홍성용 건축사사무소 NCS lab · 건축사
홍성용은 건축사(KIRA), 건축공학 박사, 서울시 공공건축가로 건축의 크로스오버를 오래 전부터 주장했다. 국내 최초의 영화와 건축을 해석하는 <영화속 건축이야기, 1999> 을 시작으로 여행 기, 마케팅을 연구했다. 건축사로 최초의 경영서적인 <스페이스 마케팅 2007>을 삼성경제연구소를 통해 출간하였고, 도시경쟁 력 연구인 <스페이스 마케팅 시티, 2009>, 그리고 2016년 <하트마크>를 출판했다. 신사동 임하룡씨 주택, 근생 멜론 등 다수 의 건축작품과 인테리어 작품들이 있다.
ncslab@ncsarchitect.com
'아티클 | Article > 특집 | Special' 카테고리의 다른 글
| 3인 가족을 위한 66㎡ 단독주택 2019.6 (0) | 2022.12.22 |
|---|---|
| 복도가 긴 집 2019.6 (0) | 2022.12.22 |
| “건축사로서 재난현장 지원한다”…‘건축사 재난안전지원단’ 출범 2019.6 (0) | 2022.12.22 |
| 국가 재난에 ‘건축사’ 힘 보탠다…성금 1억 3800만원 전달 2019.6 (0) | 2022.12.22 |
| 월간 건축사 표지로 보는 통권 600호 역사(1966~2019) 2019.4 (0) | 2022.12.20 |