2022. 12. 22. 10:51ㆍ아티클 | Article/특집 | Special
A detached house of 66㎡ for a family of 3

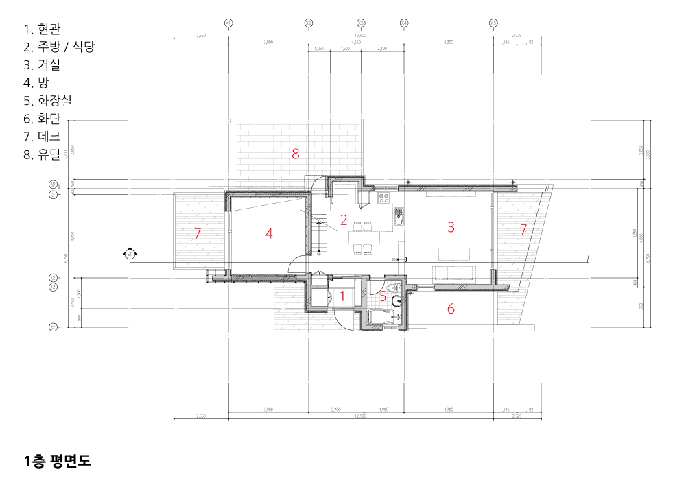
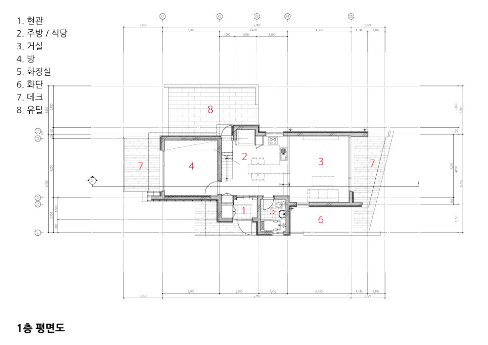
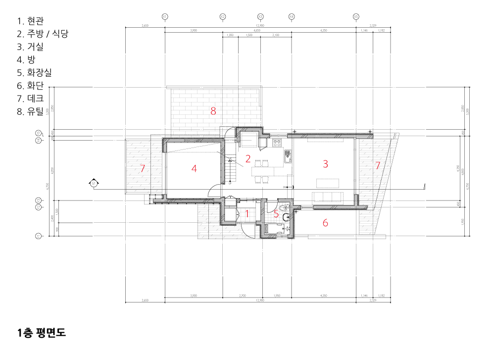
강원도 고성 산불 피해의 주 지역이 단독주택지인 것을 감안해 단독주택을 계획 했다. 66제곱미터 내외의 단독주택은 가족구성원이 소규모인 것으로 가정하여 계획안을 작성했다.
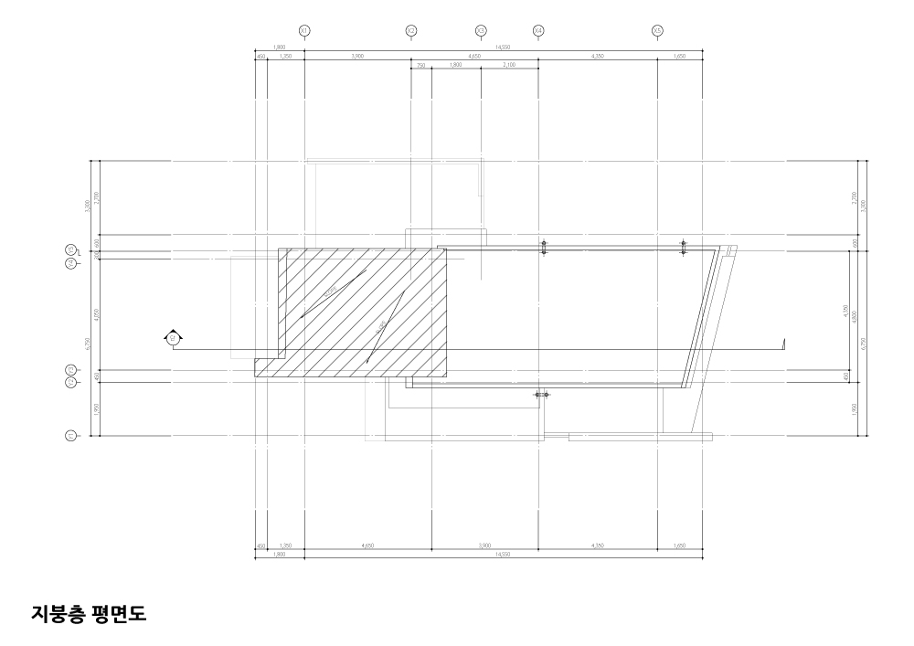
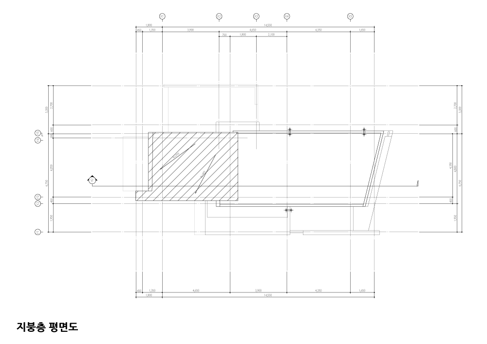
외부공간은 전면 주차마당, 진입마당을 만들었다. 거실 외부데크, 1층방 데크, 주 방 배면 다목적 마당을 조성해 독립적이고 다양한 마당을 구성했다.
평면 구성은 방의 개수를 줄이고 그 면적을 거실과 주방에 할애했다.
시각적인 개방감을 줄 수 있는 공간 구성을 위해 거실과 주방이 열려있는 구조가 되게 했다. 공간의 성격을 구분하기 위해 바닥레벨의 차이를 두었고, 자연스럽게 층고의 차이가 생기도록 했다.
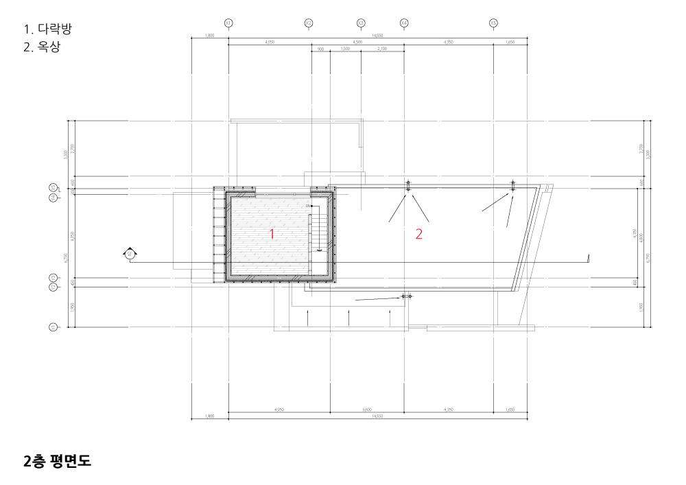
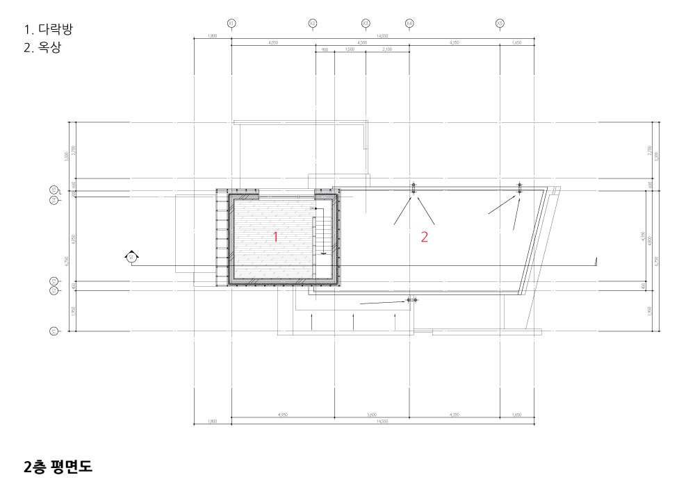
1층 방에는 붙박이장이 충분한 길이로 설치될 수 있도록 방의 크기를 결정하였 고, 부족한 방개수의 보완을 위하여 방 상부에 별도진입계단이 있는 다락방을 제 공했다.











글. 이승철 Lee, Seungchul 건축사사무소 품은 · 건축사

이승철 건축사사무소 품은 · 건축사
건축사 이승철은 1979년 강원도 춘천 출생이다. 2007년 강 원대학교 건축학부를 졸업하고 유덕건축에서 실무를 쌓았 다. 2016년 건축사사무소 ‘품은‘을 설립했다. 주요작품으로 는 해오름마을 주택, 큰지붕 닭갈비, 추곡약수터 관광휴양시 설, 양구 인문학박물관 제2문학관, 주문진 단독주택, 박수근 미술체험마을 퍼블릭 전시관, 포천 예리코 클리닉 등이 있다. 급변하는 시대에 적응하는 주거를 주제로 연구를 하고 있으 며, 지속가능한 건축물로서의 리노베이션에 대해서 관심을 가지고 다양한 작업을 하고 있다.
pumeun001@naver.com
'아티클 | Article > 특집 | Special' 카테고리의 다른 글
| 재해·재난 극복을 위한 임시주택 제안 2019.6 (0) | 2022.12.22 |
|---|---|
| 지붕으로 쏘아올린 작은 공 2019.6 (0) | 2022.12.22 |
| 복도가 긴 집 2019.6 (0) | 2022.12.22 |
| 강원도 이재민을 위한 주택 제안 2019.6 (0) | 2022.12.22 |
| “건축사로서 재난현장 지원한다”…‘건축사 재난안전지원단’ 출범 2019.6 (0) | 2022.12.22 |