2022. 12. 22. 10:52ㆍ아티클 | Article/특집 | Special
A small ball shot to the roof

Roofing Community
화마가 덮친 후 살 곳을 잃어버린 이재민들에게는 안락한 보금자리 뿐만 아니라 허무함을 위로할 수 있는 ‘생기’가 필요하다. 마을에 있어 ‘생기’란 거주자들 혹은 방문객들이 끊임없이 흘러들어오고 고이기를 반복하는 공간에서 생겨난다. 아침 의 약수터, 대낮에 아이들이 뛰노는 놀이터, 아주머니들의 사랑방인 미용실, 사람 들이 귀가하며 들르는 동네 어귀의 슈퍼마켓 앞 등의 공간이 마을을 힘있고 생기 있게 만든다. 생기있는 공간의 커뮤니티가 잘 작동할수록 거주자는 심리적, 경제 적으로 긍정적인 영향을 받을 수 있다. 하지만 커뮤니티 공간은 거주자들의 자율 적인 관리가 이루어지지 않으면 지속되기 어렵다. 자율적 관리를 유도하려면 그 들의 생활패턴과 커뮤니티가 아주 밀접하게 엮여 있어야 한다. 커뮤니티 공간을 점(點)처럼 배치하지 않고 거주공간과 중첩시켜 거주자의 생활 패턴에 스며들게 해야 한다. 생기있는 커뮤니티 공간이 곧 이재민들에게 안락한 지붕이 되어 주고, 한 채, 두 채 모이면 모일수록 더욱 풍성한 마을이 되어 이재민들에게 힘이 되기 를 기대한다.
계획범위
소실된 주택은 고성 335채, 강릉 71채, 속초 60채, 동해 12채로 총 478채이다. 이재민은 현재 총 829명이나 계획에서는 가장 피해가 큰 고성 651명을 기준으 로 계산하여 계획에 참고했다.(피해범위는 4월8일 행정안전부 보도자료에서 참 고함) 지자체에서 주관하는 재개발 사업으로 가정하고, 마을단위로 고려하여 계 획하기로 한다.(지자체가 피해주민으로부터 토지매입→피해지역 개발(은행/시 공사협약겸행)→피해주민 선분양→일반분양)
계획단위
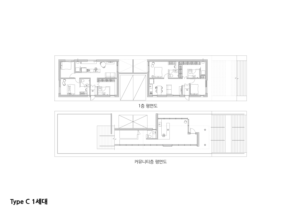
고성기준 피해주택 335채, 이재민 651명임을 고려하였을 때 피해세대 대부분이 3인 이하의 세대일 것으로 추정, 방 2~3개의 30평 미만 주택으로 한정하고, 1세 대 주택과 2세대주택 2가지 타입으로 기준 평면도를 만들어 다양한 조합으로 활 용할 수 있도록 한다. 2주택 이상의 주택은 근린생활시설을 2층에 배치하여 분양 받은 주민이 근린생활시설에서 자체적인 경제활동으로 인한 소득 또는 임대소득 을 얻거나 지역 지자체에서 운영하는 주민 생활지원 시설로 사용할 수 있다.
주택공간계획
주 피해 지역인 고성군의 65세 이상 인구가 전체인구의 24.1%임을 고려하여 거 주공간은 단층으로 계획한다.(UN에서 정한 기준으로 65세 이상 인구가 7%이면 고령화사회, 14%는 고령사회, 20%는 초고령사회. 전국기준 13.9%, 서울기준 13.4%. 통계청 국가통계포털 2017년 자료) 3인 이하의 세대로 추정하였으므 로, 1인가구, 노부부, 부부와 자녀 1명 등을 타겟으로 할 때 방 2개가 적정할것으 로 판단하고, 방 2개와 10자 이상의 수납이 가능한 드레스룸을 배치했다. 각각의 주택은 개인 마당과 1대의 주차공간을 가진다.
외부공간계획
커뮤니티레벨(2층)은 각 동마다 근린생활시설과 외부데크가 있으며 외부데크 는 놀이터, 주민운동시설, 야외쉼터, 노천카페, 지역적특성을 고려하여 공동 농업 작업장 등 외부활동공간으로 활용할 수 있다. 3동 이상의 건물을 커뮤니티 레벨 에서 연결하고 어디에서든 접근할 수 있도록 하여 다양한 활동이 연계되어 일어 날 수 있게 유도하고 소수의 엘리베이터로도 다수의 커뮤니티 접근에 문제가 없 도록 한다. 피해지역은 대지의 고저차가 많은 지역이므로, 대지를 잘 활용한다면 커뮤니티 레벨에서 자연환경으로의 동선을 배치할 수 있다. 2층 커뮤니티 지붕 층은 자연과 함께 풍경으로 읽히도록 한다.
설계개요
용도 단독주택 또는 공동주택 및 근린생활시설 세대당면적 76.84㎡(전세대동일) 건축면적 1세대주택 : 113.10㎡ (Type A, B 동일), 2세대주택 : 235.80㎡ (Type C) 연면적 1세대주택 : 113.10㎡ (Type A, B 동일), 2세대주택 : 294.11㎡ (Type C) 규모 1세대주택 : 지상1층 (Type A, B 동일), 2세대주택 : 지상2층 (Type C) 구조 철근콘크리트구조






글. 강재원 Kang, Jaewon 곧 건축사사무소(주) · 건축사

강재원 곧 건축사사무소(주) · 건축사
홍익대학교에서 건축을 공부하고 7년 실무경험 뒤 ‘곧 건축 사사무소(주)’를 개소했다. 기획과 설계, 시공뿐만 아니라 건 축물이 실제 어떻게 사용되고 있는지까지가 건축의 전 과정 이라고 생각하며 “모든 과정이 즐겁게”를 표어로 삼고있다.
01@beforelong.co.kr
'아티클 | Article > 특집 | Special' 카테고리의 다른 글
| HOUSING PROJECT FOR THE FOREST FIRE VICTIMS IN GANGWON PROVINCE ‘행동하는 건축! 건축으로 희망을’ 2019.6 (0) | 2022.12.22 |
|---|---|
| 재해·재난 극복을 위한 임시주택 제안 2019.6 (0) | 2022.12.22 |
| 3인 가족을 위한 66㎡ 단독주택 2019.6 (0) | 2022.12.22 |
| 복도가 긴 집 2019.6 (0) | 2022.12.22 |
| 강원도 이재민을 위한 주택 제안 2019.6 (0) | 2022.12.22 |