2022. 12. 22. 10:50ㆍ아티클 | Article/특집 | Special
A house with a long corridor

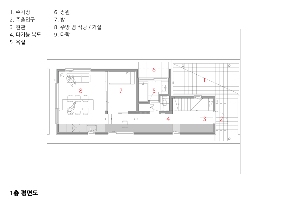
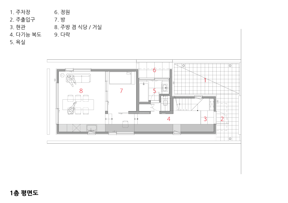
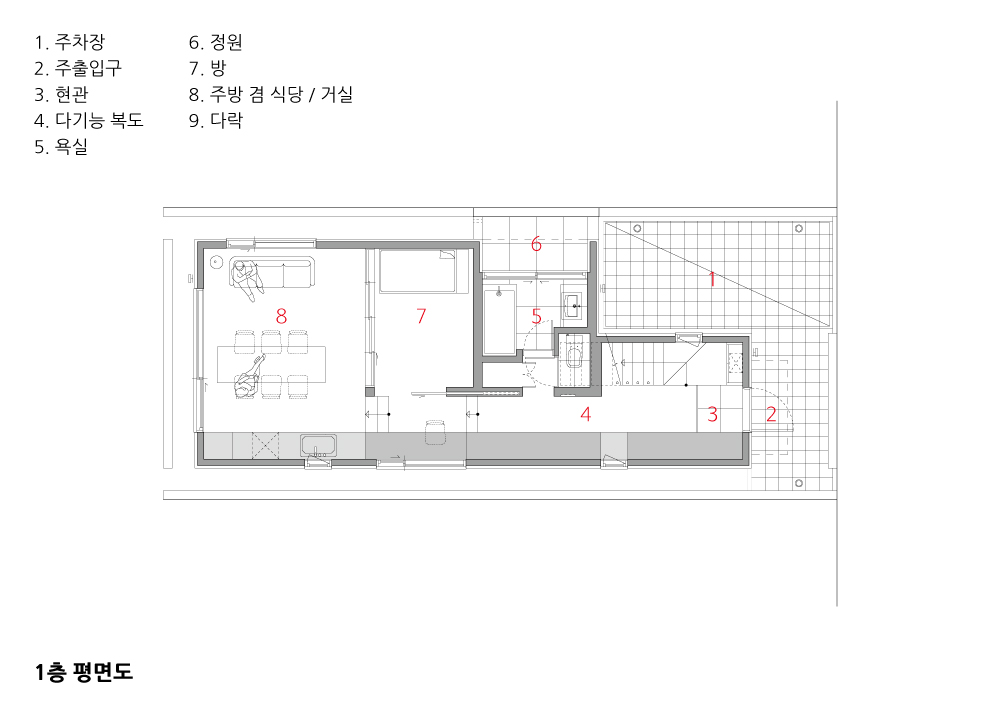
‘복도가 긴 집’은 재해로 임시거처가 필요한 가족을 위한 1개의 방과 1개의 다락 이 있는 주택이다.
복구기간동안 몇 개월 사용하고, 다 쓰고 나면 다른 용도로 재사용이 가능하도 록, 설치가 빠르고 조립 및 해체가 가능하며 보관하는 데 큰 공간이 필요하지 않 은 가구식 목조주택을 제안한다.
‘복도가 긴 집’은 현관과 복도, 욕실 1개, 방 1개, 거실 겸 주방, 식당 공간과 1개 의 다락으로 구성되어 있다. 방은 거실 쪽으로 개방하여 넓게 사용 할 수 있으며, 천창이 있는 다락은 방으로 사용 할 수도 있고, 서재나 다른 용도로도 사용이 가 능하다. 화장실과 분리되어 있는 욕실은 벽으로 둘러싸인 조그만 정원을 바라보 고 있어 어려운 가운데도 심적인 안정을 가질 수 있는 공간으로 계획했다. ‘복도 가 긴 집’의 가장 특별한 공간은 다목적 복도 공간으로 별도의 가구를 갖출 수 없 는 상황을 감안하여 긴 복도에 신발장, 수납공간, 옷장, 책상, 주방가구를 ‘빌트 인’으로 배치했다.
제안된 평면은 경사지에 설치가 가능하도록 약 1.5미터 높이의 단차가 있는 계획 안으로 거실에서 높은 공간감을 느낄 수 있는 특징이 있다.








글. 이재혁 Yi, Jaehyuk (주)에이디모베 건축사사무소 · 건축

이재혁 (주)에이디모베 건축사사무소 · 건축사
건축사 이재혁은 성균관대학교 건축공학과를 졸업하고 공간종합건축 과 케이씨건축을 거친 뒤 2003년부터 (주)에이디모베건축사사무소 를 운영하고 있다. 2004년에는 (사)새건축사협의회로 부터 ‘신인건 축가상’을, 2008년에는 올림픽프라자 리모델링으로 ‘서울시건축상’ 을 수상했다. 현재 성균관대학교 겸임교수이자 한국목조건축협회의 5-star 품질인증위원으로 활동 중이다. 재미있는 공간이 삶을 풍요롭 게 한다는 믿음을 가지고 서울시 명륜동에 자신의 집인 ‘달_놀이집’을 지어 살고 있으며 그곳에서 직주일체(職住一體)를 실천하고 있다. 대 표작으로는 올림픽프라자 리모델링, 동국대학교 도서관 증축, 우계기 념관, 고창 상하농원, 우장산근린공원 힐링숲체험센타, 가회동청사 리 모델링, 충신연극공유센터 등이 있다.
yjh44x@naver.com
'아티클 | Article > 특집 | Special' 카테고리의 다른 글
| 지붕으로 쏘아올린 작은 공 2019.6 (0) | 2022.12.22 | 
|---|---|
| 3인 가족을 위한 66㎡ 단독주택 2019.6 (0) | 2022.12.22 | 
| 강원도 이재민을 위한 주택 제안 2019.6 (0) | 2022.12.22 | 
| “건축사로서 재난현장 지원한다”…‘건축사 재난안전지원단’ 출범 2019.6 (0) | 2022.12.22 | 
| 국가 재난에 ‘건축사’ 힘 보탠다…성금 1억 3800만원 전달 2019.6 (0) | 2022.12.22 |