2022. 12. 23. 12:55ㆍ아티클 | Article/연재 | Series
A living and Brenthing Tourism for Architecture ⑦ Modern Architecture in Yesan City during the Japanese colonial
1. 서구식 근대건축물 등장
오랜 쇄국 끝에 아무 수용태세도 갖추지 않은 채 타율적으로 유입되는 서구 건축 을 받아들여야 했고, 일본의 점령으로 양풍건축도 일본을 통하여 이루어졌다고 본다. 개화 후 기술을 경시하는 풍조와 전문교육을 억제했던 일본의 식민지 교육 정책에 의해 전문교육을 받은 한국인이 일가를 이루어 창작조물을 하게 된 것은 1920년대 말의 일이다.
이러한 일본의 세력에 의해 주권과 영토를 일제에게 빼앗긴 후 병자수호조규(강 화조약)에 따라 부산(1876년), 원산(1880년), 인천(1883년)의 순으로 개항되 면서 한국에 최초로 진출한 일본에 이어 구미 여러 나라들과 외교를 맺으므로 민 간인이 들어와 일인거리, 청국거리가 형성되면서 외국 상인들의 건축물이 나타 나기 시작했다. 서구제국과의 수교와 더불어 들어온 신구 양 기독교는 중세양식 의 건축이 도입되는 계기가 됐다. 미국에서 온 감리교는 교회와 학교를 세웠고, 1887년 한불조약으로 천주교 시설로 아름다운 건축인 명동성당이 세워져 근세 풍의 외국 공간과 대비되는 중세고딕 양식으로 외부보다 내부가 고딕 양식의 공 간으로서 손색이 없다고 한다.
2. 예산의 근대건축물
1899년에는 서울에 전차가 개통되고 경인철도가 개통되는 등 열강의 각축 속에 신문물이 들어왔다. 노일전쟁에서 승리한 일본은 일본통감부의 뒷받침으로 추진되는 관청건물이 주된 건축으로 그밖에 외국공관, 종교건축, 민간건축도 세워졌다.에 신문물이 들어왔다. 노일전쟁에서 승리한 일본은 일본통감부의 뒷받침으로 추진되는 관청건물이 주된 건축으로 그밖에 외국공관, 종교건축, 민간건축도 세워졌다.
▲관청건물인 예산군청(1923), 예산읍 사무소, 공주지방법원 예산출장소, 예산 경찰서(1923), 전주전매지국 예산출장소(1930), 예산우편소(1924), 일본인 영 령분양소인 절, 예산곡물검사 예산출장소(1928), 남선합동전기회사 예산출장소 (1929), 예산세무서(1934) ▲금융계통은 호서은행 창립건물(1913. 현존), 호 서은행 예산본점 준공(1922년. 현존), 예산금융조합, 예산농업미곡창고(1925. 현존) ▲학교는 예산공립보통학교, 금오공립보통학교, 예산공립농업학교, 중 국 화교학교, 예산공립보통학교 교장관사, 신명유치원 ▲산업계는 충남 예산 제 사공장, 예산 양조주식회사, 충남자동차운수 주식회사 ▲교회건축은 예산성당 (1935), 예산감리교회 ▲병원은 예산 대동병원(1920), 순천내과병원, 해동안과 병원(1926), 부인병원(구와하라), 조외관 병원 ▲상가로서 본 정통 네거리에 있 는 동화루 2층 건물(현존), 예산여관, 우에노약국, 예산 회춘당약방 ▲집회장소 예산극장(1936) 등 1920년대에서 1930년에 지어진 건물들이다. 현존건물은 호서은행 창립건물, 호서은행 예산본점, 예산농업창고(미곡), 예산성당(1934), 일본의 절(일본영령분양소) 회충당약방점포주택, 서양화가 김두환씨 자택·화 실·창고 등이 남아있을 뿐이다
(1) 예산시가지 근대건축물의 위치 현황(연대순 정리)


(2) 일제강점기 시대 근대 공공건축물


(3) 일제강점기 시대 근대 일반건축물

3. 서양풍의 근대건축
이곳의 지리적 중요성은 면폐합(1914) 이후 농업을 기반으로 한 근대화된 상업 발전과 이에 따른 인구의 유입에 따라, 일식상업건축, 일본인들의 관사와 사택들 이 세워졌다.
그 당시 일본에서 유행한 미국식의 누보풍과 방갈로풍의 지붕양식 절충주의 관 청건물들이 건축된다. 1930년대에 관청건물, 극장, 학교, 병원, 식당과 상점과 같은 상업건물들이 도시 중심지역에 위치하게 되며, 외곽부에는 여관, 교회성당, 일식과 양식의 절충형 주택들이 들어서게 된다.
4. 호서은행 신축부지 매입과 활용
1922년에 신축건물로 호서은행 이전 후 설립지 건물 또는 부지를 4,500원에 매 입하여 각일 11일에 면사무소를 이전하였다. 위치가 중앙에 있음으로써 면의 편 익을 제공하였고, 동화루 2층을 회의실로 사용하였다 한다

호서은행은 1913년 5월 21일에 설립된 이래 광천, 천안, 안성, 홍성, 4개소에 지 점을 두었고, 자본금 200만 원, 적립금 15만 원으로 현재(5월 말) 예금 111만 5,000원, 대금 187만 3,000원, 지점예금 4만 8,000원이다.
현임 : 전무 취체역(이사) 성락헌 씨는 이 은행에 많은 노력을 하고 있다 한다. (순회탑방 동아일보 1926. 9. 2.)

5. 종교 양식의 고딕 복합양식 건축과 일본식 전통 마츠야공간 건축물
오랜 역사와 많은 이들의 추억, 애환을 담고 있지만, 경제적 가치가 없어 사라지 는 건물들이 참 많다. 아쉽고 아깝지만 문화재로 지정되지는 않았고, 관공서도 아닌 사유재산이어서 소유주가 아닌 이상 어느 누구도 ‘지키라 마라’할 권리가 없다. 아직 누군가 지켜줘서 고맙게도 우리 곁에 있는 역사적 건물들을 보존할 방 법은 없을까.
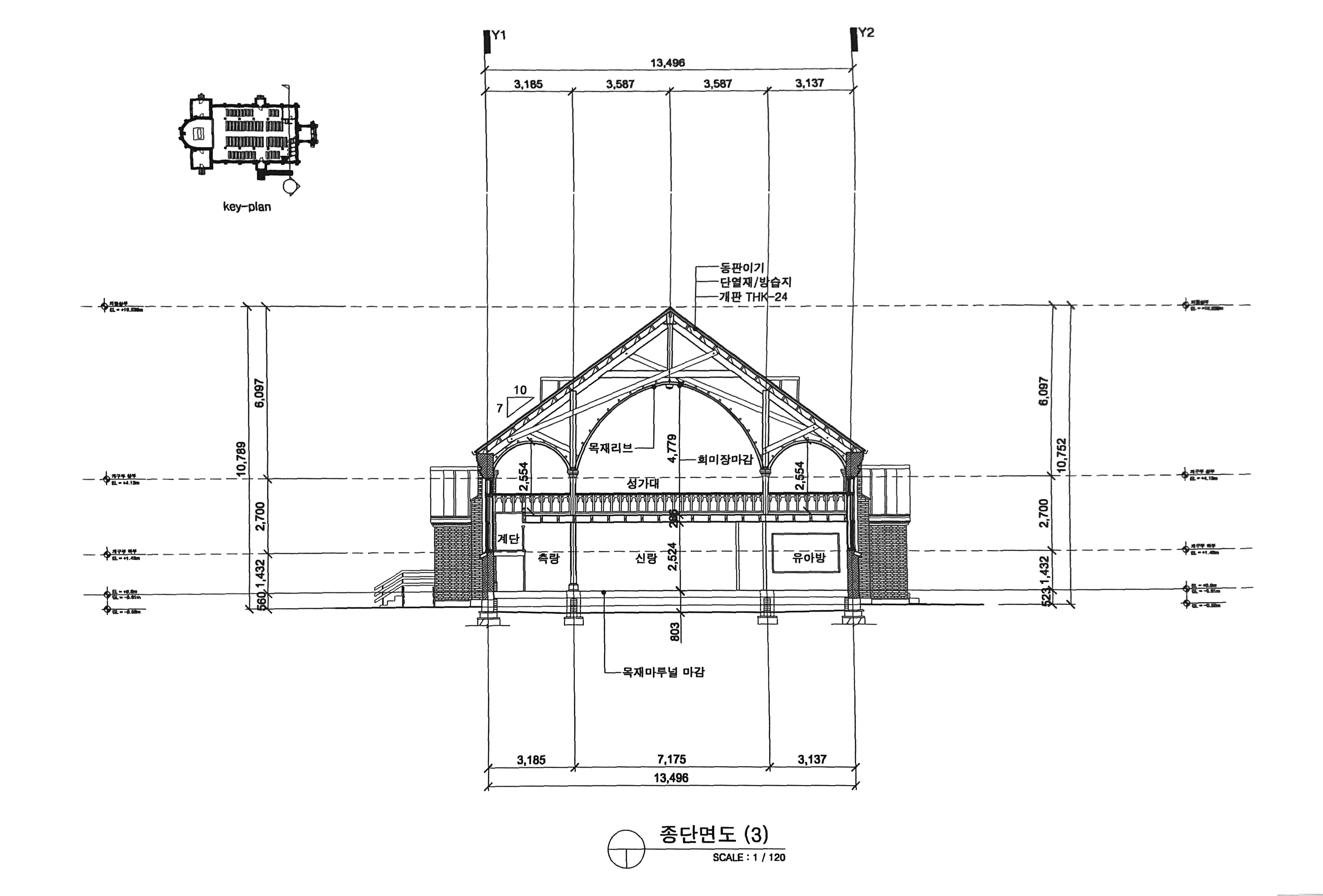
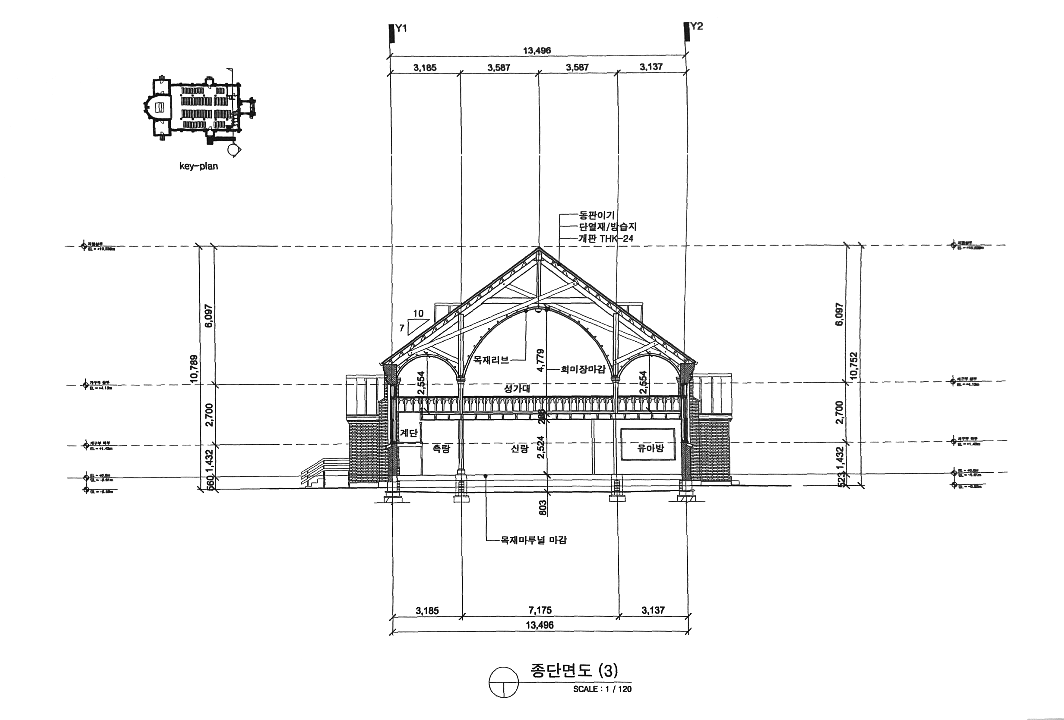
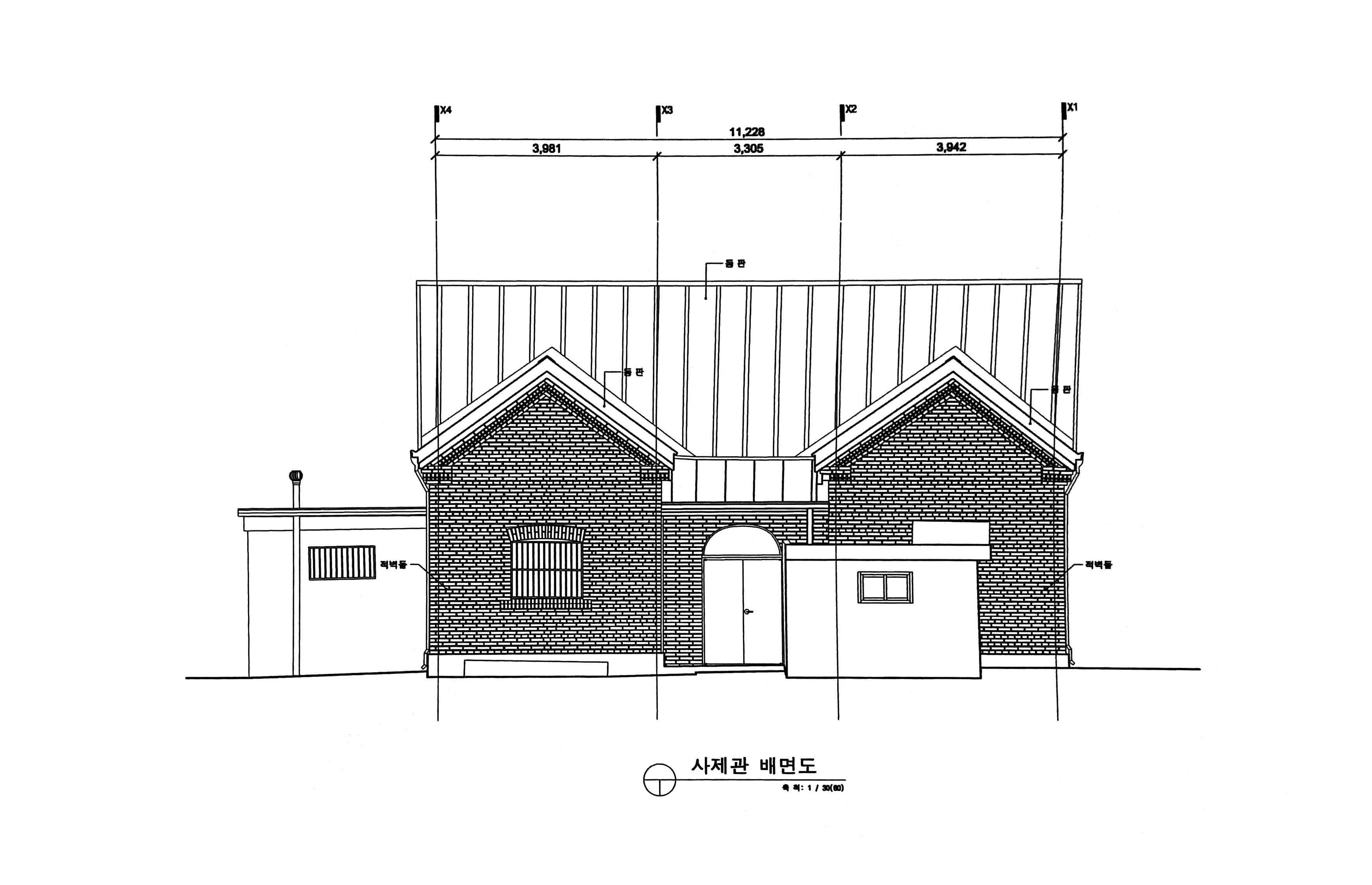
(1) 예산성당 연혁
예산본당은 합덕본당 산하의 예산읍 간량리 소재의 공소였는데, 1928년 합덕 본 당으로부터 분리되면서 본당으로 창설되었다. 1926년 당시 합덕 본당 신부였던 필립 페렝(Perrin) 신부의 초대 보좌 신부로 구천우 신부가 부임했는데, 구 신부 는 1927년부터 예산 지역의 사목을 담당하게 되었다. 1928년 5월에 합덕 본당 에서 예산 본당이 분리되면서, 초대 예산 본당신부로 구천우 신부가 임명되었다. 제2대 본당 신부로 황정수 신부가 임명되었으며, 황정수 신부는 1933년 현재의 위치인 예산읍 오리동에 성당건축을 시작하여 1934년 준공하였다. 시공은 중국 인 기술자가 하였으며, 벽돌은 현장에서 직접 구워 사용하였다. 주보는 예수성심 이다. 프랑스인인 5대 리샤르(Robert Richard, 李) 주임신부는 6.25전쟁 때 순 교하였으며, 현재 근현대 신앙의 증인 시복시성 대상자이다.

오리동성당이라고 불리는 예산 천주교회본당과 사제관은 1933년 기공, 1935년 에 준공됐다. 벽돌을 직접 구워서 지었으며, 다른 지역의 천주교회양식과 마찬가 지로 수직적 종교양식을 대표하는 고딕복합양식건물이다. 이 성당신자들은 문화 재청에서 시도 문화재 지정권유가 있었다는 소식에 기대를 걸고 있다(2004년 4 월 10일 충청남도 기념물 제164호로 지정됐다).
오리동성당이라고 불리는 예산 천주교회본당과 사제관은 1933년 기공, 1935년 에 준공됐다. 벽돌을 직접 구워서 지었으며, 다른 지역의 천주교회양식과 마찬가 지로 수직적 종교양식을 대표하는 고딕복합양식건물이다. 이 성당신자들은 문화 재청에서 시도 문화재 지정권유가 있었다는 소식에 기대를 걸고 있다(2004년 4 월 10일 충청남도 기념물 제164호로 지정됐다).

이 성당은 본당과 사제관으로 구성된다. 본당은 정면 중앙의 종탑부가 돌출한 삼 랑식의 장방형 건물로, 전면은 두 단의 석조 켜 위에, 측면은 한 단의 석조 켜 위 에 적벽돌을 쌓은 벽돌조이다. 이 석조 기단은 코니스(cornice)와 연결되어 벽 체의 프레임을 형성한다. 전면 종탑 하부의 포치는 정면만 개방되어 있고 측면 에는 벽돌로써 출입구 형태가 장식되어 있다. 벽에서 벽돌 1.5장 길이만큼 돌출 된 버트레스(buttress), 그리고 처마장식과 창 둘레에는 짙은 회색 벽돌을 사용 하였다. 전면 아일(aisle)부분 외벽의 코니스를 따라 있는 작은 연속 원형아치 장 식과 종탑부 버트레스 꼭대기 피나클의 장식이 특이하다. 원형아치의 창들은 형 태뿐 아니라 세부처리에 있어서도 모두 동일하다. 지붕재료는 함석에서 동판으 로 교체됐으며, 측면에 환기창이 있다. 내부는 네이브와 아일 구별이 뚜렷한 6개 의 회중석 베이(bay)와 1개의 제단 베이 및 오각으로 꺾인 앱스(apse)와 제단 좌우의 제의실로 구성된다. 네이브와 아일 사이에는 목제 주초 위에 벽돌 문양을 칠한 목제 기둥이 줄지어 있다. 네이브와 아일의 상부는 모두 목제 리브(rib)을 가진 배럴 볼트(barrel vault) 천장인데 그 높이 차이가 작아서 실내가 하나의 개방적인 공간으로 느껴진다. 바닥은 마루로 되어 있고, 내부 벽은 프라스터 마감 이며 창 주위에는 외부의 세부처리가 반복되었다.
(2) 예산성당 건물개요















(3) 예산 대동외과병원 의사 최익열






누가 봐도 일본식 건물이라는 느낌이 정확이 전달되는 이 건물은 1920년대 일본 인(이토 공의) 의사가 지은 근대의료시설이다. 해방이후 고 최익열 원장이 매입 해 2000년 별세할 때까지 50여 년 동안 예산군민은 물론,장항선 일대 주민들과 한 시대를 함께 했다. 또한 해방을 전후로 한 근대의 풍경을 그대로 간직하고 있어 ‘분도의 왕자’, ‘분례기’같은 드라마와 영화에도 출연했다.
“지금도 영화를 찍겠다고 사람들이 오는데, 이제 귀찮아서 안 한다고 하지.”
가끔 건축학을 공부하는 사람들이나 일본인들도 찾아와 집안 곳곳을 둘러보고 사진을 찍기도 한다니 그 가치를 아는 이들이 아주 없는 건 아닌가 보다.


한옥을 개조해 꾸민 서울의 동사무실이 유명하다는데, 돈 들여 땅을 사서, 새 건 물을 짓지 말고 예산의 역사를 간직한 이런 건물들을 매입해 공공장소로 활용하 고 주민쉼터로 쓰게 하면 홍보도 되고 좋지 않을까? 혹은 내셔널트러스트 운동이 라도 벌이면?
(4) 순천내과병원 의사 이종대 원장

내과의사인 이종대 씨는 지역사회와 예산발전에 많은 일과 공헌을 한 분이다. 박병선(국회의원 예산초교 24회) 사위의사와 현재는 외손자 박효규(예산초교 51회)까지 박외과병원으로 3대로 이어지고 있다.
(5) 서양화과 김두환 일식주택 화실

(6) 일본인의 절

(7) 회춘당약국 점포주택(마츠야 공간구성)

일본의 전통인 마찌야가옥으로 도시가 재구성되었음을 보여주는 실례라고 볼 수 있다. 마찌야는 좁고 긴 대지에 건축되는 건물은 인접한 토지와의 경계에는 개구 부(창)을 갖지 못하고, 옆집과는 건물을 접하고 있게 되며, 좁은 전면폭을 최대한 이용하도록 건축된 일본주거건축의 전형적인 형태이다. 평면구성에는 미세가 전 면길에 면하며, 그 옆에는 안쪽으로 이어지는 토마(도오리니와)가 있으며, 미세, 차노마, 자시키가 이어진다. 또한 가장 안쪽에 있는 우라니와라고 하는 안쪽 정 원에 면해있다. 인접해 있는 모든 주택들이 일정한 배치형식으로 전면부터 점포 부분, 주거부분, 뒷정원 그리고 창고 등의 부속건물 순으로 배치된다. 뒷정원의 경우 옥내의 주거환경을 확보하기 위해서 자연과 접촉되는 장을 확보하고 있으며, 인접주호들이 똑같은 형태로 정원을 갖고 있기 때문에 사방이 열린 것과 같은 효과를 갖게 된다.
도로 전면에 약국과 점포, 내부로 이어지는 주택으로 설계된 상가주택의 회충당 약방은 현존건물이자 전형적인 일본식 건축물로 마츠야의 공간구성이 본보기가 되고 있다.
(8) 예산극장(전 800여 명 수용한 집회회관)

다년간 현안이던 예산극장기공 오랫동안 예산 시민의 화제가 되어 오던 극장문제는 이제야 해결의 서광을 보게 되었다.
예산읍 김광가 박필래씨는 만여 주민을 포용한 예산 대중의 위안을 제공할만한 집합장소가 없음을 항상 유감으로 생각하여 오던 중 이번에 만여 원이라는 거액 을 던져 예산 유일의 현대식 건축으로 800여명을 수용할만한 예술의 전당을 만 년 반석 위에 세우게 되었는바 동씨의 금번 장거에 일반의 칭송이 자자하다고 한 다.(조선일보 1936년 7월 29일)
(9) 예산여관(일인 전용)

1930년에 준공. 본 여관은 일본인 전용여관으로 1991년 9월 10일에 방영 중이 던 ‘분예기’ 중앙촬영팀이 밤일을 하다가 화재가 발생하여서 전소한 건축물이다.
(10) 예산 미곡창고


예산 미곡창고는 당시의 목구조 건축기술로 2층도 짓기 어려운 시기에 구하기 힘든 건축자재, 장비와 숙련된 기술을 요하는 기능공 부족의 어려운 여건 속에서 도 1922년 경남철도가 천안에서 예산까지 개통되면서 1925년 미곡창고 2개동 약 661제곱미터(200평)가 준공됐다. 그 이후 1개동 약 330제곱미터(100평) 증 축이 1931년 완성된 건축물로, 독특한 형식의 철근콘크리트 벽식구조에 정교한 목조 왕대공 지붕트러스 건축기법을 구사하였다. 미곡창고의 기능에 걸맞은 전· 후면 상하부의 환기창, 지붕의 환기시설 및 벽체 내·외부의 작은 습도조절 환기 구 설치로 전형적인 미곡창고 기능을 충실히 수행할 수 있도록 설계되어 완성되 었다. 1931년 철도개통을 계기로 세워진 예산군 미곡보관 창고건축물은 일제강 점기에 조선의 물자가 수탈되었던 아픈 역사를 간직하고 있는 건축물로, 학술적 인 가치를 지니고 있다.(월간 건축사 Vol.631[2021.11] 살아 숨 쉬는 건축여행 ① 참조)
6. 예산의 근대 도시의 개념
조선 말 예산은 상업도시로 근대도시의 길목 위에 있었으며, 식민시대 이후 기존 의 길과 철도, 도로 등이 개통되면서 상업도시로 성장하게 된다.
조선말 보부상의 중심지역이었으며, 상업활동의 허브를 담당하고 있었던 것이 예산이 발전하게 된 근본 요인이다. 그래서 일제시대에도 자연스럽게 이러한 역 할이 계속 수행되었기 때문이다. 또한, 다른 도시들에 비해 농업기반이 튼튼했기 에, 상업물품이 아닌 농업관련 곡식류에 대한 원활한 거래가 이루어졌다.
그러나 식민도시의 특성상, 철도, 도로, 통신시설, 관청 등은 일본의 전쟁과 식량 공급, 소비지를 만들기 위해서 만들어진 것이기 때문에 이러한 경제흐름의 주역 은 한국인들보다는 일본인들이 대부분이었을 것으로 생각된다. 여기에 한국인들 의 민족자본을 토대로 예산을 중심으로 호서은행이 설립되고, 한국인들의 상점 이 다른 충청권 지역에 비해서 많은 것을 보아 예산은 일제 하 다른 신도시(군산, 목포, 강경, 대전 등)에 비해서 일제에 의해 획일적으로 계획되지 않았다는 것을 예산에 대한 언론보도와 지방유지들의 토론 등을 통해 알 수 있다. 지방유지들이 지금의 도시계획위원회와 같이 통제적 위치에 있었음을 반영하는 것이라고 볼 수 있다.
‘전통한옥도 아니고 일본식으로 지은 집인데, 그게 뭐 그리 대단하냐’고 생각할 수도 있겠지만, 대한민국의 근대역사가 일본의 강점상태에서 진행됐기에 근대문 화는 일본의 영향을 받을 수밖에 없었다는 사실, 따라서 밉고 아프지만 인정하고 보존해야할 우리의 근대문화유산임에 틀림없다.
참고문헌 일제강점기시대 소읍도시 형성과정에 관한 연구
김득수 석사 학위 논문 2003. 8
예산 무한정보 www.yesm.kr 예산 예산성당 2021년도 자료
글. 김득수 Kim, Deuksoo 종합건축사사무소 S.S.P.삼대

김득수 건축사·종합건축사사무소 S.S.P.삼대 대표
영등포구지역건축사회 회장(3회 연속), 서울특별시건축사회 회장 직무대행, 대한건축사협회 이사·감사 등을 역임하고, 대 한건축사협회 50년사 발간위원장을 지냈다. 서울 영등포구, 동작구 건축·민원조정 위원, 에너지관리공단 건축·도시·관광 단지 심의위원 등을 역임했으며, 예산읍 초대 명예읍장으로 위 촉(1997.02.15.~2006.12.03.)된 바 있다. 서울특별시 시장 표창 5회와 대통령 표창(제200398호)을 받았으며, ‘일제시대 소읍도시 형성과정에 관한 연구’, ‘일제강점기 근대도시의 도 시공간 변화 특성에 관한 연구’ 등의 논문을 작성했다.
a01063459567@gmail.com
'아티클 | Article > 연재 | Series' 카테고리의 다른 글
| 인간성 상실의 ‘시대 우화’ <기생충> 2019-.7 (0) | 2022.12.23 |
|---|---|
| AIA Conference on Architecture 2019 June 6-8, Las Vegas : 두 번째 참관하게 된 컨퍼런스 2019.7 (0) | 2022.12.23 |
| [ArchiSalon]문래동 들여다보기 2019.6 (0) | 2022.12.22 |
| BTS! 포스트모더니즘과 60년대 팝을 부활시키다 2019.6 (0) | 2022.12.22 |
| 정신 위에 지은 공간, 한국의 서원 2019.6 (0) | 2022.12.22 |