2023. 1. 16. 09:14ㆍ회원작품 | Projects/Neighborhood Facility
See-through Building

도시와 건축
성수동은 여러 개발 호재들로 많은 사람들이 이주해 넘어 왔고 그만큼 사업성에 기초한 새로운 건축 행위가 활발히 진행되고 있다. 기존 준공업 지역이었던 도시는 각양각색 건축들이 새로이 들어오면서 옛 것과 새 것이 혼재된 복잡한 이미지를 만들어 낸다. 우리를 찾아온 건축주 역시 거주와 동시에 최대의 임대수익을 내는 건축물을 요청했다.
건축물은 개인의 자산이기도 하지만 동시에 도시환경을 조성하는 공적인 역할도 수행한다. 어느 하나 양보할 수 없는 이 두 가지 속성 모두를 만족시킬 수 있는 대안을 찾는 것이 건축사의 소명이라 생각한다. 우리에게는 이 두 가지 속성을 적절히 이어줄 수 있는 장치가 필요했다. 우리가 제안한 건물을 덮는 스킨은 완전히 열린 것도 완전히 닫힌 것도 아니다. 불투명한 이 스킨은 도시 공간과 개인 공간을 모호하게 필터링하면서 서로 대립하지 않는 관계성을 만들어 내는 중재자 역할을 한다.
도심 속 협소 건축
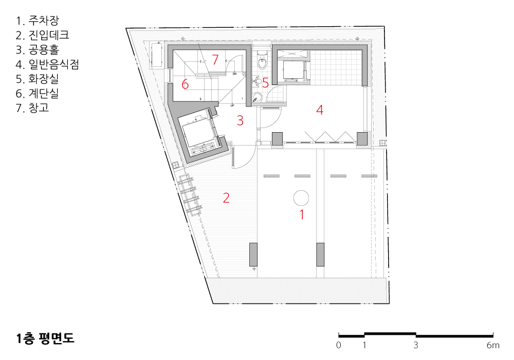
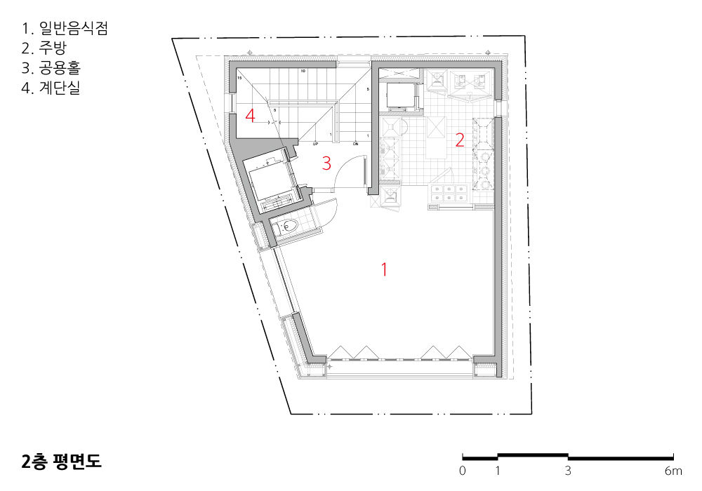
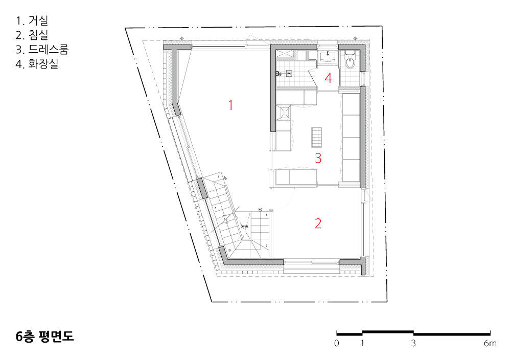
면적이 작은 땅 위에 건축을 하기란 여간 쉬운 일이 아니다. 구조나 설비 문제가 아니라 건축주의 꿈을 담아내기에 허용되는 면적이 너무 작기 때문이다. 협소 건축은 상대적으로 부족한 체적 범위에서 설계를 해야 하므로 다양한 아이디어가 필요하다. 설계하는 치수 하나하나가 전체 건물에 큰 영향을 미친다. 96제곱미터의 대지 위에 올린 이 건축물의 한 개 층 최대 면적은 57.6제곱미터정도인데, 코어 공간(계단실, 엘리베이터)을 제외하면 39.7제곱미터 내외다. 결국 코어 공간의 형태에 따라 전체 건축물이 달라지게 되는 셈이다. 건축주와의 합의를 거쳐 콤팩트하면서 기능이 좋은 코어 형태를 찾는 데 많은 시간을 보냈다.
협소 건축은 매우 디테일한 치수로 설계될 수밖에 없기에 시공 상의 작은 실수 하나가 전체 건물에 큰 영향을 미치기도 한다. 그만큼 설계와 더불어 시공자의 비중이 매우 중요한 작업이다.
사업성과 디자인
상가주택을 지으려는 건축주들 대부분은 실내 바닥 면적을 최대로 만들고자 한다. 사업성을 고려한 건물에서 임대 면적이 곧 돈이라는 생각은 틀린 말이 아니다. 하지만 건축사의 생각이 조금 다른 경우도 있다. 실내 면적과는 상관 없는 특별한 공간이 공간의 가치를 올리는데 기여할 수도 있다는 생각이 그것이다. 우리는 임대 공간에 발코니 같은 외부 공간을 만든 뒤 그 곳에 식재를 두도록 했다. 한 평 남짓한 발코니는 비록 시멘트 블록 스킨에 가려 잘 보이진 않지만, 그 층에서 유일하게 외부와 연결되는 공간이고 동시에 건물 전체에서 꽤 큰 디자인 요소다. 외부 스킨에 슬며시 투영되도록 해 좁고 긴 건축물에 약간의 깊이감이 느껴지도록 했다. 그 곳에 놓인 화분의 식재는 자칫 삭막해 보일 수 있는 입면에 생동감을 부여한다. 실제로 최대 임대 면적이 아닌 이 공간은 최대 임대 면적으로 지어진 주변의 다른 건물보다 높은 임대수익을 올리고 있다.
See-through Building
‘속이 비치는’이란 의미를 가진 이 건물은 4,806개의 시멘트 블록으로 구성된 반투명 스킨이 들쭉날쭉한 건물을 덮고 있다. 가운데가 뚫린 시멘트 블록은 건물과 도시를 막아주는 동시에 이어주는 역할을 한다. 시스루 스킨은 낮에는 자연광을 투과해 건물 내부에 다양한 빛의 효과를 연출하지만, 밤에는 건물 내부의 빛을 산란시켜 도시에 은은한 조명 역할을 한다. 스킨 사이사이에 뚫려있는 조경 공간들은 삭막해질 수 있는 건물의 전체 이미지를 완화하는 장치다. 개인의 가치와 욕구, 도시 경관 등 여러 역할들 사이에서 시스루 스킨은 개인적 공간과 도시적 공간을 은유적으로 이어주는 건축적 장치가 된다.

1. Background
Seongsu-dong has been migrated by many people due to various developments, and new construction activities based on business feasibility have been actively pursued. The city, which was a part of the existing semi-industrial area, has a complex image mixed by old and new as new architectures of various colors come in. The owner requested the maximum rental income at the same time as his residence. The building is an individual property but at the same time plays a public role in creating the urban environment. It is also the architect's issue to find alternatives that can satisfy both of these attributes. We needed a device to properly connect these two attributes and suggested skins to cover the building. The skin we propose is neither fully open nor fully closed. Opaque skins filter the urban space and private space obscurely and serve as mediators to create non-conflicting relationships.
2. See-through Building
This building, which means 'see-through,' covers a translucent skin of 4,806 cue blocks on the structure of a jagged building. The cube block, which is opened in the middle, acts as a bridge between building and city, and at the same time it plays a role. See-through skin transmits natural light during the day and produces various light effects inside the building. At night, it shatters the light from the insid building and plays the role of the city's soft lighting. Between personal value and desire and the city 's landscape role, the see-through skin becomes a architectural device that connects the individual space and the urban space metaphorically. Landscape spaces behind the skins are a device that alleviates the overall building image that can be eroded.







| 시스루 빌딩 설계자 | 정효빈 _ HB건축사사무소 건축주 | 이상진 감리자 | 그리드에이 건축사사무소 시공사 | 건축주 직영 설계팀 | 백경욱 대지위치 | 서울특별시 성동구 왕십리로16가길 22 주요용도 | 단독주택 + 근린생활시설 대지면적 | 96.00㎡ 건축면적 | 55.37㎡ 연면적 | 299.22㎡ 건폐율 | 58.72% 용적률 | 311.69% 규모 | 지상 6층 구조 | 철근콘크리트조 외부마감재 | 시멘트 블록(두라스택), STOCO 내부마감재 | 친환경페인트 설계기간 | 2016. 05 ~ 2016. 12 공사기간 | 2017. 02 ~ 2017. 10 사진 | 정우철, 이준열 전문기술협력 - 구조분야 : 김앤이 구조설계사무소 - 기계설비분야 : 지엠엔지니어링 - 전기분야 : 지엠엔지니어링 - 소방분야 : 지엠엔지니어링 |
See-through Building Architect | Jung, Hyobin_ HB-architects Client | Lee, Sangjin Supervisor | Grid-A Architects Construction | Owner direct control Project team | Baek, Kyungwook Location | 22, Wangsimni-ro 16ga-gil, Seongdong-gu, Seoul, Korea Program | Housing + Commercial Site area | 96.00㎡ Building area | 55.37㎡ Gross floor area | 299.22㎡ Building to land ratio | 58.72% Floor area ratio | 311.69% Building scope | 6F Structure | RC Exterior finishing | Cement Block, STOCO Interior finishing | Eco-friendly paint Design period | 2016. 05 ~ 2016. 12 Construction period | 2017. 02 ~ 2017. 10 Photograph | Jung, Woocheol / Lee, Junyeol Structural engineer | Kim & Lee Structure Mechanical engineer | GM Engineering Electrical engineer | GM Engineering Fire engineer | GM Engineering |

'회원작품 | Projects > Neighborhood Facility' 카테고리의 다른 글
| 옥천군 청산 지역아동센터 2020.8 (0) | 2023.01.18 |
|---|---|
| 카멜레_존 2020.7 (0) | 2023.01.17 |
| TIRA 사옥 2020.5 (0) | 2023.01.13 |
| 댄스빌딩 (0) | 2023.01.12 |
| K823 2020.4 (0) | 2023.01.12 |