2023. 1. 17. 09:12ㆍ회원작품 | Projects/House
La maison devant Soi

우리는 늘 집을 그리워한다. 아침에 출근해서 열심히 일을 하는 중에도 집을 그리워하고, 집을 떠나 머나먼 곳을 돌아다니는 중에도 집을 그리워한다. 어서 집으로 돌아가야겠다고 생각을 한다. 이럴 때 ‘집’이란 물리적인 건축물을 이야기하는 것이 아니라, 사람과 이야기와 온기가 가득 번져있는 추상과 구체적인 공간이 섞인 아주 복합적인 건축물을 이야기한다.
20년 전 사무실을 열고, 종이와 연필과 수채화 물감만 덩그러니 놓여있는 책상에 앉아서 나는 집을 그리기 시작했다. 누구를 위한 집을 그리는 것이 아니라 내가 봤던 집들을 그렸다. 양동마을에 있는 오래된 집도 있었고, 내가 사는 동네에 널려있는 흔한 집들도 그렸다. 내가 특히 즐겨 그렸던 집은 국도를 달리다 만나는, 건축가를 알 수 없는 그냥 시골에 있는 흔한 동네 집들이었다. 그 집에는 아무런 욕심도 없었고 아무런 멋도 없었다. 길가에 들꽃처럼 피어있는 집들을 그리면서 오랫동안 집의 의미에 대해 생각했다. 힘이 들어가지 않고 과시도 없는 집들, 그리고 삶의 긴장이 없는 집들, 그 집들은 욕심 없이 자신을 그려낸 순박한 집이었으며, 나아가서는 무위의 경지에 들어선 집들이었다. 좋은 집이란 그렇게 긴장이 없고 피곤도 없는 그냥 오랫동안 입어서 늘어나고 색이 바란 집안에서 입는 평상복 같이 몸에 편안하게 맞는 공간일 것이다.
사람은 누구나 자기 인생을 산다. 누구도 나의 삶을 대신 살아줄 수 없기 때문이다. 또한 집도 자신에게 맞는 옷을 입듯 자신의 삶이 담긴 공간에서 살아야한다. 그러나 그런 자명한 사실이 현실에서 이루어지기는 쉽지 않다.
나를 그려내고 나를 담은 집이란 무엇일까?
어느 날 산을 좋아한다는 부부가 집을 짓고 싶다고 찾아왔다. 산을 좋아하는 사람들이야 많지만, 삶의 공간을 산과 바로 붙여놓고 살겠다는 사람은 흔치않다. 그들의 이야기를 들어보니 그들의 생활은 아주 단순하고 검박한데, 그들이 집을 짓겠다는 땅은 무척 화려했다.
그 땅은 소백산이 뻗어 내린 중간에 있었는데, 고개를 하나 넘으면 부석사가 있는 곳이었다. 앞과 뒤로 산들이 겹겹이 둘러쳐있었고, 그 안에 화려한 꽃술처럼 솟아있는 땅이었다. 마을과도 일정한 거리가 떨어져 있었고 원래는 사과를 키우는 과수원이었다. 집에 들어갈 내용은 잠을 자고 밥을 먹고 차를 마시는 단순한 일과였고, 나머지의 생활은 산으로, 즉 자연으로 가득 차 있었다.
건축가는 집을 지을 때 사람들이 가지고 오는 여러 가지 욕망을 듣고 그 복잡한 실타래를 엉키지 않게 풀어서 하나의 집을 만드는 일을 한다. 그런데 이 집에는 많은 욕망은 없었고 그냥 소박함 그 자체였다. 거주할 사람의 욕망을 분류하고 재배치하여 공간을 만드는 일에 숙달된 우리의 감각으로, 이런 단순한 프로그램을 풀어나가는 것은 무척 힘든 일이다.
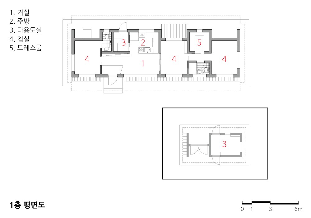
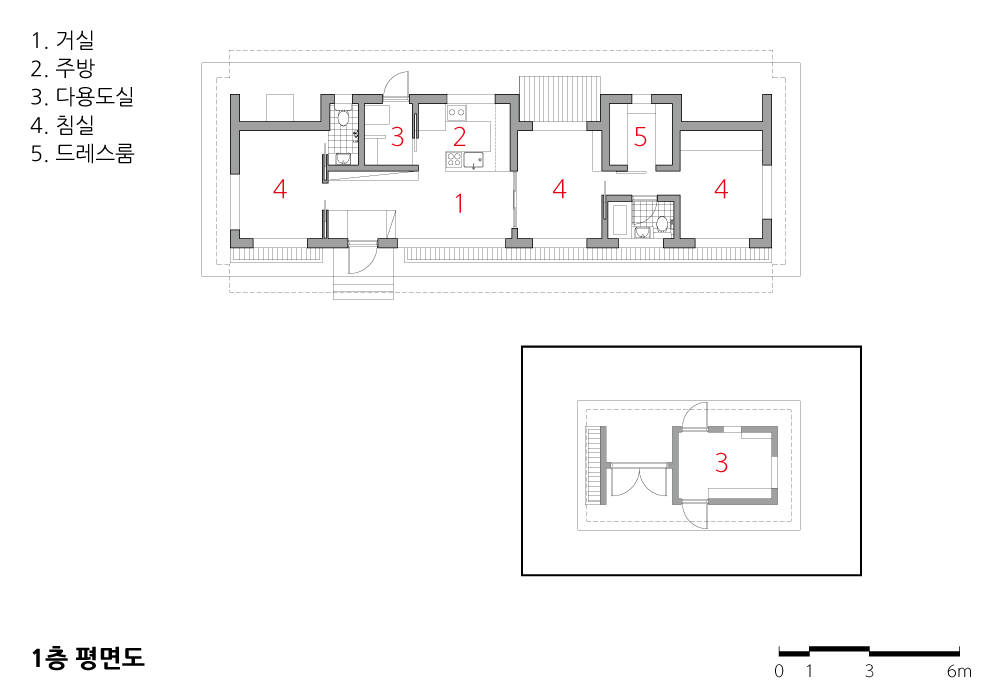
긴 사각형 안에 안방과 손님방을 양쪽 끝에 배치하고 나란히 부엌과 거실을, 그리고 화장실을 넣으니 끝이었다. 남쪽으로는 햇빛과 바람을 가득 담을 수 있는 창을 내고, 그것을 조절할 수 있는 긴 회랑을 덧붙였다. 주로 좌식으로 사용하는 다실에는 낮은 창을 내어 서있거나 앉거나 움직임에 따라 산의 다른 풍경이 집에 담기도록 했다.
나머지는 앞으로 옆으로 뒤로 펼쳐져 있는 산들과 어떤 관계를 만들어 나가야 하는 일이었다. 일자형 단순한 집과 그 앞으로 산의 흐름이 남아있는 마당과 그리고 집을 마주보는 작은 대문채를 하나 놓았을 뿐이다. 대문채는 농사에 필요한 잡다한 도구들을 수납하고, 길과 집터 사이의 여백을 만드는 역할을 한다.
드넓은 바둑판에 두 점의 바둑돌을 얹은 것처럼 집을 놓았다. 다 짓고 그 모습을 보니 내가 오랫동안 그렸던 시골집처럼 편안했고, 산이 집을 꼭 안아주어서 더욱 따뜻한 느낌이 들었다. 단순한 삶을 살고 싶어 하는 집주인도 좋다고 했다.
높고도 깊은 산속에 욕심을 버리고 들어가 살고 싶은 주인을 닮은 집이었다. 그 집은 나와 그곳에 살 사람들이 같이 궁리하며 지었지만, 그들 앞에 놓인 산에 어우러지는 일과 그들 앞에 놓인 생은 살면서 그들이 지어나갈 몫으로 남겨놓았다.

We always long for home. Even when we are outside working, we yearn for our cosy place at home. More so when we are away from home. Our 'house' is not just a physical structure, but rather a very complex architecture that contain people, stories, and warmth. It is a space fused of abstract and specific.
When opened an office Twenty years ago, I sat in front of a desk, empty except paper, pencils and watercolor. Then I began to paint houses. I didn't paint houses for someone, but I painted houses that I had seen. These were images of old houses in Yangdong Village, and other common houses scattered in my neighborhood. The houses I especially liked to paint were just common neighborhood houses in the country running along the national road, with no architect attached. The house had no style to boast. While painting these houses blooming like wild flowers on the side of the road, I reflected the meaning of the house continuously. Houses without pretense that loosened tension in life, were these plain houses, and by extension, these were houses that entered the condition of idleness. An ideal house would be a serene space, like a everyday wear that has been worn for a long time.
People lead their own life. Because no one can live other’s life. Also, a house and its space should reflect the resident’s life, as if it were wearing clothes that fit oneself. However, such self-evident facts are not easy to achieve in reality.
How would we design a house that reflect and take after the resident?
One day, a mountain loving couple visited our office to build a house. There are many who like mountains, but few are willing to live next to a mountain. Their stories suggested that their lives are very simple and frugal. But their land for the house was splendid, almost grand.
The land was in the middle of Sobaek Mountain, a hill away from Buseok Temple. The mountains before and behind were interspersed with layers of mountains, and within them was the land which rose like a splendid flower. It was a distance away from the village and originally had been an apple orchard. The program requested was simple, place for sleeping, eating and drinking tea, and the daily life was filled with hiking, or just being in the nature.
Architects listen to the various desires that people bring and work to make a house by unraveling the intricate threads. But there was not much desire in this house, and it was just simplicity itself. With our usual sense of sorting and rearranging the diverse needs of the residents to create space, it was difficult to get through these simple programs.
We designed a long rectangle, with the main room and guest room placed at both ends and the kitchen and living room placed side by side, finished by placing the bathroom. To the south, we inserted windows that could hold sunlight and wind, and added long corridors that could control the light. For the tea room, which is usually used as a sitting room, we provided a low window. Consequently, the house allows diverse views of the surrounding mountains depending on movement, location and sitting/standing.
For the rest of design, we had to establish relationship with the mountains that lay side to side. Beside a flat, simple house, we designed a yard with a mountain stream ahead of it, and a small gate facing the house. The gate house serves as a storage to stock miscellaneous tools needed for farming and to create an empty space between the road and the house.
We placed the house as if putting two simple stones on a go board. When we finished building, it was as comfortable as the country houses I had painted for a long time, and the mountains hugged house so much so that it felt warmer. Homeowners who want to lead simple lives were glad it showed their identity.
It is a house that resembles the master who wanted to live in the high and deep mountains without pretense. The house was designed by us with the clients, but the work of blending the mountains and the life afterwards is left as their share in future.










| 자기 앞의 집 설계자 | 임형남 _ 건축사사무소 가온건축 건축주 | 황은진, 윤명규 감리자 | 임형남 _ 건축사사무소 가온건축 시공사 | 삼림하우징 설계팀 | 노은주, 이성필, 손성원, 김래연, 이민우 대지위치 | 경상북도 영주시 부석면 주요용도 | 단독주택 대지면적 | 655.00㎡ 건축면적 | 98.64㎡ 연면적 | 98.64㎡ 건폐율 | 15.06% 용적률 | 15.06% 규모 | 지상 1층 구조 | 경량목구조 외부마감재 | 적삼목 널붙임, 아스팔트싱글 지붕 내부마감재 | 벽지, 온돌마루 설계기간 | 2017. 04 – 2017. 07 공사기간 | 2017. 08 – 2018. 01 사진 | 박영채 전문기술협력 - 기계설비분야 : 협신 - 전기분야 : 협신 |
La maison devant Soi Architect | Lim, Hyoungnam _ studio_GAON Client | Hwang, Eunjin / Yoon, Myeonggyu Supervisor | Lim, Hyoungnam _ studio_GAON Construction | Buseok-myeon, Yung joo-si Project team | Roh, Eunjoo / Lee, Sungpil / Son, Seongwon / Kim, Laeyeon / Lee, Minwoo Location | Buseok-myeon, Yeongju-si, Gyeongsangbuk-do, Korea Program | House Site area | 655.00㎡ Building area | 98.64㎡ Gross floor area | 98.64㎡ Building to land ratio | 15.06% Floor area ratio | 15.06% Building scope | 1F Structure | Wood Frame Construction Exterior finishing | Wood siding, Asphalt shingle Interior finishing | Wallpaper, Ondol flooring Design period | Apr. 2017 ~ Jul. 2017 Construction period | Aug. 2017 ~ Jan. 2018 Photograph | Park, Youngchae Mechanical engineer | Hyeop Sin Electrical engineer | Hyeop Sin |

'회원작품 | Projects > House' 카테고리의 다른 글
| 백현동 주택 2020.7 (0) | 2023.01.17 |
|---|---|
| 담담헌(淡淡軒) 2020.7 (0) | 2023.01.17 |
| 삼삼한집 2020.7 (0) | 2023.01.17 |
| 이연재(易然齋) 2020.7 (0) | 2023.01.17 |
| 이유있는가 2020.6 (0) | 2023.01.16 |