2023. 1. 17. 09:17ㆍ회원작품 | Projects/House
Neungdong Small House

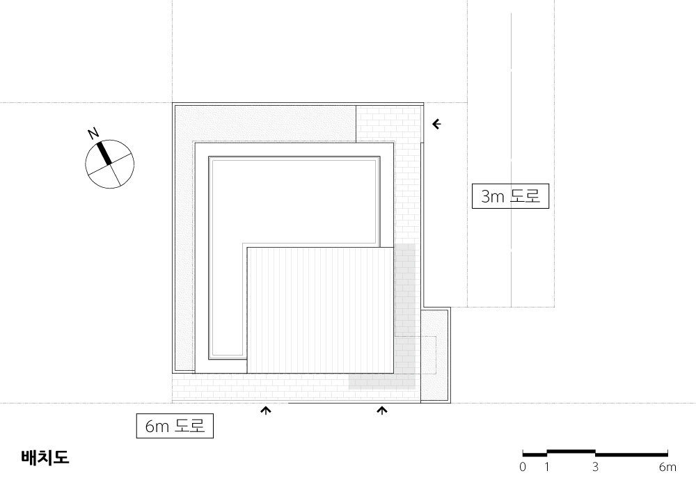
대지
집을 짓는다는 것은 처음 계획부터 매우 예민하고 섬세해야만 하는 작업이다. 신혼부부의 첫 주택이자 마지막이 될 수도 있는 집이기에, 대지의 선택부터 매우 신중해야만 했다. 단독주택에서 대부분의 삶을 보낸 여자와 아파트에서 나고 자란 남자는 데이트를 핑계 삼아 신혼 기간의 대부분을 대지를 찾기 위해 서울 전역을 돌아다니며 보냈다. 아파트 전세금 정도의 예산을 가지고 마음에 드는 대지를 찾는 것은 쉽지 않았지만, 몇 년간의 발품의 노력으로 지금의 동네를 찾게 되었다.
대지 맥락과 조건
6m도로를 중심으로 남측에는 어린이 대공원 담을 마주하고 있고, 주변은 주택들이 많은 조용하고 한적한 동네이다. 남측의 도로는 어린이 대공원의 후문과 북문을 연결하는 보행로의 역할을 하기 때문에 1,2층에는 근린생활시설, 3층과 4층은 부부가 주거하는 공간으로 구성되는 작은집(협소주택)을 만들고자 하였다. 대지의 면적이 크지 않았기에, 각 층별 시설의 면적을 최대한 지키면서, 용도에 따라 분리되어야 하는 공간들을 어떻게 구성하느냐가 중요한 과제였다.
작은 주택의 확장성
작은 집일 수록 변화 가능한 주택이여야 한다. 부부의 주택이기 때문에 가족구성원의 확장도 고려하지 않을 수 없었다. 현재는 신혼부부의 주택으로 계획하여, 4층은 침실로, 3층은 거실과 주방으로 구성하고, 차후에는 2층의 근린생활 시설을 추후 주택용도로 변경할 수 있도록 설계하였다. 4인 가족이 되었을 때, 2층은 부부침실로, 3층은 거실과 주방으로, 4층은 아이들의 침실로 바뀔 수 있는 가능성을 가진 주택이 된다.
풍경에 담는 입면
내부에서 계절을 느낄 수 있다는 것은 풍요로운 공간을 만드는데 가장 큰 요소이다. 대공원의 자연적 요소를 건축공간에서 충분히 느낄 수 있도록 적재적소에 알맞은 창을 열어두었다. 인접한 주택들과 시야가 겹치지 않도록 입면을 구성하여, 창이 열릴 수 있는 곳을 극대화하여 활용하고, 생활이 보호되어야 할 곳은 최대한 가림으로써, 내부에서는 계절 풍경이 보이고, 외부에서는 다채로운 입면이 될 수 있도록 하였다.
수직동선의 고민
작은 대지에 다른 용도의 시설들이 함께 들어설수록, 공용부에 대한 고민이 필수적이다. 최소한의 면적으로 최대한의 분리효과를 내야하기 때문이다. 1층의 주차장과 근린생활시설(소매)은 다중의 접근이 필요하도록 개방적으로 구성하고, 2층 근린생활시설(업무시설)과 3,4층의 주택은 조금은 폐쇄적으로 구성하여, 대지경계에 담이 있지 않아도 공간적인 분리가 될 수 있도록 하였다.

Site
Building a house is a sensitive and delicate work from the early stage of planning. We had to carefully choose a site from the beginning as it might be the first and the last house for the newlyweds. One of them spent most of her life in a single-family detached house. The other was born and has grown up in a typical apartment environment. They have gone out on during early their marriage, although finding a place to live was the actual purpose. It wasn't easy to find a desirable spot with a budget that can afford to pay a deposit for an apartment, but thanks to several years of hard efforts, they found this neighborhood.
Land Context & Conditions
Around a 6-meter road, the south side of this area faces Seoul Children's Grand Park, and the surrounding neighborhood is quiet and secluded together with many houses. Since the street on the south serves as a pedestrian path connecting the back gate and the north gate of the Children's Grand Park, the first and second floors are neighborhood living facilities and the third and fourth floors to be the couple's residential spaces. Because the site is not large, it was an important task to design a space for its intended use, while keeping the area of each floor's facility as much as possible.
Small House's Scalability
The smaller the house, the more changeable it should be. As it is a couple's house, we also needed to consider the expansion of family members. It is the newlyweds' house for now with a bedroom on the fourth floor and a living room and a kitchen on the third floor, but we designed it able to change neighborhood living facilities to be housing from a long-term perspective. For a family of four, this house can change the second floor to be a couple's bedroom, the third floor to be a living room and a kitchen, and the fourth floor to their children's bedrooms.
Elevation with Scenery
Being able to feel seasons from the inside is one of the most significant factors in creating a comfortable space. To fully grasp the natural elements of Children's Grand Park in the architectural space, appropriate windows opened to the right place. We composed the elevation to have the views that don't overlap with the neighboring houses and the windows that could open wide. Through protecting privacy where it is necessary, the family can enjoy seasonal landscapes from the inside. From the outside, the outside presents a colorful impression.
Worried About Vertical Movement
As different purposes of facilities gathered on a small land, and we have to consider common use spaces. This is because we have to achieve maximum separation effect at the minimum area. The parking lot and the neighborhood living facility (retail shop) on the first floor were open to allow multiple access. The neighborhood living facility (office facility) on the 2nd floor and houses on the 3rd and 4th floors constructed slightly closed so that they could be separated spatially without installing a fence at the site's boundary.








| 능동 작은집 설계자 | 이선재 _ 건축사사무소 그리드 건축주 | 심주아 감리자 | 이선재 _ 건축사사무소 그리드 시공사 | 건축주 직영공사 설계팀 | 이민재 대지위치 | 서울특별시 광진구 천호대로 124길 66 주요용도 | 단독주택 대지면적 | 92.70㎡ 건축면적 | 45.26㎡ 연면적 | 130.22㎡ 건폐율 | 55.62% 용적률 | 140.48% 규모 | 지상 4층 구조 | 철근콘크리트조 외부마감재 | 치장벽돌(두라스텍), 노출콘크리트, 투명 로이 삼중유리 내부마감재 | 친환경수성페인트, 강마루 설계기간 | 2018. 05 ~ 2018. 09 공사기간 | 2018. 12 ~ 2019. 08 사진 | 스튜디오 조재 전문기술협력 - 구조분야 : 드림구조 - 기계설비분야 : 건창엔지니어링 - 전기분야 : 건창엔지니어링 - 소방분야 : 건창엔지니어링 |
Neungdong Small House Architect | Lee, Sunjae _ Architects group GriD Client | Sim, Jua Supervisor | Lee, Sunjae _ Architects group GriD Construction | Owner direct control Project team | Lee, Minjae Location | 66, Cheonho-daero 124-gil, Gwangjin-gu, Seoul, Korea Program | House Site area | 92.70㎡ Building area | 45.26㎡ Gross floor area | 130.22㎡ Building to land ratio | 55.62% Floor area ratio | 140.48% Building scope | 4F Structure | RC Exterior finishing | Brick, Exposed concrete, LOW-E clear triple glass Interior finishing | Eco-friendly water paint, Gangmaru Design period | May 2018 ~ Sep. 2018 Construction period | Dec. 2018 ~ Aug. 2019 Photograph | Studio Jojae Structural engineer | Dream Structural Mechanical engineer | Gunchang Engineering Electrical engineer | Gunchang Engineering Fire engineer | Gunchang Engineering |

'회원작품 | Projects > House' 카테고리의 다른 글
| 어쩌다이웃@두동 2020.8 (0) | 2023.01.18 |
|---|---|
| 해뭍제 2020.8 (0) | 2023.01.18 |
| 시흥 당근집 2020.7 (0) | 2023.01.17 |
| 백현동 주택 2020.7 (0) | 2023.01.17 |
| 담담헌(淡淡軒) 2020.7 (0) | 2023.01.17 |