2023. 1. 18. 09:18ㆍ회원작품 | Projects/House
Eojjeoda Neighbor@Dudong

자연과 일상을 조우하며 스며들다. 
‘좋은 집’이란 무엇일까? 
그 집에서 살아갈 이들이 수십 년 동안 머릿속에 조금씩 파편처럼 그려오던 꿈을 하나의 강직한 물리적 실체로 눈앞에 펼쳐주고, 세월이 지난 후에 우연히 만나 따뜻한 미소로 이후에 쌓인 소중한 삶의 이야기를 들을 수 있다면 어떨까? 이를 위해서 건축가의 욕망을 누르고 건축주의 바램을 물리적으로 현존하게 하고, 그 물리적 실체 사이를 사는 이들이 시간의 때가 묻은 삶의 궤적들로 채워나가는 집이 ‘내’가 믿고 욕망하는 ‘좋은 집’이다. 건축가의 이러한 욕심을 담아내기 위해 건축주 가족의 소망에 귀를 기울이고, 자연을 조응하며 소소한 일상과 풍경, 햇살을 담고자 하였다. 겉에서 보이는 것 뿐만 아니라 집 안에서도 느슨하게 자연과 하나 되어진 풍경을 만들고자 하였으며, 이렇게 배치에 대한, 공간의 쓰임새에 대한, 형태와 재료에 대한 그리고 창에 대한 고민들이 시작되었다. 
현재 적잖은 사람들이 하루 머무를 ‘거처’를 고민하는 것을 생각하기에 ‘거처’보다 많은 의미를 담고 있는 ‘주거’를 얘기하는 것이 사치일 수도 있겠다. 이웃 간에 음식을 나누어 먹고 함께 모여 김장을 하며 삶을 나누는 일이 당연시 여겨지던 시절이 있었다. 요즘처럼 현관문을 꼭꼭 잠그고 사는 현대의 삶과는 머나먼 얘기처럼 들릴 수 있다. 그럼에도 불구하고 질적으로 성숙해져가는 사회에서 '가치있는 삶'이라는 관점을 견지한 ‘주거’ 의 의미에 대한 성찰이 필요하다. 즉, '교환가치'로써의 '주택'이 아니라 '사용가치'로써의 ‘주거’에 대한 고민이 필요하다고 할 수 있겠다. 
이러한 고민을 바탕으로 최근 유연한 관계성과 작은 공유에 대한 건축지향점을 담은 “어쩌다이웃”을 완공하였으며, 그 이웃들과 함께 살면서 주거에서의 건강한 삶의 가치를 실험해 보고 있다. 현재는 그 인접대지에 ‘아홉 번째 이웃’의 집을 설계 중이다. “어쩌다이웃”은 지극히 사적인 주거공간을 최소 혹은 최대한 보장하면서도 ‘마당, 풍경, 사랑방, 관계 등”을 공유하며 '대지경계선'에 한정된 '물리적 울타리'가 아니라 '이웃'이라는 '비가시적 울타리' 속에서 함께 살아가는 건강한 삶을 담고자 하였다. 
이러한 건축주들의 변화된 주거의 욕구과 건축가의 작은 건축적 노력을 통해 이웃 간 단절되어져 가는 현대 사회에 새로운 주거문화의 단초를 던저보고자 하였다.

Permeate by encountering the nature and daily life. 
What is a 'good house'? 
  
What if you can present one's dream house in front of them who has been picturing little by little like fragments in their heads for decades, and many years later, you can meet them by chance and hear the happy story of their precious lives afterward? 
For this, the 'good house,' which 'I' believe and desire, includes a house that suppresses an architect's appetite, enables the realization of the owner's wish physically, and makes those who live between the physical entities fill the trajectories of time-stained life.   
To capture such a desire as an architect, I intended to listen to the wishes of the owner's family, be in harmony with nature, and embrace the small rounds of daily life, scenery, and sunshine. 
I tried to create the landscapes that were not only seen from outside but also loosely unified with nature inside a house. Accordingly, I began to thoroughly contemplate the placement, the utilization of space, the shape and materials, and the windows. 
It may be a luxurious thought to speak about the 'housing' that contains more implications than the 'inhabitancy' under the situation that some people are still looking for 'staying place' for even a day.  
There was a time when sharing foods with neighbors, gathering together to prepare for kimchi for winter, and sharing each family's life with others were taken for granted.  
It may sound like a quite distant story from modern life that lives indifferent to each other by locking doors tightly.  
Nevertheless, it is necessary to introspect the implication of 'housing' sticking to the perspective of 'valued life' in a society that is mature qualitatively.  
In other words, it is necessary to deeply think about 'housing' as a 'value of use' rather than a 'house' as an 'exchange value.' 
Based on these concerns, I recently completed the construction of “Neighbor by Chance,” which involves an architectural orientation point for flexible relationships and small sharing. I am living with the neighbors to experiment with the value of healthy living in the housing. Currently, the ninth neighbor’s house is being designed on the adjacent land. 
The “Neighbor by Chance” intended to contain a healthy life that is living together within a ‘non-visual fence’ called a ‘neighbor,’ rather than ‘physical fence’ limited to a ‘boundary line for land’ with guaranteeing extremely private dwelling space in either minimum or maximum level and sharing ‘yard, scenery, reception room or relationship, etc..’ 
Through varied desires of owners on housing and small architectural efforts of architects, I intended to offer a motive for the new residential culture to the modern society, which is being severed from the neighbors.









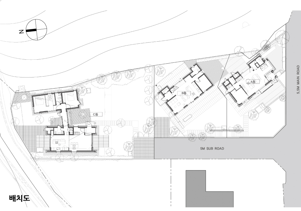
| 어쩌다이웃@두동 설계자 | 김성준_(주)건축사사무소 위(WEE) 건축주 | A동 _ 조자영 / B동 _ 이리나 / C동 _ 노상득 감리자 | 김성준 _ (주)건축사사무소 위 시공사 | 이주형 _ (주)아이엔건설 설계팀 | 김휘원, 전행아, 강은엽, 송주연, 주정영, 채우리 대지위치 | 울산광역시 울주군 두동면 이전천변길 주요용도 | A동 _ 단독주택+근생 / B동 _ 단독주택 / C동 _ 단독주택 대지면적 | A동 _ 305.00㎡ / B동 _ 305.00㎡ / C동 _ 586.00㎡ 건축면적 | A동 _ 60.96㎡ / B동 _ 60.93㎡ / C동 _ 109.81㎡ 연면적 | A동 _ 210.29㎡ / B동 _ 121.86㎡ / C동 _ 99.81㎡ 건폐율 | A동 _ 19.99% / B동 _ 19.98% / C동 _ 18.74% 용적률 | A동 _ 39.76% / B동 _ 39.95% / C동 _ 17.03% 규모 | A동 _ 지하 1층, 지상 2층 / B동 _ 지상 2층 / C동 _ 지상 1층 구조 | 철근콘크리트조 외부마감재 | 청고벽돌, 외단열시스템 내부마감재 | 친환경 페인트(티쿠릴라) 설계기간 | 2015. 07 ~ 2016. 01 공사기간 | 2016. 01 ~ 2016. 07 사진 | 김휘원, 김성준 구조분야 : 은구조 | Eojjeoda Neighbor@Dudong Architect | Kim, Sungjun_ Architects Office WEE Client | A _ Cho, Jayoung / B _ Lee, Rina) / C _ Noh Sangdeuk Supervisor | Kin, Sungjun _ Architects Office WEE Construction | Lee, Juhyeong _ IN Construction Project team | Kim, Hwiwon / Jeon, Haenga / Kang Eunyeop / Song, Juyeon / Ju, Jeongyeong / Chae, Uri Location | Ijeoncheonbyeon-gil, Dudong-myeon, Ulju-gun, Ulsan-si, Korea Program | A _ House + Studio / B _ House / C _ House Site area | A _ 305.00㎡ / B _ 305.00㎡ / C _ 586.00㎡ Building area | A _ 60.96㎡ / B _ 60.93㎡ / C _ 109.81㎡ Gross floor area | A _ 210.29㎡ / B _ 121.86㎡ / C _ 99.81㎡ Building to land ratio | A _ 19.99% / B _ 19.98% / C _ 18.74% Floor area ratio | A _ 39.76% / B _ 39.95% / C _ 17.03% Building scope | A _ B1F-2F / B _ 2F / C _ 1F Structure | RC Exterior finishing | Embellishment brick, External insulation system Interior finishing | Eco-friendly paint(Tikkurila) Design period | 2015. 07 ~ 2016. 01 Construction period | 2016. 01 ~ 2016. 07 Photograph | Kim, Hwiwon / Kim, Sungjun Structural engineer | Eun structure | 

어쩌다이웃@두동 김성준 건축사
사무소 (주)건축사사무소 위(WEE) _ 울산광역시 울주군 두동면 이전천변길 87-30 
Tel. 052-900-3066 · Fax. 052-970-3066 · www.archiwee.com / www.archilab-doma.com 
서울 한강변에서 태어나 유년시절부터 줄곧 북한산 기슭에 살고 있으며, 국민대학교와 연세대학교에서 건축을 전공하고 동 대학원 실내건축과에서 박사과정을 이수했다. (주)위가건축에서 건축과 인테리어 실무를 익혔고, (주)건축사사무소 SAAI에는 2012년에 합류하여 공동대표로서 작업을 함께 파트너들과 진행하다가, 건축연구소d.o.m.a를 설립하여 현재는 (주)건축사사무소 위(WEE)의 공동대표로서 파트너와 함께 건축작업을 진행 중이다. 또한 울산대학교에서 학생들과 소통하고 있으며, 연세대학교 및 HSAd 등 기업들과 협업과 자문 등을 병행하고 있다. 자주 떠나는 건축여행에서 그 지역의 고유한 지역성과 관계성 그리고 로컬음식에 관심이 많은 그는 작업에서도 맛있고 건강한 건축을 추구한다.
'회원작품 | Projects > House' 카테고리의 다른 글
| 아우트 라우드 2020.9 (0) | 2023.01.19 | 
|---|---|
| 무디디 2020.9 (0) | 2023.01.19 | 
| 해뭍제 2020.8 (0) | 2023.01.18 | 
| 능동 작은집 2020.7 (0) | 2023.01.17 | 
| 시흥 당근집 2020.7 (0) | 2023.01.17 |