2023. 1. 19. 09:11ㆍ회원작품 | Projects/House
Mudidi

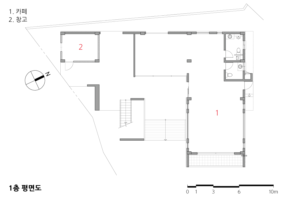
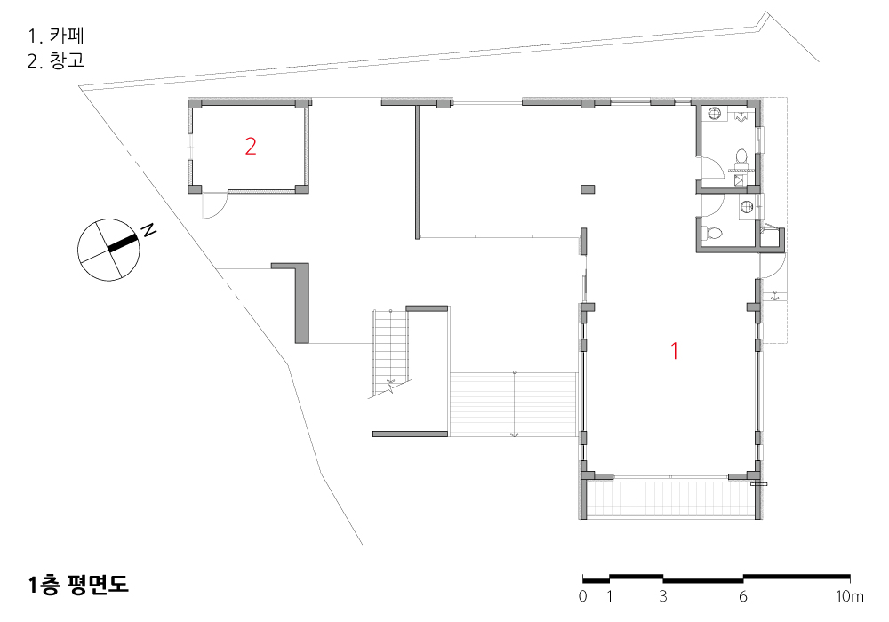
마을 끝자락에 위치한 대지는 마을 초입보다 높은 지대에 위치해 있으며, 뒤편으로 대나무 숲과 대비되는 하얀색 외관으로 인해 멀리에서도 한눈에 띈다. 또한 진입부분에는 조경공간을 조성해 건축물과 자연이 어우러진 느낌을 준다.
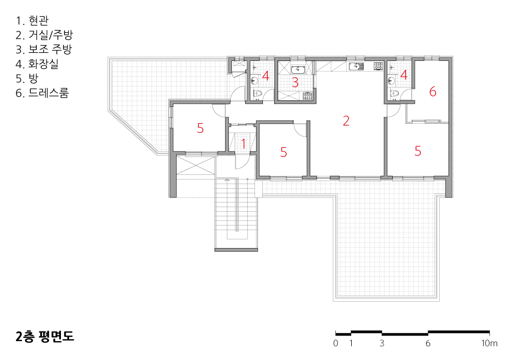
1층의 용도는 휴게음식점이며, 2층의 용도는 단독주택으로 외부 계단을 이용해 연결이 되어있다. 이 외부 계단은 구조적인 미를 갖추면서 단독주택의 영역성을 확보하고자 하였다.
1층은 휴게음식점의 용도로서 건축주의 의견을 반영하여 커다란 통창을 배치해 대지 진입부분에 조경공간을 실내에서도 감상할 수 있다. 2층은 주거지로서 두 개의 테라스를 형성하여 단독주택이 가지는 마당의 장점을 이용할 수 있도록 고려하였다. 외관은 두 개의 상자가 겹쳐진 듯한 매스감을 주었으며, 전체적으로 하얀 색상의 스톤 코트 마감재를 사용하여 깔끔하고 모던한 느낌을 주도록 하였고 돌출부의 한 면은 어두운 색상을 선택해 포인트가 될 수 있게 하였다.

The site located at the end of the village is located higher than the entrance of the village, and the white exterior that contrasts with the bamboo forest behind it stands out from a distance. In addition, a landscaping space is created at the entrance to give a feeling of harmony between architecture and nature.
The first floor is used as a rest restaurant, and the second floor is a detached house, which is connected using an external staircase. This external staircase was intended to secure the territoriality of a detached house while having a structural beauty.
The first floor is used as a rest restaurant, reflecting the opinion of the owner, and a large window is arranged so that you can enjoy the landscape space indoors at the entrance to the site. On the second floor, two terraces were formed as residential areas, so that the advantages of the yard of a detached house could be used. The exterior gave a sense of mass as if two boxes were overlapped, and the whole white stone coat finish was used to give a clean and modern feeling, and one side of the protrusion was made to be a point by choosing a dark color.









| 무디디 설계자 | 박형갑_건축사사무소 토형 건축주 | 탁현이 감리자 | 최순윤 _ (주)평화엔지니어링 건축사사무소 시공사 | 임관락 설계팀 | 김소현, 최선경 대지위치 | 광주광역시 남구 수춘안길 9(양과동) 주요용도 | 단독주택/휴게음식점 대지면적 | 906.16㎡ 건축면적 | 233.77㎡ 연면적 | 244.15㎡ 건폐율 | 25.80% 용적률 | 26.94% 규모 | 지상 2층 구조 | 철근콘크리트조 외부마감재 | 스톤코트 내부마감재 | 실크벽지, 수성페인트 설계기간 | 2018. 09 ~ 2018. 10 공사기간 | 2018. 11 ~ 2019. 03 사진 | 탁환일 기계설비분야 : (주)하늘천 전기분야 : (주)하늘천 소방분야 : (주)하늘천 |
Mudidi Architect | Park, Hyounggap_Architect Engineers Tohyung Client | Tak, Hyeone Supervisor | Choi, Soonyoun _ Pyung Hwa Engineering Architects Construction | Im, Gwanlag Project team | Kim, Sohyun / Choi, Sunkyung Location | 9, Suchunan-gil, Nam-gu, Gwangju, Korea Program | House / Rest restaurant Site area | 906.16㎡ Building area | 233.77㎡ Gross floor area | 244.15㎡ Building to land ratio | 25.80% Floor area ratio | 26.94% Building scope | 2F Structure | RC Exterior finishing | Stone coat Interior finishing | Silk wallpaper, Water paint Design period | Sep. 2018 ~ Oct. 2018 Construction period | Nov. 2018 ~ Mar. 2019 Photograph | Tak, Hwanil Mechanical engineer | Hanuelcheon Electrical engineer | Hanuelcheon Fire engineer | Hanuelcheon |

'회원작품 | Projects > House' 카테고리의 다른 글
| 진화산방 2023.1 (0) | 2023.01.19 |
|---|---|
| 아우트 라우드 2020.9 (0) | 2023.01.19 |
| 어쩌다이웃@두동 2020.8 (0) | 2023.01.18 |
| 해뭍제 2020.8 (0) | 2023.01.18 |
| 능동 작은집 2020.7 (0) | 2023.01.17 |