2023. 1. 19. 21:23ㆍ회원작품 | Projects/House
Jin-hwa mountain Cottage

양수리를 좋아하는 부부는 시간이 날 때마다 댕댕이(개)와 생태공원을 찾았다. 공원을 한 바퀴 산책하고는 가끔 투닷에 들러 커피를 마시고 가곤 했다. 늘 양수리에 집을 짓고 살고 싶다는 얘기를 했고, 가끔 고향인 울산 얘기를 하며 선산이 있는 땅의 관리를 걱정하는 말을 그냥 하는 푸념 정도로만 생각하며 정만 나누고 지냈더랬다. 양수리에 짓고 싶다던 집이 울산에 지어질지는 건축주나 우리나 그때는 몰랐었다.
양수리 땅의 인연은 좀처럼 찾아오지 않았고, 자꾸 의도치 않게 울산의 땅이 엮이는 상황이 전개되었다. 결국은 그렇게 그들이 바라던 집의 위치는 울산으로 결정되었고, 늘 거주하기를 바라던 집에서 한시적인 머무름에 만족해야 하는 처지가 되었다. 집 지을 땅을 구하고, 집을 짓는 것은 노력이나 의지만으로 되지 않음을 또 한 번 확인한 프로젝트가 은편리 주말주택 ‘진화산방’이었다.
‘진화산방.’
건축주가 조심스레 꺼낸 이름에서 집이 존재하는 의미는 바로 드러났다. ‘산방’에선 집이 고졸하기를 바라는 마음을 읽었고, 건축주 부모님의 이름 한 글자씩을 따온 ‘진화’에서는 부모님과 함께였던 유년의 추억이 이 집을 통해 가족들에게 공유되길 기대하는 마음을 엿볼 수 있었다.
경사진 땅은 고점을 기준으로 평탄화된 터라 낮은 쪽에선 3미터가 넘는 콘크리트 축대가 형성되어 있다. 땅을 들어올리기 위해 쓰인 콘크리트 옹벽을 보면 거부감부터 들고는 했는데, 이 옹벽을 첫 대면하고는 여기서부터 시작할 수 있겠다는 묘한 기대감이 들었다. 들어올려졌다기보다는 자연스레 솟아오른 것 같은 이 땅의 모습에서, 집이 자라난 것처럼 보이게 하고 싶었다. 축대와 집이 원래 한 몸인 양 읽혔으면 좋겠다는 생각이 들었다. 집이 태생적(주말주택)으로 클 필요가 없는 조건에서 위와 같은 인상을 만들기 위해서는 특별한 전략이 필요했다.
건축주 가족에겐 이곳이 은신처가 될 것이라 했다. 더해서 400킬로미터를 달려올 만큼 특별한 것이 이 집에 존재하길 기대했다. 그 특별함은 집 안이 아닌 집 밖에, 건축주의 기억 속에 이미 존재하고 있다고 보았다. 나고 자라며 늘 눈앞에 존재하던 국수봉 자락, 펼쳐진 능선이 그랬다. 그 풍경을 그저 바라보고 액자처럼 창으로 고정시키는 것에서 더 나아가, 생활의 모습을 겹치고 정돈된 자연을 더해서 삭혀내고 싶었다. 발효된 풍경이 이 가족에게 특별한 기억으로 남길 기대했다.
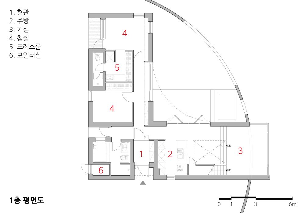
그래서 L자 형태의 작은 집에 반원의 가벽으로 마당을 한정했다. 반원의 콘크리트 가벽은 기존 콘크리트 축대와 집을 연결시키는 장치이자 가족만의 내밀한 마당을 제공한다. 바라던 은신처이다. 마당에는 야외 욕조가 있고 나무 한 그루가 그림자로 벽에 그림을 새긴다. 국수봉의 펼쳐진 능선을 잘 담아낼 위치에 가벽을 뚫고 가벽 너머의 산과 마당과 집안의 윈도우시트를 겹치게 했다. 생활의 모습과 풍경이 잘 섞이고 삭아서 발효된 풍경, 무르익은 장소로서 의미를 가지길 바라본다.
집의 뒤편은 선산과 맞닿아 있다. 조상의 묘가 있고 수십 그루의 감나무가 있다. 선산의 숲이 그대로 집으로 흐른다. 그래서 숲과 마주한 후정은 나무를 좋아하는 안주인의 장소다. 살며 좋아하는 나무를 채워갈 수 있도록 지금은 비워두고, 방해받지 않고 홀로 차 한 잔 즐길 만한 데크와 큐블럭 담장을 두어 안온한 그녀만의 장소를 마련했다.
낮고 작은 집이라 가족의 중심 공간이 될 다이닝과 거실 공간만큼은 체적을 키웠다. 2층까지 비워진 공간에 쪼개진 빛을 들여 벽에 새기니 순백의 공간에 활기가 돈다. 거실의 북동쪽 면은 전체가 창이다. 국수봉을 눈앞까지 끌고 오지만 향 덕분에 직사광선의 영향은 적어 편안한 빛을 들인다.
잠깐의 머무름이겠지만 가족이 이 집에서 평화롭기를 기대했다. 평화로운 쉼 속에서도 가족의 추억이 진하게 쌓이고 삭아 기억되었으면 더할 나위 없겠다.

The couple who love Yangsu-ri where we reside used to visit the eco park with their dog whenever time allowed. After strolling through the park, they would occasionally stop by our office for a cup of coffee. They always said that they wanted to build a house and live in Yangsu-ri and sometimes talked about their hometown in Ulsan where their ancestral mountain is located. We never knew they would finally have a house in that mountain.
“Jin-Hwa Mountain Cottage” was the name of the project the client carefully came up with and the name clearly showed their intention. In Mountain Cottage, we read the client’s wish that the house be humble. In Jin-Hwa which is a combination of one syllable from each of his parents’ names, we read his desire to rejuvenate his childhood memory with his parents.
The inclined land is flattened based on the highest point of the site, resulting in 3m high concrete retaining walls on the lower side. Most of the time we do not prefer such a landscape but this time, we felt that this could be a starting point of our design. We wanted to design a house that looks like it grew up naturally from the land and worked on a design that the retaining walls and the house are read as one entity. We sought for a special strategy to create such an impression under the condition that the weekend house did not need to be large.
We told the client that the house would be a refuge for the family. Additionally, we expected them to experience something unique enough to travel 400km from their main house. We believed that the uniqueness already existed outside the house, not inside. We did not only frame the ridgeline of the mountains that the client observed growing up but also blended and overlapped the layers of their living and the organized nature as we called this “fermentation” process. We expected the fermented scenery to remain as a special reminiscence to the family.
Therefore, we contained the yard within a rough semi-circular wall with an L-shaped small house. The semi-circular concrete wall is a device that connects the existing concrete retaining walls to the house and provides a family's own private yard, which is a hideout we hoped for.
In the yard are an outdoor Jacuzzi and a tree that engraves its shadow onto the rough concrete wall. We opened part of the wall to capture the unfolded ridgeline of the distant mountain and overlapped the mountains, the yard, and the window seat inside the house. The design intention is that the site is bestowed a meaning as a “fermented” place by blending the occupants’ lives, the existing landscape, and the fermented landscape.
The back of the house abuts against ancestral mountain. The graves of the client’s ancestors sit and dozens of persimmon trees stand there. The forest of the mountain flows into the home. Thus, the backyard facing the forest is designed for the client’s wife who loves trees. In order for her to fill the space with her favorite trees, we intentionally left it empty and designed an undisturbed wood-decked space contained it in open block walls where she can relax with a cup of tea.
Since the house is small and low, we tried to expand the volume of the living room and dining room which are the central space for the family. The high ceiling elicits shattered daylight through the wooden louvers and brightens up the space.
It may be a short stay in a weekend house, but we expected the family to stay peacefully in the house. Even in the peaceful stay, we hope that the family’s fermented memories are accumulated and cherished.








| 진화산방 설계자 | 조병규 _ (주)투닷건축사사무소 건축주 | 서유진 감리자 | 조병규 _ (주)투닷건축사사무소 시공사 | 손무수 _ 아주건축 설계팀 | 모승민, 천철규, 소정호, 이재준, 심건규 설계의도 구현 | 조병규 _ (주)투닷건축사사무소 대지위치 | 울산광역시 울주군 두동면 두동로 723-26 주요용도 | 단독주택 대지면적 | 579.00㎡ 건축면적 | 104.68㎡ 연면적 | 117.47㎡ 건폐율 | 18.08% 용적률 | 20.29% 규모 | 2F 구조 | 철근콘크리트구조 외부마감재 | STO외단열 시스템(기린건장) 내부마감재 | 포세린타일, 강마루, 도장 설계기간 | 2020. 12 - 2021. 04 공사기간 | 2021. 07 – 2022. 04 사진 | 최진보 구조분야 : 델타구조 기계설비분야 : (주)한빛안전기술단 전기분야 :(주)천일엠이씨 소방분야 : (주)천일엠이씨 |
Jin-hwa mountain Cottage Architect | Cho, Byung Kyu _ TODOT Architects and Partners Client | Seo, Yujin Supervisor | Cho, Byung Kyu _ TODOT Architects and Partners Construction | Son, Musu _ Aju Architecture Project team | Mo, Seung Min / Chris Cheon / So, Jungho / Lee, Jaejun / Shim, Keonkyu Design intention realization | Cho, Byung Kyu _ TODOT Architects and Partners Location | 723-26, Dudong-ro, Dudong-myeon, Ulju-gun, Ulsan, Korea Program | House Site area | 579.00㎡ Building area | 104.68㎡ Gross floor area | 117.47㎡ Building to land ratio | 18.08% Floor area ratio | 20.29% Building scope | 2F Structure | RC Exterior finishing | STO Interior finishing | Porcelain Tile, laminated wood floor, Water based Paint Design period | Dec. 2020 - Apr. 2021 Construction period | Jul. 2021 - Apr. 2022 Photograph | Jinbo Choi Structural engineer | Delta Structure Mechanical engineer | Hanbit Safety Technology Group Electrical engineer | Chunil MEC Fire engineer | Chunil MEC |
'회원작품 | Projects > House' 카테고리의 다른 글
| 하동 묵계리 주택 2023.1 (0) | 2023.01.20 |
|---|---|
| CLT 주택 하우징플랜 2023.1 (0) | 2023.01.20 |
| 아우트 라우드 2020.9 (0) | 2023.01.19 |
| 무디디 2020.9 (0) | 2023.01.19 |
| 어쩌다이웃@두동 2020.8 (0) | 2023.01.18 |
