2023. 1. 20. 17:19ㆍ회원작품 | Projects/House
Hadong Mukgye-ri House

하동 묵계리 단독주택 프로젝트는 특이하게 나를 도와주는 공동대표의 고향집 주택설계로서, 쉬운 듯하지만 결코 쉽지 않은 프로젝트였다. “나보다 남은 가족들을 화목을 위해서 만들어달라.” 단순 명료한 건축주의 바람이지만 함축된 의미는 매우 크다 보니 설계를 진행한 건축사로서 다시 한번 건축설계에 임하는 자세를 돌아보게 한 프로젝트이다.
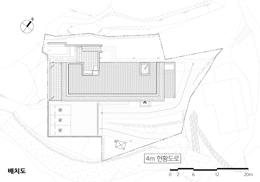
대지 및 배치
본 단독주택은 하동군 지리산 국립공원 내 청학동 아래 아주 오래된 시골 마을에 위치한다. 많은 현지 주민들이 도심으로 이주하고, 현재 귀촌한 사람들을 포함해 5~8집 정도가 있는 작은 마을이다. 그렇지만 설계 시 요구되는 조건은 결코 작고 아담한 주택은 아니었다. 8남매를 키운 노모는 명절이나 집안 행사에 많은 가족들이 다 같이 할 수 있는 공간을 원했다. 또 바란 것은 그동안 낡은 고향집에서 많은 불편함을 감내했었던 딸과 며느리들의 숙원을 해결할 수 있는 현대식 주방과 편하게 씻을 수 있는 화장실, 샤워 공간이었다.
대지는 동쪽에서 서쪽으로 뻗은 기형적 형태다. 하지만 남측을 바라보면서 배산임수 형태의 경사지로서 해발 330미터에 위치하며, 우측에는 시루봉(990미터), 좌측에는 주산(828m)의 중간에 위치하는 좌 청룡 , 우 백호라 할 수 있는 최고의 주택지이다. 현행 개발행위 관련 법규로 인한 제한면적으로 대지의 일부를 제외하고 대지면적 1,000제곱미터 미만으로 계획하였다. 건축물의 규모가 어느 정도 결정되고, 건물의 위치를 결정하면서 가장 먼저 고려되었던 부분은 오래전부터 이곳에서 생활해온 나이 든 노모에 대한 배려였다. 새로운 것에 대한 거부감이 없도록 기존 지형을 인위적으로 만들지 않고, 기억 속에 있던 길, 나무, 돌, 바위 등을 기존의 자연형태 그대로 유지해 거부감이 없도록 계획하였다.
평면
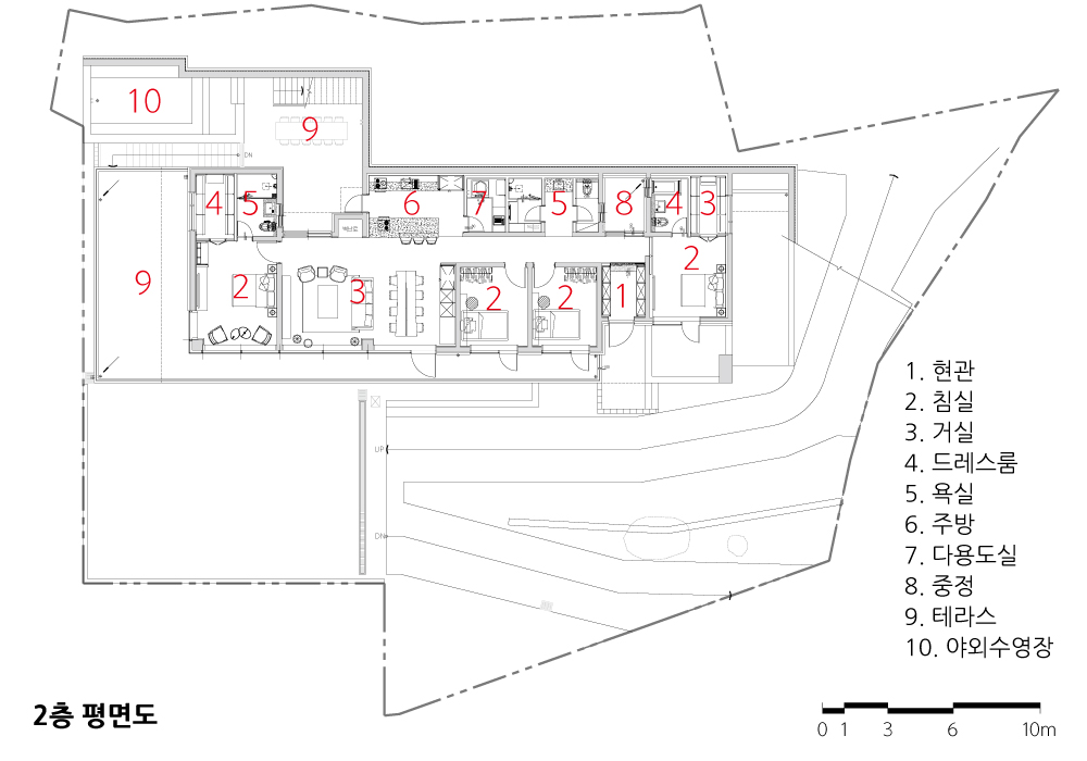
기존 대지의 경사지형이 북에서 남쪽으로 기울어진 대지형태라 건축물을 남향으로 배치하여 방과 거실을 전면에 두어 계획하였다. 특히 노모의 방은 현관에서 가장 가까운 곳에 두어 이동에 불편함이 없도록 하였으며, 현관 옆에 작은 공간을 확보하여 노모방 전면에 툇마루를 도입해 주변 분들과의 담소와 휴식, 작은 소일거리를 할 수 있는 공간을 만들었다. 또 경사지에서 부족할 수 있는 마당을 위해 대지를 중간에서 절토하여 건축물을 배치하고, 기존주택지와 건축물의 옥상으로 연계되는 넓은 하늘 마당을 계획하여 다양한 용도로 사용될 수 있도록 하였다. 이로 인해 우려되는 내부공간의 습도나 환기는 토목 옹벽과 건물 내부의 작은 중정을 두어 바람이나 빛이 유입되어 자연스럽게 흐를 수 있도록 했다. 지상 1층은 많은 가족을 고려한 주차장으로, 2층은 주택으로 구성하였으며, 거실 또는 방에서 건축물 외부의 자연 풍경을 볼 수 있도록 전면창과 발코니 난간을 강화유리로 계획하였다. 그리고 겨울의 혹독한 추위에 대비하여 패시브하우스에 준하는 단열계획과 벽난로 등을 활용하여 난방계획에 각별히 신경 써 계획하였다.
외부 디자인
건축물의 외부디자인은 건축주가 평상시 생각해오던 모던한 디자인으로 대지의 지형에 순응하는 형태로 계획하였으며, 노출콘크리트에서 오는 이질감을 완화시키기 위해 고밀도 목재패널과 롱와이드타일로 마감하여 이질감을 많이 완화하였다.
본 건축물이 설계자의 의도와 건축주의 생각대로 건축될 수 있도록 도와주신 많은 분들과 이 멋진 프로젝트에 고생한 사무소 전 가족에게 감사의 마음을 전하며, 설계를 주관하면서 건축사로서 역량을 마음껏 발휘하여 멋진 작품을 만든 이다운 건축사의 노고에도 박수를 보낸다.

The detached house project in Mukgye-ri, Hadong, is to design a house in the hometown of the co-president who has uniquely helped me. It seemed easy, but it was never an easy project. “Please make the house for the sake of the harmony of his remaining family.” It is a very straightforward desire of the client. Still, the connotation means a lot, so it is a project that made me reflect on my attitude toward architectural design again as an architect who has carried out the design.
Site & Layout
This detached house is located in an ancient rural village in Cheonghak-dong within Jirisan National Park in Hadong-gun. Most of the residents have migrated to urban areas, and it is now a tiny village with about 5 to 8 houses, including those who have returned to their rural homes. However, the requirements for its design were by no means a small and cozy house. On the contrary, the old mother who raised eight children wanted a space where many family members could enjoy their holidays or events together. She also wanted a modern kitchen that could solve the long-cherished desire of her daughters and daughters-in-law, who had tolerated a lot of inconveniences in their old home but also a toilet and a shower space for washing comfortably.
The site is a deformed shape extending from east to west. However, it is located at 330 meters above sea level as a slope with a mountain in the back and a river in the front facing the south. It is the best residential area that can be called 'Left Blue Dragon(左靑龍), Right White Tiger(右白虎),' located in the middle of Siru Peak (990 meters) on the right, and Jusan Mountain (828 meters) on the left. It is designed to be less than 1,000 square meters of land area, excluding some parts of the site due to the current act on development activities. When the size of the building was decided to some extent, as well as the location of the building, the first thing to consider was the old mother who had been living there for a long time. The existing topography was not artificially created so that she could have no resistance to new things while keeping current nature, such as the paths, trees, stones, and rocks that are still in her memory.
Floor Plan
As the slope of the existing site goes down from north to south, the building faces south, having rooms and a living room in the front. In particular, the old mother's room is closest to the entrance so that there would be no inconvenience in moving, and a small space is secured next to the door to have toenmaru(porch) in front of her room so that she can chat, relax, enjoy her pastime. In addition, the site was cut in the middle to place a building due to a yard that may be insufficient on a slope, a vast sky yard connected to the existing residential area, and the roof of the building being designed for various purposes. Accordingly, for indoor space's humidity or ventilation concerns, an earth retaining wall and a small courtyard were installed inside the building, allowing wind and light to flow naturally. The first floor is a parking lot for many family members, and the second floor is a house. Tempered glass was used for the front window and the balcony railing so that they could see the natural scenery outside the building from a living room or other rooms. In addition, special attention was paid to the heating plan in preparation for the harsh cold of winter by utilizing insulation plans and fireplaces comparable to Passive House.
Exterior Design
The exterior of the building is a modern design that the client has always thought of, also having a form that adapts to the site's topography. To alleviate the heterogeneity from exposed concrete, it was finished with High-Pressure Laminate(HPL) and long-wide tiles.
I want to express my gratitude to the many people who helped to build it according to the designer’s intention and the client’s idea and to my team members who worked hard on this beautiful project. I also applaud the efforts of architect Lee Daun who made this outstanding work.










| 하동 묵계리 주택 설계자 | 김태현 · 이다운 _(주)지디에이 건축사사무소 건축주 | 하정주 시공사 | (주)온종합건설 설계팀 | 강진화, 안지윤 대지위치 | 경상남도 하동군 청암면 청학로 2018-9 주요용도 | 단독주택 대지면적 | 999.00㎡ 건축면적 | 199.23㎡ 연면적 | 182.59㎡ 건폐율 | 19.94% 용적률 | 18.28% 규모 | 2F 구조 | 철근콘크리트구조 외부마감재 | 노출콘크리트(송판무늬), 고밀도목재패널, 롱와이드타일 내부마감재 | 헤링본 마루, 실크벽지, 인조대리석타일 설계기간 | 2021. 03 – 2021. 09 공사기간 | 2021. 10 – 2022. 07 사진 | 박규환 교수 _ 동의과학대학교 전문기술협력 - 구조분야 : (주)한길구조 - 기계설비분야 : (주)정엔지니어링 - 전기분야 : (주)정엔지니어링 - 소방분야 : (주)정엔지니어링 |
Hadong Mukgye-ri House Architect | Kim, Tae Hyeon · Lee, Da Un _ Architects & Engineers GDA CO., LTD Client | Ha, Jung Joo Construction | On Construction Co., Ltd. Project team | Kang, Jin Hwa / An, Ji Yoon Location | 2018-9, Cheonghak-ro, Cheongam-myeon, Hadong-gun, Gyeongsangnam-do, Korea Program | Detached house Site area | 999.00㎡ Building area | 199.23㎡ Gross floor area | 182.59㎡ Building to land ratio | 19.94% Floor area ratio | 18.28% Building scope | 2F Structure | RC Exterior finishing | Exposed concrete(pine board pattern), High density wood panel, Long wide tile Interior finishing | Herringbone floor, Silk wallpaper, Artificial marble tile Design period | Mar. 2021 – Sep. 2021 Construction period | Oct. 2021 – Jul. 2022 Photograph | Prof. Park, Gyu Hwan Dong-Eui Institute Of Technology Structural engineer | Hangil Structural Engineers Co., Ltd. Mechanical engineer | Jung Engineering Co., Ltd. Electrical engineer | Jung Engineering Co., Ltd. Fire engineer | Jung Engineering Co., Ltd. |


'회원작품 | Projects > House' 카테고리의 다른 글
| YB1979 2020.10 (0) | 2023.01.25 |
|---|---|
| 담양 만성리 죽녹원 힐스뷰Ⅰ2020.10 (0) | 2023.01.25 |
| CLT 주택 하우징플랜 2023.1 (0) | 2023.01.20 |
| 진화산방 2023.1 (0) | 2023.01.19 |
| 아우트 라우드 2020.9 (0) | 2023.01.19 |