2023. 1. 19. 09:12ㆍ회원작품 | Projects/House
Outloud

아우트라우드(out loud)는 ‘다른 사람들이 들을 수 있게 소리 내어’라는 뜻을 담은 단어이다. 본 건물의 이야기는 이 단어로부터 시작됐고, 컨셉트가 되었으며, 건물의 이름이 되었다.
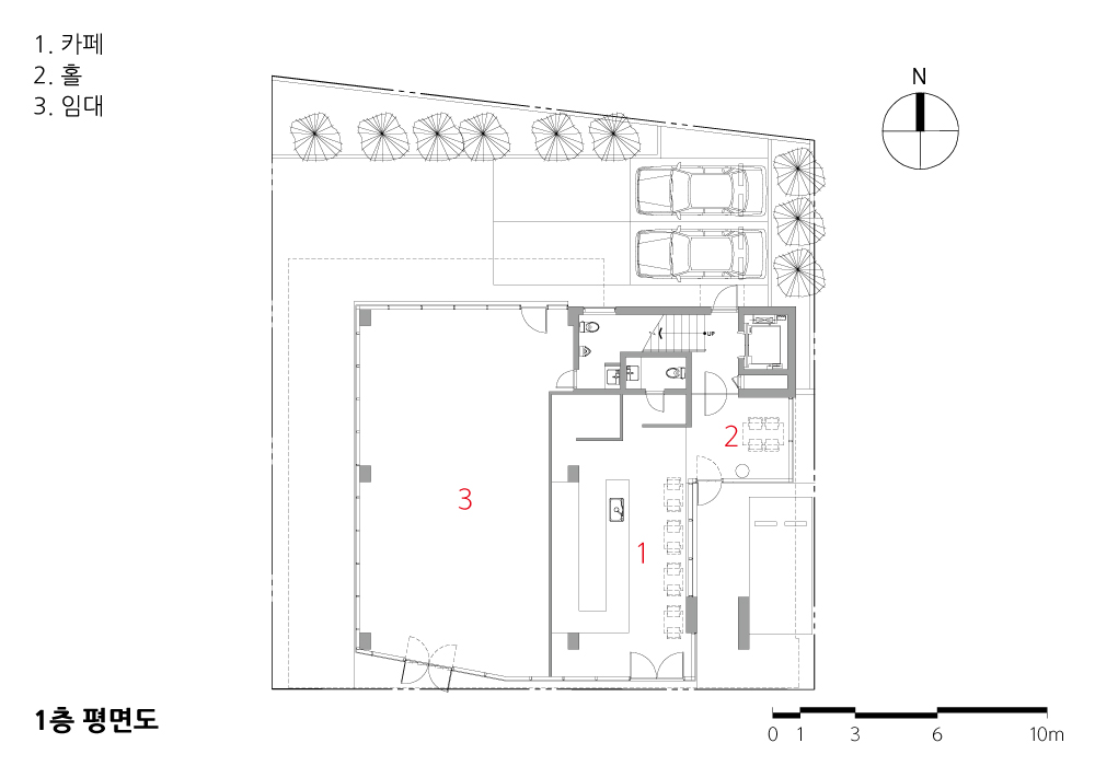
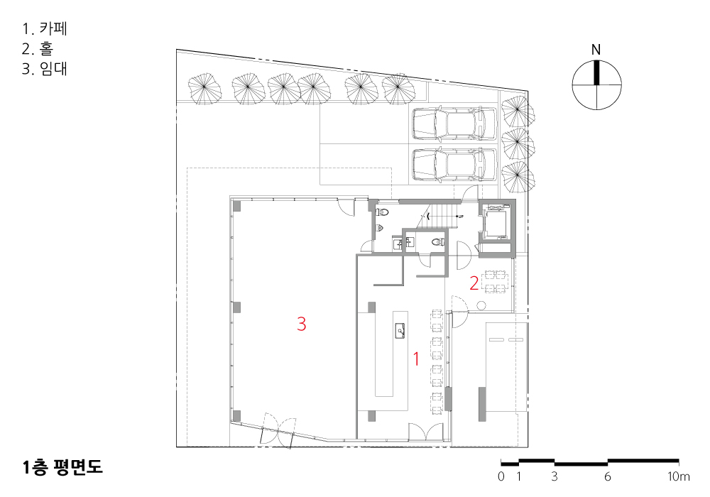
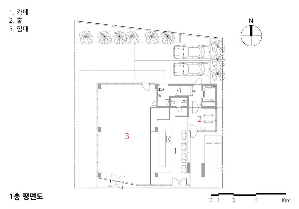
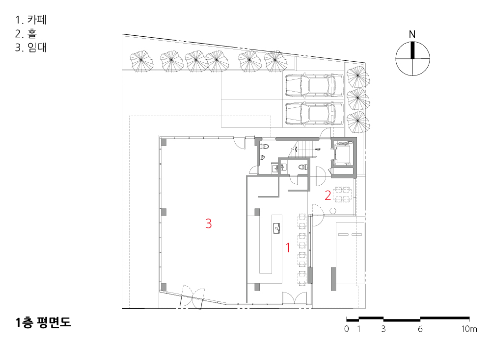
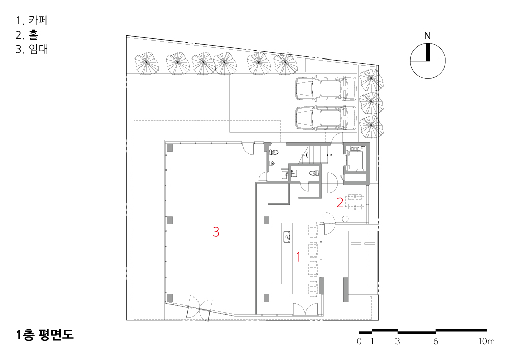
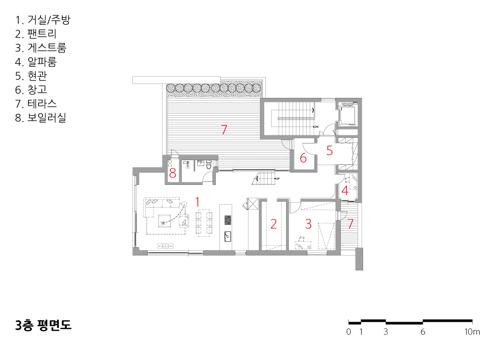
본 건물이 위치하는 곳은 광주광역시 외곽에 새로 조성된 도시개발구역이다. 흔히 어르신들이 하시는 말씀처럼 건물 계획 당시 주변은 모두 논밭이었다. 아우트라우드가 이 구역의 시작점이었다. 건물의 용도가 ‘상가주택’이기에 존재감이 드러나야 했다. 빈 도화지 같은 땅에 시작점이자 방점을 찍을 계획이 필요했다. 모두 듣고 볼 수 있도록 우리만의 ‘소리’를 내야 했다. 우리가 흔히 생각하는 상가주택 이미지와의 차별화를 중요하게 생각했다. 입면에 대한 다양한 스터디를 진행했다. 과감한 박공 덩어리를 위에 앉히고 아래는 단정한 박스 형태의 매스, 그리고 그 사잇공간에 외부 테라스를 계획하여 두 매스가 분리된 형태로 계획했다. 해가 지면 두 매스는 시각적으로 분리되어 극적인 분위기를 연출한다. 과감한 계획일수록 건축주와의 협의가 절실하다. 계획의 의도를 정성 들여 잘 전달해야 했다. 건축주의 흔쾌한 동의로 설계 과정이 모두에게 즐겁게 진행됐다. 1,2층은 상가, 3,4층은 건축주의 주거로 계획됐다. 1층은 공간을 분할하여 임대공간과 건축주의 사업장으로 계획했다. 부동산 트렌드에 맞게 건축물을 통해 다양한 수입원이 발생할 수 있도록 했다. 1층은 건축주의 카페가 먼저 자리를 잡았다. 2층의 대면적은 카페 기능의 연장선이다. 건축주의 생각을 반영하여 별도의 공간 구획 없이 넓은 공간 그대로를 두었다. 이용객의 독립된 시간과 공간을 누릴 수 있도록 여유로운 레이아웃으로 계획했다. 3층은 주거의 1층 기능으로 공적인 공간을 배치했다. 이곳의 특이점은 ‘숨어있는’ 아빠의 독립공간이다. 벽 안쪽에 공간을 숨기고 문은 벽과 동일하게 계획하여 숨겼다. 이는 사업장과 주거가 한 건물 내에 존재하기에 아빠의 숨 쉴 공간을 내어주고자 배려한 계획이었다. 3층은 주방과 거실을 배치해 손님 초대가 잦은 건축주의 사생활 노출을 최대한 줄일 수 있도록 했다. 또한 세 살과 다섯 살의 두 자녀가 주거에서 넓은 공간을 체험하며 생활할 수 있도록 했다. 층마다 각각의 테라스를 계획하여 맞벌이 부부가 시간의 구애 없이 언제든지 자녀와 외부 활동이 가능하도록 했다. 각 층마다 다양한 위치에 테라스를 배치하여 서로 다른 뷰를 즐길 수 있도록 했다. 4층으로 향하는 내부 계단은 테라스와 거실 사이에 배치하여 아이들의 또 다른 놀이터 기능을 한다. 아이들은 계단을 오르내리며 한쪽으로는 엄마가 음식 하는 모습을, 다른 한쪽으로는 넓은 야외 테라스를 바로 보게 된다. 4층은 가족의 사적인 공간으로 계획했다. 모든 일과를 마치고 가족이 함께 4층으로 향한다. 메인 욕실과 각자의 방을 배치했다. 욕실과 세탁실은 벽 대신 서로 통할 수 있는 문을 계획하여 주부 동선을 최소화했다. 성별이 다른 자녀들의 방은 가변적이다. 현재는 나이가 어리기에 두 공간의 기능을 놀이방과 침실의 기능으로 사용하고, 아이들이 성장하면 언제든지 분리하여 각자의 독립적인 방으로 쓰일 수 있도록 했다. 4층은 지붕선을 그대로 천장면으로 계획해 층고가 높고 면이 경사진 이색적인 공간을 경험할 수 있다. 좁은 복도와 각 공간의 부피감을 확장하여 실제 면적보다 더 넓은 공간감을 느낄 수 있도록 했다. 높은 천장과 면하는 벽에 창을 계획하여 항상 밝고 쾌적한 분위기를 연출할 수 있도록 했다. 주거가 단순한 ‘집’의 기능을 넘어 가족의 재미있는 놀이터이길 바라는 마음을 녹여 계획했다.
현재는 사람들이 적당히 북적이는 카페 공간과 계획 시작 당시 안주인의 뱃속에 있던 둘째까지 태어나 우리가 바랬던 대로 늘 ‘좋은 소리’가 끊이지 않는 공간이 되었다. 이 설계과정을 통해 건축계획이 한 가족, 그리고 공간을 이용하는 사람들에게 어디까지 영향을 미칠 수 있는지에 대한 물음의 답을 찾게 되었다. 공간이 계획대로 잘 쓰여 사람들이 행복해하는 모습을 눈으로 확인하는 즐거움은 건축사만이 누릴 수 있는 최고의 행복이 아닐까 생각한다.

Out loud is a word that means to make sounds that other people can hear. The story of this building started with this, became a concept and a name for the building. The building is located in a newly constructed urban development zone outside Gwangju Metropolitan City. As the elderly say, at the time of planning the building, all around here were paddy fields. This is the starting point of this building. The purpose of the building was a commercial house, so its existence had to be revealed. We need a starting point and a plan to focus on a blank ground. We have to make sounds that everyone can hear and see. We thought it was important to differenciate ourselves from other commercial ones. We conducted diverse studies on standing faces. A bold gable roof was placed on top, a neat box-shaped mass below, and an external terrace was built between the two masses. When the sun sets, the two masses are visually seperated making a dramatic atmosphere. The bolder the plan is, the more urgent it is to consult with a landlord. We had to convey the intentions of the plan. With the landlord’s agreement, the process went ahead with joyfulness. The first and second floor were planned for the malls, and the third and fourth floor were for the landlord’s residence. The first floor was planned to be a rental space and landlord’s business place by dividing. In line with the real estate trend, we made it possible for the source of income to arise through a building. The landlord‘s cafe took its first place on the first floor. The huge area of the second floor is an extension of the function of it. By reflecting the landlor‘s idea, the space was left as it was without any compartments. It is planned in a realaxing layout so that visitors can enjoy independent time and space. The third floor has a public space as a function of the first floor of residence. What’s special about this place is “ hiding place ” for dad. We hid the space inside the wall and the door in the same color as the wall. Because the work place and residence exist together, we wanted to give dad a relaxing spot. On the third floor, a kitchen and a living room were arranged to keep the privacy of landlords who often invite guests and we allowed their children to experience a large space. Each floor has its own terrace to enjoy different views and it was planned for each terrace, allowing double-income couples to engage in outdoor activities with their children anytime, regardless of time. The interior stairs leading to the fourth floor are arranged between the terrace and the living room to give children another playground. Children go up and down the stairs and see their mother cooking on one side and an outdoor terrace on the other. The fourth floor was planned as a private space for the family. After finishing the work, the family heads to the fourth floor together. Main bathroom and separate rooms have been arranged. The Bathroom and a laundry room have minimized a housewife’s movement by planning a door in stead of walls so that they can communicate with each other. The rooms of children of different sexes are variable. They use the two spaces as a function of the playroom and bedroom now, and when children grow up, they can be separated and used as independent rooms. On the fourth floor, The family can experience a unique space with a high floor height and sloping sides by planning the roof line as it is. The volume of each space and the narrow corridors were expanded so that a wider sense of space could be felt than the actual area. The high ceiling and the facing wall were designed to create a bright and pleasant atmosphere at all times. The plan is based on the hope that housing will be a fun playground for the family beyond the function of a simple "home." Currently, it has become a crowded cafe and private house where "good sound" is always continued as we hoped, as the second child was born in hostess’ womb at the beginning of the plan. Through this design process, we found answers to questions about how far building plans can affect a family and people using space. I think the joy of seeing people happy is the best happiness that only architects can experience.









| 아우트 라우드 설계자 | 허만수 _ 사계절프로젝트 건축사사무소 건축주 | 박원 감리자 | 허만수 _ 사계절프로젝트 건축사사무소 시공사 | (주)채원종합건설 설계팀 | 김정미 대지위치 | 광주광역시 광산구 단전4길 3 주요용도 | 근린생활시설/단독주택 대지면적 | 418.40㎡ 건축면적 | 240.79㎡ 연면적 | 673.46㎡ 건폐율 | 57.55% 용적률 | 160.96% 규모 | 지상 4층 구조 | 철근콘크리트조 외부마감재 | Thk30사비석 잔다듬, 스타코(아이보리) 내부마감재 | 석고보드 2겹, 벽지마감 설계기간 | 2018. 05 ~ 2018. 12 공사기간 | 2019. 02 ~ 2019. 10 사진 | 손찬명 구조분야 : 에이펙스 기계설비분야 : 팔마이엔지 전기분야 : 팔마이엔지 소방분야 : 팔마이엔지 |
Outloud Architect | Hur, Mansu _ four season architects Client | Park, Won Supervisor | Hur, Mansu _ four season architects Construction | Che Won construction Project team | Kim, Jeongmi Location | 3, danjeon 4-gil, gwangsan-gu, gwangju, korea Program | Neighbourhood living facility, Residence(Single family house) Site area | 418.40㎡ Building area | 240.79㎡ Gross floor area | 673.46㎡ Building to land ratio | 57.55% Floor area ratio | 160.96% Building scope | 4F Structure | RC Exterior finishing | Yellow granite, Stacco Interior finishing | Wall paper Design period | May 2018 ~ Dec. 2018 Construction period | Feb. 2019 ~ Oct. 2019 Photograph | Son, Chanmyung Structural engineer | Apex Mechanical engineer | Palma Eng Electrical engineer | Palma Eng Fire engineer | Palma Eng |
'회원작품 | Projects > House' 카테고리의 다른 글
| CLT 주택 하우징플랜 2023.1 (0) | 2023.01.20 |
|---|---|
| 진화산방 2023.1 (0) | 2023.01.19 |
| 무디디 2020.9 (0) | 2023.01.19 |
| 어쩌다이웃@두동 2020.8 (0) | 2023.01.18 |
| 해뭍제 2020.8 (0) | 2023.01.18 |
