2023. 1. 20. 17:09ㆍ회원작품 | Projects/House
the CLT

1 설계 의뢰인은 서울대학교 농업생명과학대학에서 후학들을 가르치고 한국 목재계의 숱한 인재를 길러낸 학자다. 은퇴 후 기거할 집 설계를 의뢰하면서도 가족들이 살 집을 CLT(면상 적층 구조재) 연구 프로젝트로 스스로 임상을 자처하며 많은 시간을 연구에 투자해 주셨기에 설계자는 편안히 집의 기능과 형태를 구법에 맞추고 조율하는 일만 했다. 건축주와 목조전문시공사 스투가, 그리고 설계자인 가와건축은 오래토록 신뢰를 쌓아온 사이다. 나름 일찍 조를 짜둔 것이다. 설계에 앞서 우리보다 앞서 CLT제작과 공사를 실천한 일본시장을 답사하며 호흡을 맞춰 나갔다. 스투가는 가와건축과 일찍이 많은 프로젝트를 같이 수행하며 손발을 맞춰온 회사이며 국내 목조의 새로운 구법에 헌신적 참여를 많이 해온 내공 깊은 회사다.
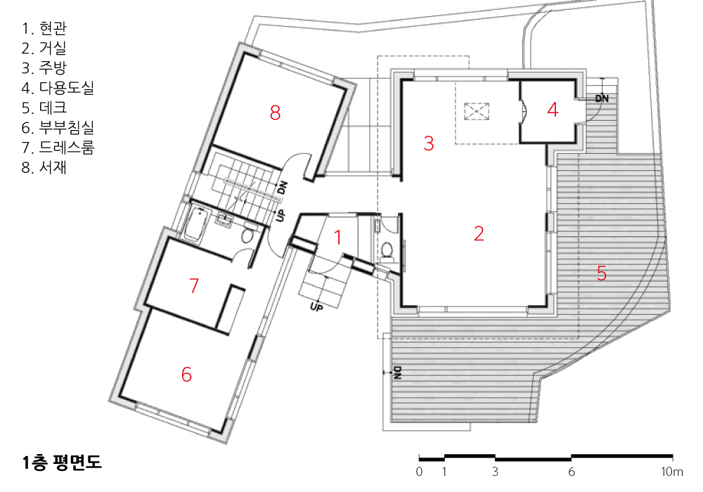
2 건축구법 상 국내 전례 없었던 CLT를 구조와 실내마감으로 쓰자는 것 외에는 여느 건축과 다르지 않았다. 은퇴 후 노년을 보낼 집이기에 라이프스타일을 존중한 공간을 만들어야 했고, 건축주의 사회적 비중과 활동을 고려하자면 가족공간과 응접공간의 구분이 필요하다고 여겼다. 마치 옛집의 사랑채와 같이 안채의 프라이버시를 위한 채 나누기를 했다. 사적공간과 다소 공적인 거실공간을 현관을 중심으로 좌우로 분리시킨 후 복도로 연결했다. 두 개 층으로 구성된 안채와 높은 층고의 단층거실이 병치되며 맞배지붕과 평지붕의 결합으로 공간의 다양함을 만들었다.
3 의뢰인 가족이 건축설계를 함에 있어서 두 개의 목표를 가지고 시작했다. 하나는 그간 살아온 공동주택의 삶의 형태와 단독주택만의 장점을 잘 어우러지게 해 보자는 것이고, 하나는 그간 많이 봐온 판넬 방식의 구법이 아닌 CLT를 사용한다는 것에 있다. 건축 조형은 구법에 최적화된 단순한 형태가 맞을 듯했으나 건축주에게 너무 단순한 조형으로 설득시킬 자신이 없었을뿐더러 처음 해보는 CLT구법의 가능성을 다양하게 관찰해볼 욕심도 없진 않았던 것 같다.
4 집을 짓고자 하는데 굳이 특별한 개념을 주장하고 싶진 않았다. 콘셉트란 용어에 대한 거부감은 집을 작품이라 부르고 건축사를 작가라고 부르는 부담과 함께 있다. 집은 삶과 가장 가까운 거리에 있는 장치로서 예술적 가치를 앞세울 수 없는 진솔한 쓰임 자체에 가치가 있기 때문이라 생각된다. 집이 기능을 앞질러 선동적 외관에 집중하는 것으로 보이는 것에는 거부감이 느껴져서다. 특히 건축의 외형이 적절한 비례를 가지고 주변과 조화를 이뤄야 함은 당연하겠지만, 조형에 앞서 기능에 몰두하는 것이 우선 과제라 믿는다.
그래서 이 집은 가족들의 살아왔던 삶과 살아갈 삶의 진지한 숙고의 산물이었으면 했다.
5 외부조형은 공간의 기능에 의해 분절되어 거대해 보이지 않았으면 했다. 지붕은 박공과 평지붕이 섞여 있어서 보는 위치에 따라 다르게 보이지만 안정감 있는 조화를 기대했다. 재료와 컬러는 방부 처리된 무절 삼나무와 붉은 고 벽돌을 사용하여 재료가 가진 고유색이 돋보이며 주변과 조화를 고려했다. 구조로 쓰인 낙엽송으로 제작된 CLT는 면상구조로 벽이 되고 슬라브가 되지만 실내에는 노출되어 인테리어의 주재료가 되었다. 단열은 목 섬유 단열재를 라슨트러스를 사용하여 부착했으며, 캐나다 에너지효율성능 테스트 기준을 통과한 슈퍼-E(캐나다 단열기준) 인정을 받았다.
6 사적인 공간과 공적인 공간의 적절한 이격을 했으며, 거실은 외부의 테크와 연결시키며 테크는 집과 숲 사이에 오붓한 외부 거실 역할을 하게 했다. 노후생활을 대비하여 1층에 부부침실과 서재를 두었으며, 2층에는 자녀공간을 배치했다. 계절 짐을 두기 위한 다락을 지붕경사를 적절하게 이용하여 만들어 공간의 다채로움을 만들었으며, 외부조망과의 관계를 위한 창들을 공간의 결절점마다 두었다.
7 처음 만들어보는 CLT구조라 제작에 애로가 많았다. 우선 CLT제작회사에서도 첫 작업인지라 대형 프레스가 없어 기존의 프레스를 이용해야 하니 제작사이즈의 한계를 현장에서 결합으로 해결해야 하는 애로가 있었다. 그런 이유로 많은 패널조각을 조립하다 보니 조립순서도 뒤섞이고 시간이 많이 걸렸다. 특히 구조를 숨기는 구법이 아니라 내부 인테리어로 노출시키다 보니 더욱 정밀한 작업이 요구되었고, 작은 공사였지만 실험적인 프로젝트로 생각보다 많은 시간이 걸린 프로젝트였다.

1 The client requesting design is a scholar who has taught many students at the College of Agriculture and Life Sciences, Seoul National University, and has cultivated many talents in the Korean timber industry. While requesting the design of a house for the family to live in after retirement, the client invested a lot of time in researching this house as a research project of CLT (Cross-Laminated Timber) so that the designer only had to meet the function and form of the house according to architectural structure. The client, a specialized wooden construction company Stuga, and the designer Kawa Design have built trust for a long time. We formed a team quite early. Before the design, we worked together while exploring the Japanese market, where CLT was manufactured and constructed earlier than in Korea. With a lot of experience in new wooden construction methods, Stuga is a company that has collaborated on many projects with Kawa Design.
2 It was no different from any other architecture except for using CLT as its architectural structure and interior finish, which was unprecedented in Korea in terms of architectural structures. Since it is a house in which the client will spend his old age after retirement, it was necessary to create a space that respects lifestyle and to separate family space and reception space, considering the client’s social importance and activities. Like Sarangchae(detached house) of an old house, anchae(main house) was separated for privacy. The private and public living spaces were divided into left and right sides from the entrance and then connected to the hallway. A two-story main house and a single-story living room with a high ceiling are juxtaposed to combine a gable roof and a flat roof, creating various spaces.
3 The client’s family started with two goals for this building design: one is to try to match the lifestyle of an apartment house in which they have lived so far and the advantages of a detached house, and the other is to use CLT than standard panels. Although a straightforward form would be good for the structure, I was not confident in persuading the client because it might be too simple for him. I also wanted to observe the possibilities of CLT in various ways, which I haven’t tried before.
4 I didn’t want to insist on a particular concept in house building. My resistance to the term ‘concept’ is accompanied by the burden of calling a house a work of art and an architect an artist. I think this is because a home is closest to life and has intrinsic value in its intended use, which cannot put artistic value first. It is also because I feel uncomfortable seeing a house that focuses on a showy exterior rather than its function. In particular, the exterior of a building absolutely should have proper proportions and harmonize with the surroundings, but I believe that function should come first before formative elements.
So, I wanted this house to be the product of serious deliberation of the life the family has lived and will live.
5 I did not want the exterior form to look gigantic as the function of the space segments it. The roof is a mixture of gable and flat roofs, so it looks different depending on where you see it, but a stable harmony was expected. For materials and colors, closed-ring cedar treated with preservatives and red bricks was used to highlight the materials' unique color and harmonize with the surroundings. For structure, larch CLT is laid flat-wise to form a wall and a slab, but it is exposed indoors to become the primary material for the interior. For insulation, wood fiber insulation was installed using a Larsen truss, and it has been certified by the Super-E Housing (Canadian Insulation Standard), which has satisfied the Canadian energy efficiency test requirements.
6 The private and public spaces are properly separated, and the living room is connected to the outdoor tech that can play the role of a cozy outdoor living room between the house and the forest. In preparation for old age, a bedroom for couples and a study are placed on the first floor, whereas a space for children is placed on the second floor. An attic for storing all the seasonal stuff was created using the roof slope appropriately, making a variety of spaces. In addition, windows are placed at every node of the space, considering the relationship with an outside view.
7 As it was my first time making a CLT structure, production had many difficulties. First, it was also the first time for the CLT production company, so they had no large press and had to use existing presses. Therefore, they should solve the limitations of production size by combining them on-site. As many panel pieces were assembled, the assembly order was mixed up and took a long time. In particular, more precise work was required as it was exposed to the interior instead of the structure that hides the structure. Finally, although small, it was an experimental project that took more time than expected.









| CLT 주택 하우징플랜 설계자 | 최상영_(주)가와 종합건축사사무소 시공사 | 스튜가목조건축연구소 대지위치 | 경기도 용인시 수지구 신봉동 주요용도 | 단독주택 대지면적 | 597.00㎡ 건축면적 | 119.22㎡ 연면적 | 267.05㎡ 건폐율 | 19.97% 용적률 | 29.29% 규모 | B1F - 2F 구조 | 철근콘크리트구조, 목구조 외부마감재 | 벽돌 다우무역 적색고벽돌, 가와카미 목재(목클처리) 내부마감재 | 낙엽송CLT, 벽지, 도장 설계기간 | 2013. 12 - 2015. 09 공사기간 | 2016. 07 - 2017. 06 사진 | 석정민 전문기술협력 - 구조분야 : 오정근 _ 서울대학교 교수 - 기계설비분야 : 신나래 ENG - 전기분야 : 신나래 ENG - 소방분야 : 신나래 ENG |
the CLT Architect | Choi, Sam Young_KAWA architecture Construction | Stuga House Location | Sinbong-dong, Suji-gu, Yongin-si, Gyeonggi-do, Korea Program | House Site area | 597.00㎡ Building area | 119.22㎡ Gross floor area | 267.05㎡ Building to land ratio | 19.97% Floor area ratio | 29.29% Building scope | B1F - 2F Structure | RC, Wood Structure Exterior finishing | Brick, Wood Interior finishing | Larch CLT, Wellpaper, Seal Design period | Dec. 2013 - Sep. 2015 Construction period | Jul. 2016 - Jun. 2017 Photograph | Seok, Jeong Min Structural engineer | Oh, Jung Geun _ Seoul Nation University Mechanical engineer | Shinnare ENG Electrical engineer | Shinnare ENG Fire engineer | Shinnare ENG |
'회원작품 | Projects > House' 카테고리의 다른 글
| 담양 만성리 죽녹원 힐스뷰Ⅰ2020.10 (0) | 2023.01.25 |
|---|---|
| 하동 묵계리 주택 2023.1 (0) | 2023.01.20 |
| 진화산방 2023.1 (0) | 2023.01.19 |
| 아우트 라우드 2020.9 (0) | 2023.01.19 |
| 무디디 2020.9 (0) | 2023.01.19 |
