2023. 1. 25. 09:16ㆍ회원작품 | Projects/House
YB1979. Bongcheun-dong 1678-3 Multiplex Housing

완공된 건축물 전면엔 단출하지만 당당한 느낌의 사인이 부착돼 있다. YB 1979는 신축 이전 이 대지에 오랫동안 자리했던 단독주택의 소유자 이니셜과 준공연도를 담은 이름이다. 소유자는 건축주의 부친이다. 설계 의뢰가 오가고 규모 검토가 이뤄질 때부터 건축주는 벽돌조로 단단하게 지어진 본래 건축물에 깃든 성장기 추억과 가족의 기억을 아쉬워하고 자주 회상하곤 했다. 철거될 땐 본래 건축물의 빛바랜 청사진 도면을 전시할 수 있는 공간을 부탁하기도 했다.
신축 건축물은 공동주택이라는 용도에 맞게 용적률과 전용면적을 최대로 설정해 설계했지만 그보다는 기억을 담아내는 데 더 큰 가치를 뒀다. 벽돌 마감재 쌓기에 양괴감을 부여하기 위해 고민하고, 매스구성에서부터 단단했던 본래 건축물의 이미지를 찾아가는 작업을 반복했다.
대지의 주변은 전형적인 다가구·다세대 주택 밀집지역이다. 바둑판과 같은 이면도로변 밀집지역은 임대수익을 극대화하려는 아우성으로 가득하다. 이 건축물은 조금은 넉넉한 공간과 공간효율의 가치를 넘어선 건축물이란 인상을 주고자 했다.
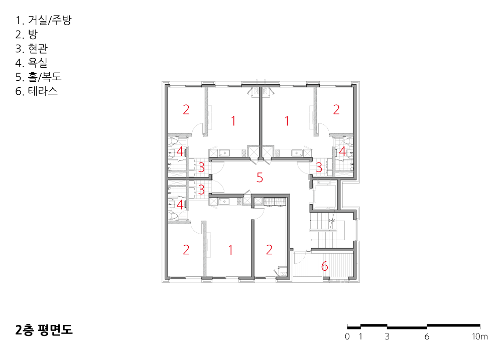
벽돌쌓기는 세로줄눈을 없애고 가로줄눈만을 살려 조적재료 본연의 양괴감을 표출했다. 최소화된 몰탈면이 벽돌 자체의 물성을 살려 건물 전체 인상을 잡아주었다. 자칫 무거울 수 있는 매스는 발코니 오픈 부분과 창호 패턴을 연결시켜서 조금 더 밝게 다가갈 수 있도록 했다. 공동주택에 일반적으로 사용되는 PVC창호를 적용했지만 크기는 몇 가지로 다양하게 조합해 반복된 개구부 패턴을 피했다.
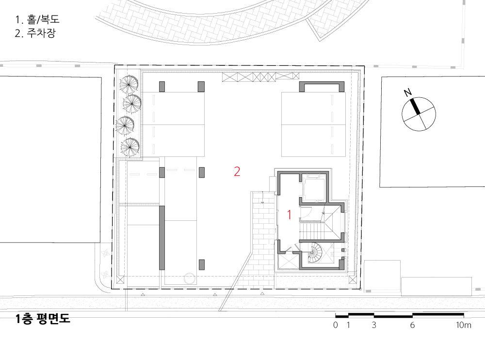
계단실 전면엔 면적에 할당되지 않는 발코니를 추가로 설계했다. 이곳을 반쯤 가리는 벽돌조 가벽은 영롱쌓기로 처리된, 투과되는 공간이다. 건물 전체 인상을 결정 짓는 요소기도 하다. 어쩌면 공동주택이라는 일반적인 틀 안에서 숨통을 틔워주는 풍경과의 소통 공간이 될 수도 있을 것이다.
일조권 사선 제한으로 단차가 생긴 테라스와 옥상엔 건축주가 직접 관리할 수 있는 정원과 쉼터를 만들었다. 이곳에선 이 일대 도시풍경을 담은 드라마가 펼쳐진다. 먼 낙성대의 실루엣과 바로 인접한 공원을 한눈에 볼 수 있다.
봉천동 이면도로에 자리한 YB 1979. 일상적인 주변 풍경이란 인식을 넘어 봉천동답지 않은 건축을 만드는 일에 모두 의기투합했다. 건축주는 기억을 담아내는 일에 몰입하고, 시공자는 작은 마감이나 하드웨어까지 꼼꼼히 선정하는 수고를 아끼지 않았다. 세입자들은 계단을 오르내리면서 옛날 이 땅에 자리했던 건물 사진과 청사진 도면, 이 건물 모형을 보게 될 것이다. 이러한 기억이 중첩된 공간적 가치가 주변으로 확장되기를 조심스레 기대해 본다.

A simply but stately sign is attached to the facade of the completed building. YB 1979 is named from the owner's initials and the completion year of the detached house situated on the site for a long time before the new construction. The owner was the client's father. From the beginning of the design request and the scale review, the client often recalled family and childhood memories in the original strong brick-framed building. When it was demolished, he asked for a space to display the original building's faded blueprints.
The new building is designed to secure the maximum floor area ratio and the area for exclusive use for an apartment house. Still, the more excellent value of holding memories was more important. I repeated searching for the original building's image that was also strong in the mass composition while thinking about how to give a feeling of mass to the stacking of a brick finishing material selected from the beginning.
The site is surrounded by typical multi-family and multi-household houses. The dense area on the checkerboard-like roadside is filled with the clamor for maximizing rental income. In this place, I attempted to make the impression of a building beyond the value of a little ample space and spatial efficiency.
The brickwork is intended to express a masonry material's natural mass by removing vertical joints and utilizing only horizontal joints. As the mortar surface was minimized, the brick's physical properties made the whole building impressionable. The mass, which can be a little heavy, is designed to be a little brighter as it is connected to the window pattern with the balcony's genuine part. Although I applied PVC windows, which are generally used to apartment houses, they were combined in several sizes to avoid repeated opening patterns.
A balcony, which was not allocable to the area, was added to the front of a staircase. The brick fake wall that covers half of the area is a penetrated space constructed with mesh brickwork. It is also a determining factor for the building’s overall impression. Perhaps it can be a communication space with the scenery that opens your windpipe within the general framework of an apartment house.
The terrace and the rooftop, where a stair gap is created due to an architectural slant line for daylight, are provided with a garden and a shelter the client manages. Here, the dramatic urban scenery of the whole area unfolds. You can get the silhouette of Nakseongdae and the adjacent park in the distance at a glance.
YB 1979, located on the backside road in Bongcheon-dong. As all of us worked hard to make this building look, unlike Bongcheon-dong, beyond a general perception of this place's surrounding scenery. The client was immersed in containing memories, and the constructor spared no effort to select carefully even a trivial finish or hardware. Tenants will come across the old building's photographs and blueprints on this land and a model of this building, as they go up and down the stairs. These gestures will permeate everyone as the recollection of memories and the value of continuous space.
I look forward to seeing that this value in a particular place in Bongcheon-dong will be expanding gradually to the surroundings.







| YB1979 설계자 | 이호락_알에이케이 건축사사무소 건축주 | 김동준 외 3인 감리자 | 정원돈 _ 건축사사무소 두루 시공사 | 도담종합건설(주) 설계팀 | 정인환, 엄상준 대지위치 | 서울특별시 관악구 행운2길 5(봉천동 1678-3) 주요용도 | 도시형생활주택(단지형다세대주택) 대지면적 | 339.60㎡ 건축면적 | 197.75㎡ 연면적 | 659.75㎡ 건폐율 | 58.23% 용적률 | 194.27% 규모 | 지상 6층 구조 | 철근콘크리트조 외부마감재 | 점토벽돌 치장쌓기 내부마감재 | 노출콘크리트, 친환경 페인트, 실크벽지 설계기간 | 2019. 01 ~ 2019. 06 공사기간 | 2019. 07 ~ 2020. 05 사진 | 윤홍로 구조분야 : (주)허브구조엔지니어링 기계설비분야 : (주)정도설비 기분야 : (주)나래디엔에이 |
YB1979. Bongcheun-dong 1678-3 Multiplex Housing Architect | Lee, horak_R.A.K Architects & Associates Client | Kim, Dongjun Supervisor | Jeong, Wondon _ Duru Architects Construction | Dodam Construction Project team | Jung, Inhwan / Eom, Sangjun Location | 5, Haengun 2-gil, Gwanak-gu, Seoul, Korea Program | Multiplex Housing Site area | 339.60㎡ Building area | 197.75㎡ Gross floor area | 659.75㎡ Building to land ratio | 58.23% Floor area ratio | 194.27% Building scope | 6F Structure | RC Exterior finishing | Brick clay Interior finishing | Exposed mass concrete, Paint, Wallpaper Design period | Jan. 2019 ~ Jun. 2019 Construction period | Jul. 2019 ~ May 2020 Photograph | Yun, Hongro Structural engineer | Hub sructural engineering Mechanical engineer | Jungdo engineering Electrical engineer | Naray design & administration |

'회원작품 | Projects > House' 카테고리의 다른 글
| 민들레의 정원 2020.10 (0) | 2023.01.25 |
|---|---|
| Enlluné _ ‘섬, 바람 그리고 달빛이 머무는 집’ 2020.10 (0) | 2023.01.25 |
| 담양 만성리 죽녹원 힐스뷰Ⅰ2020.10 (0) | 2023.01.25 |
| 하동 묵계리 주택 2023.1 (0) | 2023.01.20 |
| CLT 주택 하우징플랜 2023.1 (0) | 2023.01.20 |