2022. 11. 14. 16:13ㆍ회원작품 | Projects/House
Skip Floor House

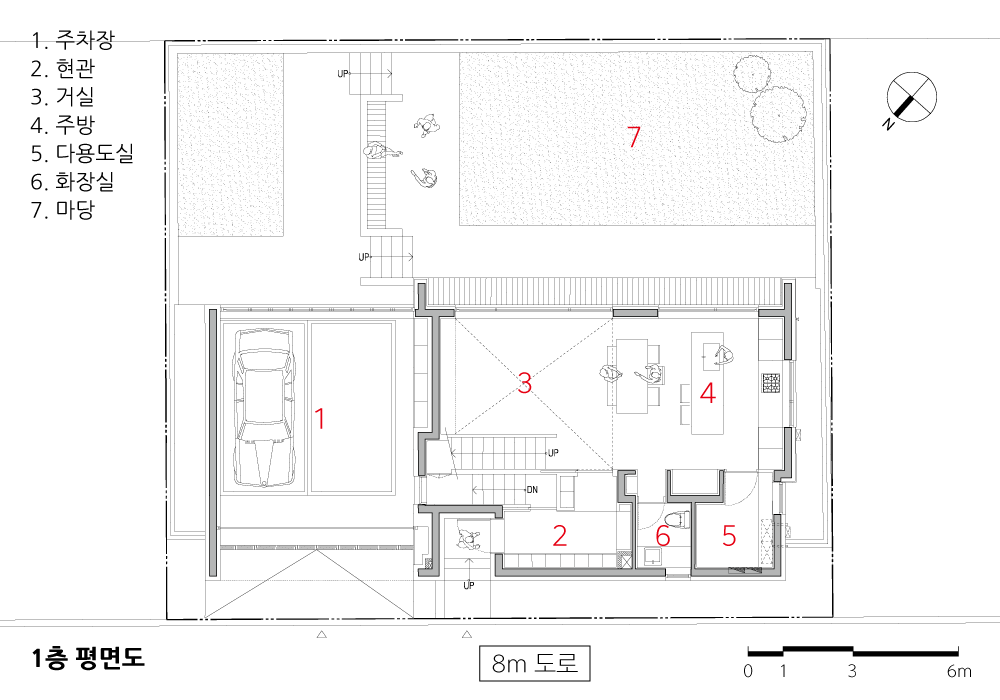
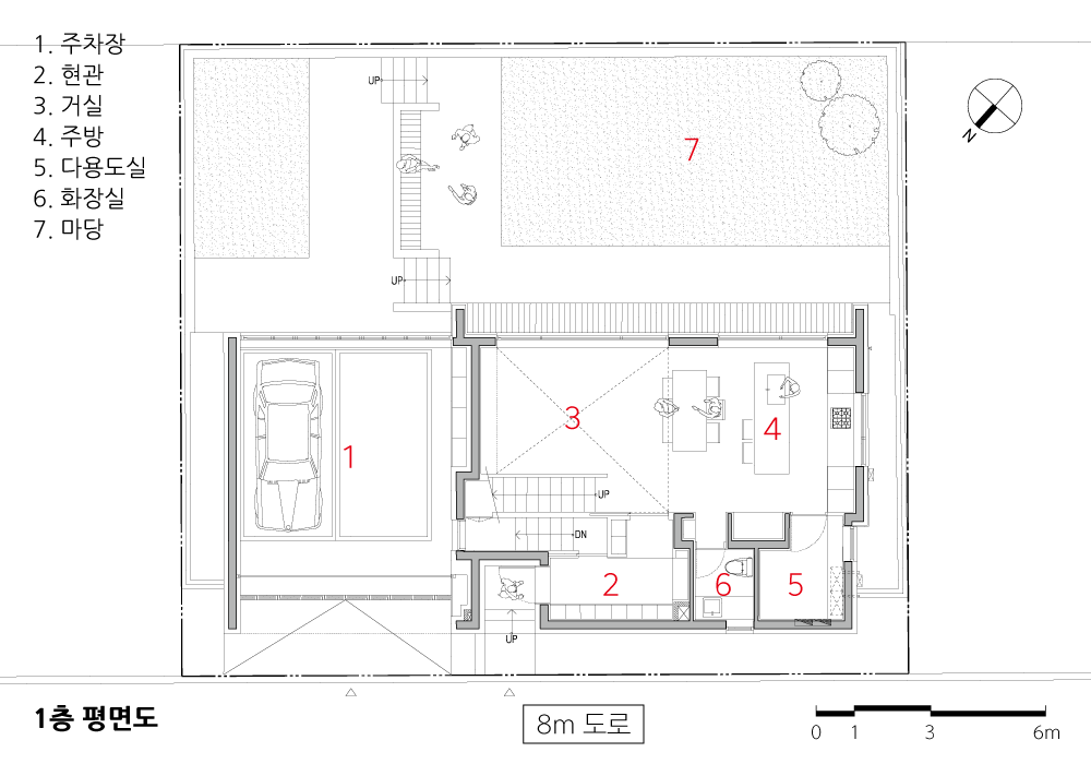
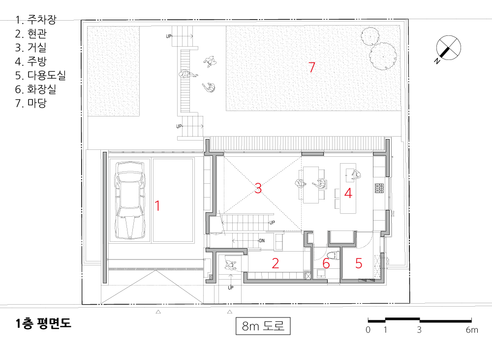
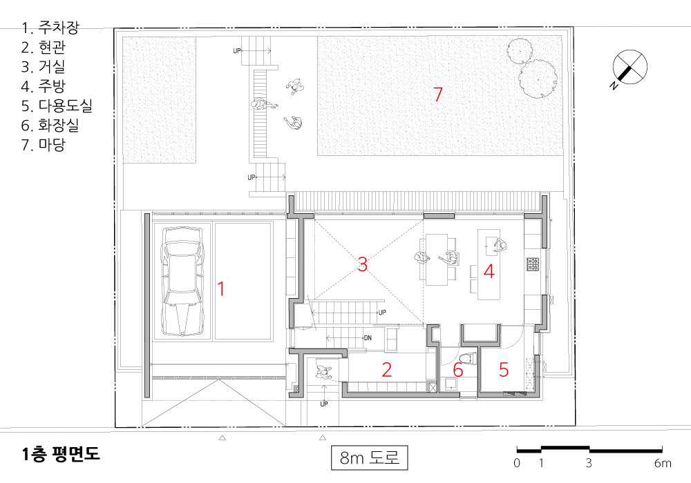
배치와 외부공간
북서측으로는 8미터 도로가, 남동측으로는 공원이 접해있는 대지는 온전히 남향 빛을 받는 동시에 공원 방향으로 프라이버시도 보호받을 수 있는 장점이 있는 대지였다. 그러나 도로의 가중평균레벨보다 대지의 가중평균레벨이 낮은 단점을 가진 대지이기도 했다. 쉽게 이야기해서 건축주는 도로보다 낮은 대지를 구매한 것이다. 추후 조성될 좌·우측의 인접대지 레벨을 고려하고 토목공사를 최소화하는 방향으로 대지 내 레벨 차이를 활용해야 했다. 도로를 기준으로 대지를 바라보았을 때 도로의 경사를 활용하여 좌·우로 두 개의 레벨을 정했다. 좌측의 낮은 레벨은 주차장 출입구를 계획하였고, 우측의 높은 레벨은 주거공간의 주출입구를 계획해 주거공간이 도로의 레벨보다 낮지 않게 계획하였다. 두 개의 레벨로 조성된 외부공간은 각 레벨에서 내부공간으로 연결된다.
‘ㅡ’자형 평면과 스킵플로어(skip floor)
건축주는 한정된 예산 속에서 최소한의 필요한 공간으로 구성된 집을 원했다. 예산 때문이기도 하고, 동시에 넓은 마당을 가지기 위해서이다. 예산을 줄이기 위해 첫 번째로 면적을 줄여야 했고, 연결 동선이자 공용공간인 복도를 최소화할 수 있는 ‘ㅡ’자 평면이 가장 효율적이고 건축주에게 적합한 평면이었다. 대지의 레벨 차이는 설계할 때에 다양한 계획안을 만들게 하는 요소가 되는데, 스킵플로어로 계획하면 연결 동선의 면적이 더욱 최소화되고 1층과 1.5층, 2층이 시각적으로 연결될 뿐만 아니라 물리적으로도 가깝게 연결되어 층간 이동의 부담을 줄일 수 있다.
지상 2층의 규모이지만 서로 다른 레벨로 층을 구분하면, 0.5층, 1층, 1.5층, 2층까지 4개의 층으로 구분할 수 있다. 반층씩 연결되는 중심에는 거실이 위치하는데, 연결 동선이 시각적으로 보이고 각층의 일부가 거실과 소통하기에 입체적으로 열린 거실 공간이 만들어졌다. 가족들은 어느 위치, 어느 층에 있더라도 주거의 내부광장인 거실과 소통할 수 있다. 제일 낮은 레벨에 위치하는 0.5층에는 주차장(실내)이 계획되어 있고, 주차장에서 현관으로 진입할 수 있는 동선이 계획되어 있다.
1층은 현관과 거실, 주방, 다용도실 등이 계획되어 공용공간의 역할을 하며, 툇마루를 통해 마당과 연결된다. 1.5층은 가족이 주로 사용하는 공간이다. 안방, 드레스룸, 화장실, 세탁실 그리고 가족실이 있어 아이들이 커서 개인의 방을 사용하기까지 1층과 1.5층은 이 집의 주요 활동지가 된다. 2층에는 두 자녀방과 화장실이 계획되어 있다.
형태와 재료
아파트를 벗어나 마당이 있는 단독주택에 살기를 원하고 실행하는 20~30대 건축주가 증가하고 있다. 젊은 건축주는 예산이 넉넉하지 못하다. 한정된 예산 속에 쉽게 선택할 수 있는 외벽재료가 외단열공법인 스타코일 것이다. 흰색 스타코를 주요 외벽재료로 사용하였고, 부분적으로 시멘트벽돌타일, 회색 스타코, 목재를 사용하여 입면을 디자인했다.
북쪽 전면도로 방향으로는 대지의 긴 변을 가득 채우고 있는 건물이 답답해 보이지 않도록, 1층 현관 앞 비를 피할 수 있는 완충 공간에 목재를 사용하여 포인트를 주었다. 2층에는 베란다 공간을 통해 좌우에 위치한 세탁실과 화장실에 충분히 빛이 유입되고, 베란다방향으로 각 창문을 계획하여 도로에서 시선을 차단할 수 있게 하였다.
아파트에서 단독주택으로 주거유형이 변화하면서 건축주가 가장 부담스러워 했던 부분이 1·2층을 연결하는 수직동선(계단)이었고, 기대했던 공간은 아이들이 뛰어놀 수 있는 큰 마당이었다. 건축주가 원하는 실의 구성, 면적, 예산, 법규 그리고 대지 조건 등 다양한 설계 조건 속에서 가장 부담스러웠던 부분과 가장 기대했던 공간들이 스킵플로어를 통해 해결되었고, 단순한 직사각형 매스 안에 다양한 레벨과 이야기를 담을 수 있었다.

Layout and outdoor space
Facing an 8-meter road on the northwest side and a park on the southeast side, the site has the advantage of facing south and protecting privacy on the side of the park. However, it was also a disadvantage because the weighted average of the site sits below the road. Simply put, the client purchased land lower than the road. We had to consider the level of the adjacent site on the left and right to be created, and utilize the level difference within the site to minimize civil works. When looking at the site from the road, two levels were determined, left and right, using the slope of the road. The lower level on the left was designed to be the entrance to the parking lot, whereas the higher level on the right was designed to be the main entrance to the residential space so that the residential space could not be lower than the level of the road. The outdoor space of two levels is connected to the indoor space at each level.
‘ㅡ’-shaped plane and skip floor
The client wanted a house with minimal necessary space within a limited budget. It is because of a tight budget and, at the same time to have a large yard. Therefore, to reduce the budget, the area had to get smaller first, and the ‘ㅡ’-shaped plane that can minimize the corridor, which is a connecting movement flow and a common space, was the most efficient and suitable plane for the client. The level difference of the site becomes a factor that allows for various plans when designing. For example, if you plan with a skip floor, the area of connecting movement flow is minimized, and the 1st, 1.5th, and 2nd floors are visually connected and physically closely connected, reducing the burden of moving between floors. Although it is two stories above the ground, if the floors are divided into different levels, it can be divided into four floors: 0.5, 1, 1.5, and 2. The living room is located at the center, connected half-floor by half-floor. A three-dimensional open living space has been created because the connecting movement flow is visible. A part of each floor communicates with the living room. Therefore, the family members can communicate in the living room, the inner plaza of the dwelling, no matter where they are located or on any floor. A parking lot (indoor) is planned on the 0.5th floor, the lowest level and access from the parking lot to the entrance is planned. On the first floor, an entrance, a living room, a kitchen, and a multi-purpose room would play the role of a common space connected to the yard through the veranda. The 1.5th floor is the main space for the family. Since there is a master bedroom, a dressing room, a bathroom, a laundry, and a family room, the first and 1.5 floors are the main activity space in this house until the children grow up and use their rooms. On the second floor, there are two children's rooms and a bathroom.
Form and material
An increasing number of clients in their 20s and 30s would live in detached houses with a yard instead of an apartment. The young client doesn't have a bid budget. The material of exterior walls could be stucco, an exterior insulation system that is easy to select within a limited budget. White stucco was used as the main material of exterior walls, and the facade was partially designed using cement brick tiles, gray stucco, and wood. Wood was used in buffer space as a highlight at the entrance on the first floor to avoid rain so that the building filling the long side of the site does not look stuffy in the direction of the north front road. On the second floor, there is sufficient light through the veranda space in the laundry and the bathroom on the left and right, and windows are designed toward the veranda to block the view from the road. As their housing type has changed from an apartment to a detached house, the client felt most burdened was the vertical movement floor (stairs) connecting the first and second floors, and the client expected the most was a large yard for their children to play about. The most burdensome and anticipated spaces in various design conditions, including room layout, area, budget, laws, and site conditions that the client wanted, were solved through skip floor. A variety of levels could be in a simple rectangular mass.










| 약사동 단독주택 설계자 | 정아름 _ 디오건축사사무소 건축주 | 오아름, 문정호 감리자 | 정아름 _ 디오건축사사무소 시공사 | 디오건축 설계팀 | 이현도, 최지현 설계의도 구현 | 디오건축사사무소 대지위치 | 울산광역시 중구 종가30길 26 주요용도 | 단독주택 대지면적 | 313.40㎡ 건축면적 | 120.52㎡ 연면적 | 199.72㎡ 건폐율 | 38.46% 용적률 | 63.73% 규모 | 2F 구조 | 철근콘크리트구조 외부마감재 | 스타코(외단열시스템), 시멘트벽돌타일, 이플러스창호 내부마감재 | 실크벽지, 자작나무, 포셀린타일 설계기간 | 2019. 08 – 2020. 08 공사기간 | 2020. 08 – 2021. 03 사진 | 윤준환 구조분야 : (주)제네럴구조엔지니어링 기계설비분야 : 금강디엔에스(주) 전기분야 :(주)보명엔지니어링 소방분야 : (주)보명엔지니어링 |
Skip Floor House Architect | Jung, A Reum _ Do architects Client | Oh, A Reum / Mun, Jung Ho Supervisor | Jung, A Reum _ Do architects Construction | Do construction Project team | Lee, Hyun do / Choi, ji hyun Design intention realization | Do architects Location | 26, Jongga 30-gil, Jung-gu, Ulsan, Korea Program | Residence Site area | 313.40㎡ Building area | 120.52㎡ Gross floor area | 199.72㎡ Building to land ratio | 38.46% Floor area ratio | 63.73% Building scope | 2F Structure | RC Exterior finishing | Stucco, Brick Tile, E plus window Interior finishing | Silk Wallpaper, Birch, Porcelain Tile Design period | Aug. 2019 – Aug. 2020 Construction period | Aug. 2020 – Mar. 2021 Photograph | Yoon, Joon Hwan Structural engineer | General structural engineering Mechanical engineer | Geumgang D&S Electrical engineer | Bomyeong engineering Fire engineer | Bomyeong engineering |
'회원작품 | Projects > House' 카테고리의 다른 글
| 포옥 2022.11 (0) | 2022.11.14 |
|---|---|
| 연희동 주택 2022.11 (0) | 2022.11.14 |
| 테트리스하우스 2022.11 (0) | 2022.11.14 |
| 연가 2018.02 (0) | 2022.11.09 |
| 송단주(松砃宙) 2018.02 (0) | 2022.11.09 |
