2022. 11. 9. 19:11ㆍ회원작품 | Projects/House
Connected House

“4대가 어우러지는 두 가구의 집.”
“각각의 공간에 대한 프라이버시는 지켜주되, 모든 구성원이 같이 식사할 수 있고 세대가 어우러질 수 있는 집.”
“2,450㎡의 넓은 대지, 개발이 시작된 단지에 처음 들어서는 집.”
허투루 집을 짓고 싶지는 않다는 건축주의 이러한 요구는 어쩌면 당연한 것인데도 흔히 단지형 전원주택이라는 건축에서는 쉽지만은 않은 요구였다.
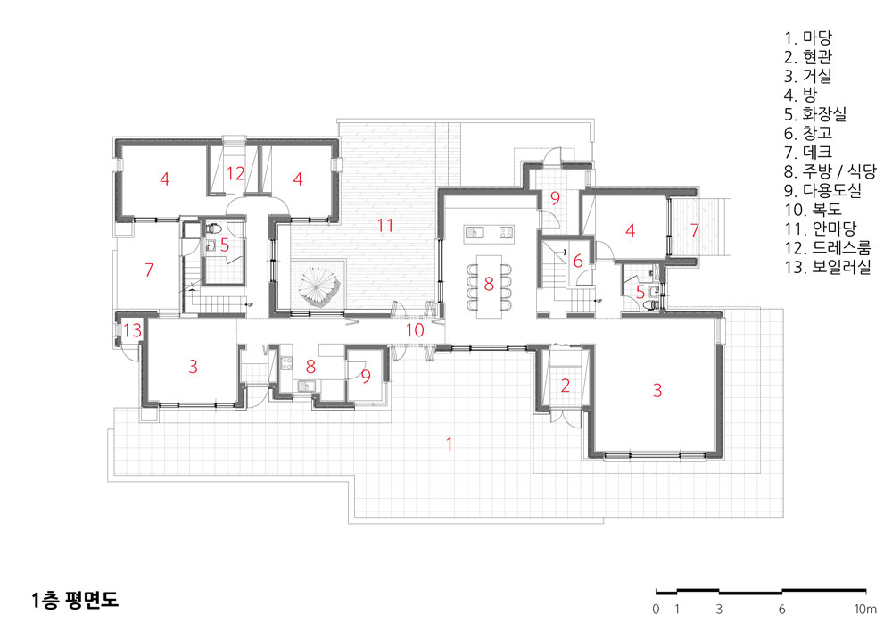
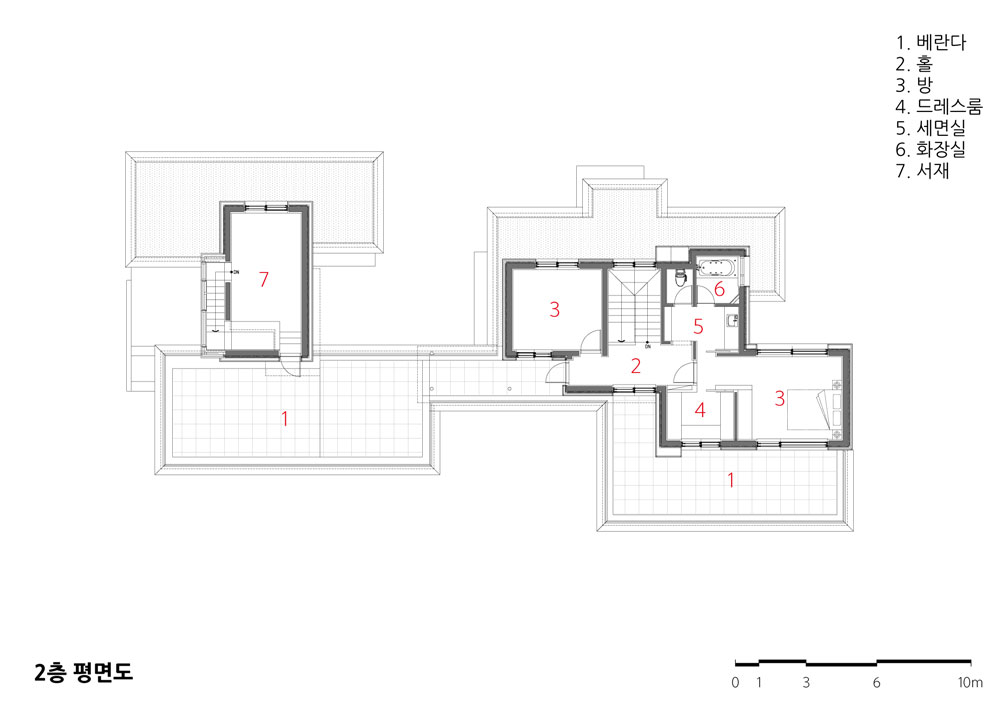
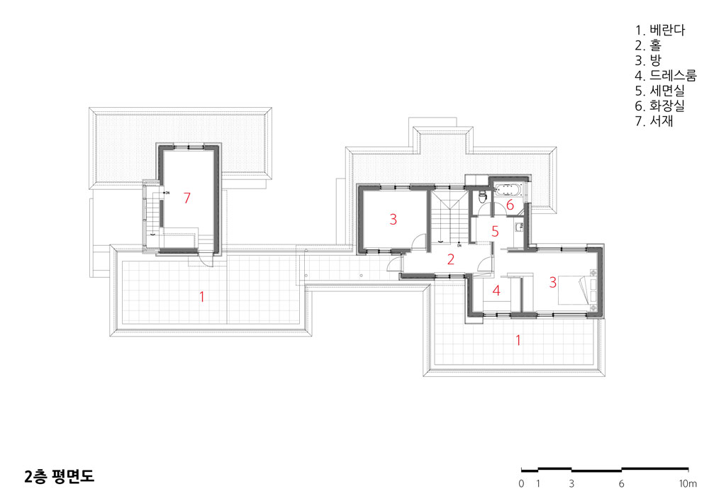
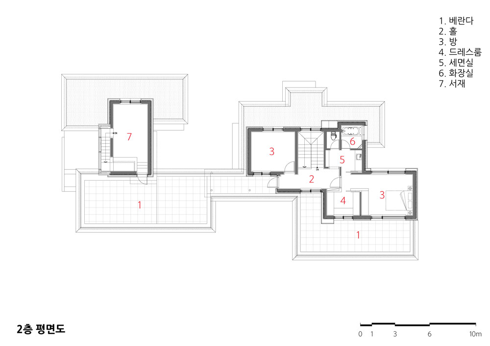
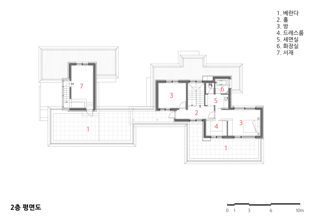
우선 남향으로 주향을 잡고, 두 세대가 공간적으로 분리되어 있지만 내부공간으로 연결되어지며 마당과 중정을 공유할 수 있도록 배치했다. 두 개의 현관을 두어 세대를 분리했으며 내부의 복도와 계단을 통한 동선의 끝에 각각의 실을 두어 공간을 완성했다. 그렇게 완성된 두 집은 하나의 연결통로를 통해 한 집이 되도록 했다.
전체가 연결된 동선의 중심에 주방과 식당을 배치하고, 중정을 두었으며, 복도의 끝에 각각의 거실을 배치했다. 이러한 공간의 배치는 시선의 방향에 따라 집안 곳곳을 볼 수 있고, 어디든 갈 수 있도록 했다. 연결통로는 세대와 세대를 나누기도 하지만, 전체적인 맥락을 완성하고 앞마당과 중정을 연결하는 오브제가 된다.
세대 간 각 실의 연결, 세대와 세대 간의 연결, 내부와 외부의 연결은 통합적으로 구성되어 결국 하나의 큰 집이 될 것이다.

- Two houses where four generations are living together.
- A house where privacy secured, but all family members can dine and be mingled together.
- A house that would be built first in the subdivision where it was just started and has a large area of 2,450㎡.
The client’s requirement that a house cannot be built carelessly is reasonable, but it is not easy in the architectural field of normal complex style pastoral house. Set the main facade to the south, and separated those two houses spatially, but interior spaces were connceted to share the garden and courtyard.
Two units were divided by it's own entrances and interior space was composed by arranging spaces at the end of corridor and stairs. Those two houses became a single house by combining with connecting path. Kitchen and dining area, and a courtyard were located at the center of moving path and livingroom were at the end of each aisle. This layout allows anyone can look and reach everywhere along the line of sight.
The connecting path was designed to divide spaces however it became an objet that finalize the overall context and connects the front yard and courtyard.
Connections between rooms, units, and interior/exterior spaces will eventually generate one large house.




















| 연가 설계자 | 조덕규, 홍석진 KIRA _ (주)건축사사무소 유덕건축 건축주 | 정기환 감리자 | 조덕규, 홍석진 _ (주)건축사사무소 유덕건축 시공사 | 장하윤, 한형준 설계팀 | 한만철, 이상귀, 홍석범 대지위치 | 강원도 춘천시 동내면 금촌로 107-20 주요용도 | 단독주택(다가구주택) 대지면적 | 2,450.00㎡ 건축면적 | 278.10㎡ 연면적 | 362.88㎡ 건폐율 | 11.35% 용적률 | 14.81% 규모 | 지상 2층 구조 | 철근콘크리트조 외부마감재 | 징크, 스타코플렉스, 치장벽돌, 고밀도목재패널, 아키타일 내부마감재 | 원목마루, 수성페인트, 아트월 설계기간 | 2015. 10 ~ 2016. 03 공사기간 | 2016. 03 ~ 2016. 12 사진 | 윤준환 기계설비분야 : (주)사조기술단 전기분야 : (주)사조기술단 |
Connected House Architect | Cho, Deokkyu / Hong, Seokjin _ Yudeok Architects Inc. Client | Jung, Kihwan Supervisor | Cho, Deokkyu / Hong, Seokjin _ Yudeok Architects Inc. Construction | Jang, Hayoon / Han, Hyungjun Project team | Han, Mancheol / Lee, Sanggwi / Hong, Seokbum Location | 107-20, Geumchon-ro, Dongnae-myeon, Chuncheon-si, Gangwon-do, Korea Program | Detached house Site area | 2,450.00㎡ Building area | 278.10㎡ Gross floor area | 362.88㎡ Building to land ratio | 11.35% Floor area ratio | 14.81% Building scope | 2F Structure | RC Exterior finishing | Zinc, Stuc-O-flex, Brick, Wood panel, Architile Interior finishing | Wood floor, Water paint, Art wall Design period | Oct. 2015 ~ Mar. 2016 Construction period | Mar. 2016 ~ Dec. 2016 Photograph | Yoon, Junhwan Mechanical engineer | Sajo ENC Electrical engineer | Sajo ENC |
'회원작품 | Projects > House' 카테고리의 다른 글
| 약사동 단독주택 2022.11 (0) | 2022.11.14 |
|---|---|
| 테트리스하우스 2022.11 (0) | 2022.11.14 |
| 송단주(松砃宙) 2018.02 (0) | 2022.11.09 |
| 누하당(樓下堂) 2018.02 (0) | 2022.11.09 |
| 쉐어하우스 프렌즈 2018.01 (0) | 2022.11.07 |