2022. 11. 9. 19:05ㆍ회원작품 | Projects/House
SONG DAN JU

송단주(松砃宙) 소나무 숲속 하얀 조약돌
나는 공동주택 생활을 정리하고 부모님(1세대)과 함께 전원생활을 하기로 결정했다.
148제곱미터 이내에서 3세대가 거주하는 공간을 구성하고자, 개인공간은 철저히 구분하면서 중정 등의 외부 매개공간을 통해 공동생활에 지장이 없도록 전통한옥의 ㄷ자 구조를 모티브로 평면구성을 했다.
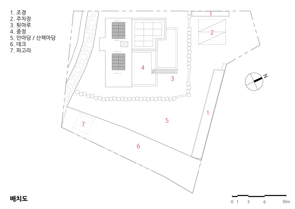
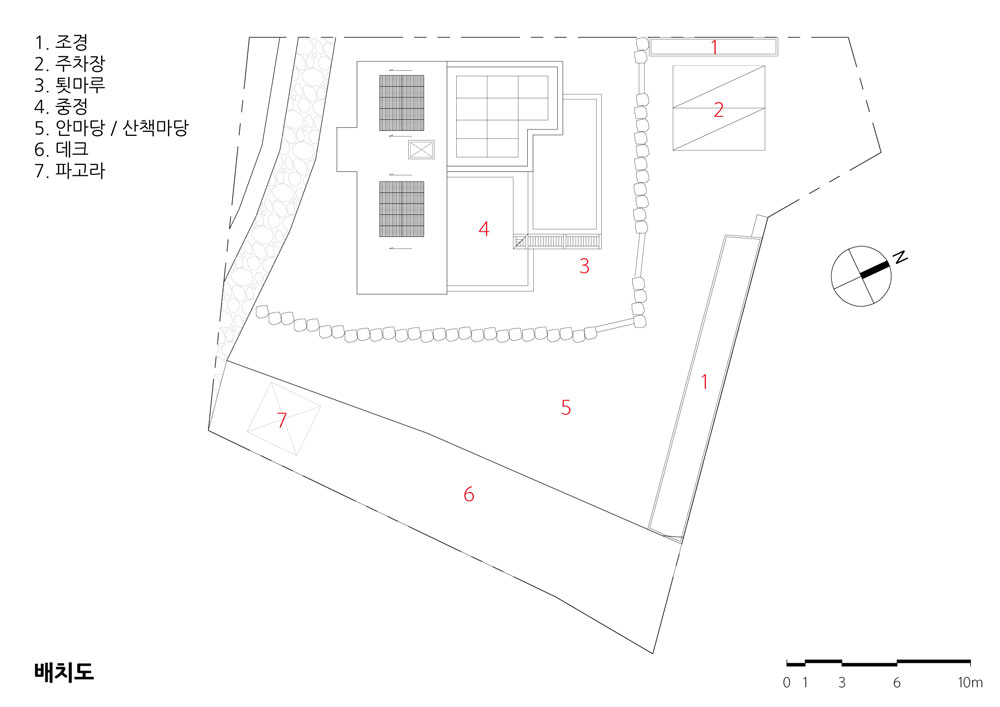
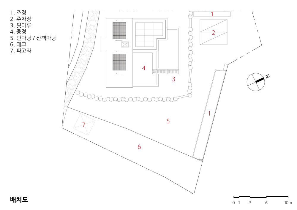
평면구성(외부) _ 대지의 형상을 고려하여 바깥마당(주차장/외부영역)과 안마당(가족공용공간)으로 구분했다. 안마당은 중정을 중심으로 툇마루(자녀공간)와 처마가 있는 테라스(노부모공간)의 사적공간과 파고라(정원시설물)와 외부데크 등의 공용공간으로 분리했다.
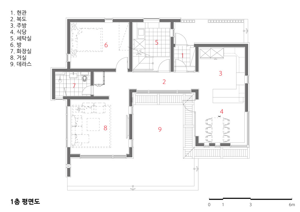
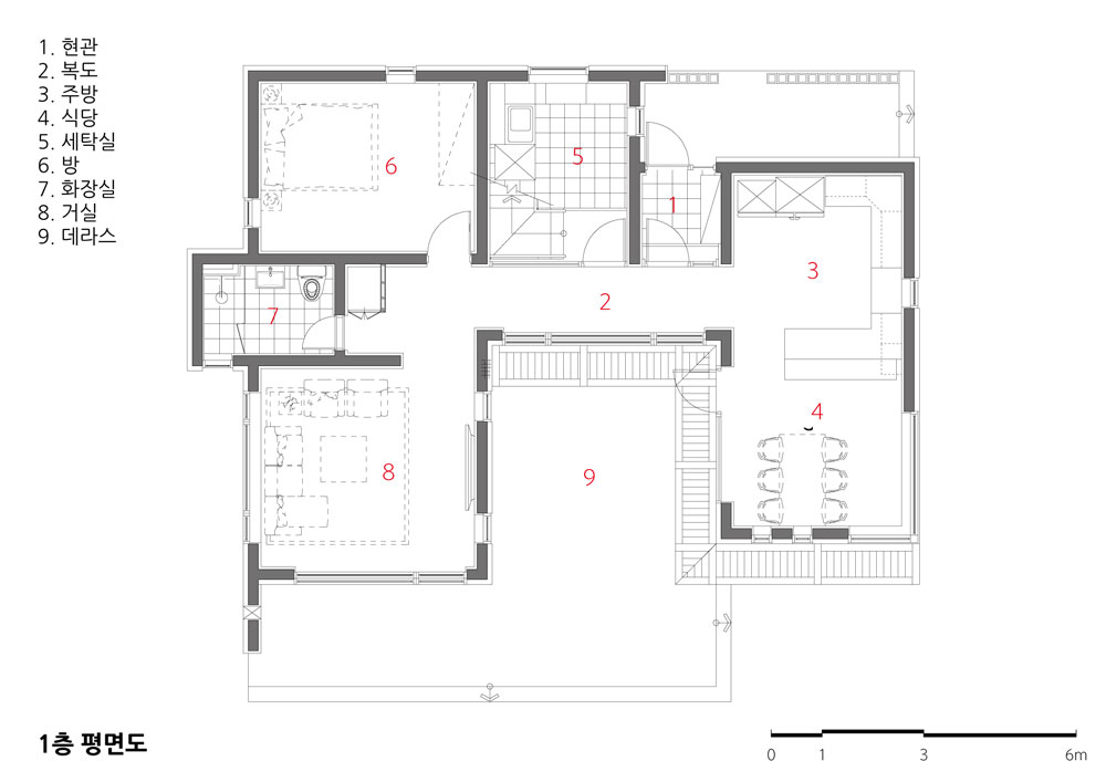
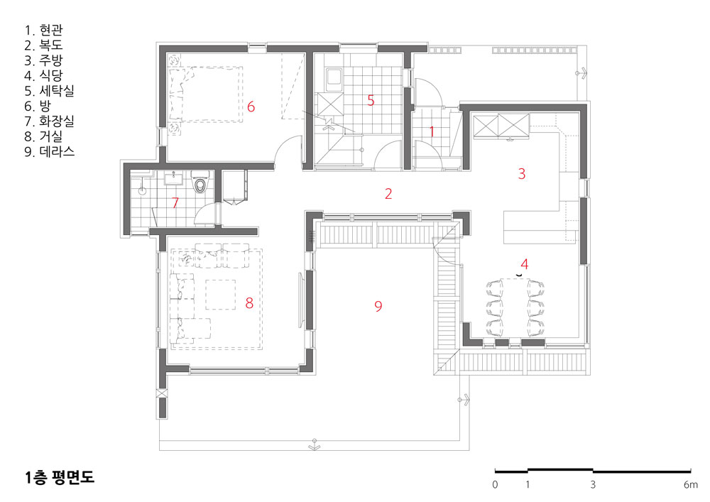
평면구성(내부) _ 건물 가운데 위치한 중정을 기준으로 노부모의 생활공간인 ‘안방+거실+처마’가 있는 테라스공간과 공용공간이나 집사람이 주로 생활하며 휴식할 수 있는 ‘주방+식당+자녀’와 함께하는 툇마루의 개인공간을 구분했으며 평면 형태상 거실과 식당은 생활소음 차단이 가능하도록 구성했다. 노부모 공간 중 처마가 있는 테라스는 거실과 정원을 직접 연결하며, 날씨에 상관없이 휴식을 취할 수 있도록 한다.
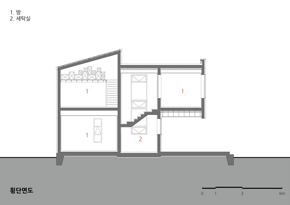
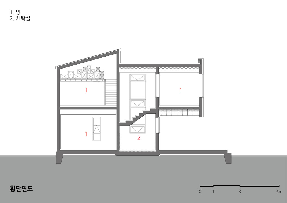
층별구성 _ 기본적인 층별구성은 1층 부모님(1세대) 공간과 2·3세대의 공용공간으로 구성하고, 2층은 2·3세대 전용공간으로 구분했다. 2층 가족실(공용공간)의 컴퓨터 책상에 앉아서 중정과 마당을 조망할 수 있으며, 2층 안방의 외부 테라스는 부부만의 전용 휴식공간으로 만들었다. 복층건물의 특성상 2층은 상대적으로 1층보다 덥기 때문에 대류의 흐름을 고려하여 계단실 최상부와 가족실 천정에 환기창을 설치했으며, 더운 공기를 배출하여 쾌적한 환경조성이 가능하도록 했다.
외관분석 _ 정형화된 육면체를 분절과 결합을 통해 건물의 불륨감을 강조했으며, 현관 입구와 2층 테라스 벽면에 타공블럭을 사용하여 공간감을 확보함과 동시에 개방감도 느낄 수 있도록 한다. 건물 매스분석을 통한 내외부 조명 배치로 야간에도 음영에 따라 건물의 볼륨이 강조되도록 했다.
에너지절약 _ 전통한옥 처마의 장점을 도입하여 자연 채광을 통한 에너지 절약과 대류의 흐름을 이용한 환기시스템으로 쾌적한 실내환경이 유지되도록 했다. T150 단열재와 3중 로이 복층유리를 적용했고, 외부는 상대적으로 저렴하나 단열성능이 좋은 외단열 공법을 사용했다. 창호는 기밀성이 좋은 시스템 창호를 사용해 열손실을 줄이도록 노력했다. 처마와 채광창(벽면 상부 가로창)을 통해 계절별 일조량을 확보하고 조절할 수 있으며, 특히 겨울철 적정 일조량을 확보해 놓으면 비상 난방시에 실내온도 17~18℃를 유지할 수 있다.

White Pebbles in the Songdanju(松砃宙) Pine Tree Forest
I decided to finish my apartment house life and live with my parents(first generation).
In order to organize the space where a family of three generations resides in 45 pyeong(149 m2) or less, the personal space is thoroughly divided, and the floor plan is designed with the motif of the traditional ㄷ-shaped structure of the traditional Hanok so that there is no obstacle to communal living through outdoor intermediate spaces such as a courtyard.
Floor Plan Composition(Outdoor)
Considering the shape of the site, it is divided into an outer yard(parking lot/outside) and an inner courtyard(family’s communal space). Also the inner courtyard is separated into a private space including a porch(children's space) and a terrace with eaves(old parents' space), and a communal space including a pergola(garden facilities) and an outside deck, centered on the courtyard.
Floor Plan Composition(Indoor)
Based on the center of the building, I divided a terrace space with 'main room+living room+eaves' for the elderly parents' living space and a communal space but a private space of porch with ‘kitchen+dining room+children' where my wife spends most of her time and rests. And the living room and the dining room were constructed on the floor plan to block daily noise. Among old parents’ spaces, the terrace with the eaves connects the living room with the garden directly, allowing them to relax regardless of the weather.
Floor Composition
The basic floor plan consists of the old parents’(first generation) space on the 1st floor and the communal space on the second and third generations. And the 2nd floor is divided into the second and third generations’ private spaces. From the family room on the 2nd floor, (communal space) we can overlook the courtyard and the garden while sitting on the computer desk. The outside terrace on the 2nd floor is a private resting area only for the couple(second generation).
Because of the nature of the multi-storied building, the 2nd floor is relatively warmer than the first floor, so ventilation windows are installed on the top of the staircase and the family room in order to discharge warm air and create pleasant environment.
Appearance Analysis
I emphasized the volume of the building through the segmentation and combination of regular hexahedron, and ensured a sense of space and openness by using perforated blocks on the terrace wall of the second floor. Interior and exterior lighting design were developed with building mass analysis to emphasize the volume of the building by the shade at night.
Energy Saving
By applying the merits of traditional Korean house eaves, I made it possible to maintain a pleasant indoor environment with energy saving through natural light and ventilation system using convection flow. T150 insulation and triple-layered LOW-E double-glazing were used, and applied external insulation method which is relatively inexpensive but has good insulation performance. In relation to windows, I tried to reduce heat loss, using high-tight system windows.
Through the eaves and the skylight(horizontal window at the upper side of the wall), the amount of sunshine can be secured and adjusted. Especially, if the proper amount of sunshine is secured during the winter, the room temperature can be maintained at 17~18℃ in the emergency heating mode.



















| 송단주(松砃宙) 설계자 | 이주호 KIRA _ 건축사사무소 하우스팩토리 건축주 | 김미정 감리자 | 이주호 시공사 | 김미정(건축주 직영공사) 설계팀 | 정미선 대지위치 | 강원도 강릉시 성산면 송암리 송두길 261-29 주요용도 | 단독주택 대지면적 | 813.00㎡ 건축면적 | 114.15㎡ 연면적 | 146.95㎡ 건폐율 | 14.04% 용적률 | 18.07% 규모 | 지상 2층 구조 | 철근콘크리트조 외부마감재 | 외단열복합시스템, 디자인블럭, 리얼징크 창호 – LG 슈페세이브5, LG 시스템창(로이3중) 내부마감재 | 석고보드 위 친환경수성페인트(벤자민무어), 구정강마루, 폴리싱타일 설계기간 | 2016. 02 ~ 2016. 09 공사기간 | 2016. 10 ~ 2017. 01 사진 | 이주호 |
SONG DAN JU Architect | Lee, Juho _ House Factory Client | Kim, Mijeong Supervisor | Lee, Juho Construction | Kim, Mijeong(Direct management works) Project team | Jung, Misun Location | 261-29, Songdu-gil, Seongsan-myeon, Gangneung-si, Gangwon-do, Korea Program | Detached House Site area | 813.00㎡ Building area | 114.15㎡ Gross floor area | 146.95㎡ Building to land ratio | 14.04% Floor area ratio | 18.07% Building scope | 2F Structure | RC Exterior finishing | External thermal insulation composite system, Design brick, Zinc, Window _ LG SUPER Save 5, LG System Window Interior finishing | Water paint finish above Plaster board(Benjamin moore), Laminate floor, Polishing tile Design period | Feb. 2016 ~ Sep. 2016 Construction period | Oct. 2016 ~ Jan. 2017 Photograph | Lee, Juho |
'회원작품 | Projects > House' 카테고리의 다른 글
| 테트리스하우스 2022.11 (0) | 2022.11.14 |
|---|---|
| 연가 2018.02 (0) | 2022.11.09 |
| 누하당(樓下堂) 2018.02 (0) | 2022.11.09 |
| 쉐어하우스 프렌즈 2018.01 (0) | 2022.11.07 |
| 청연재(淸緣齋) 2018.01 (0) | 2022.11.07 |