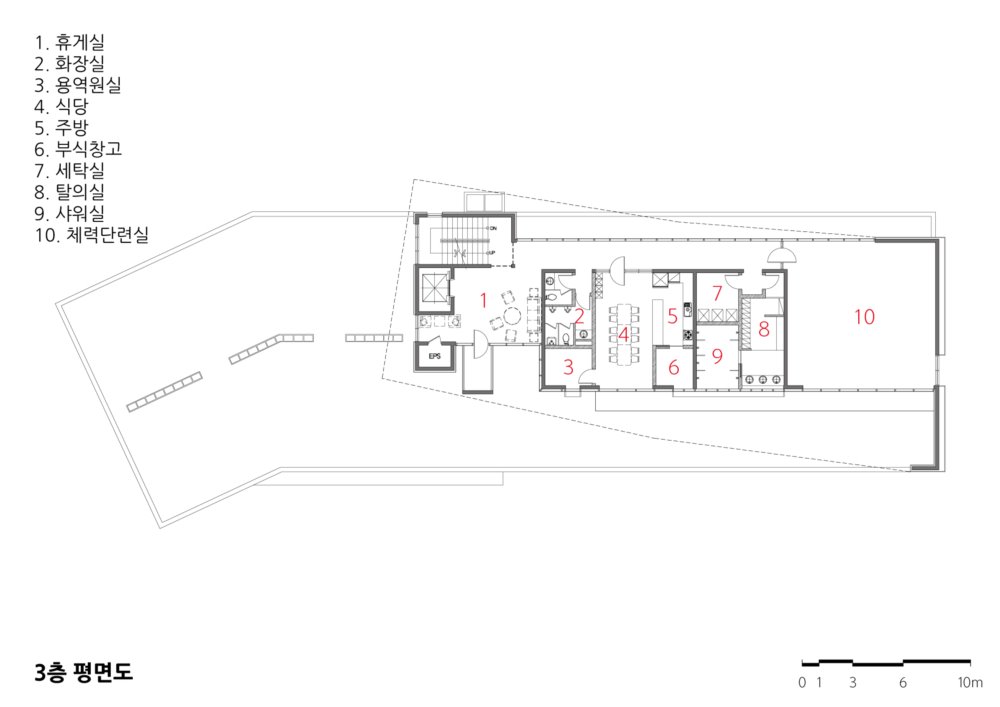
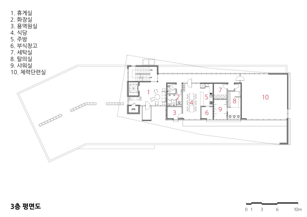
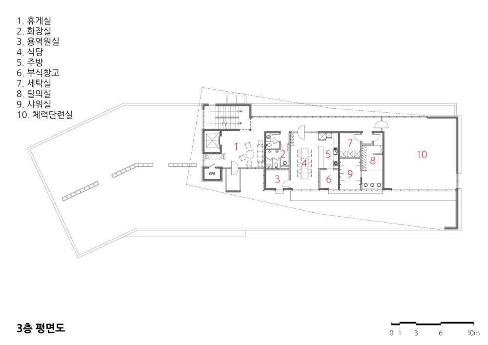
2022. 12. 1. 10:16ㆍ회원작품 | Projects/Public
Guam Fire House

신주거지인 도안지구와 구암동 일대의 안전을 위한 센터로서 대로에 길게 접한 대지의 특성을 살려 새로운 형태의 랜드마크가 되도록 설계했다.
과거 소방서의 상징이었던 망루는 돌출된 빨간 발코니로, 곧고 넓은 대로에 길게 접한 건축물은 꺽여 올라가는 사선의 선으로 인지되어 현재 119 안전센터의 새로운 상징성을 가지며 지역의 랜드마크가 되도록 한다.
관공서로서의 소방서가 갖고 있는 획일적이고 단순한 형태를 탈피하고 새로운 상징성과 형태를 통한 소규모 관공서의 변화 가능성을 제시하고자 했다. 무채색의 석재와 보드로 구성된 외부는 강렬한 빨강색의 강조색과 확실한 대비를 가져와 랜드마크의 상징성을 더욱 부각시키도록 했다.

It is designed as a new type of landmark by taking advantage of the characteristics of the land that is stretched out on the street as a safety center for the new residental area of Doan District and Guam-dong.
The watchtower, which was a symbol of the fire station in the past, is a protruding red balcony. The building that has been touched with the straight and wide road is designed to be recognized as a curved up slant line which is now a new symbol of 119 Fire House and becomes a landmark of the area.
I tried to break out the uniform and monotonous shape of the fire station as a public office and suggest a possibility of a small government office through new symbolism and form. The exterior, composed with achromatic stones and boards, has significant contrast to the intensly highlighted red color and pointed out the landmark's symbolism.




















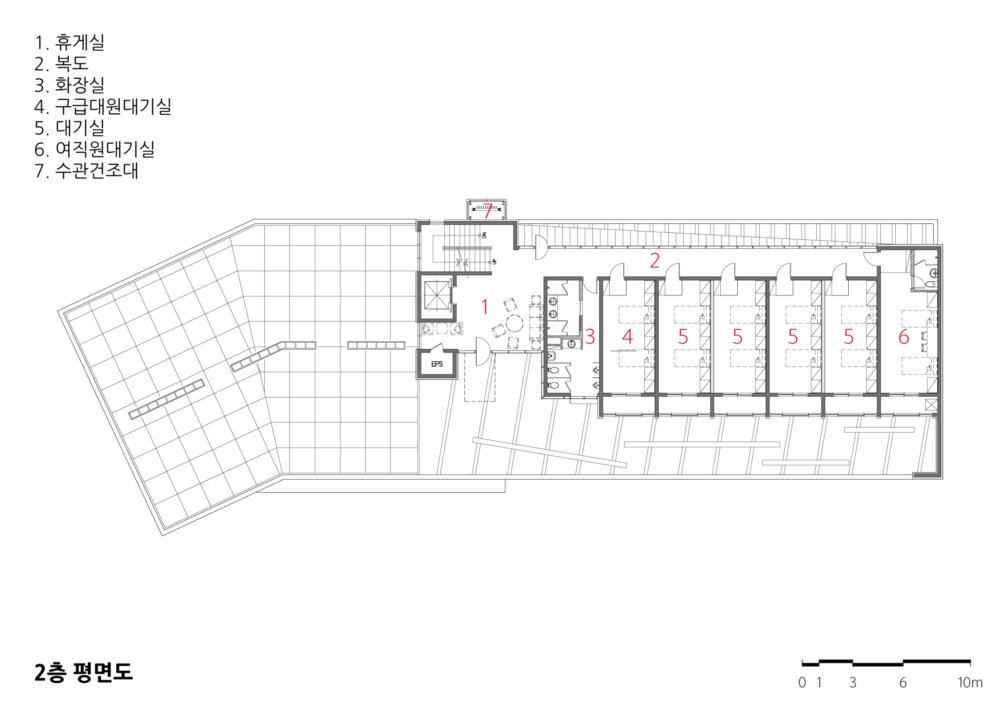
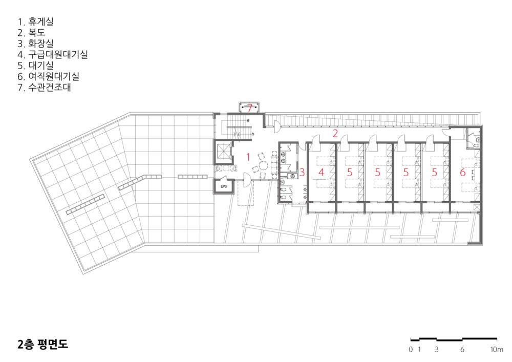
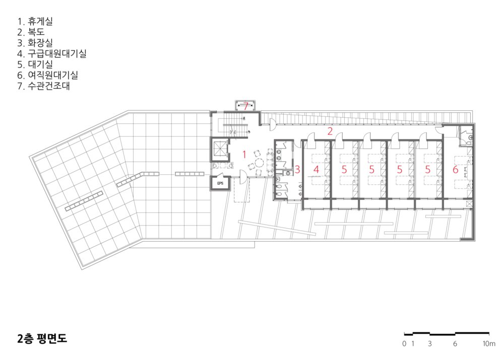
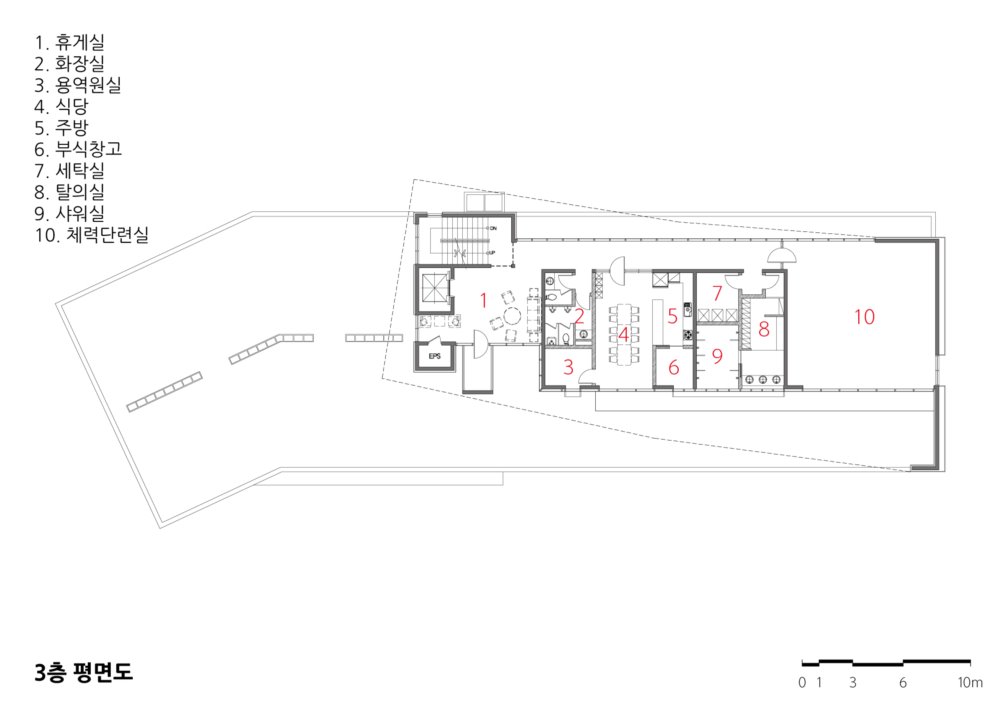
| 구암 119 안전센터 설계자 ┃ 김용각 KIRA ┃ 김용각 건축사사무소 건축주 | 대전광역시 감리자 | 김연욱 _ 도담 건축사사무소 시공사 | 주식회사 원평종합건설 설계팀 | 오선미, 이기동, 김민, 박민규 대지위치 | 대전광역시 유성구 월드컵대로 263 주요용도 | 공공업무시설 대지면적 | 2,569.00㎡ 건축면적 | 748.11㎡ 연면적 | 1,288.14㎡ 건폐율 | 29.12% 용적률 | 50.14% 규모 | 지상 3층 구조 | 철근콘크리트조 외부마감재 | 고흥석, 내풍압단열보드 내부마감재 | 친환경수성페인트, 화강석물갈기 설계기간 | 2013. 10 ~ 2014. 03 공사기간 | 2015. 01 ~ 2016. 02 사진 | 양우상 구조분야 : 자연구조기술사사무소 기계설비분야 : 에이펙엔지니어링 전기분야 : HK엔지니어링 소방분야 : 나래엔지니어링 |
Guam Fire House Architect | Kim, Yongkak _ KYK Architects & Planners Client | Daejeon Metropolitan City Supervisor | Kim,Younwook _ Dodam Architects Construction | Onepyong Construction Inc. Project team | Oh, Sunmi / Lee, Kidong / Kim, Min / Park, Minkyu Location | 263, World Cup-daero, Yuseong-gu, Daejeon, Korea Program | Public service facilities Site area | 2,569.00㎡ Building area | 748.11㎡ Gross floor area | 1,288.14㎡ Building to land ratio | 29.12% Floor area ratio | 50.14% Building scope | 3F Structure | RC Exterior finishing | Granite stone, Wind pressure _ Board insulation Interior finishing | Eco-friendly water paint , Granite stone _ Honed Finishing Design period | Oct. 2013 ~ Mar. 2014 Construction period | Jan. 2015 ~ Feb. 2016 Photograph | Yang, Woosang Structural engineer | Jayeon Structural Engineering Mechanical engineer | Ace Professional Engineer Company Electrical engineer | HK Engineering Fire engineer | Narea Engineering |
'회원작품 | Projects > Public' 카테고리의 다른 글
| 인천 송도3동 행정복지센터 2018.07 (0) | 2022.12.05 |
|---|---|
| 통합청주시 상당구청사 2018.05 (0) | 2022.12.01 |
| 청주국민체육센터 및 스쿼시경기장 2018.05 (0) | 2022.12.01 |
| 신보령화력발전 종합사무실 2018.04 (0) | 2022.12.01 |
| 청양소방서 2018.03 (0) | 2022.11.30 |