2022. 12. 1. 14:16ㆍ회원작품 | Projects/Public
Cheongju National Sports Center & Squash Court

지금의 청주시는 도넛 형태로 작은 청주시를 에워싸고 있던 청원군과 통합되면서 서울시보다 더 넓은 면적을 가지게 됐다. 통합시민들은 도시와 농촌이 만나서 생기는 여러 도시 문제를 걱정했기 때문에 많은 정책들이 통합을 목표로 했으며 이 프로젝트 시작될 때 청주시의 화두는 통합이었다.
건축물이 들어선 대지는 예전 청주시와 청원군이 만나는 경계의 아직 도심화 되지 않은 마을에 위치한다. 부지의 남서쪽은 청주 중심지를 둘러싸는 산자락을 마주하고, 부지 북동쪽으로는 작은 하천이 흐른다. 부지에서 남동쪽으로 약 100m 떨어진 곳에는 청주의 하나남은 화장장인 목련로가 산자락 위로 지나간다.
청주시에서 하나밖에 없는 화장장으로 가는 길에서 드러나는 건축이기에 주변 자연과 연결되어야 한다고 믿었다. 또한 이 건물이 통합의 상징물로 청주 시민들에게 자리 잡기 바라는 맘을 담았다. 외부 동선과 외부 마당들은 기존 마을길에 순응하고, 새로운 실내 동선과 기능들은 긍정적인 변화와 새로운 통합의 상징이 되도록 설계했다.
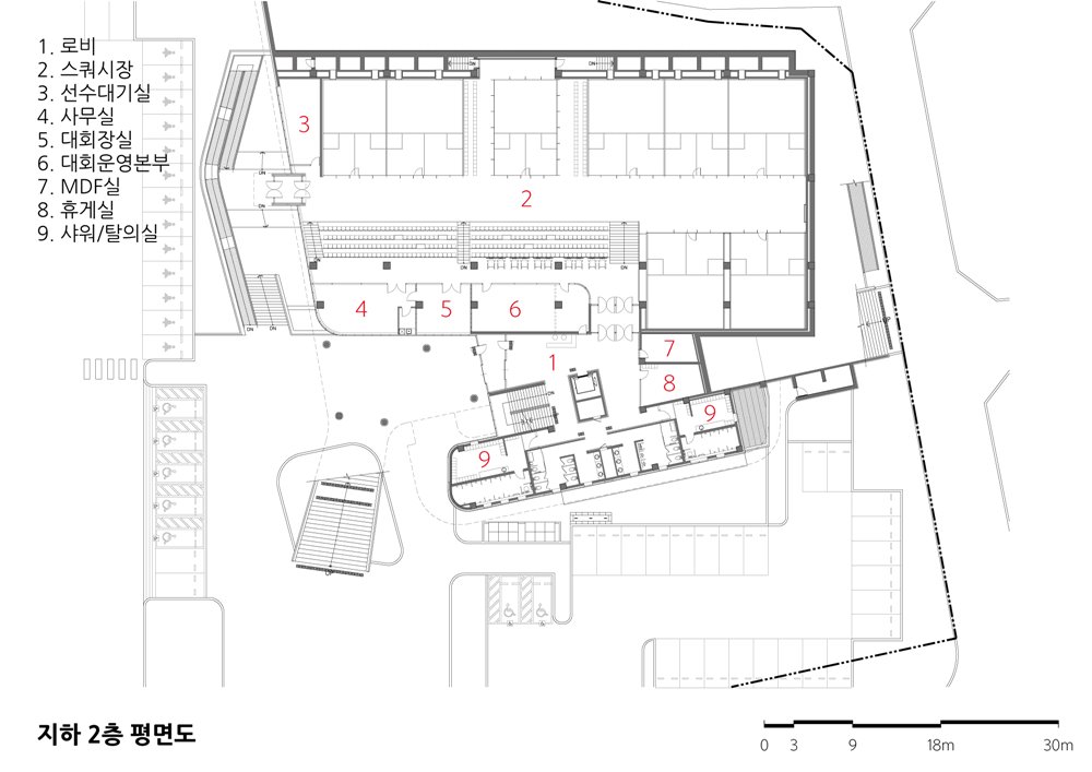
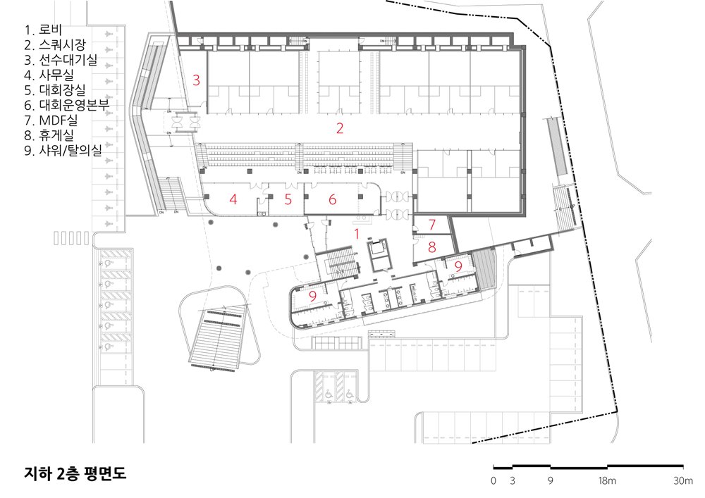
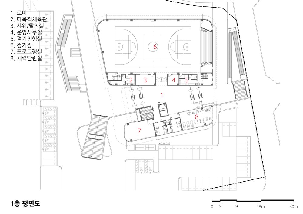
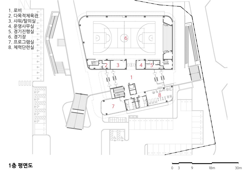
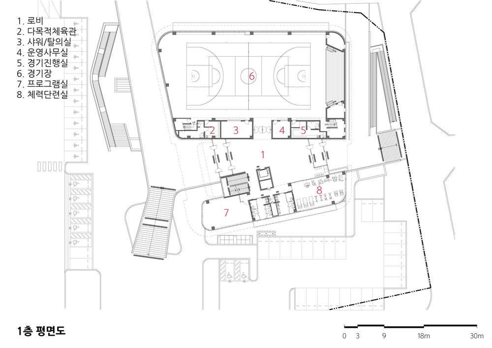
다목적 체육관, 소규모 마을 도서관, 다목적 세미나실, 그리고 전국 체전을 위한 스쿼시 경기장까지 다양한 기능들이 서로 연결되고, 혹시나 부족할 수 있는 기능들을 서로 보완할 수 있도록 설계했다. 여러 데크들과 마당들이 연계되어 외부 형태에서도 다양한 기능을 담은 건축물임이 드러나도록 계획했다.
복합 기능 건물임에도 단순한 건축형태를 사용하여 멀리서도 마을의 건축물임을 인지할 수 있도록 설계했다. 마을 사람들과 외부 이용객들을 위한 동선들은 산자락의 지형을 따라 다양한 프로그램들을 편리하게 연결한다.
다양한 기능들이 각각의 마당과 데크로 구성되어 있고, 이를 자연스럽게 연결하는 동선계획과 자연 지형들이 함께 어우러져 통합이라는 컨셉을 구현할 수 있었다. 자연을 품은 청주국민체육센터는 마을의 새로운 시작을 알릴 수 있을 것이다.

After merge with the Chungwon-gun, the total area of Cheongju-si is now larger than Seoul. To address the concerns related to possible conflicts between the two formerly different town - one predominantly urban and the other predominantly rural, Cheonju-si laid out vast and diverse development plans for “unification” and major concern of the project at the beginning was how to be united.
The project site is located in a village near the border between the former Cheongju-si and Cheonwon-gun. The site has a mountain surrounding the downtown area of Cheongju-si at the southeast and a small river runs by the northeast of the site. Besides, Mokryeon-ro passes above the hills in south, about 100 meters away from the site. Mokryeon-ro leads to Mokryeon Park, which is the only crematory facility within Cheongju-si.
We believed the new Cheongju Public Sports Center & Squash Courts has surrounding nature and urban region formed in the former border of the Cheonju-si and Chungwon-gun. We envisioned the engagement with nature that is well utilized and celebrated in the architecture to be also expressed as a symbol of ‘unification’ viewed from the Mokryeon-ro, which is the raised main artery between the urban core and the Mokryeon Park, which is the only crematory facility within Cheongju-si.
In consideration of the village community who will embrace the new building as a community hub, the exterior circulation system and courtyards of the new building corresponds to the existing roads and hubs in the village. The interior circulation system and programs expresses the positive changes from the unification.
This multi-functional building has various programs including an indoor sports arena, a community library, multipurpose seminar rooms, and squash courts, which meet the qualification of the national competition. Many decks and courtyards connect and support these various spaces providing optimum use of the facilities.
Simple forms could establish unique image of the town. The circulations for the village community and visitors connect the various programs while corresponding to the topography of the site.
Various functins composed with the yards and decks and curvy passages connecting those spaces were combined and creates the concept of unity. Cheongju Public Sports Center & Squash Courts expresses simple but elegant presence of the unified growth that the community has been aspiring for.










| 청주국민체육센터 및 스쿼시경기장 설계자 ┃ 김병익 KIRA _ 신성종합 건축사사무소(주) 건축주 | 청주시 감리자 | (주)예원엔지니어링 건축사사무소 시공사 | 동양건설(주) 설계팀 | 김용석, 김지호, 조현규, 이성표, 김광식, 박희영 대지위치 | 충청북도 청주시 상당구 다리실로 255 주요용도 | 운동시설 대지면적 | 9,198.00㎡ 건축면적 | 1,655.07㎡ 연면적 | 4,240.03㎡ 건폐율 | 17.99% 용적률 | 21.26% 규모 | 지하 2층, 지상 2층 구조 | 철골철근콘크리트조 외부마감재 | 알루미늄복합패널, 징크패널, 로이복층유리 내부마감재 | 화강석, 수성페인트, 스포츠플로어링 설계기간 | 2015. 09 ~ 2016. 04 공사기간 | 2016. 08 ~ 2017. 09 사진 | 안호경 구조분야 : (주)센구조연구소 기계설비분야 : (주)미래이앤지 전기·소방분야 : (주)태창전기설계사무소 |
Cheongju National Sports Center & Squash Court Architect | Kim, Byungik _ Shinsung Architects & Associates Client | Cheongju City Supervisor | Yewon Architect & Engineers Construction | Dongyang Engineering & Construction Corp. Project team | Kim, Yongseok / Kim, Jeeho / Cho, Hyungyu / Lee, Sungpyo / Kim, Kwang-sig / Park, Heeyoung Location | 255, Darisil-ro, Sangdang-gu, Cheongju-si, Chungcheongbuk-do, Korea Program | Sports Center Site area | 9,198.00㎡ Building area | 1,655.07㎡ Gross floor area | 4,240.03㎡ Building to land ratio | 17.99% Floor area ratio | 21.26% Building scope | B2F - 2F Structure | SRC Exterior finishing | AL panel, Zinc panel, Low-E paired glass Interior finishing | Granite, Water paint, Sports flooring Design period | Sep. 2015 ~ Apr. 2016 Construction period | Aug. 2016 ~ Sep. 2017 Photograph | Ahn, Hogyeong Structural engineer | SEN Engineering Group Mechanical engineer | Mirae ENG. Electrical·Fire engineer | Taechang Electric Engineering |
'회원작품 | Projects > Public' 카테고리의 다른 글
| 인천 송도3동 행정복지센터 2018.07 (0) | 2022.12.05 |
|---|---|
| 통합청주시 상당구청사 2018.05 (0) | 2022.12.01 |
| 신보령화력발전 종합사무실 2018.04 (0) | 2022.12.01 |
| 구암 119 안전센터 2018.04 (0) | 2022.12.01 |
| 청양소방서 2018.03 (0) | 2022.11.30 |