2025. 4. 30. 10:15ㆍ회원작품 | Projects/House
CHAE SO Haus

건축주 부부의 두 딸들의 이름을 합쳐서 ‘채소네’라고 이름 지었다. 중정을 통해 주변 환경을 받아들이고 지키면서 주택의 삶에서 자연과의 균형을 잡는 모습이 채소의 효능과도 닮아있다.
건물의 중정은 주택 단지의 공개공지와 연결하여 단지 환경의 연속성을 확보했다. 주변 환경을 받아들이고 지키면서 균형을 잡는다. 빛, 바람, 조망 등의 환경을 끌어들이고 때로는 중정의 문을 닫아 사생활을 보호한다.
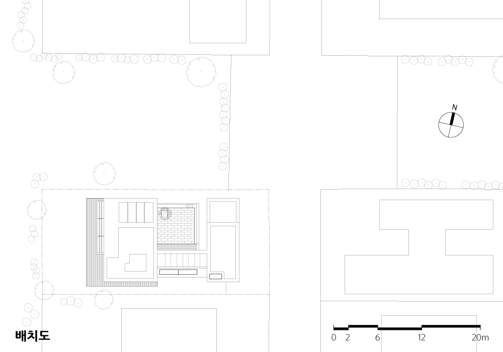
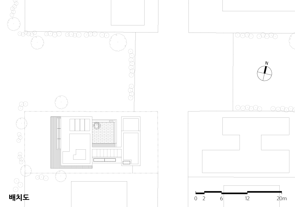
긴 대지와 공개공지
대지는 골프장의 풍경과 만나는 전면이 좁은 직사각형의 긴 형태이기 때문에 주택 내에서 풍경을 담을 수 있는 부분이 한정적이었다. 이 점을 보완하기 위해 주택 내에 중정을 만들어 대지 내부의 풍경을 조성했다. 중정은 공개공지 쪽으로 열어 가까이 그리고 멀리 교차하는 풍경을 끌어들여 대지 전체가 균형적으로 외부와 소통할 수 있게 했다. 공개공지와 중정 사이의 문은 라이프 스타일에 따라 열고 닫으며 집의 풍경과 환경을 바꿀 수 있는 흥미로운 요소로 작용한다.
분리와 연결
아버지 집 설계에 관여하면서 알게 된 건축주 부부는 두 딸이 있다. 두 딸과 부부가 살 집이기 때문에 개별 공간들은 각각 분리하여 평면을 계획했다. 분리된 공간은 두 개의 영역으로 나누어지지만 그 사이에 중정을 형성하여 전체적인 균형을 이룬다. 두 영역은 서로의 간섭을 최소화하며 각각의 위치에서 서로 다르게 중정을 받아들인다.
자녀가 자라도 각각의 공간이 시기에 맞게 이용될 수 있도록, 개별적 공간구성을 통해 다양한 용도로의 이용 가능성을 열어두었다. 각각의 개별 실들은 공간적으로 분리되어 있지만 계단과 복도를 통해 기능적으로 연결된다. 계단과 복도에서 중정을 지나 공개공지로 확장되는 공간을 통해 외부와 내부를 시각적으로 연결시켰다. 이는 시간과 계절에 따라 달라지는 풍경과 빛을 온전히 느끼며 자연스레 시선이 머물게 한다.
익숙한 것을 낯설게 보기
이미 주위에 있던 것을 다룰 뿐인데 익숙하게 써 왔던 외장재료인 아줄그레이의 표면을 긁어내어 자연스러움을 더하고 낯설게 한다. 이 재료는 구름이 낀 날에는 하나의 덩어리감으로 보이고 햇살이 드러난 날에는 주연으로 바뀌어 디테일을 뽐낸다. 이 재료의 물성상 긁어낸 부분이 떨어져 나가면서 시간의 표정을 연출한다. 현관 벽과 주차장 천장은 친근감을 주는 목재를 사용하여 따듯함과 주출입구의 흡인력을 더한다.
주택단지의 공개공지와 중정을 연결하여 채소의 기능처럼 환경을 지키고 균형을 잡는다. 중정을 중심으로 나누어진 두 매스 사이에 남쪽에 면하도록 경사지붕을 이용하여 태양광 발전시스템을 설치한다. 중정의 수공간은 찢어진 벽 틈새로 자연의 물소리가 흘러나온다. 딸들은 물장구를 치고 동네 주민이 와서 말을 건네고 이야기를 한다.







‘CHAE SO Haus’, created by the combination of the names of the client’s two daughters, means vegetables. Vegetables are associated with balancing nutrients also protect the environment compared to meat production. This is why this house is ‘CHAE SO Haus’.
The building’s courtyard is connected to the public garden ensures continuity of the complex’s environment. It maintains balance by accepting and protecting the surroundings. It attracts environments such as light, wind, and views, and sometimes closes the door of courtyard to protect privacy.
Since the site is a long, rectangular shape with a narrow front facing the golf course landscape, the area that can capture the scenery in the house was limited. To complement this point, a courtyard was built in the house to create a landscape inside the site. The courtyard was opened toward the public garden, attracting the intersecting landscapes near and far and allowing the entire site to communicate with the outside in a balanced manner. The door between the public garden and the courtyard opens and closes according to lifestyle, acting as an interesting factor that can change the landscape and environment of the house.
The client and his wife, whom I got to know while involved in the design of the client’s father’s house, have two daughters. Since this is a house where a couple and their two daughters will live, the floor plan was designed to separate individual spaces. The separated space is divided into two areas, but a courtyard is formed between them for overall balance. The two areas, which minimize interference with each other, accept the courtyard differently at each location.
The possibility of use for a variety of purposes was opened through individual space configuration so that each space can be used appropriately as the children grow up. Each spatially separated room is functionally connected through stairs and hallways. The outside and inside were visually connected through a space extending from the stairs and hallways through the courtyard to the public garden. It naturally catches your attention as you fully feel the scenery and light that change depending on the time and season.
Exterior materials are things that were already around, but scraping the surface of Azul Gray, a familiar exterior material, adds naturalness and makes it unfamiliar. This material looks like a single lump on cloudy days, while it turns into a starring role on sunny days, showing off its details. Due to the physical properties of this material, the scraped part falls away, producing the look of time. The entrance wall and parking lot ceiling, which are made of friendly wood, add warmth and attractiveness of the main entrance.
Connecting the public garden and courtyard protects the environment and keeps the balance like the function of vegetables. A sloping roof facing the south is used to install a solar power generation system between the two masses divided around the courtyard. In the water space of the courtyard, the natural sound of water flows through the thin gap of the wall. The daughters splash in the water, and local residents come and talk to them.







| 채소네 설계자 | 방명철 _ P 애시스 건축사사무소 건축주 | 정웅 감리자 | 애시스 건축사사무소 시공사 | ㈜포시스건설 설계팀 | 강성재, 윤정섭, 김일환 설계의도 구현 | 애시스 건축사사무소 대지위치 | 인천광역시 서구 청서로 주요용도 | 단독주택 대지면적 | 442.60㎡ 건축면적 | 132.64㎡ 연면적 | 324.93㎡ 건폐율 | 29.97% 용적률 | 73.41% 규모 | 3F 구조 | 철근콘크리트구조 외부마감재 | 아줄그레이(RAIN), 고흥석 내부마감재 | 친환경페인트 설계기간 | 2021. 12 - 2022. 06 공사기간 | 2022. 06 - 2023. 07 사진 | 박영채 구조분야 | (주)이든구조컨설턴드 기계설비·전기·소방분야 | (주)태인엠이씨 |
CHAE SO Haus Architect | Pang, Myungchurl _ AXIS ARCHITECTS Client | Jung, Woong Supervisor | AXIS ARCHITECTS Construction | FOSYS Construction Project team | Kang, Sungjae / Yoon, Jeongseob / Kim, Ilhwan Design intention realization | AXIS ARCHITECTS Location | Cheongseo-ro, Seo-gu, Incheon, Korea Program | Detached house Site area | 442.60㎡ Building area | 132.64㎡ Gross floor area | 324.93㎡ Building to land ratio | 29.97% Floor area ratio | 73.41% Building scope | 3F Structure | RC Exterior finishing | Azul Grey(RAIN), Goheung stone Interior finishing | Eco-friendly paint Design period | Dec. 2021 - Jun. 2022 Construction period | Jun. 2022 - Jul. 2023 Photograph | Park, Young Chae Structural engineer | Eden Structural Engineering Group Mechanical·Electrical·Fire engineer | TAEIN MEC Architects&Engineers |
'회원작품 | Projects > House' 카테고리의 다른 글
| 연서헌(嬿屖軒) 2025.4 (0) | 2025.04.30 |
|---|---|
| 모서리 벽돌집 2025.4 (0) | 2025.04.30 |
| 담운재(潭雲齋) ‘연못과 구름을 품은 집’ 2025.4 (0) | 2025.04.30 |
| 작소비가(作小卑家) 2025.3 (0) | 2025.03.31 |
| 정심헌(鄭心軒) 2025.3 (0) | 2025.03.31 |
