2025. 5. 31. 10:10ㆍ회원작품 | Projects/Office
SEORYEON BUILDING

정돈과 정렬
서련빌딩은 넉넉하지 않은 대지면적과 정해진 건축 규제의 제한에도 도시의 맥락을 거스르지 않는 건축물이다. 정렬된 매스 구성과 정돈된 동선계획에 방점을 두고 있다. 재료들 간의 견고한 결구와 띄움새가 적정한 비례를 갖추고, 건축물 전체의 조화로운 미감(美感)을 갖추고자 했다.
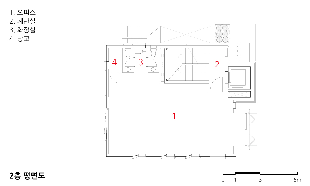
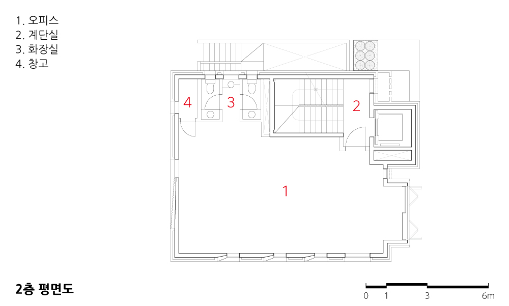
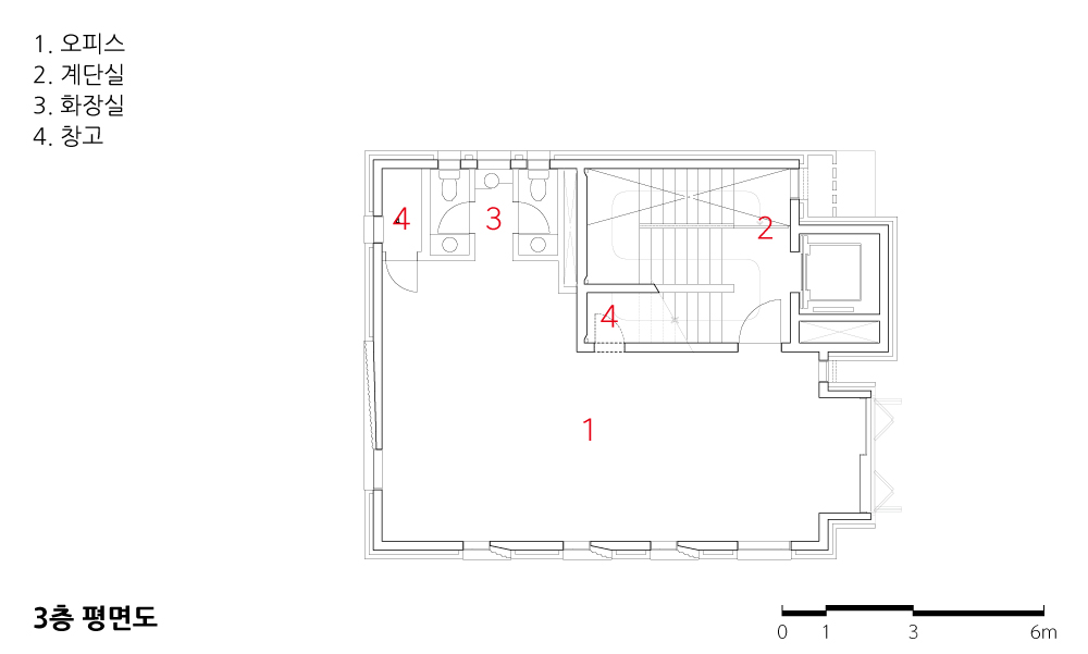
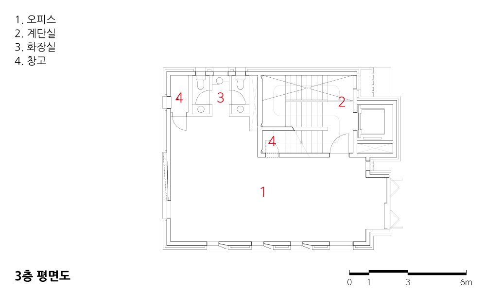
주변의 맥락을 고려한 프로그램은 제한된 규제를 적절히 활용해 형태와 영역을 정돈했다. 대지의 남서측으로 교차하는 두 도로에 면한 단변과 장변은 건물로 진입하는 입구와 동일한 향(向)을 가지는 실이 배치될 수 있는 최적의 영역이다. 대지의 북동쪽과 북서쪽 모서리로부터 적용되는 정북일조 제한선은 상층부로 갈수록 면적이 줄어드는 탓에 4~10인 정도가 활동할 수 있는 스튜디오, 스토어, 오피스를 층별로 수직 정렬했다.
응집과 분절
건물의 후면은 불분명하게 내미는 발코니를 절제하여 단정한 경사면으로 계획했다. 정북일조권에 의해 만들어진 경사면은 치장벽돌의 켜 들여쌓기를 통해 단일한 건축재료가 주는 견고함을 더했다. 그리고 5층의 테라스와 옥상층은 대지의 서측 방향으로 개방된 공간으로, 응집된 건축물에서 외부와 마주할 수 있는 공간을 마련했다.
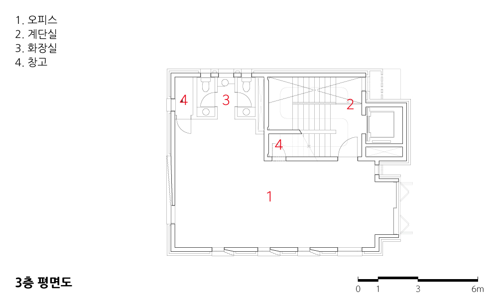
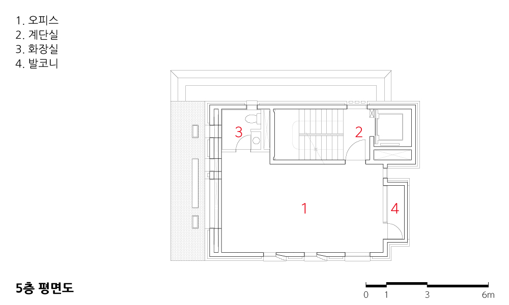
수직으로 정렬된 전용공간은 동일한 외부환경을 위해 1층에서 3층까지는 계단이 왼쪽 돌음방향으로 구성되었고, 정북일조 제한선을 넘어가는 3층에서 옥상층까지는 오른쪽 돌음방향으로 바뀌는 이색적인 구조를 가지고 있다. 계단의 방향이 바뀌는 3층 계단참은 건축물의 분절이 일어나는 전이공간이다.
노출과 채광
서련빌딩은 개구부를 최소한으로 하는 건축물이다. 남측 전면 폴딩창호는 인접한 건물에서 내부를 바라볼 수 없게 하면서도 빛의 밀도와 양을 조절할 수 있는 유연한 창호 구조를 갖고 있다.
열린 상태에서 확실한 개방감을 주고, 닫힌 상태에서는 빛의 흐름이 실내로 이어질 수 있도록 했다. 이는 외부의 노출을 조절하고 내부의 빛을 선택적으로 발산하기도 한다.
서측면으로 정렬된 정사각형 창호의 절반은 절곡된 패널을 층별로 엇갈리게 배치해 노출을 달리하는 입면을 계획했다. 그리고 균질한 채광은 북쪽에서 유입되고 환기는 남·서측으로 자연스럽게 흐를 수 있도록 했다.





Order and Alignment
Despite its compact site and regulatory constraints, the Seoryeon Building integrates seamlessly into the urban context. The design emphasizes an ordered massing strategy and a refined circulation plan. Materials are joined with precision, and appropriate spacing ensures balanced proportions resulting in an overall architectural harmony.
Programs were arranged with sensitivity to their urban surroundings, leveraging zoning regulations to organize both form and function. The site’s southwest edge, where two roads intersect, provides optimal orientation for key interior spaces and building access. Toward the northeast and northwest corners, the building steps back due to solar setback regulations, resulting in tiered upper floors. These upper levels house vertically stacked studios, retail, and office units, each accommodating four to ten occupants.
Cohesion and Articulation
At the rear of the building, balconies were minimized to create a clean sloped surface in response to the sunlight setback. This sloped plane, formed by regulatory angles, is reinforced visually through recessed coursing in brickwork enhancing both the material integrity and architectural presence. The fifth floor terrace and rooftop open westward, offering moments of release and connection within the otherwise cohesive volume.
Private zones are stacked vertically with careful consideration for spatial experience. From the ground to the third floor, the staircase turns counterclockwise; from the third floor to the rooftop, it shifts to a clockwise configuration. This change of direction marks the third-floor landing as a transitional space where the building’s articulation becomes perceptible.
Exposure and Daylight
The Seoryeon Building minimizes openings to balance privacy and light. On the south façade, folding window systems allow for flexibility controlling the intensity and distribution of light while limiting views from neighboring buildings. When open, they provide a strong sense of openness; when closed, they preserve privacy while still allowing light to flow indoors.
On the west façade, square windows are aligned vertically, with half of them partially obscured by staggered folded panels creating a layered and dynamic elevation. Uniform daylight enters from the north, while natural ventilation flows organically through the south and west openings.










| 서련(書連)빌딩 설계자 | 김세현 _ 건축사사무소 구:월 건축주 | 서련(권기영, 김현실) 감리자 | 김동호 _ 행복한건축사사무소 시공사 | (주)삼후종합건설 설계팀 | 조경란, 최유리 설계의도 구현 | 건축사사무소 구:월 대지위치 | 서울특별시 서초구 서초동 주요용도 | 근린생활시설(휴게음식점, 사무소) 대지면적 | 199.00㎡ 건축면적 | 102.09㎡ 연면적 | 494.32㎡ 건폐율 | 51.30% 용적률 | 194.67% 규모 | B1F - 5F 구조 | 철근콘크리트구조 외부마감재 | 치장벽돌, 아노다이징 판넬 내부마감재 | 고흥석, 수성페인트 설계기간 | 2021. 06 - 2022. 02 공사기간 | 2022. 06 – 2024. 05 사진 | 송유섭 전문기술협력 구조분야 | 누리구조엔지니어링 기계설비·전기·소방분야 | 건우엔지니어링 |
SEORYEON BUILDING Architect | Kim, Sehyeon _ 9uwall Architects Client | SEORYEON(Kwon, Giyeong / Kim, Hyeonsil) Supervisor | Happy Architects Construction | Samhoo Engineering & Construction Project team | Cho, Gyeongran / Choi, Yuri Design intention realization | 9uwall Architects Location | Seocho-dong, Seocho-gu, Seoul, Korea Program | Neighborhood facilities(Store, office) Site area | 199.00㎡ Building area | 102.09㎡ Gross floor area | 494.32㎡ Building to land ratio | 51.30% Floor area ratio | 194.67% Building scope | B1F - 5F Structure | RC Exterior finishing | Dressing tiles, Anodizing panel Interior finishing | Granite Stone, Water paint Design period | Jun. 2021 – Feb. 2022 Construction period | Jun. 2022 – May 2024 Photograph | Song, Yousub Structural engineer | NOORI Structural Engineering Inc Mechanical·Electrical·Fire engineer | Gunwoo Engineering Inc |
'회원작품 | Projects > Office' 카테고리의 다른 글
| 제놀루션 송도 R&D센터 리모델링 및 증축공사 2025.9 (0) | 2025.09.30 |
|---|---|
| 매직스타워 2025.8 (0) | 2025.08.31 |
| 고혼진리퍼블릭 사옥 2025.3 (0) | 2025.03.31 |
| SFT 본사 사옥 2025.3 (0) | 2025.03.31 |
| 바이스트로닉 코리아 2025.2 (0) | 2025.02.28 |
