2025. 8. 31. 11:10ㆍ회원작품 | Projects/Office
MAGICS TOWER

새로운 디자인의 출발점
본 건축물은 회사 사옥의 이미지를 구현할 수 있는 새로운 디자인을 추구한 건축주의 의지에서 시작되었다. 정면을 마주할 때, 독창적인 외관은 도시적 맥락 속에서도 명확한 존재감을 드러내며, 브랜드의 정체성과 건축적 실험정신을 함께 담아낸다.
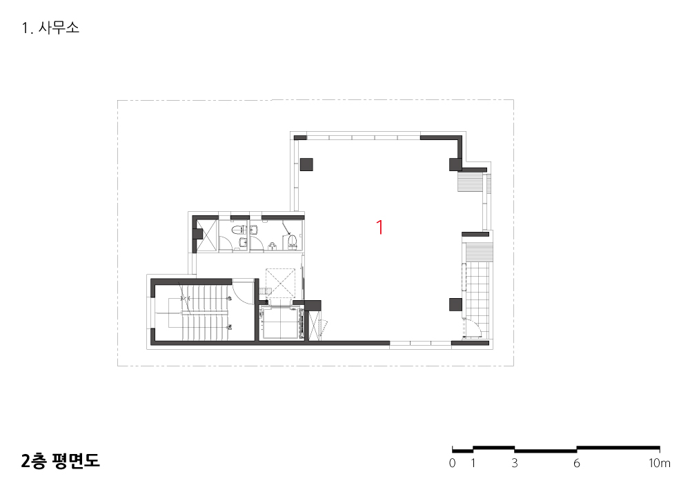
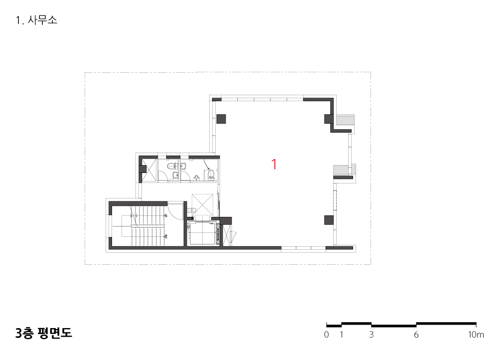
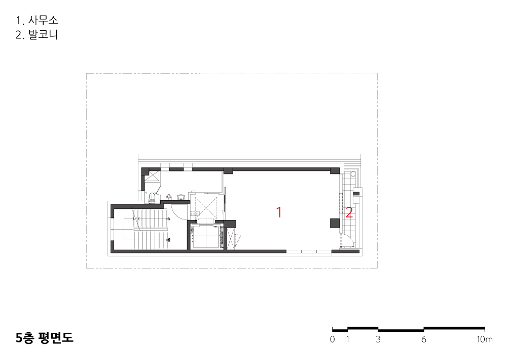
대지 조건을 반영한 공간 전략
대지는 동서 방향으로 길게 뻗은 장방형이며, 동측에는 폭 6미터의 도로가 접해 있다. 지역지구의 일조권 사선 제한(3층, 높이 10m)을 고려해 건축물은 남측 경계선에 최대한 인접하게 배치했고, 서측에는 코어(계단, 엘리베이터, 화장실), 동측에는 전용공간을 두어 기능을 명확히 분리했다. 또한 2층부터는 도로변에 다양한 형태의 발코니를 계획하여 개방감을 확보하고, 4층에는 북측에 형성된 테라스를 정원 공간으로 활용함으로써 각 층에서의 쾌적한 공간 경험이 가능하도록 설계했다.
제약을 조형으로 승화한 외관 디자인
정면에 드러나는 일조권 사선 제한을 단순히 수용하는 데 그치지 않고, 이를 디자인 언어로 전환하고자 했다. 반복되는 사선을 통해 오각형 매스가 중첩되는 형태를 구현해 입체적이면서도 인상적인 외관을 완성했다. 건물 전면에는 두 개의 발코니를 의도적으로 배치해 입면에 깊이감을 더했고, 외장재는 롱브릭(베이직그레이, 빈티지블랙)과 징크 판넬을 조합하여 재료와 색상을 통해 섬세한 음영 효과를 주었다.
그 결과, 시간의 변화에 따라 빛과 그림자가 머무는 건물의 표정은 도시 일상 속 한 장면처럼 자연스럽게 녹아든다.



A New Beginning in Design Thinking
The starting point of this design was the client’s desire to create a new kind of architecture one that could embody the image of a company headquarters. When viewed from the street, the distinctive façade asserts a clear presence within the urban context, reflecting both the brand’s identity and a spirit of architectural experimentation.
Spatial Planning in Response to Site Conditions
The site is a long, rectangular plot stretching east to west, with a 6-meter wide road on its eastern edge. In response to local zoning regulations—particularly the daylight setback requirement of 10 meters at the third floor the building was positioned as close as possible to the southern boundary. The western edge houses the service core (stairs, elevator, restrooms), while the eastern edge contains private, programmable space. This clear separation of function allowed for efficient internal organization.
From the second floor upward, balconies of varying shapes were introduced along the road facing elevation to enhance openness and visual interaction. On the fourth floor, a north-facing terrace was designed as a garden space, providing moments of relief and greenery within the building.
An Elevation Where Constraints Become Form
The sloping profile imposed by the daylight regulation was not merely accepted it was transformed into a defining design element. A series of repeated diagonal cuts generated overlapping pentagonal masses, giving the building a strong sculptural form. Two front-facing balconies were deliberately inserted to add depth to the elevation.
The exterior materials long-format brick in soft grey and vintage black, paired with zinc panels were selected to create subtle shadows and a delicate play of tone and texture. As a result, the shifting light and shadow across the façade throughout the day become part of the building’s expression blending naturally into the everyday rhythm of the city.








| 매직스타워 설계자 | 송춘식 _ (주)아키드림 건축사사무소 건축주 | (주)매직스 감리자 | 박국진 _ 주단 건축사사무소 시공사 | (주)에이아이건설 설계팀 | 김길수, 윤재민, 강소희, 황혜진, 김나영 설계의도 구현 | (주)아키드림 건축사사무소 대지위치 | 서울특별시 강남구 도곡동 주요용도 | 근린생활시설 대지면적 | 244.90㎡ 건축면적 | 122.34㎡ 연면적 | 765.02㎡ 건폐율 | 49.96% 용적률 | 179.08% 규모 | B2F - 5F 구조 | 철근콘크리트구조 외부마감재 | 큐블록 (SE500: S500_베이직그레이, 빈티지블랙), T0.7 티타늄 아연판 오리지날 징크 내부마감재 | 콘무늬 노출콘크리트 판넬 설계기간 | 2023. 04 – 2023. 08 공사기간 | 2024. 01 – 2025. 03 사진 | 강연옥 구조분야 | (주)씨엔엘 엔지니어링 기계설비·전기·소방분야 | 엠케이청효 |
MAGICS TOWER Architect | Song, Choon Sik _ ARCHIDREAM architects Client | MAGICS Supervisor | ZUDAN architects Construction | AI construction Project team | Kim, Gilsoo / Yoon, Jaemin / Kang, Sohee / Hwang, Hyejin / Kim, Nayoung Location | Dogok-dong, Gangnam-gu, Seoul Program | Neighborhood facilities Site area | 244.90㎡ Building area | 122.34㎡ Gross floor area | 765.02㎡ Building to land ratio | 49.96% Floor area ratio | 179.08% Building scope | B2F - 5F Structure | RC Exterior finishing | Q Block, Zinc Interior finishing | Concrete panel Design period | Apr. 2023- Aug. 2023 Construction period | Jan. 2024 - Mar. 2025 Photograph | Kang, Yeonok Structural engineer | CNL Enginerring Mechanical·Electrical·Fire engineer | MK Cheonghyo |
'회원작품 | Projects > Office' 카테고리의 다른 글
| 선데이브런치 HQ 2025.10 (0) | 2025.10.31 |
|---|---|
| 제놀루션 송도 R&D센터 리모델링 및 증축공사 2025.9 (0) | 2025.09.30 |
| 서련(書連)빌딩 2025.5 (0) | 2025.05.31 |
| 고혼진리퍼블릭 사옥 2025.3 (0) | 2025.03.31 |
| SFT 본사 사옥 2025.3 (0) | 2025.03.31 |
