2025. 6. 30. 16:10ㆍ회원작품 | Projects/Commercial
Ryu Sim-heon

류심헌은 건축주 류 씨의 삶의 철학과 진심 어린 마음이 고스란히 스며든, 깊이 있는 공간이다. 이 집은 단순한 주거 공간을 넘어, 건축주가 지향하는 삶의 태도와 가족에 대한 깊은 애정, 그리고 일상의 가치를 담아낸 건축적 산물이다. 건축사는 이러한 건축주의 생각을 섬세하게 해석하고, 그 철학을 공간 안에 녹여내 ‘류심헌’이라는 하나의 서사적 공간을 완성했다. 이 집은 단지 거주를 위한 건축물이 아니라 시간과 관계, 감정이 층층이 쌓여 있는 하나의 이야기이며, 가족 구성원 각자의 기억과 경험이 켜켜이 얽히는 정서적 장소이다.
외장은 전통적인 붉은 벽돌로 마감해 정갈하면서도 따뜻한 인상을 전달한다. 벽돌은 시간이 흐를수록 자연스럽게 색이 바래고 표면에 깊이가 더해지며, 그 자체로 시간의 흔적을 품는다. 이는 건축주가 중요하게 여긴 ‘시간의 축적’과 ‘변화의 아름다움’을 재료를 통해 구현한 것이다. 벽돌의 촘촘한 질감과 단단한 물성은 주변의 변화 속에서도 흔들림 없는 존재감을 드러내며, 도시의 혼잡한 풍경 속에서도 고요한 위엄을 발산한다.
1층과 2층에는 상업적인 기능이 배치되어 있다. 이 공간들은 전통적인 재료 위에 현대적인 감각을 더한 ‘상업적 플랫폼’으로 작동하며, 외부와의 소통을 강조한다. 특히 투명한 유리 파사드는 실내와 외부의 경계를 부드럽게 허물며, 거리와의 시각적 연결을 유도한다. 이는 단절이 아닌 개방을 지향하는 건축적 태도를 잘 보여주며, 류심헌이 단순한 개인 주택이 아닌 지역과 공존하는 공간임을 상징한다. 동시에 이 하부 공간은 상부에 위치한 주거 공간을 든든하게 떠받치며, 물리적이면서도 상징적인 기반 역할을 한다.
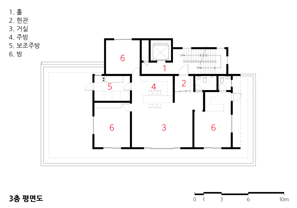
3층은 부모 세대가 거주하는 공간이며, 4층은 자녀 세대의 생활 공간으로 계획되었다. 두 세대의 공간은 각각 독립된 매스로 구성되어 있는데, 이는 서로 다른 방향으로 배치되어 시각적, 공간적으로 독립성을 확보하면서도 하나의 건축 안에서 유기적으로 이어진다. 부모 세대는 보다 안정감 있는 배치와 편안한 동선을 중심으로 계획됐으며, 자녀 세대는 보다 개방적이고 능동적인 공간 구조를 지닌다. 이와 같은 구성은 세대 간의 개성과 생활 방식의 차이를 존중하면서도, 가족이라는 이름 아래 이어지는 관계의 끈을 건축적으로 형상화한 것이다.
결과적으로 류심헌은 물리적인 구조를 넘어서, 세대 간의 이해와 공감, 그리고 가족 간의 깊은 정서적 유대를 담은 도시 속의 정서적 쉼터가 된다. 외부로는 단단하면서도 개방적인 태도를, 내부로는 따뜻하고 유기적인 관계를 지닌 이 집은, 현대 도시 속에서 진정한 의미의 ‘집’이란 무엇인지 다시 한번 생각하게 만든다.



Ryusimheon: A Home That Embodies a Life Philosophy
Ryusimheon is a home that reflects the values and philosophy of its owner, Mr. Ryu. This house, deeply rooted in his approach to life and his love for family, unfolds as an architectural narrative one that embraces time, memory, and relationships.
The exterior is clad in traditional red brick, lending the building a refined and timeless presence. The material was chosen for its inherent qualities-developing depth and character as it ages, echoing the layers of life lived within.
The first and second floors are designed for commercial use, forming a solid base beneath the upper residential levels. Transparent glass façades offer visual openness and connection to the street, transforming these levels into a contemporary commercial platform grounded in traditional texture. This solid base also symbolically supports the home above a foundation for both business and life.
The third floor is reserved for the parents’ generation, while the fourth floor is for their children. Two distinct box shaped volumes are oriented in different directions, emphasizing independence and individuality. Yet, together, they form a cohesive whole-an architectural expression of a multi-generational family living in harmony.
Ryusimheon is not only a physical residence but also an emotional refuge within the city a place where generational connection and respectful separation coexist, where architecture becomes a vessel for familial warmth and quiet dignity.









| 류심헌(柳心軒) 설계자 | 김향숙 _ 코아 건축사사무소(주) 건축주 | (주)퀘렌시아 감리자 | 이수 건축사사무소 시공사 | (주)청평종합건설 설계팀 | 김민호, 장창익, 권혁준 설계의도 구현 | 코아 건축사사무소(주) 대지위치 | 경기도 광주시 신현동 주요용도 | 제1, 2종 근린생활시설(소매점, 사무소) 및 공동주택(다세대주택/2세대) 대지면적 | 744.00㎡ 건축면적 | 296.10㎡ 연면적 | 857.60㎡ 건폐율 | 39.80% 용적률 | 115.27% 규모 | 4F 구조 | 철근콘크리트구조 외부마감재 | 대리석(블랙 갤럭시), 적벽돌(BL03 레드토석290) 내부마감재 | 콘크리트 폴리싱(근생바닥), 강마루(주택바닥), 필름벽지 설계기간 | 2024. 02 - 2024. 06 공사기간 | 2024. 08 - 2025. 05 사진 | 장원준 구조분야 | (주)씨엔엘엔지니어링 구조기술사사무소 기계설비·전기·소방분야 | 라인비엔텍(주) |
Ryu Sim-heon Architect | Kim, Hyang-Sook _ Core Architects Co., Ltd. Client | Querencia Co., Ltd. Supervisor | Lee Soo Architects Office Construction | Cheongpyeong Comprehensive Construction Project team | Kim, Min Ho / Jang, Chang Ik / Kwon, Hyuk Jun Design intention realization | Core Architects & Associates Co., Ltd. Location | Shinhyeon-dong, Gwangju-si, Gyeonggi-do, Korea Program | Housing / Commercial Site area | 744.00㎡ Building area | 296.10㎡ Gross floor area | 857.60㎡ Building to land ratio | 39.80% Floor area ratio | 115.27% Building scope | 4F Structure | RC Exterior finishing | Marble, Red brick Interior finishing | Concrete Polishing, HDF(High Density Fiberboard), Film Wallpaper Design period | Feb. 2024 - Jun. 2024 Construction period | Aug. 2024 - May 2025 Photograph | Jang, Won Jun Structural engineer | CNL Engineering Co., Ltd. Structural Engineering Office Mechanical·Electrical·Fire engineer | Line Bientech Co., Ltd. |

'회원작품 | Projects > Commercial' 카테고리의 다른 글
| 모이핀 스카이 2025.7 (0) | 2025.07.31 |
|---|---|
| 제이린드버그 청담전문점 2025.7 (0) | 2025.07.31 |
| 미토262 복합빌딩 2025.5 (0) | 2025.05.31 |
| ARK 2025.5 (0) | 2025.05.31 |
| 정령치 하늘전망대 2025.5 (0) | 2025.05.31 |