2025. 8. 31. 11:45ㆍ회원작품 | Projects/Neighborhood Facility
BLUE CUBE


대지는 강남구 개포동의 20미터 도로변에 위치한 3종 일반주거지역이다. 전형적인 1990년대 초반의 철근 콘크리트와 연와조의 혼합 구조를 갖는 6개 층(지하 1층, 지상 5층)의 다가구 주택을 대수선 리모델링하고, 전체를 주거에서 근린생활시설로 용도를 전환해 현시대의 요구에 부응하는 공간체계를 재구축하는 대수선 프로젝트이다.
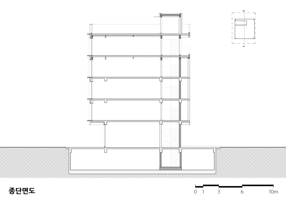
30여 년의 시간을 거치며, 노후화 된 건축·구조·설비·전기 부분들을 갱신해 구조적, 기능적, 심미적으로 진일보시키는 프로젝트이다. 근린생활시설에서 가장 중요한 가치인 수직동선의 효율성 확보(엘리베이터 신설, 계단의 재구성)와 내부공간의 대공간화, 외피의 재구성을 통해, 프로그램들의 가치를 극대화시키기 위한 공간 구성의 구축이 계획의 중요한 목표였다.
기존의 철근 콘크리트 구조를 보강하고, 연와조 구조를 철골조로 치환했다. 그리하여 기존 주거용도의 내력벽으로 구획된 방들을 제거하여 근린생활 시설의 공간 구성에 합당한 대공간으로 변용이 가능했다. 기능적으로 전 층이 근린생활시설이기 때문에 내·외부 간의 소통을 위한 표면적을 고양시키기 위해서 전면 전창들을 도입했다. 입면은 입방체의 건물의 속성에 기반해 그리드 형태를 바탕으로 균질성을 확보하려 했다. 균질성 속에서 변화의 리듬을 만들기 위하여 입면 요소요소들의 깊이를 4단계로 계획했다.
기존의 도시적 맥락에 자연스레 스며들어, 홀로 존재감을 강하게 부각시키기보다는 주변 도시 조직들과 같은 농도와 밀도로 호흡하기 위해 비슷한 명도와 채도를 갖는 밝은 그레이 계열의 칼라를 주조색으로 선택했다.
이 도시 조직 안에서 오랜 세월동안 견디며 나름의 도시적, 시대적 이야기를 축적해왔던 건축을, 현시적 요구에 부응하지 못한다는 단순한 이유로 소멸시키는 것이 아니라, 과거의 흔적들을 가치기반으로 삼고 재설계하여, 다시금 견고한 뿌리를 내린 채 새로운 가치를 피어나게 하는 것은 현시대를 살아가는 건축사와 건축주들이 깊이 고민해봐야 할 주제라고 생각한다.
꽃처럼 다시 새로운 숨결로 피어난 그곳에서, 공간을 향유할 사람들이 아름다운 기억들의 향기를 잔잔하게 오랜 시간 내뿜을 수 있기를 기도해본다.



The site sits along a 20-meter-wide street in Gaepo-dong, Gangnam-gu, within a Type 3 general residential zone. The project was a major renovation of a six-story (1 basement, 5 above-ground) multi-family building from the early 1990s, constructed in a hybrid of reinforced concrete and brick masonry. It involved a full transformation: not only remodeling the structure but also changing its function from residential use to neighborhood commercial facility, reestablishing a spatial system that responds to present-day needs.
Over the course of more than 30 years, the building had aged across all fronts structure, mechanical systems, electrical calling for a renewal that would elevate its integrity structurally, functionally, and aesthetically. One of the project’s primary goals was to redefine the spatial organization in a way that maximizes the potential of its new program. This meant improving vertical circulation installing an elevator and reorganizing the stairs creating open, unobstructed interior volumes, and rearticulating the building’s envelope.
The original concrete structure was reinforced, while the brick masonry was replaced with steel framing. Load bearing walls that once divided the building into small residential rooms were removed, allowing the interior to be reimagined as open, flexible spaces suited for commercial use. Floor-to-ceiling windows were introduced across the front elevation to enhance visual and functional connection with the outside. The façade, based on the inherent cubic form of the building, was designed as a grid to create visual cohesion. Within that uniformity, a rhythm of variation was introduced by layering the façade at four distinct depths.
Rather than assert itself loudly, the building was intended to quietly re-enter the city fabric responding to the density and tone of its surroundings. A soft gray was chosen as the dominant exterior color: similar in brightness and saturation to neighboring buildings, allowing it to breathe in sync with the urban grain.
This project stands as a reflection on the role of architecture in time. Rather than erase a building that has endured decades in the city, collecting layers of urban and cultural memory, we chose to work with what remained using its past as foundation for new value. There is meaning, I believe, in preserving and transforming rather than replacing especially for us, as architects and clients living in the present.
In that place, quietly reborn with a new breath like a flower in bloom, I hope those who inhabit the space will carry with them the fragrance of beautiful memories, gently unfolding over time.












| 블루큐브 설계자 | 이근식 _ (주)엘케이에스에이 건축사사무소 건축주 | 주식회사블루큐브 감리자 | 이근식 _ (주)엘케이에스에이 건축사사무소 시공사 | (주)디에스씨티건설 설계팀 | 김동현, 이승준 대지위치 | 서울특별시 강남구 개포동 주요용도 | 근린생활시설 대지면적 | 299.20㎡ 건축면적 | 148.25㎡ 연면적 | 931.88㎡ 건폐율 | 49.55% 용적률 | 228.32% 규모 | B1F - 5F 구조 | 철근콘크리트구조, 연와구조, 철골구조 외부마감재 | 타일, 스타코 내부마감재 | 수성페인트 설계기간 | 2023. 11 – 2024. 01 공사기간 | 2024. 05 – 2024. 11 사진 | 구의진 구조분야 | 서전구조엔지니어링 기계설비·전기·소방분야 | (주)익스플래니트 |
BLUE CUBE Architect | Lee, Keun Sik _ Lee Keun Sik Architects Client | BLUE CUBE Supervisor | Lee, Keun Sik _ Lee Keun Sik Architects Construction | DS City Project team | Kim, Donghyun / Lee, Seungjun Location | Gaepo-dong, Gangnam-gu, Seoul Program | Neighborhood facilities Site area | 299.20㎡ Building area | 148.25㎡ Gross floor area | 931.88㎡ Building to land ratio | 49.55% Floor area ratio | 228.32% Building scope | B1F - 5F Structure | RC, Brick, Steel Frame Exterior finishing | Tile, Stuc-O Interior finishing | Water paint Design period | Nov. 2023 – Jan. 2024 Construction period | May 2024 – Nov. 2024 Photograph | Gu, Ui Jin Structural engineer | Seojeon ENG Mechanical·Electrical·Fire engineer | Explanite |
'회원작품 | Projects > Neighborhood Facility' 카테고리의 다른 글
| 포레포레 2025.9 (0) | 2025.09.30 |
|---|---|
| AC호텔 바이 매리어트 서울 금정 2025.9 (0) | 2025.09.30 |
| Urbanlace 2025.8 (0) | 2025.08.31 |
| 가정1동 행정복지센터 2025.7 (0) | 2025.07.31 |
| 석촌동 근린생활시설 아떼르 2025.5 (0) | 2025.05.31 |
