2025. 9. 30. 15:05ㆍ회원작품 | Projects/Neighborhood Facility
AC Hotel by Marriott Seoul Geumjeong

군포시 금정동에 위치한 AC 호텔은 관광숙박시설로 지하 5층, 지상 20층 규모이다. 대지 동쪽에는 군포로, 북쪽에는 금정로와 접해 있으며, 대지는 북쪽에서 남쪽으로 사다리꼴 형태이며 3면이 도로와 접하고 있다.
대지는 금정역에서 시작한 일반상업지역의 마지막이며, 8m 도로를 건너면 일반주거지역이 시작된다. 전면도로 건너편에는 경부선과 지하철 1호선, 4호선이 운행하는 철길이 넓게 자리하고 있으며, 철길과 인접해 안양천이 흐르고 있어 동쪽과 남쪽은 시간이 흘러도 외부 조망이 가능한, 도심지에서는 보기 드문 장소이다.
처음 발주자를 만난 것은 지인의 소개로 사업 진행을 위한 프로젝트매니저(PM) 면접 자리였다. 설계는 이미 완료되고 건설사까지 선정되어, 기존 건축물 철거와 흙막이 공사를 시작하는 단계였다. 발주자는 전자부품 제조업을 하다가 우연한 기회에 호텔 대지를 구입하게 됐고, 기존 호텔의 여러 문제점 때문에 직접 운영까지 하게 됐다. 그러면서 브랜드가 없는 관광호텔은 프랜차이즈 호텔과 고객 선호도가 다르다는 것을 알게 되었다고 했다. 그렇게 시작된 신축 계획은 인터내셔널 호텔 브랜드인 메리어트에 위탁 운영하는 방식으로 진행됐다.
PM으로 선정되고 첫 번째 업무는 납품된 설계도면 검수와 현장 상황에 맞는 시공계획 및 일정을 건설사와 협의하는 일이었다. 처음 받아본 도면은 몇 번의 호텔 설계를 경험한 설계자임에도 이해할 수 없는 부분이 많았다. 첫 번째는 객실 수와 부대시설(편의시설)의 종류다. 비즈니스호텔인데 객실 수는 200개에 한참 못 미쳤고, 사우나 같은 불필요한 부대시설이 많은 면적을 차지하고 있었다. 두 번째는 객실에 독립 기둥이 배치된 위치다. 지하주차장의 기둥 간격에 맞춰 호텔 객실 여러 곳에 독립 기둥이 있었다. 세 번째는 입면계획을 고려하지 않은 평면 구성이다. 전면도로에서 보이는 정면에 객실이 아닌 실외기실 등이 배치돼 있었다. 네 번째는 실의 바닥면적과 관계없이 과도하게 높은 층고 계획이다. 실의 용도와 바닥면적에 맞춰 층고를 조정해야 했지만, 불필요하게 높게 계획돼 있었다. 다섯 번째는 객실 조망을 고려하지 않은 입면이다. 실의 용도와 기능에 관계없이 펀칭창만 활용해 입면계획을 구성했다.
설계변경 과정은 위의 문제점을 해결하고 보완하는 작업의 연속이었으며, 설계는 변경 전 설계를 진행한 회사와 공동으로 수행했다. 첫 번째는 프로그램 정리 작업으로, 비즈니스호텔의 사업성을 고려해 객실 수를 최대한 확보하고 부대시설(편의시설)은 최소화했다. 두 번째는 층별 실 배치 변경 작업으로, 주변 환경이 열악한 점을 고려해 로비를 최상층으로 옮기고 조망이 좋은 방향으로 인피니티 수영장의 위치를 변경했으며, 루프탑 바도 설치했다. 세 번째는 평면에서 독립 기둥을 재배치하고, 입면에서는 전면도로 방향에 객실을 배치해 정면성을 확보했다. 네 번째는 층고를 변경해 구조체와 외벽 마감재를 줄여 공사비를 절감했다.
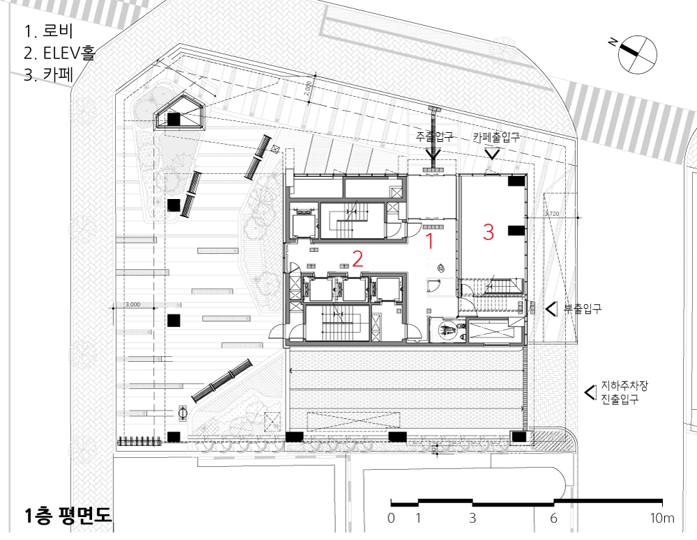
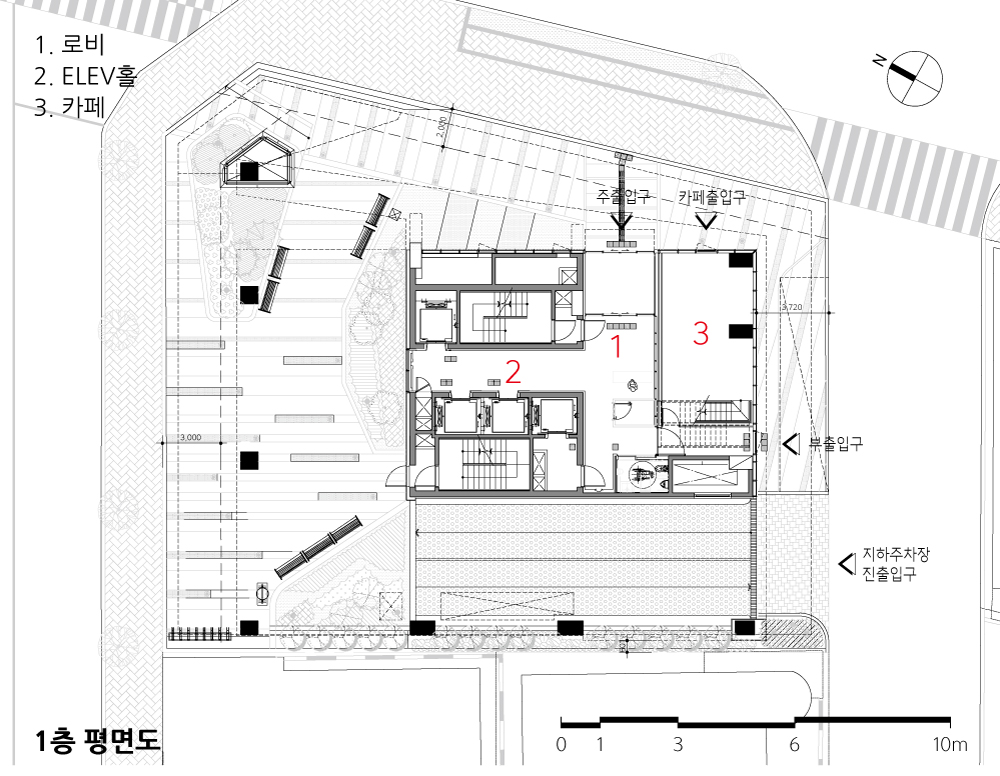
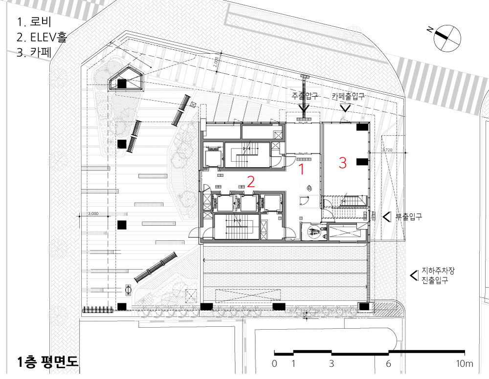
그리고 변경된 설계는 평면에서 1층 도착 로비와 함께 1∼2층을 사용하는 근린생활시설을 두 도로가 만나는 코너에 배치했으며, 18층에는 객실 6개 면적 규모의 P 스위트를 계획했다. 단면에서는 기준층 층고를 3.6m에서 3.3m로 조정하고, 부대시설(편의시설)에는 시설 기능에 맞는 합리적인 층고를 적용했다. 입면은 어디에서나 잘 보여야 하는 호텔의 특성을 감안해 실제 건축물보다 더 높게 보이도록 가는 막대 형태로 구성했으며, 이를 3등분하여 분절하는 과정에서 불필요한 복도를 줄였다. 이렇게 구성된 입면은 경관조명을 활용해 금정역 주변에서도 잘 보이도록 계획했다.'


AC Hotel, located in Geumjeong-dong, Gunpo-si, is a tourist accommodation facility with 5 underground floors and 20 above-ground floors. The land borders Gunpo-ro on the east and Geumjeong-ro on the north, and is in a trapezoidal shape with roads on three sides from north to south.
The land starts from Geumjeong Station and ends at a general commercial area, and when you cross the 8m road, you start at a general residential area. Across the front road, there is a wide railroad where the Gyeongbu Line and Subway Lines 1 and 4 run, and Anyangcheon flows adjacent to the railroad, making it a rare place in the city center where you can see the outside even after time passes.
The first time I met the client was at an interview with a project manager (PM) for the business process, which was introduced by an acquaintance. The design had already been completed and a construction company had been selected, so the demolition of the existing building and the earth retaining work were in the process of starting.
The client, who was manufacturing electronic components, happened to purchase the hotel land by chance, and ended up operating it directly due to various problems with the existing hotel. In the process, it was said that they realized that tourist hotels without brands have different customer preferences than franchise hotels. The new construction plan that started like that began with the method of entrusting the operation to the international hotel brand Marriott. After being selected as PM, the first task was to review the delivered design drawings and discuss the construction plan and schedule with the construction company according to the on site situation. There were many parts of the drawings that I received that I could not understand as a designer who had experience in designing several hotels. If I summarize the parts that needed to be changed in the design, the first is the number of rooms and the types of auxiliary facilities (convenience facilities). It is a business hotel, but the number of rooms is far less than 200, and unnecessary auxiliary facilities (convenience facilities) such as saunas take up a lot of space. The second is the location of the independent pillars in the guest rooms. There were independent pillars in several places in the hotel rooms according to the spacing of the pillars in the underground parking lot. The third is a plan that does not consider the elevation plan. The outdoor machine room, not the guest rooms, was planned in the front that is visible to people from the front road. The fourth is a high-ceiling plan regardless of the floor area of the rooms. The floor height should be applied considering the purpose of the room and the floor area, but an unnecessarily high floor height was secured. This is the elevation that does not consider the view from the fifth guest room. The elevation plan was made using only the punching window regardless of the purpose and function of the room.
The design change process is a continuous process of solving and supplementing the above problems, and the design was carried out in collaboration with the company that carried out the design before the change.
If we summarize the design changes, the first program reorganization work was to secure the maximum number of rooms and minimize auxiliary facilities (convenience facilities) considering the business hotel business. The second floor layout change work was to move the lobby to the top floor considering the poor surrounding environment, change the location of the infinity pool to a direction with a good view, and create a rooftop bar. In the third plan, independent columns were moved and the guest rooms were installed toward the front road from the elevation to secure frontal visibility. The fourth change in the floor height was to reduce the structure and exterior wall finishing materials, saving construction costs.
And the changed design is planned to use the 1st and 2nd floors together with the arrival lobby on the first floor, and the neighborhood living facility is planned at the corner where two roads meet, and the 18th floor is planned to have a P SUITE with 6 guest rooms.
In the cross section, the standard floor was changed from 3.6m to 3.3m, and the auxiliary facilities (convenience facilities) applied a reasonable floor height that fits the facility function.
Considering the characteristics of a hotel that must be visible from anywhere, the elevation was divided into three parts to look like a thin bar higher than the actual building height, and unnecessary corridors were reduced. The elevation created in this way was planned to be easily visible from around Geumjeong Station by utilizing landscape lighting.








| AC호텔 바이 매리어트 서울 금정 설계자 | 정준철 건축사 _플라 건축사사무소 조정철 건축사_ (주)종합건축사사무소 탑 건축주 | 주식회사 프라임아이티 감리자 | (주)종합건축사사무소 탑 시공사 | 트래콘건설 설계팀 | 플라 _ 신나영, 김민석 / 탑 _ 양석 대지위치 | 경기도 군포시 금정동 주요용도 | 관광숙박시설 대지면적 | 926.20㎡ 건축면적 | 552.21㎡ 연면적 | 12,300.90㎡ 건폐율 | 59.62% 용적률 | 659.35% 규모 | B5F - 20F 구조 | 철근콘크리트구조 외부마감재 | 테라코타(썬파크(주), Natural), 고흥석, 알루미늄 쉬트(알코리아, Coil-아노다이징), 로이복층유리 내부마감재 | 석고보드위 친환경페인트 설계기간 | 2019. 03 - 2022. 05 공사기간 | 2020. 11 - 2024. 04 사진 | 이남선 구조분야 | 하이구조 기계설비·전기·소방분야 | 주식회사 하이플랜 |
AC Hotel by Marriott Seoul Geumjeong Architect | Jeong, Jun Chul_Pl.a architects Jo, Jeong-Cheol_TOP Architects & Associates Co., Ltd. Client | Prime IT Co., Ltd. Supervisor | TOP Architects & Associates Co., Ltd. Construction | TRACON Constructiond Project team | Pl.a _ Shin, Na Young / Kim, Min Seok TOP _ Yang, Seok Location | Geumjeong-dong, Gunpo-si, Gyeonggi-do Program | Tourist accommodation facilities Site area | 926.20㎡ Building area | 552.21㎡ Gross floor area | 12,300.90㎡ Building to land ratio | 59.62% Floor area ratio | 659.35% Building scope | B5F - 20F Structure | RC Exterior finishing | Terracotta(Sunpark Co., Ltd :Natura), Aluminum sheet(AL Korea, Coil-Anodizing), Goheungseok, Low-E Glass Interior finishing | Eco-friendlyPaint finish above Gypsum board Design period | Mar. 2019 - May 2022 Construction period | Nov. 2020 - Apr. 2024 Photograph | Lee, Nam Sun Structural engineer | HI Structural Engineering Mechanical·Electrical·Fire engineer | HIGHPLAN Co., Ltd. |
'회원작품 | Projects > Neighborhood Facility' 카테고리의 다른 글
| 안목여행자센터 2025.10 (0) | 2025.10.31 |
|---|---|
| 포레포레 2025.9 (0) | 2025.09.30 |
| 블루큐브 2025.8 (0) | 2025.08.31 |
| Urbanlace 2025.8 (0) | 2025.08.31 |
| 가정1동 행정복지센터 2025.7 (0) | 2025.07.31 |
