2022. 11. 7. 15:34ㆍ회원작품 | Projects/Neighborhood Facility
Cafe The Pyeon

대구의 대표적 먹거리 타운인 들안길에 위치한 ‘카페더편’ 은 한식 및 한식 디저트를 판매하는 카페 앤 펍이자 플래그 숍의 기능도 겸하는 곳이다. 유명 음식점이 즐비한 들안길에서 수준 높은 요리와 개성 있는 인테리어로 차별화를 기하는 ‘카페더편’ 만의 특색을 건축에 담아내는 것을 목표로 정했다.
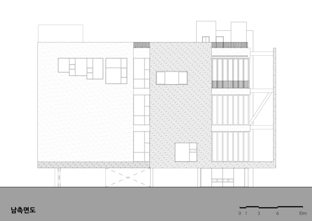
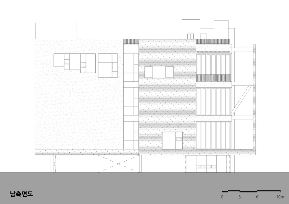
모티브는 한식을 담는 그릇과 음식 선물 포장에 사용되는 무명 보자기로 정했다. 한식을 담는 그릇을 건물로 표현하고 무명 보자기의 직물 패턴을 송판무늬 노출 콘크리트 건물 외피로 형상화하는 현대적인 해석을 꾀하였다. <카페더편> 의 맛있는 요리를 건축으로 포장하여 고객들에게 선물하겠다는 의미를 전달하고자 했다.
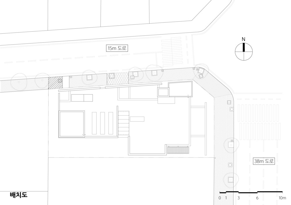
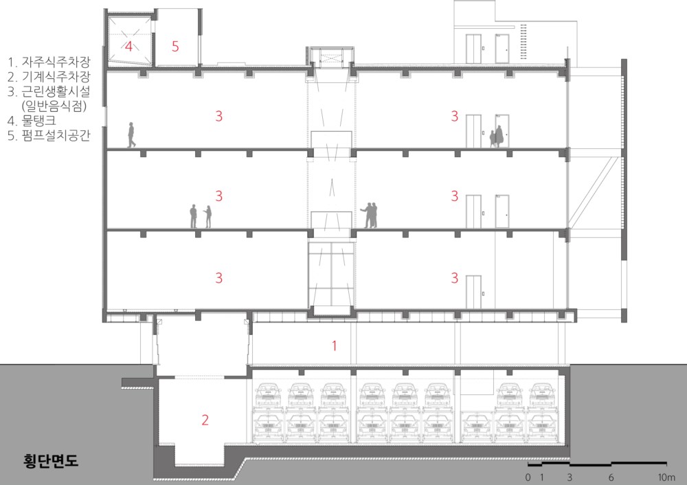
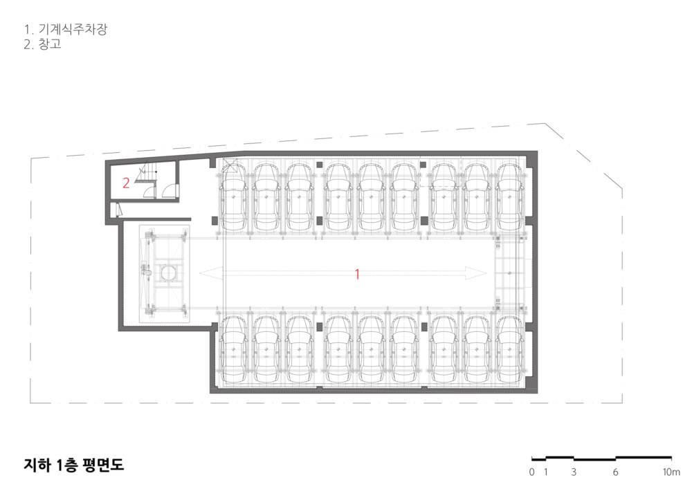
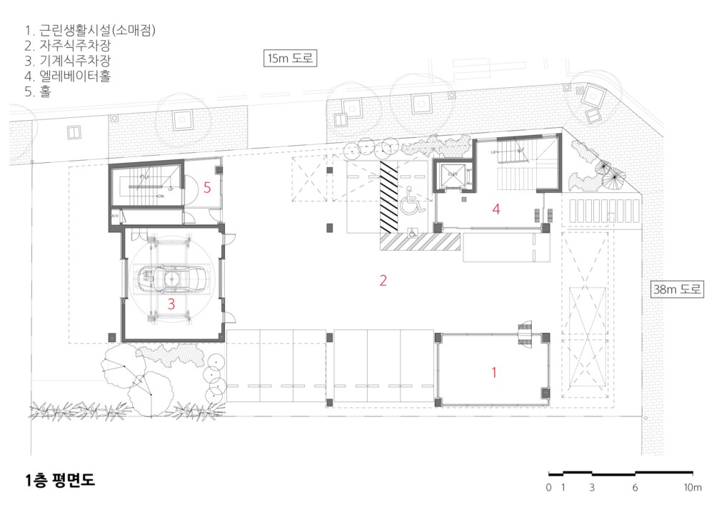
도로축에 순응하는 동서로 긴 직사각형 형태의 매스를 대지와 분리시켜 필로티 공간을 조성하고 지하에 충분한 주차 공간을 확보했다. 기계식 주차의 입출고 대기 시간을 최소화하여 주변 교통 흐름에 지장이 가지 않게 노력했다.
4층 이하의 건축물이 설계가능한 1종 주거지역의 제약을 극복하고자 각 층에 6m 가량의 층고를 설정하여 시각적 개방감과 여유로운 공간감을 부여했다. 중앙부에 3개층을 관통하는 중정을 만들고 18m의 낙차를 가지는 실내 폭포를 도입하여 신선하고 청량한 체험을 할 수 있도록 만들었다.
또한 건물 북쪽 및 동쪽 공간에 떠 있는 형태의 콘크리트 가벽이 한옥의 가구식 구조미를 표현하면서 동시에 빛을 담아 실내로 전달하는 ‘빛 우물’의 기능을 한다. 콘크리트 가벽 내부에 큐 블록을 사용하여 전통문양을 현대적으로 표현했고, 한옥 처마의 서까래를 재해석해 4층 테라스 캐노피를 만들었다.
독특한 음식의 맛과 특색 있는 인테리어를 즐길 수 있는 ‘카페더편’은 들안길 먹거리 타운 속에서 모던하면서도 클래식한 한국미로 단연 눈길을 끄는 건축물이다. 전통적, 현대적 멋과 즐거움을 담은 ‘카페더편’은 그 곳을 찾는 사람들에게 많은 사랑을 받는 편안한 장소가 될 것이다.

‘Cafe The Pyeon’ located in Deulan-gil, the representative food town is a cafe, pub and flag shop where Korean dishes and Korean dessert are provided. The intention of design is to represent the characteristics of ‘Cafe The Pyeon’ which provides the differentiated service with the sophisticated dishes and stylish interiors in Deulan-gil where noted restaurants stand closely together.
The design motif of ‘Cafe The Pyeon’ is a Korean food container and a piece of cotton wrapping cloth. With the modernized interpretation of the motif, the image of the Korean food container is realized as the building and the textile pattern is expressed on the surface of exposed concrete. The design process has the meaning of providing the architectural building as the delicious dishes of ‘Cafe The Pyeon’.
The rectangular-shaped mass parallel to the road extending from east to west was raised and the piloti was made to secure enough space for parking. The waiting time for in and out of mechanical parking was minimized in order not to cause any inconvenience to the traffic flow of the surrounded area.
In order to overcome the legal restriction of 4 floors above ground in the exclusive residential area about 6-meter story height was applied on each floor, which creates visual openness and expansive spatial quality. In the central part of the building the courtyard was arranged to penetrate three floors and an indoor waterfall of 18-meters was installed to create the effect of coolness and refreshness.
The concrete demising wall floating in the north and south sides of the building expresses the structural beauty of the Korean furniture and functions as the light well which collects and carries the natural light to the inside of the building. In addition, Q-blocks arranged inside of the concrete wall to restructure the traditional pattern in a modernized way and the rafter was reinterpreted in the terrace canopy on the 4th floor.
‘Cafe The Pyeon’, a place of special flavor of dishes and unique interior design is the eye-catching architecture in Deulan-gil food town with its modern classic Korean aesthetics. ‘Cafe The Pyeon’ contains traditional style and contemporary pleasure, and will be the most comfortable place beloved by people who visit and experience it.



















| 카페 더편 설계자 ┃ 백진현 KIRA _ 건축사사무소 디오 건축주 | 주식회사 더편 감리자 | 백동철 _ 백운 건축사사무소 시공사 | (주)성경종합건설 설계팀 | 이미연, 류혜정, 김종완, 김민수, 박재형 대지위치 | 대구광역시 수성구 들안로 57 주요용도 | 근린생활시설 대지면적 | 788.10㎡ 건축면적 | 465.02㎡ 연면적 | 1,873.54㎡ 건폐율 | 59.01% 용적률 | 192.28% 규모 | 지하 1층, 지상 4층 구조 | 철근콘크리트조 외부마감재 | 송판무늬 노출콘크리트, 외단열시스템(STO) 내부마감재 | 마천석, 비닐계 수성페인트 설계기간 | 2015. 10 ~ 2016. 02 공사기간 | 2016. 03 ~ 2017. 02 사진 | 윤동규 구조분야 : E&S 솔루션 기계설비분야 : 일건 ESC 전기분야 : 한일전기 소방분야 : 일건 ESC |
Cafe The Pyeon Architect | Beak, Jinhyun _ Architecture DO Client | THE PYEON. lnc. Supervisor | Beak, Dongchul _ Beakun Architecture Construction | Sungkyung General Construction lnc. Project team | Lee, Mi-yeon / Ryu, Hye-jeong / Kim, Jong-wan / Kim, Min-su / Park, Jae-hyung Location | 57, Deulan-ro, Suseong-gu, Daegu-si, Korea Program | Neighborhood living facility Site area | 788.10㎡ Building area | 465.02㎡ Gross floor area | 1,873.54㎡ Building to land ratio | 59.01% Floor area ratio | 192.28% Building scope | B1F - 4F Structure | RC Exterior finishing | Exposed concrete with wood texture, STO - outside insulation system Interior finishing | Granite, Vinyl water paint Design period | Oct. 2015 ~ Feb. 2016 Construction period | Mar. 2016 ~ Feb. 2017 Photograph | Yoon, Donggyu Structural engineer | E&S solution Mechanical engineer | Likun ESC Electrical engineer | Hanil Eletric Fire engineer | Likun ESC |
'회원작품 | Projects > Neighborhood Facility' 카테고리의 다른 글
| 텐퍼센트 2022.11 (0) | 2022.11.14 |
|---|---|
| 강릉 메어블릭 2018.02 (0) | 2022.11.09 |
| 투은빌딩 2018.02 (0) | 2022.11.09 |
| 비콘그라운드 2022.10 (0) | 2022.11.02 |
| 성빌딩 2022.10 (0) | 2022.11.02 |