2022. 12. 24. 09:13ㆍ회원작품 | Projects/Neighborhood Facility
Urban Space

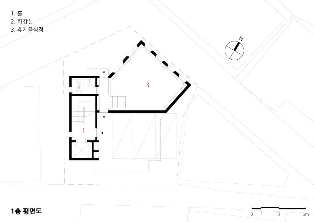
마포구 상수동에 위치한 임대용 근린생활시설이다. 상수역 사거리에서 한강 방향 블록 안쪽 골목에 위치한다. 200제곱미터가 채 안 되는 작은 땅이지만 남쪽으로 3미터 도로가 닿고, 북쪽으로는 두 개의 4미터 도로가 코너에서 만나고 있다. 더군다나 앞쪽 도로는 몇 년째 확장 중인 상수동 상업거리의 연장선상에서 상업적 가능성을 던져주고 있다. 늘 그렇듯 임대용 건물에 대한 건축주의 요구 사항은 명확했다. ‘가장 효율적으로 최대한의 임대면적을 확보’하기 위해서는 일조사선 제한을 피해 북측 전면도로 쪽에 주차장을 확보하고 건물은 남쪽방향으로 물러나 자리 잡아야 했다.
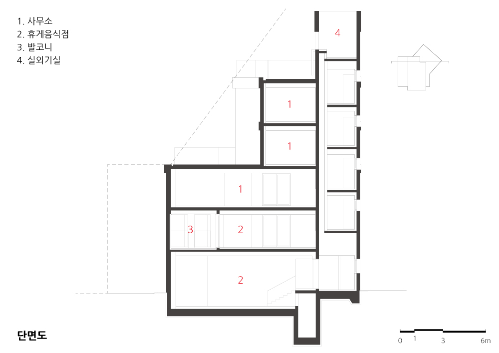
하지만 건축적 정면성과 상업성을 모두 갖는 북측 코너쪽 입면을 포기할 수는 없다고 판단했고, 우선 매스를 전면배치한 뒤 에 일조사선에 따라 계단식으로 물러나는 형식을 취하기로 결정했다.
각 층이 물러나 쌓이며 만들어지는 공간들을 이용해 되도록 층마다 외부 발코니를 가질 수 있도록 했다. 법규상 생긴 층별 외부공간들이 임대공간의 환경개선 및 임대료 증가에 기여하도록 한 것인데, 이 부분들을 마포구 내규의 ‘건축물의 발코니 개수 제한(마포구에서는 불법건축물 예방 차원에서 계단식 건물의 형태를 제한하고 있다)’에 맞춰 정리하면서 전체적으로 저층부와 고층부 두 개의 매스가 크게 비틀려 쌓인 것과 같은 형태가 완성됐다.

Located in Sangsu-dong, Mapo-gu, the project is a neighborhood living facility for rent. The site is located in the inner alley of the block in the direction to Han River from the intersection of Sangsu Station. Although the size of the lot is less than 200 square meters, the lot itself faces a 3-meter road to the south and a 4-meter road to the north at the corner. Moreover, the front road gives a business possibility on the extension of Sangsudong commercial street, which has been expanding for several years.
As always, the client's requirements for the rental building were clear. In order to secure the maximum lease area most efficiently, a parking lot should be located on the northern frontal road by avoiding limitation of sunlight and to set back in the south direction. However, we decided that we could not give up the side of the north corner, which has both architectural frontality and commercial aspects. We decided to take the form of terrace that is pushed back according to limitation of sunlight after placing the mass on the front firstly.
Each floor has its own exterior balcony by the setback. The form which is required by the city regulation created better outdoor environments for leasing spaces with the rent increased. And the setbacks were carefully designed to conform the local ordinance regarding to the limited number of building balconies in Mapo-gu (In Mapo, it restricts the form of terraced buildings to prevent illegal buildings extension)', and the two masses of the lower and upper parts were largely twisted together to complete the shape.







| 어반 스페이스 설계자 | 신현보 신현보 건축사사무소 건축주 | 김재성, 박기란 감리자 | 김영훈 시공사 | 라우종합건설 설계팀 | 이수지 대지위치 | 서울특별시 마포구 와우산로5길 23 주요용도 | 근린생활시설(휴게음식점, 사무소) 대지면적 | 195.47㎡ 건축면적 | 109.46㎡ 연면적 | 388.14㎡ 건폐율 | 56.00% 용적률 | 198.57% 규모 | 지상 5층 구조 | 철근콘크리트조 외부마감재 | 시멘트타일, 박판세라믹타일(펄도장), 투명로이복층유리, 저반사로이복층유리 내부마감재 | 시멘트벽돌, 수성페인트, 세라믹타일 설계기간 | 2017. 08 ~ 2018. 03 공사기간 | 2018. 03 ~ 2019. 01 사진 | 노경 구조분야 : 이든구조컨설턴트 기계설비분야 : 정연엔지니어링 전기분야 : 정연엔지니어링 소방분야 : 정연엔지니어링 |
Urban Space Architect | Shin, Hyunbo_ BO.PUB. Client | Kim, Jaesung / Park, Kiran Supervisor | Kim, Younghoon Construction | LAWOO Project team | Lee, Suzi Location | 23, Wausan-ro 5-gil, Mapo-gu, Seoul, Korea Program | Neighbourhood facility(Restaurant, Office) Site area | 195.47㎡ Building area | 109.46㎡ Gross floor area | 388.14㎡ Building to land ratio | 56.00% Floor area ratio | 198.57% Building scope | 5F Structure | RC Exterior finishing | Cement tile, Pearl painting on thin ceramic plate, Transparent double glazing (low-e coating), Low-reflection double glazing (low-e coating) Interior finishing | Cement brick, Paint, Ceramic tile Design period | Aug. 2017 ~ Mar. 2018 Construction period | Mar. 2018 ~ Jan. 2019 Photograph | Roh, Kyung Structural engineer | Eden structure consulting Mechanical engineer | Jungyeon engineering Electrical engineer | Jungyeon engineering Fire engineer | Jungyeon engineering |
'회원작품 | Projects > Neighborhood Facility' 카테고리의 다른 글
| 비원 [祕苑] 2019.8 (0) | 2022.12.24 |
|---|---|
| 35520 2019.8 (0) | 2022.12.24 |
| 충신 연극공유센터 2019.8 (0) | 2022.12.24 |
| 경주 Y 빌딩 2019.6 (0) | 2022.12.22 |
| 논현 1021 2019.5 (0) | 2022.12.21 |
