2022. 12. 24. 09:15ㆍ회원작품 | Projects/Neighborhood Facility

배경 [고민의 시작]
넓은 도로와 화려한 빌딩이 들어선 청담 사거리와 다르게 비원의 대지는 6미터 도로에 접한 언덕 교차로에 위치해 있다. 좁은 도로를 중심으로 재개발 중인 건물들은 일률적이고 과밀된 매스형태로 가로 공간을 더 답답하게 만들고 자기들만의 폐쇄적 언어로 가로의 풍경을 어둡게 만들고 있었다. 첫 번째 작업은 대지에서의 답답함을 해소하면서 시각적인 확장성과 활력을 가지는 공간의 가치에 대한 고민이었다.
디자인해법 [매스의 변화]
디자인의 첫 단계는 적층으로 건물의 규모를 만들고, 도시의 규제와 적정 면적을 대입하여 그 볼륨을 정리했다. 그 과정에서 규칙적인 형태보다는 엇갈림과 줄임을 통해 매스는 다채로운 형태를 만들어가기 시작했다. 또한 폐쇄적 느낌의 계단실 보다는 가로에 보다 적극적으로 대입되는 외부 계단을 통해 가로에서 시각적 확장과 역동적인 이미지를 연출했다. 엇갈려 쌓인 층별 테라스는 이용자들이 마당처럼 이용할 수 있게 제안했다. 이는 도시에서 가질 수 없는 숨겨진 정원을 가지게 하였고 그 정원은 내외부의 전이공간인 동시에 바람이 통하는 통로의 역할을 한다
재료의 활용[벽돌]
벽돌은 시간이 지나도 그 가치가 변하지 않는 재료이다. 좋은 건물과 사람처럼 벽돌은 시간에 비례하여 그 가치를 증명한다. 입체적인 매스에 차분한 느낌의 백고벽돌을 단일재료로 사용하여, 건물 자체의 무게감을 주면서 웅장하지만 차분한 느낌이 들게 했다. 단일재료의 변화를 위해 여러 쌓기 방식으로 패턴에 변화를 주면서 입면에 통일감과 다양함을 주려 노력했다. 일반 치장 쌓기부터 영롱 쌓기 등은 건물에 많은 표정을 불어넣었다.
비원[祕苑], 어느 순간 건물은 임대와 면적이라는 가치에만 중심을 두고, 도시에서 건물이 가지는 역할과 가치에 대해 생각하는 것은 그만두게 되었다. 면적 찾기뿐만 아니라 도시 안에서 건축물의 역할에 대한 고민의 대답을 비원을 통해 제안하려 한다. 숨겨진 도심 속 정원인 테라스와 선큰 그리고 6미터 도로를 향해 열린 계단은 그 첫 번째 단계일 수 있을 것이다. 폐쇄적 계단실과 벽돌로 둘러싼 열린 계단은 지하 1층부터 2층까지 직접 연결되는 동선을 만들고, 벽돌이 가지는 다양한 패턴들과 빛의 흐름에 따라 연출되는 표정을 통해 가는 길의 즐거움을 제안했다. 그리고 개방된 테라스는 도시로의 열린 공간이며 벽돌 사이 빛이 떨어지는 4층의 테라스는 도시 속 비밀이 숨겨진 정원이 있는 공간이다.

Background [Beginning to Worry]
Unlike Cheongdam Sageori, the bustling crossroads, where colorful buildings parade, Biwon's site is located 6-meter wide crossroads over the hill. Uniform and dense buildings under redevelopment around the narrow roads made the streetscape stuffy. The exclusive architectural language on the buildings made the scenery gloomy. The first task was to understand value of the space which can relax the stuffiness, expand the relationships and introduce the vitality on the streetscape
Design Solution [Change of Mass]
As the first stage of design, the scale of a building was made by stacking, and the volume was arranged by applying the city's regulations and the appropriate area. In the process, the volume began to make a dynamic form by stacking the volume alternately with reducing each size. In addition, rather than the closed staircase, the exposed one to engage streetscape has created a visual expansion and a dynamic image on the street. Terraces placed alternately on each floor were designed for users to use them as gardens. The hidden garden in the city serves as transitional spaces from the outside as well as wind paths.
Utilization of Materials [Brick]
A brick is a material whose value does not change over time. Like good architecture or good people, it proves its value over time. Three-dimensional mass entirely with calm white antique bricks gives a grand and calm feeling within the overall expression of heaviness. In order to make diverse effects from single material, we applied various masonry pattern methods, which gave the elevation unity and diversity. From the general brick pattern to porous brick screen, the building was filled with various looks.
Biwon, the hidden garden. Nowadays lots of people focused on the value of lease and area of the building and forgot to think about the role and value of a building in the city. We tried to propose an answer to the question of the role of architecture in the city through Biwon beyond matching the area requirement. The hidden garden in a city-a terrace, sunken, and stairways to a 6-meter roadcan be the first step. The enclosed staircase and the brick-surrounded open staircase directly connected the first floor to the second floor, where we wanted to provide a delightful experience of the journey along the various expressions of brick patterns and light flow. And the open terrace is an open space to the city, and the terrace on the fourth floor with the light falls between bricks is a secret garden in the city.










|
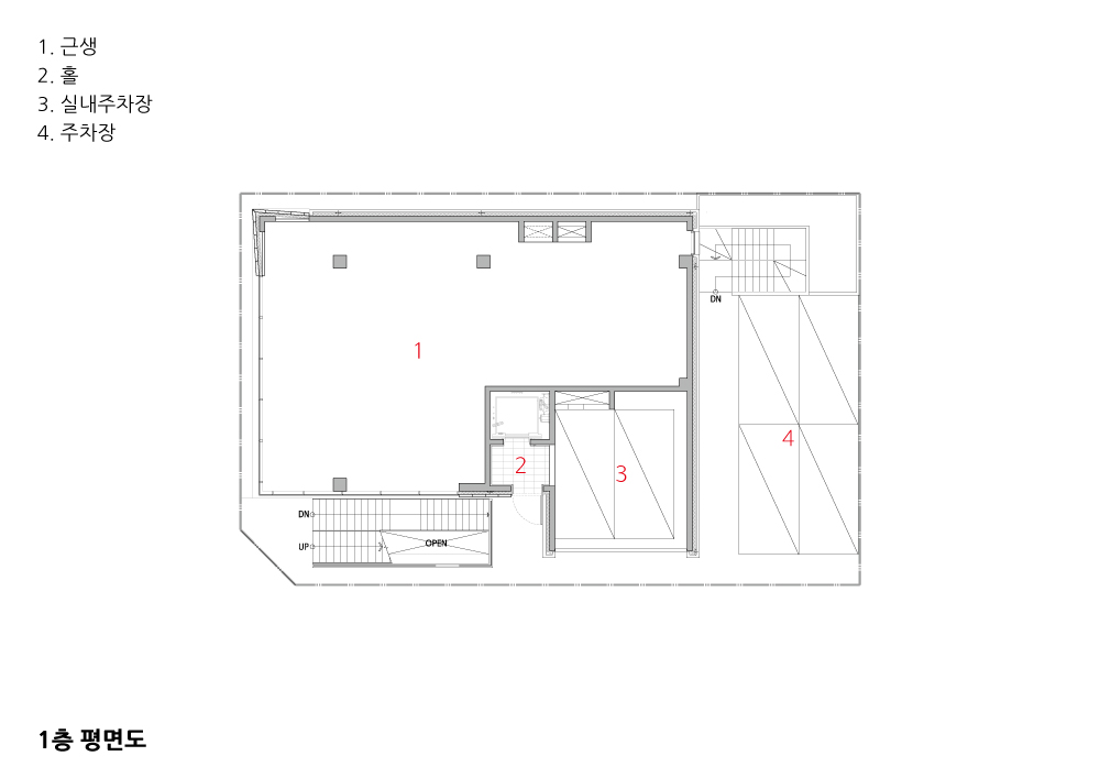
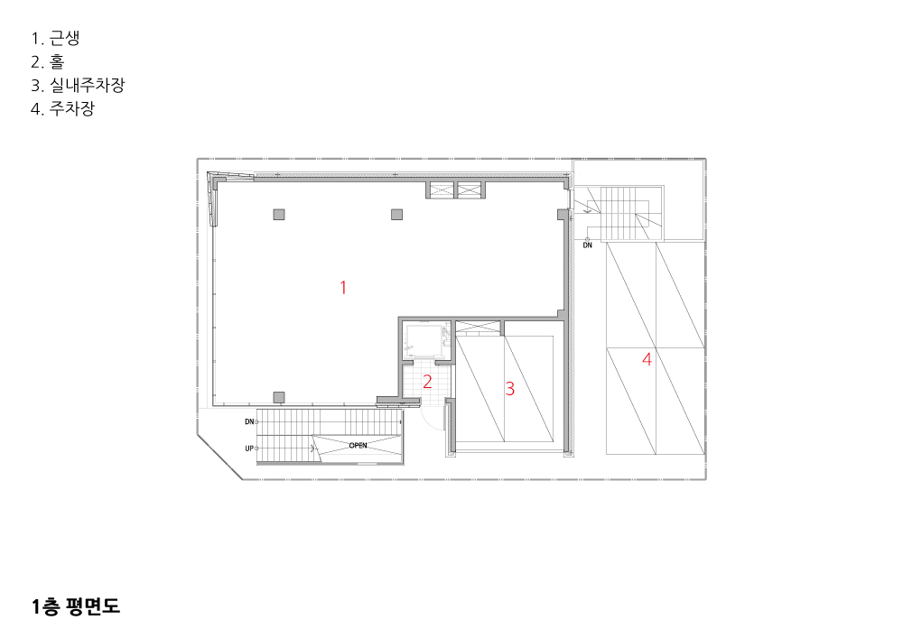
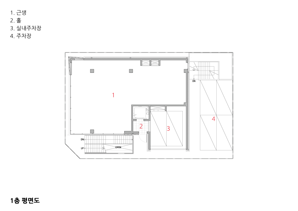
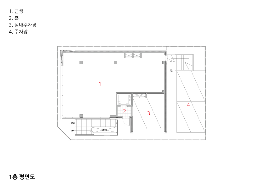
비원 [祕苑] 감리자 | 김창균 _ (주)유타 건축사사무소 시공사 | (주)스타시스건설 설계팀 | 배영식, 김하아린 대지위치 | 서울특별시 강남구 선릉로146길 58 주요용도 | 근린생활시설 + 단독주택 (상가주택) 대지면적 | 358.60㎡ 건축면적 | 208.94㎡ 연면적 | 824.95㎡ 건폐율 | 58.22% 용적률 | 149.03% 규모 | 지하 1층, 지상 4층 구조 | 철근콘크리트조 외부마감재 | 백고벽돌, 갈바늄마감 내부마감재 | 타일, 친환경페인트 설계기간 | 2017. 11 ~ 2019. 01 공사기간 | 2018. 03 ~ 2019. 01 사진 | 진효숙, 홍석규 구조분야: 하이구조 기계설비분야 : 코담기술사 전기분야 : 코담기술사 소방분야 : 코담기술사 |
祕苑 Architect | Kim, Changgyun _ UTAA company Supervisor | Kim, Changgyun _ UTAA company Construction | Starsis Project team | Bae, Youngsik / Kim, Haalyn Location | 58, Seolleung-ro 146-gil, Gangnam-gu, Seoul, Korea Program | Commercial, Houses Site area | 358.60㎡ Building area | 208.94㎡ Gross floor area | 824.95㎡ Building to land ratio | 58.22% Floor area ratio | 149.03% Building scope | B1F, 4F Structure | RC Exterior finishing | Brick, Galvalume Interior finishing | Tile, Eco-friendly paint Design period | Nov. 2017 ~ Jan. 2019 Construction period | Mar. 2018 ~ Jan. 2019 Photograph | Jin, Hyosuk / Hong, Seokgyu Structural engineer | Higujo structural engineers Mechanical engineer | Codam engineer Electrical engineer | Codam engineer Fire engineer | Codam engineer |

'회원작품 | Projects > Neighborhood Facility' 카테고리의 다른 글
| 아크레타 양림 2020.1 (0) | 2023.01.09 |
|---|---|
| 유앤아이사옥 2019.10 (0) | 2023.01.05 |
| 35520 2019.8 (0) | 2022.12.24 |
| 어반 스페이스 2019.8 (0) | 2022.12.24 |
| 충신 연극공유센터 2019.8 (0) | 2022.12.24 |