2023. 1. 5. 09:16ㆍ회원작품 | Projects/Neighborhood Facility
YOU & I

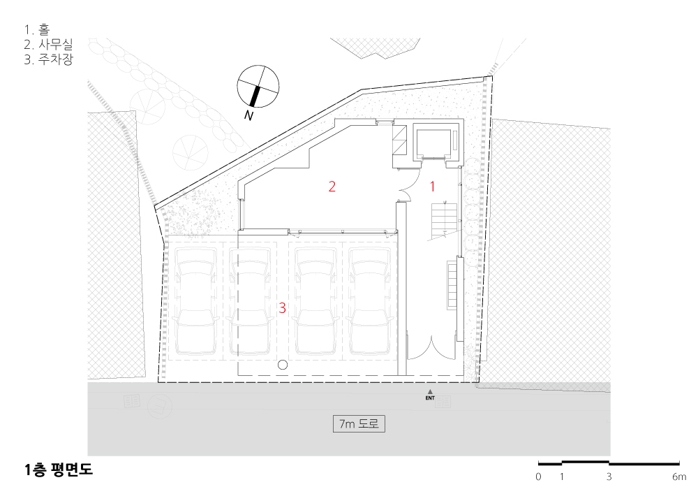
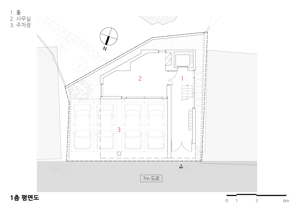
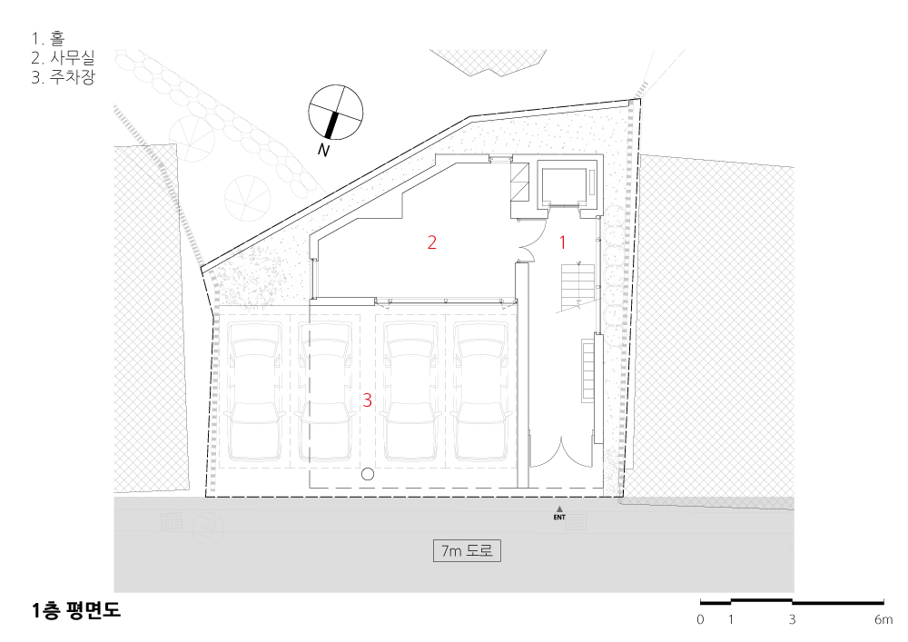
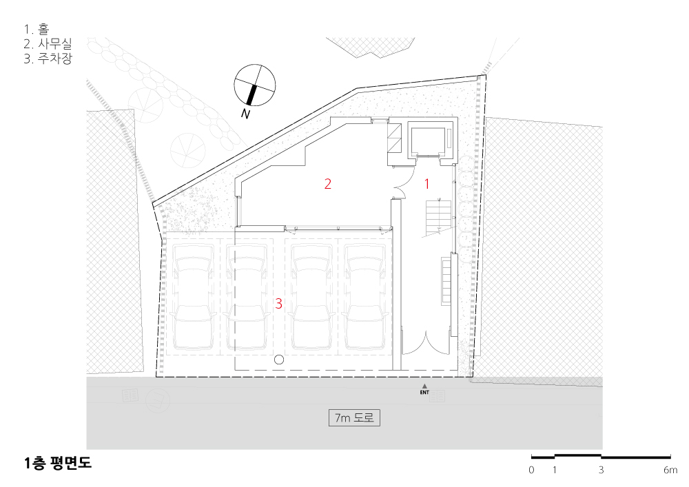
유앤아이사옥은 대구 남구 봉덕동(고산골)의 주거지역에 위치한다. 인근에는 남구국민체육센터가 자리잡고 있다. 대지는 북쪽 8미터 도로에 접하고 있으며, 전면도로는 좌우로 40센티미터의 레벨차가 있다.
4개 층으로 구성 된 유앤아이사옥의 대지면적은 158제곱미터(약 48평)이며, 전체연면적은 315.57제곱미터(약 95평)이다
각 진입부(주출입구, 주차출입구)는 도로의 레벨차를 고려하여 자연스럽게 내부와 연결되도록 했다. 주출입구와 계단실(계단,엘리베이터)은 대지형상과 정북일조 그리고 도로레벨을 따라 최적의 위치로 결정됐다.
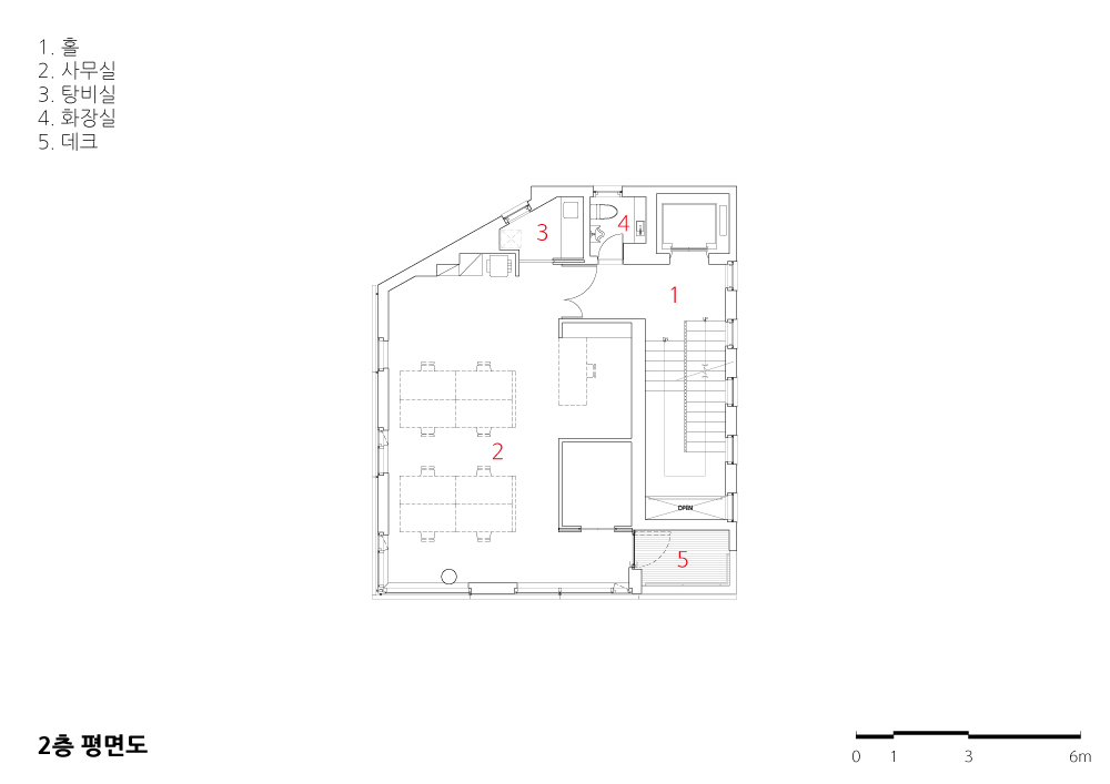
각 층별 프로그램으로 1∼3층은 사무실로, 4층은 대표의 집무실로 구성되어 있다. 2층과 4층 일부공간은 테라스를 배치하여 외부와 소통하는 공간을 마련했다. 주거지역임을 감안하여 노출콘크리트로 마감된 외부면에 알루미늄루버를 추가로 설치했다. 알루미늄루버는 기업의 아이덴티티가 됨과 동시에, 내부사무공간의 프라이버시를 확보하게 된다. 더욱이 3, 4층의 경우에는 알루미늄루버를 밴딩하여 전망을 확보했다. 계단과 함께 설치되는 와이어 난간은 평범할 수 있는 계단실에 색다른 분위기를 만든다.

You & I Office is located in the residential area of Bongdeok-dong (Gosangol), Nam-gu, Daegu, Korea. Nam-gu National Sports Center is located nearby. The land adjoins a 8- meter road north, and the front road has a 40 cm-level difference.
The four-story You & I Office has a land area of 158 ㎡ (approximately 48 pyeong), and its total gross area is 315.57 ㎡ (approximately 95 pyeong).
Each entrance (main entrance, parking entrance) is connected to the inside naturally considering the level difference of the road. The main entrance and staircases (stairs, elevators) were designed to be optimally located along the land shape, due north sunshine and the road level.
The programs on each floor consist of offices on the first to third floors, and CEO’s office on the fourth floor. Some spaces on the 2nd and 4th floors have terraces to provide communication with the outside. Considering the residential area, an additional aluminum louver was installed on the exterior surface finished with exposed concrete. Aluminum louver becomes corporate identity and secures the privacy of indoor office space. In addition, the 3rd and 4th floors secured a view by bending aluminum louver. The wire railing, which is installed with stairs, creates a different atmosphere in an ordinary staircase.







| >유앤아이사옥 설계자 | 김건철_스마트 건축사사무소 건축주 | 유앤아이 감리자 | 김건철 _ 스마트 건축사사무소 시공사 | 건축주 직영 설계팀 | 이승은 대지위치 | 대구광역시 남구 봉덕동 주요용도 | 근린생활시설(사무소) 대지면적 | 158.00㎡ 건축면적 | 94.54㎡ 연면적 | 315.57㎡ 건폐율 | 59.84% 용적률 | 199.99% 규모 | 지상 4층 구조 | 철근콘크리트조 내부마감재 | 노출콘크리트 설계기간 | 2016. 11 ~ 2017. 04 공사기간 | 2017. 04 ~ 2018. 01 사진 | 윤동규 전문기술협력 - 구조분야 : 강구조 - 기계설비분야 : 한국기연 - 전기분야 : 우진전기 - 소방분야 : 우진전기 |
YOU & I Architect | Kim, Guncheol_SMART Architecture Client | YOU&I Supervisor | Kim, Guncheol _ SMART Architecture Construction | Direct undertaking work Project team | Lee, Seungeun Location | Bongdeok-dong, Nam-gu, Daegu, Korea Program | Neighbourhood living facility Site area | 158.00㎡ Building area | 94.54㎡ Gross floor area | 315.57㎡ Building to land ratio | 59.84% Floor area ratio | 199.99% Building scope | 4F Structure | RC Interior finishing | Exposed Concrete Design period | Nov. 2016 ~ Apr. 2017 Construction period | Apr. 2017 ~ Jan. 2018 Photograph | Yoon, Dongkyu Structural engineer | Kangguzo Mechanical engineer | Hankukkiyoun Electrical engineer | Woojin eng Fire engineer | Woojin eng |

'회원작품 | Projects > Neighborhood Facility' 카테고리의 다른 글
| 덕천동 근린생활시설 'Being' 2020.1 (0) | 2023.01.09 |
|---|---|
| 아크레타 양림 2020.1 (0) | 2023.01.09 |
| 비원 [祕苑] 2019.8 (0) | 2022.12.24 |
| 35520 2019.8 (0) | 2022.12.24 |
| 어반 스페이스 2019.8 (0) | 2022.12.24 |