2023. 1. 9. 09:13ㆍ회원작품 | Projects/Neighborhood Facility
Being

Prologue
건축주는 프로젝트를 시작할 당시 건물의 이름을 미리 지어놓았다.
‘Being‘ - being [ˈbiːɪŋ] 1. 존재, 실재 2. 생명체, 존재(하는 것) -
움직인다는 것은 존재함을 의미한다. 공기의 흐름에 따라 움직이는 나뭇잎과 구름, 태양의 흐름에 따라 움직이는 빛과 그림자. 프로젝트는 그러한 자연요소들을 이용한 공간과 풍경을 부지 내에 만들자는 생각을 바탕으로 시작됐다.
도심 속 나비의 아주 작은 날개 짓
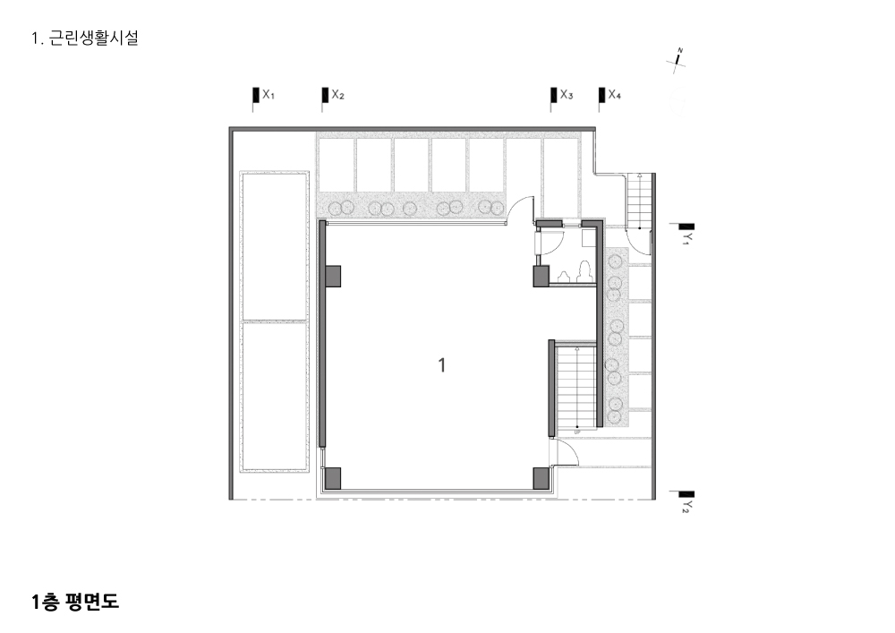
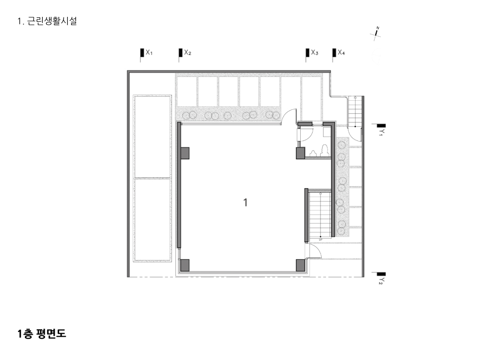
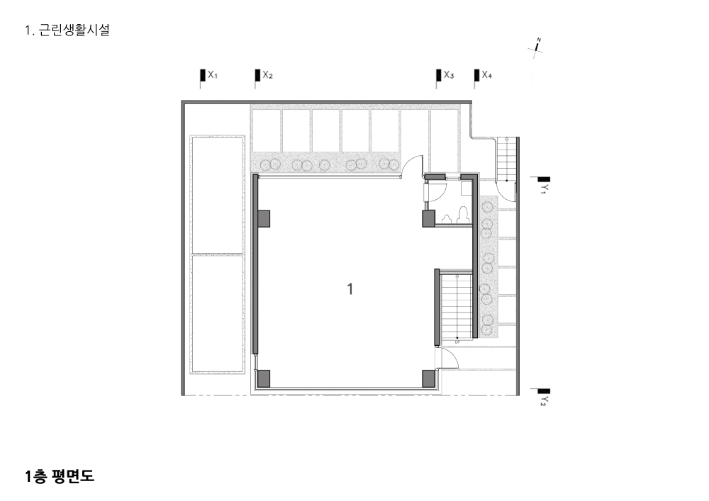
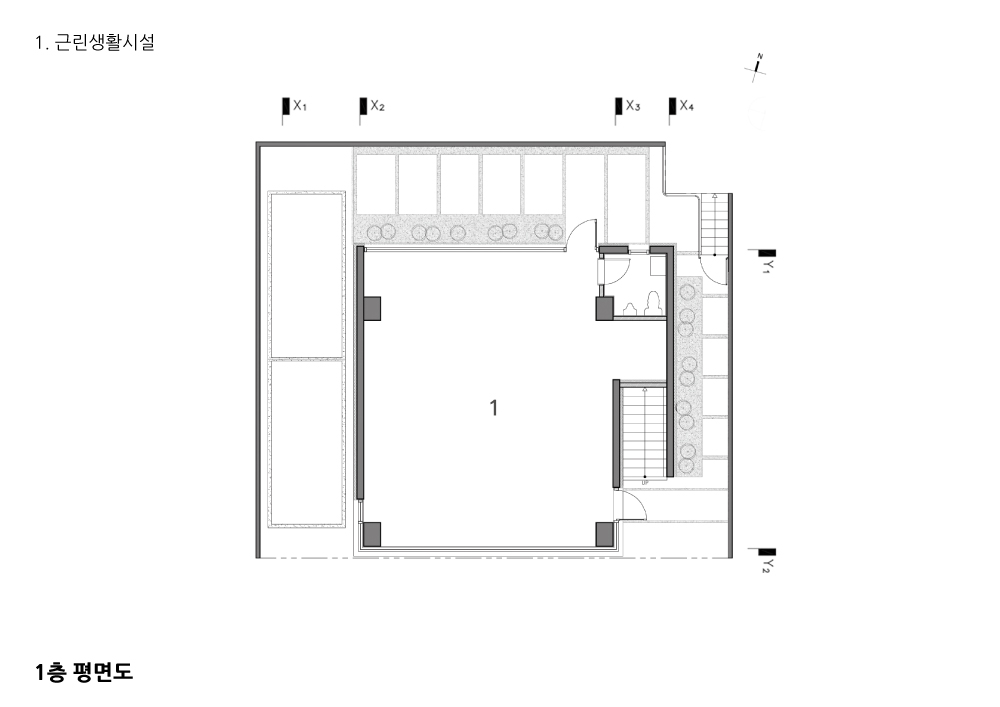
조경의무대상의 대지면적도 아닌 도심 속 작은 땅에 ‘Being’이라는 건물명처럼 빛과 그림자, 바람소리, 나무, 꽃, 구름 등의 움직이는 자연을 통해 존재함을 느낄 수 있는 공간을 만드는 것은 물질과 정신의 경계에서 하는 줄타기와 같다. 일반적으로 도시 속 근린생활시설의 조경은 준공을 위한 구색 맞추기로 구석진 빈자리에 건축공간과 크게 연계됨 없이 배치된다. 이 프로젝트에서 또한 ‘한평 한평에 예민한’ 근린생활시설이라는 용도와 크지 않은 땅은, 법이 허용하는 한 최대의 면적을 확보해야 했다. 동시에 자투리 외부공간에 자연을 담아내면서 적극적으로 내부공간과 연계되도록 계획하는 것이 목표였다. 그 결과 덕천동 근린생활시설 ‘Being’은 이 건물만이 가지는 자신만의 아이덴티티를 갖게 됐다.

Prologue
The client named the building at the beginning of the project: ‘Being’ <being [ˈbiːɪŋ] 1. Being, existence 2. Creature, being>. Moving means existing. Leaves and clouds moving along the air, light, and the shadows moving along the sun. The project started with the idea of creating spaces and landscapes within the site using such natural elements.
A butterfly's tiny wings flapping in a city
Creating a space following the meaning of the name, 'Being' is so difficult as walking a tightrope on the boundaries of spirit and material, especially where the project is not obligated to provide a legal landscape area while the building name expresses to provide a space where people can feel existence through moving nature such as light, shadow, wind noise, tree, flower, and cloud, in such a small urban land. In general, the landscaping of neighboring living facilities in the city is just arranged for its building permission in the corner of remote space without any meaningful connection with a building space. The project also should meet the basic expectation of “squeezing down to even one pyeong (Korean traditional measure of a unit area)” especially for the use of the neighboring living facilities, even with small land to secure the largest area allowed by law. At the same time, it was designed to be actively linked to the interior space while capturing nature in the exterior space. As a result, ‘Being’, a neighborhood living facility in Deokcheon-dong, has its own identity.







| 덕천동 근린생활시설 'Being' 설계자 | 최새벌 _ 건축사사무소 1458 건축주 | 박노해 감리자 | 최새벌 _ 건축사사무소 1458 시공사 | (주)제이비종합건설 설계팀 | 황재필 대지위치 | 부산광역시 북구 기찰로 11 주요용도 | 근린생활시설 대지면적 | 171.60㎡ 건축면적 | 102.35㎡ 연면적 | 297.10㎡ 건폐율 | 59.64% 용적률 | 173.14% 규모 | 지상 4층 구조 | 철근콘크리트조 외부마감재 | 스타코, 금속알루미늄루버 내부마감재 | 수성페인트, 노출콘크리트 설계기간 | 2018. 03 ~ 2018. 09 공사기간 | 2018. 11 ~ 2018. 04 사진 | 남상인 전문기술협력 - 구조분야 : (주)모아구조 - 기계설비분야 : (주)광명토탈엔지니어링 - 전기분야 : (주)광명토탈엔지니어링 - 소방분야 : (주)광명토탈엔지니어링 |
Being Architect | Choi Saebeol _ 1458 Architects Client | Park, Nohae Supervisor | Choi Saebeol _ 1458 Architects Construction | JB Project team | Hwang, Jaepil Location | 11, Gichal-ro, Buk-gu, Busan, Korea Program | Neighbourhood facility Site area | 171.60㎡ Building area | 102.35㎡ Gross floor area | 297.10㎡ Building to land ratio | 59.64% Floor area ratio | 173.14% Building scope | 4F Structure | RC Exterior finishing | Staco, Aluminum louver Interior finishing | Paint, Exposed concrete Design period | Mar. 2018 ~ Sep. 2018 Construction period | Nov. 2018 ~ Apr. 2018 Photograph | Nam, Sangin Structural engineer | Moa Mechanical engineer | Kwangmyoung Electrical engineer | Kwangmyoung Fire engineer | Kwangmyoung |

'회원작품 | Projects > Neighborhood Facility' 카테고리의 다른 글
| 인천건축사회관 2020.2 (0) | 2023.01.10 |
|---|---|
| 이움빌딩 2020.2 (0) | 2023.01.10 |
| 아크레타 양림 2020.1 (0) | 2023.01.09 |
| 유앤아이사옥 2019.10 (0) | 2023.01.05 |
| 비원 [祕苑] 2019.8 (0) | 2022.12.24 |