2023. 1. 9. 09:12ㆍ회원작품 | Projects/House
Yongdu-dong House

집장사집 _ 도심 내 주거문제는 경제적 논리와 부동산 경기, 빈부격차, 교육문제 등 다양한 현상들의 집합체다. 도시 안에서 주거는 거주에 대한 기능을 담당하고 효율적 해결 방향으로 흘러가고 있다. 집이라는 기본적인 공간은 삶에 역사를 만드는 곳인데 여관의 방처럼 기능적 누울 자리를 마련하기에 급급하다. 현실로 돌아와서 우리가 꿈꾸는 도심 내에서 집은 어떤 곳일까? 집장사가 만들어 온 다가구 다세대 주거는 주택과 아파트 사이에 저렴한 현실적 도피처이다. 1인 주거, 여성전용, 동호인주거 등 특정 목적으로 탄생한 쉐어하우스가 아닌 우리 주변에 흔히 볼 수 있는 다양한 계층과 이웃과 살아가며 동네주민과 함께 살아가는 지극히 평범한 다가구를 삶이 있는 풍성한 주거로 만들어 본다.
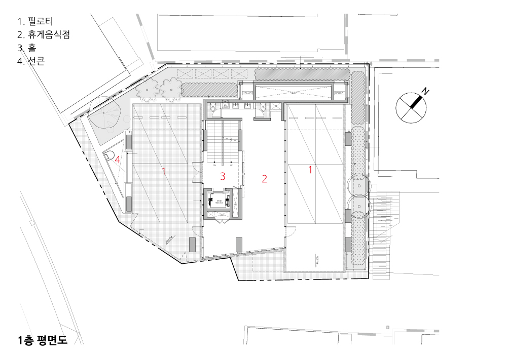
용두동집 _ 용두동집은 70대와 30~40대 부부들, 아이가 넷 셋인 가정, 이 지역 교회 사무실 그리고 동네극장과 동네책방이 함께 공간을 쓴다. 이 집의 건축적 목표는 다양한 활동을 통해 도심 속 공동체의 가능성을 탐색하는 것이다. 이를 위한 기본적인 조건은 전체 공간의 1/3을 공동체와 공유하는 것이다. 공유 공간은 동네극장, 주방, 작은 서재, 서점과 지역의 공부방이다. 예를 들어, 1층에 있는 동네책방은 낮과 밤에 사용자가 바뀌며 입주민들과 지역의 사람들을 연결하는 매개 공간이 된다. 낮에는 카페를 겸한 동네 서점이었다가, 밤이 되면 입주민들의 서재나 사랑방이 될 수 있다. 이 공간을 통해 입주민들은 지역과 만나고 사회적 관계를 맺어 갈 것이다.
뭉친 집 _ “함께 행복하게 살기 위해 뭉친 집”
성북천 정비로 인해 천변의 건물들은 하부 근린생활을 가진 주거 건물들로 조금씩 변해 갈 예정이다. 용두동집은 대지 지적선을 따라 뭉쳐진 형태와 함께 부대끼며 살아 가는 모습을 한 뭉친 집이 탄생하게 되었다. 성북천에 면한 코너집으로써 여러 세대가 함께 생활하는 여러 집의 형상을 하면서도 다양한 창호패턴으로 성북천변에 활력을 주며 밝고 차분한 색감의 디자인 블록 색상으로 지역 주민들에게 사랑 받는 코너 건물로 다시 태어날 것이다.

“Jibjangsa House (a house built only for economical profit) _The housing problem in a city is a collection of various phenomena including economic logic, real estate economy, the gap between rich and poor, and education. In the city, dwellings function as a residence and are moving toward an efficient solution. The basic space of a house is a place of making history in life, but it is merely striving rooms to lie down like ones of the inn. What kind of home in a city are we dreaming of in reality? Multi-family, multi-household houses built by Jibjangsa are inexpensive realistic shelters somewhere between a single detached house and apartments. It is not a share house created for specific purposes such as single-family homes, women-only homes, and club-member homes. It will be an abundant home for extremely common multi-families where people live in the neighborhood with various classes of people and neighbors.
Yongdu-dong House _ The Yongdu-dong House is shared by couples in their 70s, 30s, and 40s, families with three and four children, the local church office, and the neighborhood theater and bookstore. The architectural goal is to explore the possibilities of the urban community through various activities: to share one-third of the space with the community. Shared spaces are a neighborhood theater, a kitchen, a small library, a bookstore, and a local study room. For example, the neighborhood bookstore on the first floor is a medium that connects residents with local people as the users are different in the day and at night. In the daytime, it is a cafeteria bookstore, and at night it can be a library or a reception room for residents. Through this space, residents will meet the locals and establish social relationships.
Mungchin (means ‘united into a lump’ in Korean) House _ ‘Mungchin House to Live Together Happily'
Due to the maintenance of the Seongbukcheon district, the buildings near the river will gradually change into residential use with neighborhood living facilities in the lower part. Mungchin House was born to form a united house along with the cadastral line where people live together. It is a corner house facing Seongbukcheon, and it will revitalize Seongbukcheon River with various window patterns while forming the shape of blending various houses where several generations live together and will be reborn as a corner building loved by the local people with its design blocks of bright and calm colors.







| 용두동집 설계자 | 임진우_(주)정림건축종합건축사사무소 건축주 | 재단법인 정림건축문화재단 감리자 | 건축사사무소 공유 시공사 | (주)예지인종합건설 설계팀 | 김용만, 노영우 대지위치 | 서울특별시 동대문구 안암로6길 19 주요용도 | 다가구주택 대지면적 | 373.00㎡ 건축면적 | 223.56㎡ 연면적 | 958.25㎡ 건폐율 | 59.94% 용적률 | 188.95% 규모 | 지하 1층, 지상 5층 구조 | 철근콘크리트조 외부마감재 | 디자인블럭, THK24로이복층유리 내부마감재 | 콘플로어, 강마루, 라텍스페인트 설계기간 | 2017. 01 ~ 2017. 05 공사기간 | 2017. 07 ~ 2018. 10 사진 | 박영채 전문기술협력 - 구조분야 : (주)네오크로스구조엔지니어링 - 기계, 기계소방분야 : 한국설비연구(주) - 전기, 전기소방분야 : (주)명인SI엔지니어링 |
Yongdu-dong House Architect | Lim, Jinwoo_ JUNGLIM Architecture Client | Junglim Foundation Supervisor | Gongyu Architecture Construction | Yejiin Construction Project team | Kim, Yongman / No, Youngwoo Location | 19, Anam-ro 6-gil, Dongdaemun-gu, Seoul, Korea Program | Housing Site area | 373.00㎡ Building area | 223.56㎡ Gross floor area | 958.25㎡ Building to land ratio | 59.94% Floor area ratio | 188.95% Building scope | B1F - 5F Structure | RC Exterior finishing | Design block, THK24 LOW-E PAIR GLASS Interior finishing | CONFLOOR, GANGMARU, PAINT Design period | Jan. 2017 ~ May 2017 Construction period | Jul. 2017 ~ Oct. 2018 Photograph | Park, Youngchae Structural engineer | NEOCROSS STRUCTURE. Mechanical engineer | HANKOOK ENG. Electrical engineer | MYUNGIN SI ENG. |

'회원작품 | Projects > House' 카테고리의 다른 글
| 해품채전원마을 강안당 2020.2 (0) | 2023.01.10 |
|---|---|
| 서산동문 850 2020.2 (0) | 2023.01.10 |
| 녹원재 2020.1 (0) | 2023.01.09 |
| 수우재 2019.11 (0) | 2023.01.06 |
| 은평 열린 주택 2019.10 (0) | 2023.01.05 |