2023. 1. 19. 20:12ㆍ아티클 | Article/칼럼 | Column
A living and Brenthing Tourism for Architecture ⑧ Architect, Kim, Se-hwan, From Yesan, Who Pioneered Korean Architecture
1. 해방 이전과 이후 근현대건축과 작품활동(1950~1970)을 중심으로
(1) 해방 이전
한국의 건축근대사는 일제강점(1910)이후 해방(1945)까지 조선총독부 주관 하에 관청, 학교, 은행 등 새로운 건축문화와 기술에 적응하면서 건설 관련 기관과 일본 건축사 그리고, 선교사가 주도하에 르네상스양식, 서구식 건축물들이 점차 확산되었다. 그러나 개항 이후, 상공학교(1906), 공업전습소(1907) 등이 설립되었음에도, 실제적으로 박길룡, 김윤기, 홍윤식 등과 같은 근대식 건축교육을 받은 한국인 건축사는 1920년 이후가 돼서야 등장하였다. 공업전습소는 목조구법에 관련된 사항만을 가르쳤었다. 따라서, 1915년 이후 고등기술인력의 수요를 느낀 조선총독부는 1916년에 근대식 건축교육을 담당하는 경성공업전문학교를 설립하게 된다. 목조보다는 일본인들의 수요가 많은 조적조의 수요가 점차 확대되면서 발생한 변화라고 볼 수 있다. 1930년대 일본유학파 건축사들이 합류하여 이들이 해방 이후 한국의 건축계에 전문성을 갖춘 건축사들로서 활동하였다.
또한, 1970년대까지 전쟁과 재건 등 과도기적인 혼란 속에서 1958년 건설업법 제정, 1965년 건축사제도의 시작으로 건축계 발전의 전환점을 맞게 된다.
일제에 의한 건축 관련 교육의 시작은 1916년 4월에 개교한 경성공업전문학교로부터이며, 한국인 건축사들이 일제의 관공서 설계를 통해 사회로 진출하는 기반이 되었다.
충남지역 근대건축 발전배경은 경부선(1904), 호남선(1914) 시발점 개통과 더불어 1932년 충남도청을 대전으로 이전과 동시에 계획시가지로 변천하나 1932년 전까지 도청소재인 교육행정중심지였던 공주는 인구가 줄면서 퇴락하게 된다. 경부선, 호남선, 경남철도(장항선)의 개통으로 충청남도의 지역발전 변화에 새로운 역할을 했다. 내포지역인 예산은 지정학적으로 중국인과 외국인들의 접근이 용이했기 때문에 천주교의 전파와 그로 인한 포교활동과 상업활동이 확장되면서 근대적 상업도시로 발전한다.

충남 예산은 사설철도 경남철도(장항선, 1922~1923) 개통과 동시에 현 지방문화재(제66호)로 지정된 호서은행본점 건물이 나카무라 요시헤이의 설계로 1922년 신축, 준공 이전된다. 호서은행은 지형상 내포의 중심인 예산이란 작은 고을에 1913년 5월 21일 설립되었다. 면소재지인 예산 중소지주들이 민족의 경제자립이란 목적으로 순수한 민족자본에 의하여 일찍이 세워진 지방은행 중 한옥으로 건축되었으며, 현존하는 건축물로 원형은 알 수 있으나 증축으로 많은 변형이 생긴 상태다.
경남철도가 예산 온천리간 1922년 개통에 이어 호서은행 본점 신축(1922년 준공) 이전으로 활발한 상권 형성과 함께 상당수 일본인들이 유입되면서 일본식 건물이 들어서는 계기가 되었다. 관청건물인 예산군청(1923), 예산면사무소, 공주 지방법원예산출장소, 예산경찰서(1923), 예산우편소(1924), 예산농업미곡창고(1925, 현존), 일본인 영령분양소(현존), 예산곡물검사 예산출장소(1928), 남성합동전기회사 예산출장소(1929), 예산세무서, 전주전매국 예산출장소(1930), 학교, 병원, 전문식당, 상가주택, 마치야 등 일본식 주택이 건설되었다.
(2) 해방 이후
1945년 해방을 맞으면서 새로운 시대로 접어든다. 미군정에 예속된 미공병대에 의한 간이 건축수준으로 미국의 원조에 의해 건축이 시작되었고, 1950년 한국전쟁으로 일제 강점기에 이루어진 도시와 건축물은 초토화되고 말았다.

당시 건축물 전후 복구사업은 미국의 원조에 의존하다 보니, 기술부족과 졸속 건축은 불가피한 일이었고, 1960년대까지 파괴된 건축을 개보수하거나 증축하는 일이 계속되었다. 대학진학을 위해 1958년 처음 서울에 올라와 도착한 서울역 주변과 전차 궤도 건너 맞은편 일제강점기에 지어진 르네상스식 4, 5층 규모의 건축물이 파괴되어 보수하는 것을 볼 수 있었다. 현재는 도로확장으로 50미터 이상 남산 쪽으로 후퇴한 현대식 건물이 서 있다.
해방 이후 국내에서 활동한 건축사들은 대부분 지방보다 서울을 중심으로 건축과 교수들이 설계사무소를 운영하는 형태였다.
충남지방에서 해방이후 건축사의 활동은 주로 대전지역에 집중되었으며, 소읍 도시인 각 지방 도시는 1, 2명 건축사의 활동에 불과했고, 해방 전후와 6.25 전란을 거치면서 건축대서사무소가 등장하였다.
충남에서 초창기 활동한 건축사의 사무소 실태는 다음과 같다.

(3) 예산지역 건축사 김세환의 활동
해방 후 충남지역 건축사들은 대부분 관청에 근무했다. 근대도시 발전을 거듭하던 지역과는 달리 읍면 단위의 지역에서는 소규모 개인주택 외 별다른 건축 활동을 기대할 수가 없었다.
해방이후 예산지방에서 작품 활동(1950~1970)을 한 건축사 김세환(金世煥)은 일제하에 1919년 3월 1일 충남 논산군 성동면 우곤리 296(원적) 태생으로 고향에서 여유 있는 지주의 5남 4녀 중 2남으로(동생 김윤환 3남) 태어나 그는 비교적 자유로운 소년기를 보낸다. 농촌에서 4킬로미터 떨어진 강경읍에 있는 강경공립보통학교를 거쳐 1935년 전주공업학교 건축과를 동생 김윤환(金潤煥, 1921년생), 친구 김병일과 함께 입학하면서 본격적으로 건축을 수학하였고, 2년 만에 졸업한다.

김세환은 경성부 한강로 2가에 있는 간조(間組) 경성지점에 입사하여 1937년 3월부터 1945년 8월까지 영선업무 공사감리 실무에 종사하면서 함경북도 아오지(阿吾地)출장소 현장에 투입되어 근무하던 중 해방과 더불어 가족과 함께 고향에 내려왔다.

그 후 1946~1947년 충청남도 도청 건축영선 업무기사로 근무한지 일 년 만에 예산군청 영선기사로 발령받게 되었다. 그 후, 1950년 예산 교육구청부서로 옮겨 20여 년간 공직자로서 예산군 읍면에 초등학교, 중고등학교 교사 실습실 강당 등 설계와 현장감독을 전담하다시피 하였다. 퇴임 후 건설부시행 1급 건축사(1-269) 자격을 1965년 6월 15일 취득하였고, 시공기술사(을-665) 자격으로 잠시 건설회사 건축부장으로 근무하다가 설계사무소를 자영, 많은 작품을 남겼다.
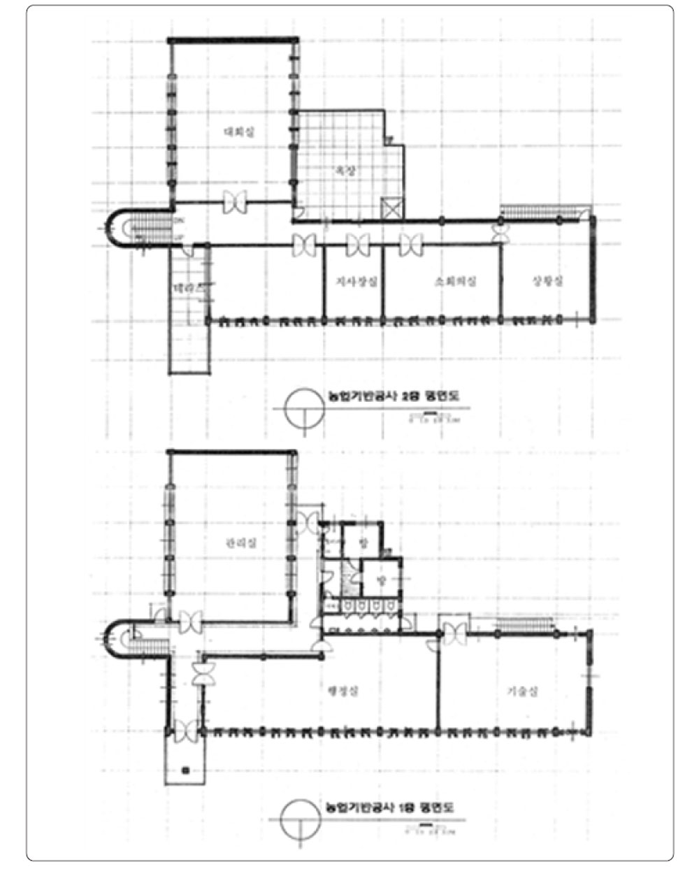
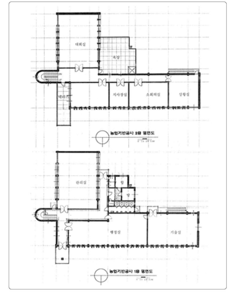
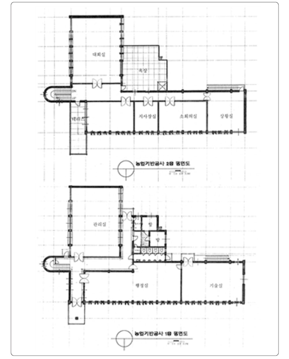
건축사 김세환은 중고 분리에 의해 예산중학교 본관과 별관(1957년 3월에 준공, 2층 조적조 건물)을 비롯하여 예산중앙초등학교 본관, 예산고등학교 본관, 예산교육청(2층 청사, 벽돌조, 1961년 6월 12일 설계), 예산농업고등학교 본관(1962년 12월 25일 준공된 3층 18교실, 철근콘크리트 건물과 연결교사 18학급), 예당토지개량조합(현 농업기반공사 예산지사, 1962년 설계, 1962년 9월 착공, 1963년 5월 준공, 지상 2층 철근콘크리트 건물), 예산문화원(1963년 준공, 조적조 2층 슬라브 건물) 등을 설계하였다.
이외에 예산에서 평생을 지내면서 작품으로 1960년대에 준공된 2층 반공회관(철거됨), 향천사 극락전(1976), 8년 공사 끝에 준공(1962)된 예산제일감리교회(철거됨), 예산중앙교회, 예산장로교회 교육관, 주교리에 있는 예산중앙극장, 온양에 있는 아산시 교육청 청사, 보령 장애자학교 본관을 직접 계획하고 설계하였다. 이렇듯 건축사 김세환은 예산지역의 근현대기의 정점에서 큰 획을 긋는 활발한 활동을 하였다.
특히 예산농고, 예산중학교본관, 교육청 문화원, 예당토지개량 조합, 반공회관 등의 건축디자인은 한국인 건축사들이 사용했던 일본식 건축양식을 완전히 벗어나고 있다. 이 건물들은 서구 모더니즘적 경향을 반영한 넓은 창과 햇빛의 양을 조절하는 스크린벽, 수평난간 등을 사용함으로써 수직과 수평라인이 적절하게 조합되어 안정감이 보인다. 특히, 농지개량조합 건물은 빛을 조정하는 차양과 루버, 기둥의 육중함을 경감시키기 위해 기둥에 콘크리트 블럭을 사용해서 더욱 수직적으로 보이게 함으로써, 시각적으로 가볍게 보이도록 고려했다. 게다가 나무줄기와 같은 기둥 위에 받쳐져 있는 곡선형 계단실, 건물의 4면기둥형태. 창과 루버의 반복적인 굴곡 등으로 인해 다양한 입면의 변화를 주고 있다. 또한, 농지개량조합 입구 부분에 캐노피의 비대칭형태와 예산문화원 입구에서 3개의 세장형수직창을 새겨놓은 기역(ㄱ)자형태의 캐노피는 입구라는 강한 장소성을 하나의 기호적 형태 속에서 보여주고 있다. 결과적으로, 건축사 김세환의 건축물을 통해서는 1950~1970년대 한국의 건축은 절대 전근대적이지 않았으며, 지방건축에 대한 재평가가 반드시 필요함을 알려주고 있다.





(4) 그 시대의 작품들(1919~1978/김세환)
해방과 더불어 6·25사변에 파괴된 도시는 복구사업으로 건축이 활발하였으나, 필자가 살아온 충남 예산은 분지속의 도시로 전쟁 중 파괴된 곳은 한 곳도 없었다. 그러나 공공건물, 학교건축은 1, 2교실 연결 증축을 계속하는 정도로 자재는 주로 미군정 원조에 목재, 시멘트, 철근 등이며, 시멘트벽돌은 현장에서 제작하여 검사를 받은 제품을 신축 및 증축에 사용하는 것이 고작이었다.

기존 일식건축의 양식이 아닌 모더니즘을 반영 수직·수평적 라인은 건물의 안전감과 빛을 조정하는 차양과 루버 등은 다양한 굴곡으로 지루함을 배제시키고 있다. 또한 입구 모양은 건축사의 독창성을 1950~1960년대한국건축이 전근대적이지 않았음을 보여주고 있다.
2. 한국건축 태동의 주역-예산지역 건축사 김세환
- 해방 이전과 이후 근현대(1950~1970) 중심으로
일제시대에 태어나 16세의 나이로 전주공업학교 건축과에 진학한 이후 목조주택 현장 실습을 통해 김세환(1919~1979)은 일본인 회사에서 건축수업을 하고 한국건축계에서 본격적인 활동은 1950년 예산에서 시작되었다고 본다.
해방 이후, 50년대 초반부터 70년대 중반까지 공직에서 작품활동 중 건축사 김세환씨는 1965년 1급건축사 취득 후 김세환건축설계사무소를 1965년도 개설하여 대한건축사협회 충남건축사지부 창립멤버로 초대 감사, 예산 초대분소장을 역임하면서 작품에 임했다.
(1) 예산중학교

중·고등학교 분리로 인해서 1951년 10월 1일 개교(18학급) 중학교가 신설되었다. 6·25 종전 후에 예산읍 350번지에 철근 콘크리트 와 조적조로 2층 본관 및 별관 건축물이 1957년 3월 준공되었다. 그 이후에 예산농업고등학교에서 중학과정 전교생들이 현재의 건물로 이사하게 된다.
(2) 평촌초등학교 외

1950년대는 2층도 짓기 어려웠기에, 구하기 힘든 건축자재와 부족한 기능공 등으로 주로 시멘트벽돌로 지어진 초등학교 건축물은 1, 2 교실로 시작하여 양쪽 옆으로 연결 증축 또는 1층 위에 2층으로 증축, 자재는 주로 민군정 원조로 목재, 시멘트, 철근 등을 의존해 건축되었다. 시멘트 벽돌은 현장에서 제작한 검사제품을 신축 및 증축에 사용하여 해마다 1, 2교실식 이어온 학교다운 건축물들이다. 통학거리와 늘어나는 학생을 고려하여 주로 여름방학을 이용해 신·증축을 하였다.
(3) 반공회관


반공회관(자유회관)은 예산문예회관 건축물이 없던 시절에 유일하게 집회장소로 사용된 건물이다. 어려운 재정에도 불구하고, 이 건축물이 탄생하기까지 군민들의 성금으로 지어진 정성 들인 건축물로 비품, 의자 하나하나가 성금으로 이루어졌으며 반공의식 교육장, 크고 작은 집회장으로 이용돼왔다.
군민이 정성 들인, 50여 년이 된 애환이 깃든 건축물을 시민, 재산, 유산을 앞장서서 보호해야 하는 군 당국이나 문화원이 철거하고, 문화원을 이전 신축한데 대해서 참으로 안타깝게 생각한다.

(4) 예산교육청(전)
현재 도서관으로 사용되고 있으며, 예산교육청 청사로 35년간 사용하였다. 외피는 백색의 벽면을 바탕한 긴창은 수직감을 돋보이게 하고 있으며, 1층과 2층의 창의 크기를 비례적으로 조절함으로써 하중감이 느껴지게 디자인되었다. 입구 정면에 부분적으로 루버를 사용해 정면성을 부가시키고 있다.
(5) 예산 농지개량조합
공사 중단과 재개를 거듭하여 20여 년만에 완공을 보게 된 예당저수지 축조를 해방과 더불어 중단과 6.25 전쟁으로, 4.19로 혁명을 이어 군사정부가 들어서면서 1964년에 완공을 보게 된다. 1946년 11월 예당수리조합으로 설치가 인가된 것으로 본 조합은 1962년 1월 21일 예당토지개량조합으로 개칭하였고, 예당저수지 축조 중에 본 지사 건물은 김세환의 설계로 1962년 9월에 착공하여 1963년 5월에 준공된 지상 3층 철근콘크리트조 건물로서, 그 당시 충남도청은 웅장함에 감탄하였다 한다.
외관은 루버가 강조된 건물로 채광을 일정하게 유지하도록 하였고, 주출입구 부분과 계단위치의 동선계획을 고려하고 조화를 이루고 있으며 외형은 옛 모습 그대로 보존되어 있다.


(6) 예산문화원(구)
동시대에 한국의 모더니즘이 봉착하게 되는 또 하나의 딜레마는 관료주의이다. 예산문화원 평면의 구성은 간략화된 것이나 평면과 외관에는 부드러운 감성이 있다. 평면에서 보이는 벽면의 완곡한 선들은 다시 외관에서 이 건축이 매우 농후한 낭만성을 지니게 하는 요소로 작용하고 있다. 이러한 낭만성과 인간미가 김세환 건축사의 관료주의를 탈피하려는 의도로 잘 나타나고 있고, 외관의 특징은 수직·수평 모던한 디자인을 추구하고 있으며, 다른 어떤 스케치보다도 짙은 감성이 충분히 잘 표현되고 있는 것이다.

(7) 중앙극장(현 역전마트)
1960년대 도시의 번화한 거리에 건축된 극장으로 전성기를 지나 현재 근생마트로 사용되기까지 오랜 세월동안의 업종변화로 본래 내부의 모습은 알 수가 없으나, 내부 무대와 객석에 기둥이 없는 것으로 보아 영화전용 극장으로 계획되었음을 알 수 있다.
내부 2층 영사실과 외부 정면 입구, 그리고 2층 영화상영 포스터 부착을 위해 강조된 정면 부분과 일부 측면은 본래의 모습이 남아 있을 뿐이다.

(8) 예산농업고등학교 후 예산농업전문대로 승격
필자가 대학 건축과에 다니던 학창시절 김세환 부친께서 본관설계를 하실 때 참여했던 작품으로 그 당시 중견 건축사로 활약한 폭넓은 분이셨다. 섬세한 곡선 부분과 Rib의 돌출부분을 정교하게 나타내기 위하여 특수 제작한 블록을 이용, PC패널로 표현하는데 성공하였다. 여기에 합리주의적 모더니즘에서 나타나는 심플한 이미지를 외피에 표현하겠다는 의지를 짐작할 수 있다. 특히 전면에 부각된 전면성을 강조한 캔틸레버의 난간 부분은 콘크리트 구조물로써 섬세한 거푸집 작업으로 이루어진 것인데, 1960년대 모던한 목공인의 장인 정신이 이루어 낸 획기적인 시공으로 걸작이라 할 수 있다. 이 작품은 건축사의 의지가 표현된 것으로 보인다. 필자는 이 작품을 통해 견적, 도면을 잉킹하는 방법, 청사진 틀을 사용하는 방법, 암모니아 통에 현상하는 것 등을 배웠기에 특별한 감회가 서려있는 작품으로 기억하고 있다.

3. 건축사의 철학
김세환(1919~1979)은 일제강점 시기에 교육을 받고 일본인 회사에서 건축수업을 하고 경력을 쌓았으며, 한국건축계에서 본격적인 활동은 1950년 예산에서 시작되었다고 본다. 해방 이후에 활동이 활발했던 건축사로 주요 작품시기는 1950년대 초반부터 1970년대 중반까지이다. 일제시대에 태어나 16세의 나이로 전주공업학교 건축과에 진학한 이후 목공과 목조주택 현장 실습을 통해 건축에 관심을 갖고 몰두한 흔적이 많은 고심과 노력을 했음이 엿보인다.
김세환 건축사는 공직에서 작품활동 중 1965년 1급건축사 면허 취득 후 예산에 김세환건축설계사무소를 1965년도에 개설하여 충남건축사지부 창립멤버로 초대감사, 예산분소 초대분소장을 역임하면서 작품에 임했다.
건축작품에는 평촌초등학교(1952), 장복초등학교(1954), 구만초등학교(19656), 조림초등학교(1956), 동신초등학교(1957), 주교초등학교(1957), 예산중학교 본관·별관(1957), 예산교육청(1961), 예산제일감리교회(1962), 예산농업고등학교 본관(1963), 예산토지개량조합(1964), 예산문화원(1964), 예산중앙교회(1965), 훙남보령복지법인정심원교육관(1967), 예산고등학교(1969), 농협협동조합(1970), 예산자유회관(반공회관 1970), 아산교육구청(1972), 예산중앙극장(1974), 향천사 극란전(1977) 등이 있다. 이 건축물들은 모더니즘 계열로 기술적 바탕 위에 자신의 개성적 형태 언어를 결합하는 일에 몰두한 결과라고 할 수 있다.
주로 학교 공공건축물을 시작으로 다양한 관공서, 사무실 등의 설계 작품이 많이 남아있다. 1965년대 근무한 박갑순, 1970년대 근무한 고흥주 씨의 증언에 의하면 일할 직원이 거의 없어 혼자서 모든 일을 처리할 수밖에 없는 열악한 상황 속에 당시는 건축전공 인원이 부족하였기 때문에 세부적인 전문성보다는 건축 전반을 알고 건축만능이 되어야 했다. 당시 사회가 요구하는 건축사상은 건축의 모든 분야, 즉 건축 계획, 건축 구조, 건축 시공 등을 마스터한 만능의 건축 기술자였다.
특히 박갑순 씨는 옛 일을 회고하면서 사업 실패 후 설계사무소 개설 때 아들(필자 김득수)이 이 집을 홍성 법원에서 낙찰받아 찾아주었다고 늘 말씀하시면서, 적지 않은 돈을 준비하느라 고생을 했을 거라며 나에게 한두 번 말씀하신 게 아니라 가끔 눈시울을 적시곤 하였다고 전해 주었다.
방학 때마다 주로 설계에 참여해 시간을 보내면서 밤늦게까지 작품의 토론과 지도를 받았으며, 모든 일을 손수 하는 생활에 필자도 배울 점이 많았다.
설계부터 시공까지 본인이 직접 설계도면을 오구로 잉킹하는 방법, 두루마리 감광지를 도면에 맞추어 절단한 후 청사진 틀에 햇볕을 조절하여 암모니아 통에 현상하는 등 청사진에 풍기는 암모니아 냄새가 채 사라지기 전에 또 다른 청사진을 대하면서 잊고 산 지난 시간들…. 직접 실행하여 완성함으로서 나 또한 학습과 할 수 있는 실기적인 작업과정이 가장 추억에 남는 학창시절이었다. 묘사력, 이해력이 도움 되어 설계훈련을 받고 건축적인 기초를 닦게 된다.
부친 김세환 건축사는 예산읍 예산리 523-1 자택 마당에 손수 지은 사무실에서 작품에 몰두하다 과로로 고혈압에 쓰러져 당분간 요양 중 서울 사무실 직원을 파견하여 급한 일을 처리하고, 필자도 시간을 할애하여 직접 참여하였다. 김세환 건축사는 책임감 때문에 다시 불편한 거동으로 작업에 임하였으나 병이 재발되어 결국 천수를 다하지 못하고 1979년 유명을 달리하셨다.
김세환 건축사는 그이 나이 60세 환갑을 못 채우고 급환으로 후대를 위한 건축적 유언을 채 준비할 겨를도 없이 돌아가셨다. 60세의 건축사로서는 이제사 진정한 자신의 작품세계를 구축하고 건축계를 이끌어 갈 시기였으나, 너무나도 아쉽게 이 세상을 떠나시고 만 것이다. 활달하고 명랑한 성격에 유머와 약주를 좋아하셨는데, 식민지 시대에 청년으로서 겪는 여러 가지 역경을 이기고 자신을 극복한 사람만이 가질 수 있는 호연지기를 가지셨었다고 주위 건축사들은 말하고 있다.
필자(김득수)는 2008년 4월 23일 오전 약속한 홍성내포건축사사무소를 찾았다. (1970년도 당시 근무했던) 반갑게 맞이하는 고흥주 씨의 말에 의하면, 1973년 군에 입대 전까지 건축사보로 현장을 답사하고 설계업무에 임했으며 그 당시 장항선, 천안을 제외하고 온양, 홍성, 광천, 서산, 당진 등 건축사사무실이 전무하여 지방 현장에도 많이 돌아다녔다고 한다.
예산리 마산골 출신 고흥주(내포건축사사무소 건축이사) 씨와 김세환건축사사무소의 인연은 보건소, 신문사에 근무한 부친 고영우 씨, 국회의원 박병선 씨와 세 분이 돈독한 친구사이로 서울 미8군 소속 설계사무소 근무 중 시골 예산에 오게 되었다고 했다. 낮에는 현장, 밤에는 주로 건축설계를 하면서 밤 12시 전후 귀가가 보통이었다니 얼마나 열정적이셨는지 알 수가 있다. 또한 지방현장에서 오삽으로 콘크리트 배합율과 시공과정을 배운 본인이 대전건설공병단 군복무 중 믹서기로 콘크리트 타설 과정을 처음 보았으며, 건설자재에 대한 많은 자료와 경험을 얻었다고 했다. 그러면서 김세환 건축사는 사무실 청소를 잘해야 설계도 잘한다는 사명감, 주인의식을 갖도록 주지시키며 지나친 상업화로 가다보면 작품성이 없어진다는 건축철학을 강조하셨다고 한다. 섬세하고 꼼꼼한 성격으로 설계 검토 후 지적사항을 나열한 후 수정을 시키는 것이 아니라, 아예 트래싱 페이퍼(원도)를 찢어버리고 다시 시키는 일이 비일비재했다니 일에 있어서는 얼마나 혹독하게 가르치셨는지 잘 알 수 있다. 이것을 참고 견디면서 배운 것이 훗날 건축을 이해하고 현장을 알게 되는데 큰 힘이 되었다고 한다.
작품은 주로 주택, 상가주택, 소규모상가, 창고 등이 많았으며 특히 박선린(충남교통) 사장 주택 설계가 애착이 간다는 말을 잊지 않았다.

첫 번째 혈압으로 쓰러진 후 불편한 몸으로 침을 흘리면서 전자계산기가 없던 시절 슬라이드 계산기로 면적 계산, 재료 수량 산출 등 견적을 주로 하셨고 같이 일하면서 정이 많이 들었다고 한다. 불편한 몸을 지탱하기 위해 사무실과 집안 제거식 화장실을 콘크리트 정화조 시설로 개량하여 좌변기를 설치한 예산읍내 최초 수세식 화장실이 탄생하게 된다. 걷기가 불편하여 집에서 사무실, 화장실 등을 모시고 다녔다고 하니 고마운 마음을 느끼면서 필자도 많은 정감을 갖게 되었다.

제대 후 합동사무실 운영 당시 김현용(현 홍성건축사사무소 대표)이 근무하고 있었으며, 1년 남짓 함께 있다가 홍성에 자리를 잡게 된다. 홍성에 자리를 잡은 후 김세환 건축사가 부르면 혼자 사무실 잔무처리를 하면서도 반가워하던 모습이 눈에 선하다고 했다. 낮에는 홍성, 밤에는 예산을 오가면서 일을 도왔던 생각 등 김세환 건축사는 꼼꼼하고 청결하여 쓰러진 후에도 작품에 몰두하고 열정을 가진 분으로, 충남건축사지부 회원은 물론 관계기관에 잘 알려진 분이시라고 말을 맺었다. 필자는 창작활동과 작품을 기대하면서 고흥주 씨의 앞날에 건투를 빈다.
고흥주 씨를 만난 후 김현용 건축사의 사무실을 찾았다. 점심약속을 한터라 반가워하면서 1973년도 김세환 건축사의 얘기를 꺼냈다.
1년 남짓 근무하면서 김세환 건축사의 세심한 내용, 꼼꼼한 성격, 인허가 도면이 아니라 시공도면을 주문하셨던 분이라고 고흥주 씨가 말한 그대로 열심히 빠짐없이 했다고 자부하지만, 그의 설계검토는 선하나의 굵기 차이, 연필로 작도한 설계도면에 때가 묻지 않도록 깔끔한 설계를 원했던 것이다. 특히 시공할 수 있는 도면, 수량 산출에 지장이 없어야 하는 수치, 거짓말 설계가 아니라 평면, 입면, 단면, 디테일이 일치하는 도면을 원했고 그렇지 못하면 수정하면 쓸 수 있는 트레싱페이퍼(원도)를 주저하지 않고 갈기갈기 찢었다고 하니 견디기 힘들 정도로 고생하면서, 그 후 많은 작업을 거쳐 교회 교육관 설계도서 작성은 건설회사의 칭찬을 받을 정도로 교육을 받았으며 엄격한 교육 덕택으로 건축사 면허를 취득하고 홍성에서 현 홍성건축사사무소를 개설하게 되었다 한다. 김세환 건축사를 존경하는 김현용 건축사님의 열정과 작품활동에 건투를 빌면서 필자는 예산행 버스에 올랐다.

김홍택(1951년생, 현 김홍택건축사사무소 대표)은 1974년도부터 1979년까지 6여 년간 김세환의 건축과 동반한 분신과 같은 분이다. 본론을 집필한 자료를 몸소 체험하고 기억하고 있는 유일한 분이라 그에게 의뢰한 자료는 대부분 대화로 나누었고, 이를 일부 반영한 내용은 설계 과정에 있었던 일, 현장 체험 내용, 김세환 건축사의 철학 등 그는 대부분의 우리나라 모더니즘과 같이 일제시대의 교육경험을 가지고 광복 후에 건축적 실천을 도모하면서 한국적 모더니즘을 실천한 건축사이다. 건축사는 작품으로 자신을 이야기하고 평가를 받게 되지만, 이것에 못지 않게 살아생전 지내온 언행과 발자취는 한 사람을 평가하는데 중요한 부분을 차지한다고 할 수 있다.
좌담회

필자 김득수 오랜만에 회장님들을 모시게 되었습니다. 전에 본협회에서 자주 뵈었는데 지금 건강은 어떠하신지요? 늦게 모시게 되어 죄송합니다. 이 자리는 저의 부친이신 김세환 건축사의 형제분 발자취를 자료로 남기는데 여러분의 고언을 듣고자 모시게 되었습니다.
그리고 저의 연세대 공학대학원 석사논문 ‘일제시대 소읍도시 형성과정에 관한 연구-충남예산지방의 근대적 도시변화’ 1차 논제 심사과정에서 심사위원 연세대 이경회 교수, 김성우 교수와 목원대학 건축과 김정동 교수의 조언으로 개항 이후 서구식 교육을 받은 한국 건축사의 건축계 활동, 해방 이후 건축사제도 시행 전후 배경의 추가 자료를 찾아 정리하는 게 어떤가 하는 김정동 교수의 의견에 의해 ‘김세환과 그 시대 작품활동’ 자료를 추가하여 2차 심사에서 짧은 시간에 많은 자료를 찾았다 하였으나 조사과정이 짧아 미비한 점을 보완하여 협회 건축사지에 투고하고자 합니다.
이로 인하여 후배 건축사들이 선배 건축사들의 건축활동은 물론 작품을 정리하고 잊혀져가는 건축사의 출현과 배경을 정립하는 계기가 되어 지역 건축사들의 작품 성향과 빛을 보지 못하는 자료를 발굴, 연구의 필요성을 인식시키는 시발점이 되기를 기대합니다.
그럼 먼저 초창기 협회 발족과 함께 창설한 그 시대의 건축 상황과 당시 생각나는 에피소드 등을 자유롭게 말씀해 주시면 고맙겠습니다.

박홍우 전회장 우선 이런 자리를 마련해 준 김득수 건축사께 감사의 말씀을 드립니다. 우리나라 건축역사의 초창기에 활약한 건축사의 자제분이 그 당시 함께 했던 사람들을 대접해 주고 더군다나 선배 건축사이자 선친이신 분에 대한 기록을 찾아 남기려고 하는 열정에 대해 고맙기도 하고 자랑스럽기도 합니다. 당시 건축대서사소 시절 구협충남지부장은 배한구씨가 맡아 활동했으며, 당시에는 건축사시험에 대학졸업자에게는 건축사자격증을 그냥 준 시절이기도 했습니다. 배한구 회장님을 비롯한 역대 회장님들은 협회 창립을 위해 서울, 대전을 오가면서 건축사법에 의거 창립회원 22명으로 충남건축사지부를 세우게 됩니다. 당시 초대지부장은 양세환 건축사가 맡았고, 간사 3명, 감사 2명을 선출하여 지역건축 발전과 협회를 위해 열심히 일하셨습니다.

김종민 전회장 양세환 회장님에 이어 제가 2번째(4, 5대) 지부장을 맡게 되었고, 당시 전국에서 처음으로 회관을 건립, 준공식을 가진 회장으로서 감회가 크고 두고두고 잊지 못할 일이라 생각하고 있습니다.
박홍우 전회장 그 당시는 내세워 자랑할 만한 작품과 그렇지 못한 작품들이 혼재되어 있던 때였고, 주택이 주를 이루었으며 목조와 블록조로 도시나 농촌의 경관을 결정하던 시절이었습니다.
김종민 전회장 양세환 초대회장 당시 초대 감사를 김세환 씨가 맡아 대선배인 두분이 콤비를 이루어 충남지부를 잘 이끌어 갔습니다. 약주를 좋아하시는 두 분이 어울리면 집에도 못 가실 정도였고 저도 두 선배님을 모시고 끝까지 있었던 기억이 납니다.
박홍우 전회장 약주를 드셔도 김세환 씨는 조용한 편이었습니다. 그에 비해 양세환 전회장님은 술을 드시면 (주사가 있어)끝까지 후배들과 함께 행동하기를 원했습니다.
유근열 전회장 총회나 간사회의가 있을 때마다 집에 못 가도록 감사님을 붙잡은 예가 한두번이 아니었습니다.

강우식 전회장 양세환 회장님은 말할 것도 없고 김종민 회장님도 약주를 꽤 좋아하셨죠. 요즘처럼 자료보관이 잘 된 때도 아니어서 자료 찾기가 힘들었을 것 같은데, 조사를 많이 하셨네요.
필자 김득수 연세대 건축과 석사논문 ‘일제시대 소읍도시 형성과정에 관한 연구’ 심사위원으로 이경회, 김성우, 김정동 세 분 교수님이 심사 때 목원대학 김정동 교수와 인연이 됐었지요 ‘예산지방근대적도시변화’에 이어 해방 이후 건축과정에 대한 자료 조사로 예산지방 건축계 활동을 많이 하신 선친 위주로 쓰게 됐습니다. 아마 충남 지방 각 시군의 공통점이 아닌가 싶습니다.

신우식 충남건축사회장 김득수 서울부회장님은 전부터 알고 있었습니다. 1980년대 박천수 시장 시절 아산시가 발주한 시민체육관을 설계하셨을 때 제가 감독관으로 있었던 기억이 납니다.
필자 김득수 그렇습니다. 박천수 아산시장은 예산중, 예산농고 2년 선배이기도 합니다. 당시 신회장님이 편안하게 감독해 주셔서 잘 마무리를 할 수 있었습니다. 고마웠다는 인사가 늦었습니다.
신우식 충남건축사회장 저도 충북대를 졸업하고 연세대에서 석·박사 학위를 받았습니다. 졸업은 제가 몇 기 앞서 한 것 같습니다. 김득수 건축사님 석사논문에는 쉽게 구할 수 없는 자료들이 많은 것 같습니다. 젊은이도 하기 힘든 작업일 텐데 연로에 수고 많이 하셨네요.
박흥우 전회장 김득수 건축사님의 작은 아버지 되시는 김윤환씨는 형님 김세환 감사님을 말없이 끝까지 따라다니셨던 기억이 납니다. 충남대 영선과에 근무하셨죠. 김윤환씨 큰 자제분 결혼 주례를 제가 하기도 했습니다.
유근열 전회장 김윤환 선배님은 통 말씀이 적은(편이면서 좀 짜다고 할까 동료들에게 약간은 인색한) 편이었던 것 같습니다.
김종민 전회장 선친되시는 김세환 씨는 전에 총회 때 대전에 오시면 회의 끝난 후 몇 차례 약주를 하시고 술값을 지불하고 예산가는 차비를 빌린 뒤 몇 해 후에 회의때 와서 그때 빌린 돈을 잊지 않고 갚는 그런 분이셨습니다. 매사 정확하고 꼼꼼한 분이셨죠.

유근열 전회장 선친께서 돌아가시기 전에 예산 사무실에 몇 번 찾아간 적이 있습니다. 뵐 때마다 아들(필자 김득수) 자랑을 많이 하셨던 기억이 납니다. 주택마당에 지은 3층 건물 사무실도 아들이 자재를 보내주어 지었다며 설계에 필요한 트레이싱지, 청사진 감광지, 연필 등도 보내준 자랑을 하셨어요.
그리고 직장 퇴임 후에 잘나가던 건설업 사업에 실패하여 현재 살고 있는 집이 홍성 법원에 공매처분 때도 큰 아들(필자 김득수)이 알고 계약금과 중도금을 마련하여 입찰 후 모친 앞으로 이전하였을 때 고맙다는 말 이외에 할 말이 없었다고 하더군요. 부친께서는 속 있는 말까지 나에게 얘기하여 주어 김 건축사의 속 깊은 마음을 잘 알고 있습니다.
필자 김득수 선친께서 돌아가셨을 때 양세환 회장님, 박흥우 회장님, 김종민 회장님, 유근열 회장님 등 여러분이 많이 애쓰셨는데 인사를 자주 못해 죄송합니다.
강우식 전회장 선친께서 가끔 술을 드시고 “나는 한 살 때 독립운동을 한 사람이야”라고 농담을 하신 생각이 납니다.
필자 김득수 선친께서 1919년 3월 1일 태어나셔서 그러셨나 봅니다.
강우식 전회장 농촌 출신 건축사이신 선친에 대한 자료를 남긴다는 것은 대단히 뜻깊은 일이라고 생각합니다. 더군다나 대를 이어 건축에 종사하는 아들이 아버지에 대한 자료를 찾아 모으고 기록으로 남긴다는 것은 칭찬받아 마땅한 일이라고 생각합니다. 저도 목원대 김정동 교수에게 그 동한 모은 자료와 협회 관련 책을 기증했습니다. 김 건축사님 자제분도 같은 전공을 하였다는데 정말 부럽습니다.
필자 김득수 예, 한양대를 나오고 지금은 미국 펜실바니아대학에서 박사과정에 있습니다.
김종민 전회장 선친께서 마음 곱게 늙으시면서 아들 자랑을 많이 하셨는데, 부친이 살아온 과정을 알기 위해 자리를 마련하는 일은 쉽지 않을 것으로 협회 창설 이래 처음 있는 일인 것 같습니다. 그 고마움을 전합니다.
필자 김득수 오늘 이렇게 소중한 시간을 내주셔서 고맙습니다. 당연히 모셔야 하는데 늦게 모셔서 죄송할 따름입니다. 이번 기회에 선배 회장님들도 시간 나시는 대로 그동안 겪어온 건축 인생과 협회 활동, 작품 등을 정리하시어 후배들에게 소중한 자료로 남겨 주셨으면 합니다.
- 일시 : 2008년 5월 28일(수)
- 장소 : 대전
- 참석 : 김종민, 박흥우, 유근열, 강우식 전임회장, 정종태 대전회장, 신우식 충남회장, 대전 이을구, 충남 이종국 사무국장(양세환 초대회장님은 몸이 불편하시어 불참)


역대 임원명단
* 1965년부터 1984년 9대에 걸쳐 지금의 회장을 지부장이라 하였고 총무이사를 비롯해 간사,감사,분소에 임원들이 있어 충남건축사회의 초석을 다졌다.

마치는글
지금껏 많은 시행착오를 경험했고 앞으로 몇십년 후 또 다른 심판을 받을 준비를 해야 한다. 후손에 물려줄 우리의 고귀한 건축 문화 유산을 창출하고자 하는 사명감으로 참모습을 필요로 하는 것에 큰 의미를 갖고자 한다.
건축사사무소에서 가깝게 모시고 생활해 온 한사람으로서 어느 정도의 확신을 가지고 서술했다고 생각한다. 특히 박갑순 한밭대학 건축과 교수의 아낌없는 증언과 고흥주 건축이사, 김현용 건축사, 김홍택 건축사님의 사실과 같은 진솔한 대화에 감명을 받아 깊이 새기고 필자는 고마움을 잊지않고 오래 간직하고싶다. 그리고 충남건축사 지부 김종민, 박홍우, 유근열, 강우식 역대회장님을 비롯하여 현 신우식 충남건축사회 회장, 정종태 대전건축사회 회장님과 이을국, 이종국 사무국장님을 모시고 좌담회에 참석하시어 들려주신 좋은 말씀과 고견은 두고두고 기억할 것이다. 그러나 부족한 부분에 대한 너그러운 야해를 구하면서 그의 발자취의 남아있는 부분들을 정리함으로써 본 집필을 마친다.
도시 건축물보전방향
건축문화 유산은 보전 가치가 있는 건축물을 선별하여 지정문화재로 지정하고 있지만 50년대에서 70년대 초반에 건축된건축물은 현재 무분별하게 철거되고 있다. 근대 문화유산 문화재 등록제도가 2001년 7월에 개정되면서 법률적 보호근거가 마련되었다. 하지만, 아직도 볍률이 발효되면서조차 경제적 가치가 저하된 건물들을 우선적으로 철거하고 있는 실정이다. 우리는 국도극장이 하룻밤 사이에 철거된 것을 기억해야 할 것이다. 결국 법과 원칙아래 보전계획이 효과적으로 시행되기 위해서는 시민들의 적극적인 협조와 참여가 선행되어야 한다. 건축은 여러 시대에 걸쳐 변화해 온 다양한 양식의 건축물로 시대의 거울이기 때문이다. 필자가 졸필에도 불구하고 집필을 하는 이유는 건축 근대사 발전 속에 일제강점기시대 근대교육을 받은 잊혀져 가는 건축사들의 출현과 그 배경을 정리함으로서 지역 건축계의 현황과 윗아을 정립하고 근대건축의 형성과 현대건축으로 이어지는 틀을 마련하고자 함이다. 6.25전란과 영세한 기반에서도 건축사의 활동은 1970년대까지 열심히 한 흔적을 어렵지 않게 찾을 수가 있다. 필자의 이러한 수고가 한국의 현 근대 건축사를 재조명하는 계기가 될뿐더러 지역의 건축사들의 작품조사와 빛을 보지 못하는 자료를 발굴, 연구의 필요성에 시금석이 되기를 바란다. 건축사들이 완성해 놓은 작품은 그 시대에 따라 다른 표현을 하고 있듯이 50여년의 세월 속에 혹은 철거되었으나 2층도 짓기 어려운 시기에 구하기 힘든 건축자재, 장비등 숙련된 기술을 요하는 기능공의 부족, 공기 지연 등 어려운 여건 속에서도 우여곡절 끝에 완성된 건축물들로 현재까지 남아 있는 것은 당시 정성을 들인 건축사의 사명감의 소산이라 생각된다. 필자는 1958년부터 현재까지 50여년 건축계에 종사하면서 필자의 작품은 물론 부친이신 김세환씨의 작품세계를 기록보전 하고자 10여년에 걸쳐 조사는 물론 그 시기에 함께 종사한 분들의 이야기 등을 참고하였다. 세월이 지난 지금 부족하고 졸속한 내용을 기록보전 차원과 건축사의 집안으로서 자부심을 간직하고, 주변의 고마운 분들, 특히 선친의 건축작업에 많은 도움을 주셨던 분들에게 깊은 감사의 마음을 표현하고자 이 글을 정리하였다.
참고문헌
- 일제강점기시대 소읍도시 형성 과정에 관한 연구, 김득수 석사학위 논문, 2003년 8월
- 전북 전주공업고등학교 80년사, 전주공업고등학교 교무과 제공
- 이상훈 건축사 _ 대전·충남지역 1세대 한국인의 건축사와 그 활동에 관한 연구, 목원대 석사논문, 2002년, p37
글. 김득수 Kim, Deuksoo 종합건축사사무소 S.S.P.삼대

김득수 건축사·종합건축사사무소 S.S.P.삼대 대표
영등포구지역건축사회 회장(3회 연속), 서울특별시건축사회 회장 직무대행, 대한건축사협회 이사·감사 등을 역임하고, 대한건축사협회 50년사 발간위원장을 지냈다. 서울 영등포구, 동작구 건축·민원조정 위원, 에너지관리공단 건축·도시·관광단지 심의위원 등을 역임했으며, 예산읍 초대 명예읍장으로 위촉(1997.02.15.~2006.12.03.)된 바 있다. 서울특별시 시장 표창 5회와 대통령 표창(제200398호)을 받았으며, ‘일제시대 소읍도시 형성과정에 관한 연구’, ‘일제강점기 근대도시의 도시공간 변화 특성에 관한 연구’ 등의 논문을 작성했다.
'아티클 | Article > 칼럼 | Column' 카테고리의 다른 글
| 교회, 구별에서 교류로 전환되는 에클레시아 2020.10 (0) | 2023.01.25 |
|---|---|
| [건축비평] 알뜰한 자연 속에 자리 잡은 또 하나의 멋진 자연_ 자질구레한 평은 없는 이보다 못한 2023.1 (0) | 2023.01.20 |
| 01 왜 건축은 서비스산업인가? 2020.9 (0) | 2023.01.19 |
| 02 건축의 산업화에 대해_4차 산업혁명 시대, 건축사 외연의 확장 2020.9 (0) | 2023.01.19 |
| 03 건축, 기획의 시대 2020.9 (0) | 2023.01.19 |