2022. 11. 7. 15:17ㆍ회원작품 | Projects/House
Manchon Hohojae

좋을 호(好)를 두번 사용한 당호를 가진, 만촌 호호재는 ‘더할 나위 없이 좋은 집’이라는 의미를 가지고 있다.
호호재는 부부와 세 남매가 구성원인 다섯 식구를 위한 공간으로 설계되었다. 남측 8m 도로와 북측 3m로 면해 있고 대략 40평의 공간안에 총 4개층을 가진 도시형 단독주택이다.
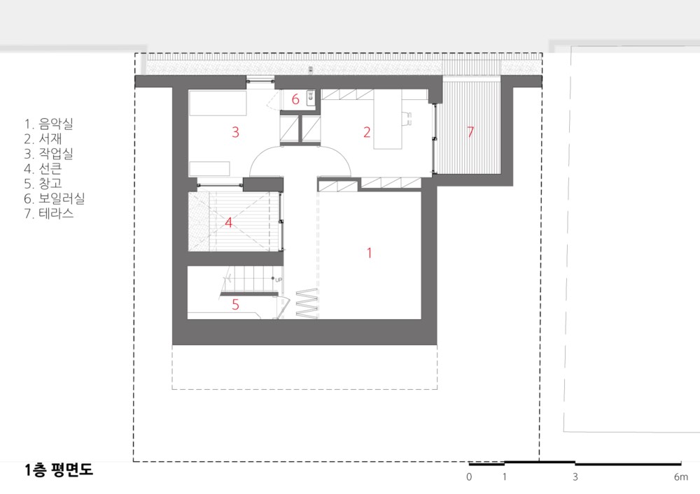
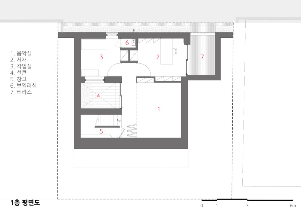
우리는 이 집이 꾸밈없이 담백하고 주변과 동화되어 자연스럽게 어울리는 집이 되길 희망하며 계획했다. 지하층은 북측에 위치한 막힌 3m 도로에 면하며 부부의 취미실로 사용된다. 도로에 면한 부분에 대나무를 이용해서 프라이버시를 보호하면서 내부에서 바라보는 길의 풍경과 주변 공간을 풍요롭게 보이도록 계획했다.
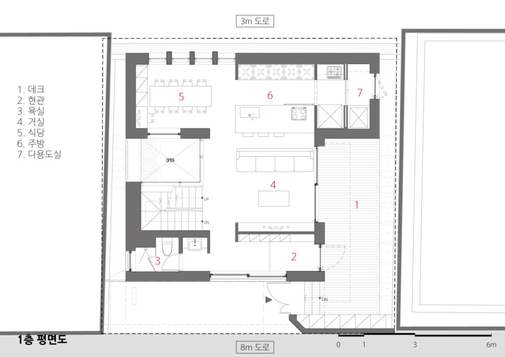
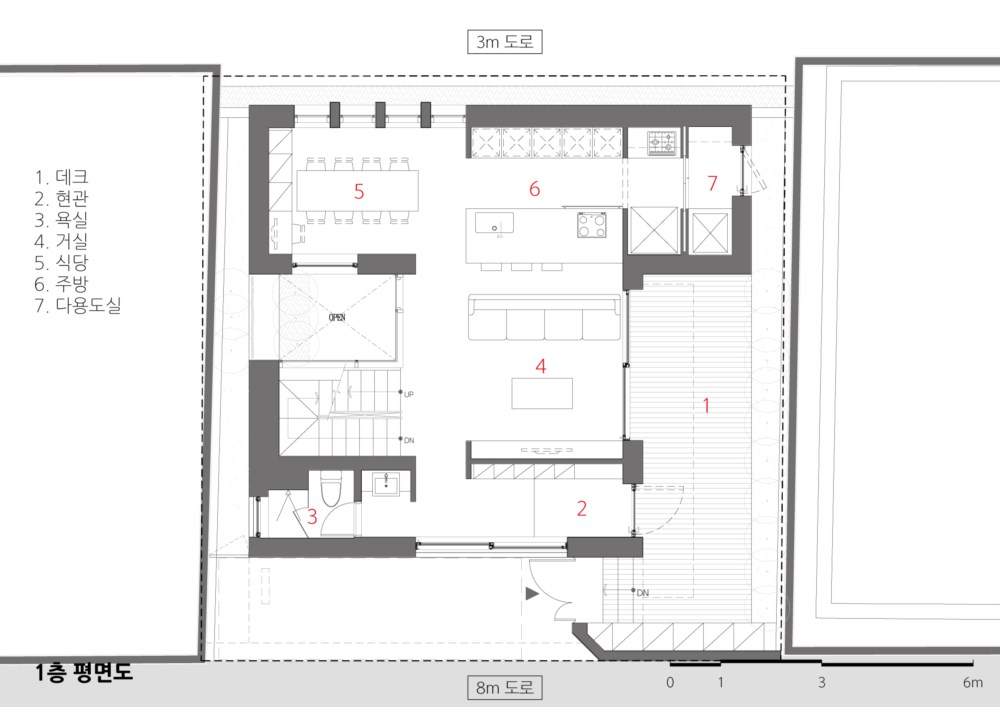
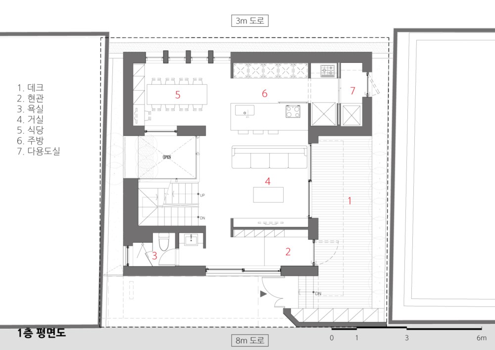
1층은 거실과 주방으로 구성돼 있으며, 동쪽으로 거실에 면하여 작은 마당을 계획했다. 2층은 가족실과 부부침실 그리고 자녀방으로 구성돼 있다. 알루미늄 루버를 사용해 개인 실을 사용하는 이들의 사생활을 존중하는 공간으로 만들었다. 다락층은 아이들의 놀이공간으로 2층의 가족실과의 연결을 중요하게 생각했다. 올려다보거나 내려다보는 등 시선을 교차시키면서 소통이 가능한 점을 중점에 뒀다. 다락을 통해 밖으로 나가면 야외 휴게공간인 옥상데크 공간이 나온다.

The “HO(好)” from HO HO JAE(好 好 斎) has meaning of “good” in Chinese character. By using this word twice in a row, we hope that this house would be a perfect place to live. HO HO JAE is a urban detached house with three stories above ground and one underground level for a family of five, husband, wife and three children. The house has land area of 133.20㎡(40 pyeong), which is faced to 8m-wide road to the south and 3m-wide dead-end road to the north.
We hope and plan that this house is simple and naturally assimilate very easily to the environment around house. The basement level for husband and wife's hobby room is bordered to 3m-wide dead-end road to the north. We secured a privacy of the room by planting bamboo to the road side. It also has enriched street scene.
The first floor consists of living room and kitchen. There is a small yard in front of the living room in the east. The second floor consists of master bedroom and children's room. We partly use aluminium louver for their privacy. The attic is designed for children's play room and is in front of wood deck on rooftop. When planning the attic, we keep our mind on visual connection between attic floor and family room on the second floor.



















| 만촌 호호재 설계자 ┃ 김건철 KIRA _ 스마트 건축사사무소 건축주 | 임주현 감리자 | 김건철 시공사 | 임주현(현장대리인 송병석) 설계팀 | 이승은 대지위치 | 대구광역시 수성구 달구벌대로530길 39 주요용도 | 단독주택 대지면적 | 133.20㎡ 건축면적 | 76.09㎡ 연면적 | 188.77㎡ 건폐율 | 57.12% 용적률 | 103.62% 규모 | 지하 1층, 지상 2층 구조 | 철근콘크리트조 외부마감재 | 점토벽돌, 스타코플렉스 내부마감재 | 수성페인트, 자작나무합판 설계기간 | 2016. 03 ~ 2016. 06 공사기간 | 2016. 06 ~ 2017. 03 사진 | 문정식, 윤동규 구조분야 : (주)보루 기계설비분야 : 한국기연 전기분야 : 우진엔지니어링 |
Manchon Hohojae Architect | Kim, Guncheol _ Smart Architecture Client | Lim, Juhyun Supervisor | Kim, Guncheol Construction | Lim, Juhyun Project team | Lee, Seungeun Location | 39 Dalgubul-daero 530gil, Susung-gu, Daegu-si, Korea Program | Detached house Site area | 133.20㎡ Building area | 76.09㎡ Gross floor area | 188.77㎡ Building to land ratio | 57.12% Floor area ratio | 103.62% Building scope | B1F – 2F Structure | RC Exterior finishing | Brick, Stuco-flex Interior finishing | V.P, Birch-plywood Design period | Mar. 2016 ~ Jun. 2016 Construction period | Jun. 2016 ~ Mar. 2017 Photograph | Moon, Jungsik / Yoon, Donggyu Structural engineer | BORU Mechanical engineer | HANKUK-kiyeun Electrical engineer | WOOJIN engineering |
'회원작품 | Projects > House' 카테고리의 다른 글
| 누하당(樓下堂) 2018.02 (0) | 2022.11.09 |
|---|---|
| 쉐어하우스 프렌즈 2018.01 (0) | 2022.11.07 |
| 청연재(淸緣齋) 2018.01 (0) | 2022.11.07 |
| 대율리주택 _ 심온재(心穩齋) 2018.01 (0) | 2022.11.07 |
| 테라스 Y 2022.10 (0) | 2022.11.02 |