2023. 1. 5. 09:13ㆍ회원작품 | Projects/House
Simrakjae

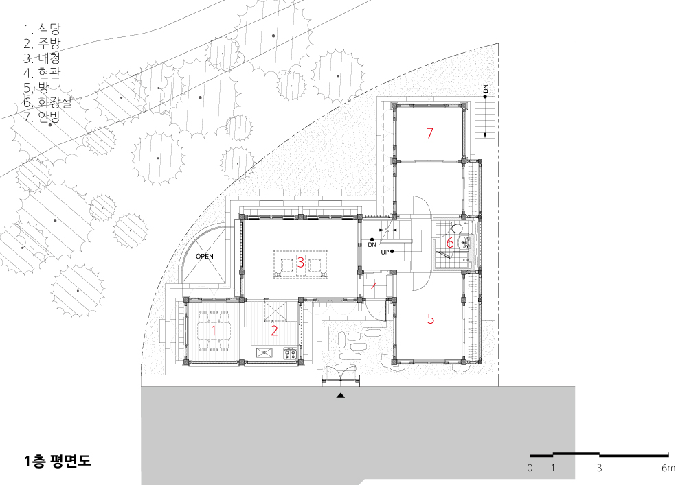
심락재는 평면이 스킵플로어로 구성돼 있다. 단순히 레벨만 움직이지 않고 건물의 방향도 같이 바뀌는 구조기 때문에 공간의 독립성도 충분히 유지되고 있다.
현관으로 들어오면 가족들의 중심 공간인 대청과 식당을 만나게 되고, 반층 올라서면 양쪽으로 나누어 배치된 침실공간인 안방과 자녀방을 볼 수 있다.
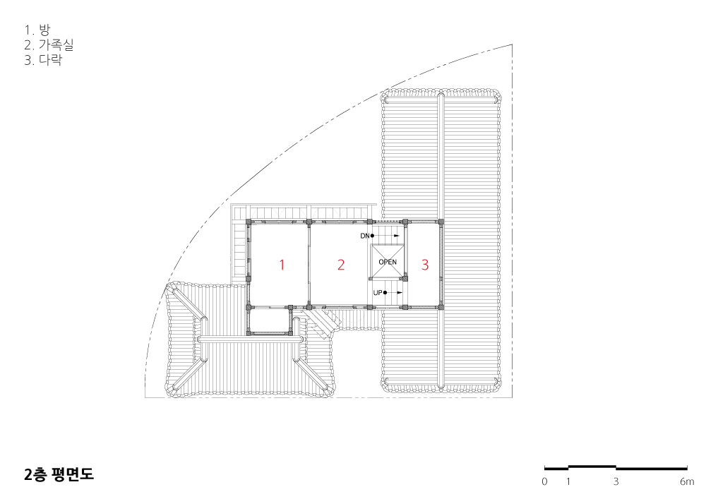
2층은 가족실과 다락이 있고 지하는 두 개의 레벨로 나누어 반지하층과 선큰이 있는 지하층을 배치해 공간 활용도를 높였다. 한옥은 태생적으로 레벨 변화에 잘 적응하는 구조적 특성이 있어 경사지에서 스킵플로 구조 적용은 매우 효과적이다.
심락재는 한옥의 내외부의 연속성을 온전히 유지하고 있다. 한옥의 아름다운 구조가 외부에서 느낀 것과 같이 내부에서도 구조의 흐름이 단절 되지 않고 연속성이 유지되기를 원하지만, 악마는 디테일에 있듯 벽체가 점차 복잡하고 두꺼워지면서 한식목구조는 가려져 보이지 않게 되고 결국 내장 마감만 남게 된다.
심락재는 현대적 건축 기능들을 충분히 만족하면서도 내부에서 한식목구조를 선택적으로 표현이 가능하도록 했다. 이로 인해 불필요한 내부 수장마감이 사라져 한옥의 아름다움을 온전히 간직하고 있다.

SIMRACKJAE is composed of skip floors. The independence among the levels is fully maintained because they also change the direction of the building. Stepping into the entrance, you will meet the main hall and the restaurant, a central place of the family, and then going up a half floor, you can see the bedroom in one direction and the children's room in the other.
The second floor has a family room and an attic, and the basement is divided into two levels to utilize the space better by laying out a semi-basement floor and a basement floor with sunken. Since Hanok has a structural characteristic that inherently adapts to level changes well, it is very effective to apply a skip flow structure on the slopes.
SIMRACKJAE keeps the continuity of the interior and exterior as one can find easily in a typical Hanok. As the beautiful structure of Hanok felt from the outside, the uninterrupted flow of the structure is hoped to keep continued in the interior. As the devil has details, however, in ordinary situations, the wall keeps getting so complicated and thickened that the Korean wooden structure is hidden and invisible, and there is only interior finishing left.
SIMRACKJAE is designed to express a Korean wooden structure inside selectively while satisfying modern architectural functions. As a result, unnecessary interior finishing is removed, keeping the beauty of Hanok in its entirety.






| 심락재 설계자 | 오드 건축사사무소 건축주 | 양승주 감리자 | 최재복 _ 오드 건축사사무소 시공사 | 건축주 직영 대지위치 | 서울특별시 은평구 진관길11-00 주요용도 | 단독주택 대지면적 | 166.80㎡ 건축면적 | 71.19㎡ 연면적 | 174.22㎡ 건폐율 | 42.68% 용적률 | 60.16% 규모 | 지하 1층, 지상 2층 구조 | 한식목구조 외부마감재 | 회벽마감, 목구조노출, 포천석 내부마감재 | 한식벽지, 목구조노출, 포천석 설계기간 | 2015. 06 ~ 2016. 03 공사기간 | 2016. 06 ~ 2017. 08 사진 | 박영채 전문기술협력 - 구조분야 : 은구조 - 기계설비분야 : 새서울기술단 - 전기분야 : 새설울기술단 |
Simrakjae Architect | Choi, Jaebok_ODE Architects Client | Yang, Seungju Supervisor | Choi, Jaebok _ ODE Architects Construction | Direct undertaking work Project team | Location | 11, Jingwan-gil, Eunpyeong-gu, Seoul, Korea Program | Residence Site area | 166.80㎡ Building area | 71.19㎡ Gross floor area | 174.22㎡ Building to land ratio | 42.68% Floor area ratio | 60.16% Building scope | B1F - 2F Structure | Wood Sturcture Exterior finishing | Wood, Plaster Interior finishing | Paint, Wood Design period | Jun. 2015 ~ Mar. 2016 Construction period | Jun. 2016 ~ Aug. 2017 Photograph | Park, Youngchae Structural engineer | EUN ENG Mechanical engineer | SEYEON ENG Electrical engineer | SEYEON ENG |

'회원작품 | Projects > House' 카테고리의 다른 글
| 은평 열린 주택 2019.10 (0) | 2023.01.05 |
|---|---|
| 421집 2019.10 (0) | 2023.01.05 |
| 구천일호 2019.10 (0) | 2023.01.05 |
| 꽃_놀이집 2019.10 (0) | 2023.01.05 |
| 주한 스위스 대사관 2019.9 (0) | 2023.01.04 |